Grau in Grau
Bürogebäude in Hannover von Reichwald Schultz & Partner
© Marcus Ebener
Lorem Ipsum: Zwischenüberschrift
Reichwald Schultz & Partner realisieren mit CO3Plan ein Bürogebäude aus Beton mit gerasterter Lochfassade für die Wirtschaftsförderungsgesellschaft nahe des Flughafen Hannover-Langenhagen. Der Neubau entsteht im Zuge einer Erweiterung der MTU Maintenance Hannover gemeinsam mit neuen Werkhallen, in denen zivile Flugzeugtriebwerke instandgehalten werden. Mit seiner exponierten Lage ist das riegelförmige Volumen als repräsentatives Flaggschiff des Areals konzipiert.


© Marcus Ebener
Lorem Ipsum: Zwischenüberschrift
Die Ansichten des fünfgeschossigen Bürobaus werden rundum von regelmäßig gesetzten, großen Fensteröffnungen durchbrochen. Sämtliche Fassadenelemente aus Beton sind vorgefertigt und verleihen dem Gebäude mit ihrer Präzision eine schlichte Eleganz. Durch die Säuerung der Oberfläche erhält das Material eine natursteinartige Körnung.
Lorem Ipsum: Zwischenüberschrift
Die liegenden Panoramaverglasungen sind mit einem textilen Sonnenschutz versehen. Im geschlossenen Zustand sorgt dieser an der Außenhülle mit seiner betongrauen Farbe für einen spannenden Effekt: Er kombiniert Härte und Weichheit und scheint den Baukörper gleichzeitig rundum hermetisch abzuschließen. Die Fensterhöhen stimmen in den Büros außerdem mit jener der Tische überein und ermöglichen den Mitarbeitern den direkten Blick nach draußen.


© Marcus Ebener
Lorem Ipsum: Zwischenüberschrift
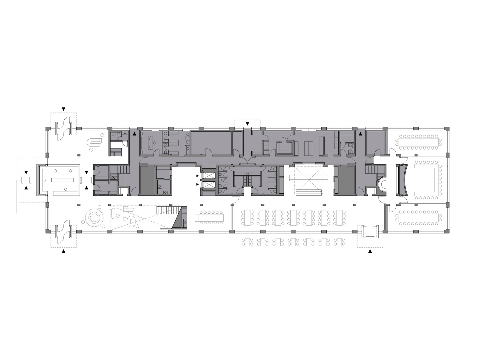
Im Inneren des Neubaus stand die höchstmögliche Flexibilität der Grundrisse im Vordergrund. Das Erdgeschoss beinhaltet den Empfang, an den seitlich eine langgestreckte Halle anschließt. Sie führt zunächst weiter in den Café- und Bistrobereich und dann zu den Konferenzzimmern im hinteren Teil. Eine offene Treppe mit einladender Sitztribüne inszeniert die Verbindung zur ersten Etage.


© Marcus Ebener
Lorem Ipsum: Zwischenüberschrift
Die Bürogeschosse organisieren sich rund um einen zentralen Kernbereich. Dieser teilt den 70 m langen Bau in Längsrichtung in zwei spangenartige Räume, die sich flexibel bespielen lassen. Kompakte Boxen schaffen in den Open Space-Büros unterschiedliche Flächen für Besprechungen oder konzentriertes Arbeiten. Die Mittelzone beinhaltet sowohl Rückzugs- als auch Gemeinschaftsbereiche und wird vertikal verzahnt – mit niedrigeren und höheren Räumen und Abschnitten – zum Herzstück des Gebäudes.
Architektur: Reichwald Schultz & Partner
Bauherr: WFG Wirtschaftsförderungsgesellschaft Langenhagen Flughafen
Standort: Langenhagen (DE)
Tragwerksplanung: Ingenieurbüro Albus
Generalplaner: CO3PLAN
TGA-Planung: FC-GRUPPE
Lichtplanung: LICHT KUNST LICHT
Planung Außenanlagen: Ackermann Garten- und Landschaftsarchitektur
Bruttogeschossfläche: ca. 6900 m²






















