Größtenteils vorgefertigt
Bürogebäude in Neu-Ulm von Nething Generalplaner
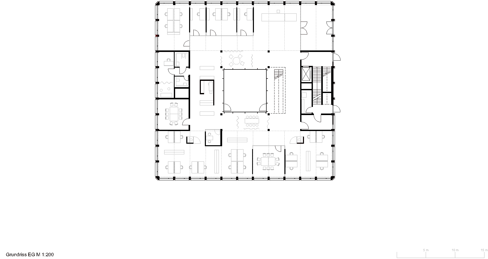
Der viergeschossige Bürobau hat einen exakt quadratischen Grundriss. Er steht in einem Gewerbegebiet am Südrand von Neu-Ulm. © Nicolay Kazakov
„Stetig steigende Anforderungen prägen unser Geschäft: In den letzten Jahren sind unsere Projekte in Größenordnung und Komplexität deutlich gewachsen“, sagt Axel Nething, geschäftsführender Gesellschafter des Generalplanungsunternehmens Nething aus Neu-Ulm. Dass er und sein Büro den Anforderungen gewachsen ist, konnte Nething unlängst beim Neubau der eigenen Firmenzentrale unter Beweis stellen. Der viergeschossige, quadratische Neubau steht in einem kleinen Gewerbegebiet am südlichen Stadtrand von Neu-Ulm und ist in zweierlei Hinsicht bemerkenswert: zum einen wegen des Bürokonzepts, das trotz seiner Offenheit viele unterschiedliche Raumsituationen bereithält, und zum anderen, weil er bis auf die Tiefgarage und das zentrale Treppenhaus vorgefertigt wurde.


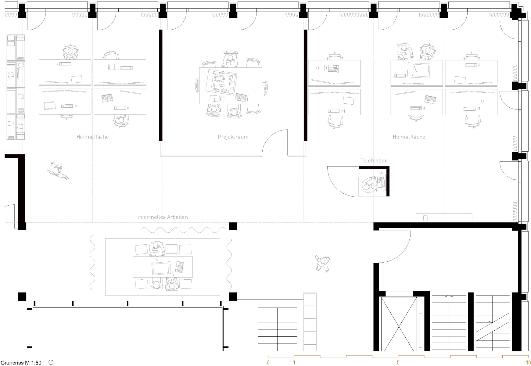
So offen wie hier im 1. Obergeschoss sind viele Bereiche gestaltet. Es gibt aber auch Rückzugsmöglichkeiten. © Conné van’d Grachten
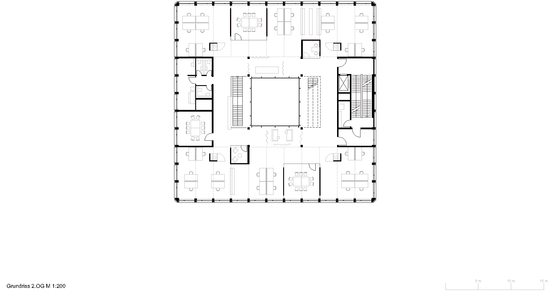
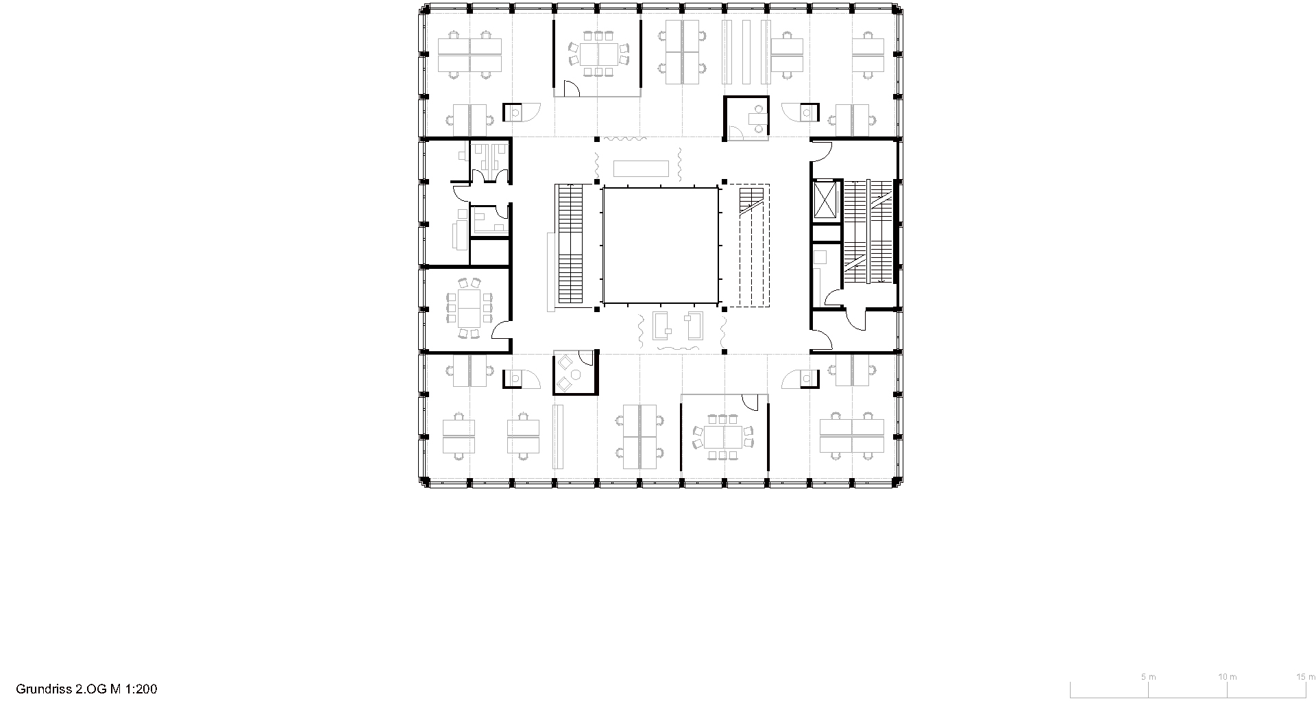
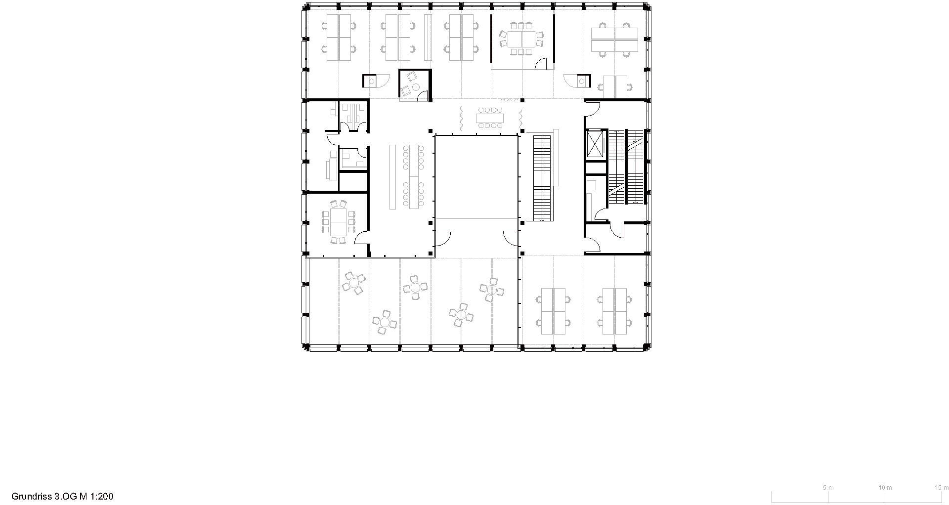
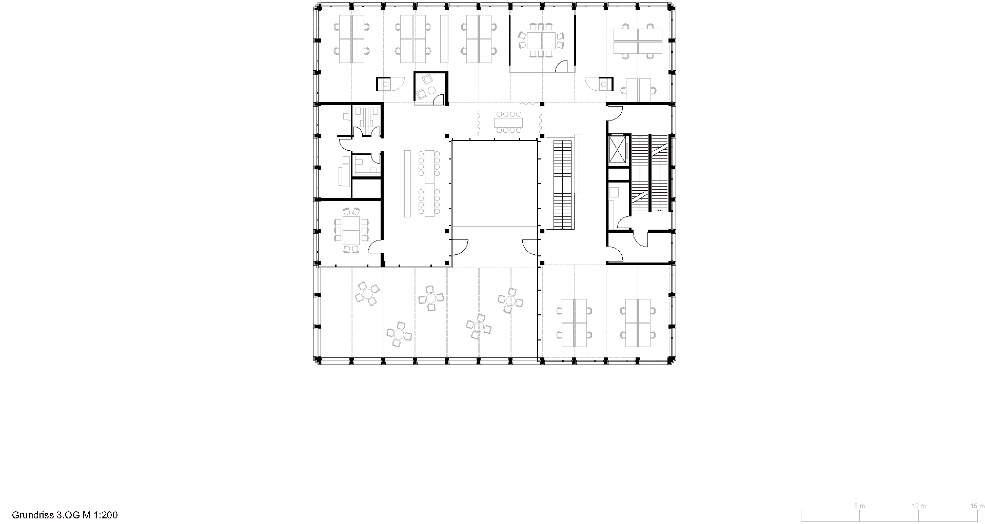
Offen und vielgestaltig: das Bürokonzept
Am Anfang der Planung stand eine Bedarfsanalyse, bei der die Arbeitsweise unterschiedlicher Abteilungen und ihre Beziehungen zueinander genau unter die Lupe genommen wurden. Wege durch das Gebäude wurden analysiert und Überlegungen angestellt, an welcher Stelle im Haus welche Interaktion gewünscht war: das offene, spontane Meeting, die geplante Besprechung oder auch das stille, konzentrierte Arbeiten. Ziel war, Verbindungen auch über Etagengrenzen hinweg herzustellen und möglichst viele Sichtachsen offen zu halten, aber dennoch genügend Orte für den Rückzug bereitzustellen. Auf diese Weise schuf das Büro Nething eine offene Struktur unterschiedlichster Arbeitsbereiche, von der Gruppen- und Einzelarbeit bis zum Working Café, einer zentralen Küche mit Essbereich und Zugang zur Dachterrasse.


Ein Innenhof versorgt die fassadenfernen Bereiche mit Tageslicht. Hier liegt auch die Haupterschließung. © Conné van’d Grachten
Vorfertigung spart Zeit und Nerven
Nicht zuletzt diente der Büroneubau den Architekten als Fallstudie, inwieweit Vorfertigung in der Lage ist, Bauprozesse zu optimieren. Im Endeffekt gelang es, die Bauzeit auf 20 Monate zu senken. Der komplette oberirdische Teil mit Rohbau, Holzbau und Fassade war sogar innerhalb von nur vier Monaten fertig. Ein besonderes Augenmerk lag dabei auf den Gewerken Fassade und technischer Ausbau. Die zwei- bis dreiachsigen Fassaden wurden vom Holzbauunternehmen Müllerblaustein auf einer eigenen Produktionsstraße fertiggestellt – einschließlich der Fenster und der tragenden Fassadenstützen. Die je 2,70 x 8,10 m großem Deckenelemente entstanden im gleichen Werk. Darin sind weite Teile der Installationstechnik integriert: Heizung und Lüftung, eine Grundbeleuchtung von 300 lux und eine unterseitige Abdeckung aus Holzlamellen für den Schallschutz. Bevor sie zum Einsatz kamen, mussten die Technikdecken ihre Praxistauglichkeit im Labor unter Beweis stellen. Hier wurden beispielsweise Strömungsmessungen der Schlitzauslässe durchgeführt und die Auswirkung der Akustikdecken auf den Wirkungsgrad der Heizung und Kühlung überprüft.


Kleine Besprechungsbereiche lassen sich mit Vorhängen abtrennen. © Nething Generalplaner
Musterbespiel für Energieeffizienz
Natürlich legten Nething Generalplaner auch Wert auf einen zeitgemäßen Energiestandard: Das Haus ist als Effizienzgebäude 40 EE ausgelegt und nutzt Geothermie, Photovoltaik und E-Mobilität für einen CO2-neutralen Gebäudebetrieb. Auch die CO2-Bilanz der Baukonstruktion kann sich dank der Holz-Hybridbauweise sehen lassen.
Bauherr und Architektur: Nething Generalplaner
Standort: Edisonallee 33, 89231 Neu-Ulm (DE)
Tragwerksplanung, Fassadenplanung: Müllerblaustein HolzBau Werke
Landschaftsarchitektur: Tünnemann Landschaftsarchitektur
TGA-Planung: Fact
Brandschutz: umt Umweltingenieure
Bauphysik: Müller-BBM























