Neues Leben im Fachwerkbau
Büroscheune bei Heilbronn von Steinbach/Finckh
Beim Umbau erhielt die Fachwerkscheune ein neues Kellergeschoss aus wassergestrahltem Sichtbeton. Doch das war nicht die einzige Veränderung. © Christoph Steinbach
Fachwerkgebäude aus Eichenholz mit steilen Dächern prägen bis heute die Dörfer des Hohenlohekreises in Baden-Württemberg. Eines davon haben Christoph Steinbach und Tobias Finckh jetzt für ein ortsansässiges Planungsbüro für Landschaftsarchitektur umgebaut. Die Scheune in Obermaßholderbach, einen Ortsteil von Öhringen, stammt aus dem Jahr 1800 und war früher Teil einer landwirtschaftlich genutzten Hofstelle.


Das Eichenholzfachwerk mit Ausfachung aus Bruchsteinen wurde außen sichtbar belassen und lediglich von innen gedämmt. © Christoph Steinbach
Scheune mit langer Umbaugeschichte
Das Gebäude hatte bereits eine längere Umbaugeschichte hinter sich: Ursprünglich besaß es zwei Tennen mit großen Holztoren. Dazwischen, in der Gebäudemitte, befand sich der Kuhstall und darüber der Dachboden zur Lagerung der Ernte. An den beiden Giebelseiten war das Gebäude unterkellert. Den südlichen Keller ließ der Vater des jetzigen Besitzers jedoch schon in den 1970er-Jahren abreißen, da er einer ebenerdigen Erschließung vom Hof aus im Wege stand.
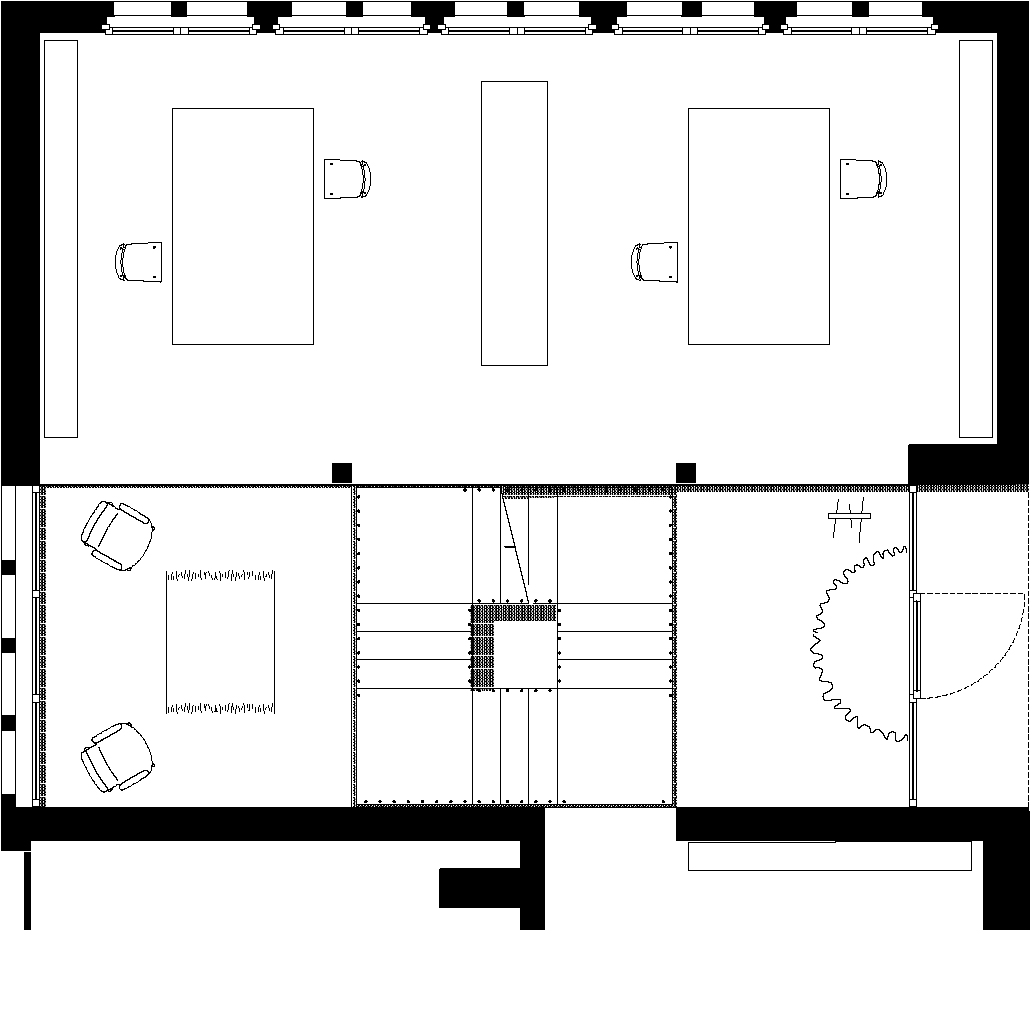
2001 ließ der jetzige Besitzer, ein Landschaftsarchitekt, die nördlichen zwei Drittel des Gebäudes samt dem zentralen Stall zu Büroräumen umnutzen. Die ehemalige Tenne mit Scheunentor wurde verglast und diente fortan als Eingang. In einem zweiten Bauabschnitt sollte nun der südliche Scheunenbereich samt Tenne folgen. Das Raumprogramm sah einen abgeschlossenen Besprechungsraum, einen Rückzugsbereich für die Mitarbeiter und weitere Arbeitsplätze vor. Außerdem war eine Treppe ins Dachgeschoss der Scheune erforderlich.


Eine filigrane Treppe aus schwarzem Stahl verbindet die einzelnen Ebenen miteinander. © Christoph Steinbach
Filigrane Stahltreppe zum ehemaligen Dachboden
In der Scheuneneinfahrt, in der früher das Heu auf den Dachboden gehoben wurde, verbindet nun eine schlanke Treppenkonstruktion aus schwarzem Zunderstahl die Büroebenen miteinander. Ringsum verteilen sich Arbeitsplätze und ein Besprechungsraum. Wie Bilder an einer Wand rahmen die Fenster im Besprechungsraum verschiedene Bereiche des Gartens.


Eichenholz, geschliffener Estrich, Stahl und Lehmputz prägen die Innenräume. © Christoph Steinbach


Die verschiedenen Materialien finden sich in allen Räumen – vom Souterrain bis zum ehemaligen Dachboden. © Christoph Steinbach
Fachwerkkonstruktion, von innen gedämmt
An den Fassaden wurde das Fachwerk aus Eiche mit Ausfachung aus Bruchsteinen sichtbar belassen. Die neue Gründung und das Tiefparterre bestehen aus Beton mit Sichtoberfläche, die nach dem Ausschalen mit Wasser gestrahlt wurde. Durch seine dreiseitige Lage im Erdreich kommt der hier gelegene Besprechungsraum auch in Hitzeperioden ohne aktive Kühlung aus.


Die Arbeitsräume umgeben das Treppenhaus, das in der ehemaligen Scheuneneinfahrt platziert wurde. © Christoph Steinbach
Holz, Lehm, Stahl und Sichtestrich
Auch sonst legten die Architekten Wert darauf, mit einfachen Mitteln ein komfortables Innenraumklima herzustellen. Dazu zählen Baustoffe mit feuchteregulierenden Eigenschaften und eine Konstruktion mit hoher thermischer Masse, die Temperaturspitzen abmildert. Da das Fachwerk außen sichtbar bleiben sollte, sind die Außenwände von innen mit einer Lehm-Hanf-Schüttung gedämmt. Sie wurde in eine Holzständerkonstruktion eingebracht und anschließend mit Lehm verputzt. Auf den Fußböden wurde der Estrich lediglich geschliffen; das Dach ist mit Stopfwolle aus Hanf gedämmt. Wärme für die Büroräume liefert ein Scheitholzkessel, den der Hausherr mit selbst geschlagenem Holz betreibt. Eine Wandheizung verteilt die Wärme in den Räumen.
Architektur: Christoph Steinbach, Tobias Finckh
Bauherr: Roland Steinbach Freier Landschaftsarchitekt
Standort: Zum Buschfeld 5, 74613 Öhringen-Obermaßholderbach (DE)
Tragwerksplanung: Manfred Schilling
Bauphysik: rw bauphysik





















