Einfamilienhaus auf innerstädtischem Restgrundstück
Catching Sun House von Studioshaw in London
© James Brittain
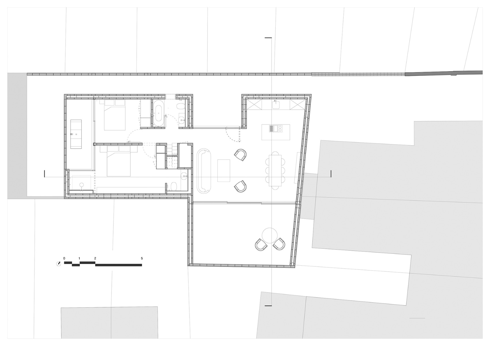
Es war ein Zukunftsfund: Als Mark Shaw im Ost-Londoner Stadtteil Walthamstow auf ein Grundstück mit stillgelegter Autowerkstatt stieß und herausfand, dass dafür eine Baugenehmigung für ein eingeschossiges Wohnhaus vorlag, beschloss er, hier wohnhaft zu werden. Gemeinsam mit seinem Architekturbüro Studioshaw plante er auf der 135 m² großen Parzelle einen Neubau mit offenem Wohn- und Essbereich sowie zwei Schlafzimmern samt Bädern im Erdgeschoss. Auf der oberen Etage legte er einen kleineren Wohn- und Arbeitsbereich an. Möglich war dies, weil die alte Garage genau in diesem Bereich ebenfalls zweigeschossig gewesen war.


© James Brittain
Eine schmale Zufahrt führt auf das Grundstück, das auf allen Seiten von einer neu errichteten Gartenmauer umgeben ist. Allein für ihren Bau waren 27 Vereinbarungen mit den Nachbarn erforderlich, um bestehende Zäune und Mauern entfernen zu lassen.
Die Baugenehmigung sah vor, dass die umliegenden Gärten aus den Innenräumen nicht eingesehen werden durften. Tageslicht fällt dennoch reichlich ins Haus – allen voran über die Dachoberlichter und über bodentiefe Verglasungen im Eingangsbereich und zu den zwei kleinen Innenhöfen, die den Schlafzimmern und dem Wohnbereich vorgelagert sind.


© James Brittain
Um Baukosten zu sparen, schrieben die Architekten alle 14 Gewerke einzeln aus und koordinierten sie, statt einen Generalunternehmer zu beauftragen. So blieb der Bau nach ihren Berechnungen um 30-40% günstiger als ein vergleichbares, konventionell erstelltes Haus.


© James Brittain


© James Brittain
Bei der Materialwahl unterschieden die Architekten klar in ein Unten und ein Oben: Auf den Hof- und Erdgeschossmauern aus teils zweischaligem Betonsteinmauerwerk mit Kerndämmung liegt eine Holzkonstruktion für Obergeschoss und Dach auf. Für die Schiebetüren und Fenster wählten die Architekten eloxiertes Aluminium. Eine verspielte, orangefarbene Sambatreppe führt in den ersten Stock; darunter ist eine Abstell- und Wäschekammer untergebracht. Extrovertiert und doch sichtgeschützt ist die Dusche vor dem größeren der beiden Schlafzimmer: Sie liegt in einem rundum verglasten Anbau im Hof, lässt sich aber bequem aus dem Inneren des Hauses erreichen.


Dies ist eine Bildunterschrift
Architektur: Studioshaw
Bauherr: Mark Shaw
Standort: Walthamstow, London (GB)
Grundstücksfläche: 135 m²

















