// Check if the article Layout ?>
Clever gesetzte Zäsuren: Ferienhaus in Oberreute
Foto: Brigida González
Man nehme das maximal zulässige Bauvolumen des Grundstückes und schiebe es leicht in den Hang hinein. Hinzu kommt die traditionell flache Dachneigung von 16 Grad und fertig ist die äußere Ausgangsform des Ferienhauses mit zwei zulässigen Vollgeschossen. Auch der herkömmliche Rohstoff Holz setzt sich sowohl im Innenraum, der Konstruktion als auch der Fassade des Hauses durch. Ganz so einfach haben es sich die Architekten von Studio »Yonder« nicht gemacht: Diese traditionellen Ansätze wurden bei dem sogenannten »Haus P« radikal modern interpretiert, allerdings ohne den Flair eines typischen Allgäuer Wohnhauses entfliehen zu lassen.
Der kerngedämmte Sichtbetonsockel im Gartengeschoss hebt sich sowohl in der Materialität als auch vom Volumen deutlich von der darauf sitzenden Holzfassade ab. Diese erhielt durch das Abflammen der Holzschalung vor der Montage zum einen ihr tiefschwarzes Erscheinungsbild und zum anderen einen natürlichen Schutz gegen Witterungseinflüsse. Durch clever gewählte Zäsuren wird das Haus auf das benötigte Volumen reduziert und behält dessen ungeachtet die klassische, äußere Form bei. Ein über die gesamte Breite herausgeschnittenes Stück teilt das Ursprungsvolumen in zwei unterschiedlich genutzte Baukörper. Der zwischen dem Wohnhaus und dem Lagerschuppen entstandene Raum fungiert als Hof und familiärer Treffpunkt. Durch die prägnant ausgeklappte Schräge der Rückwand, entsteht hier bei dem Wohngebäude zum einen ein geschützter Eingangsbereich und zum anderen eine optimierte Licht- und Raumsituation im Inneren.
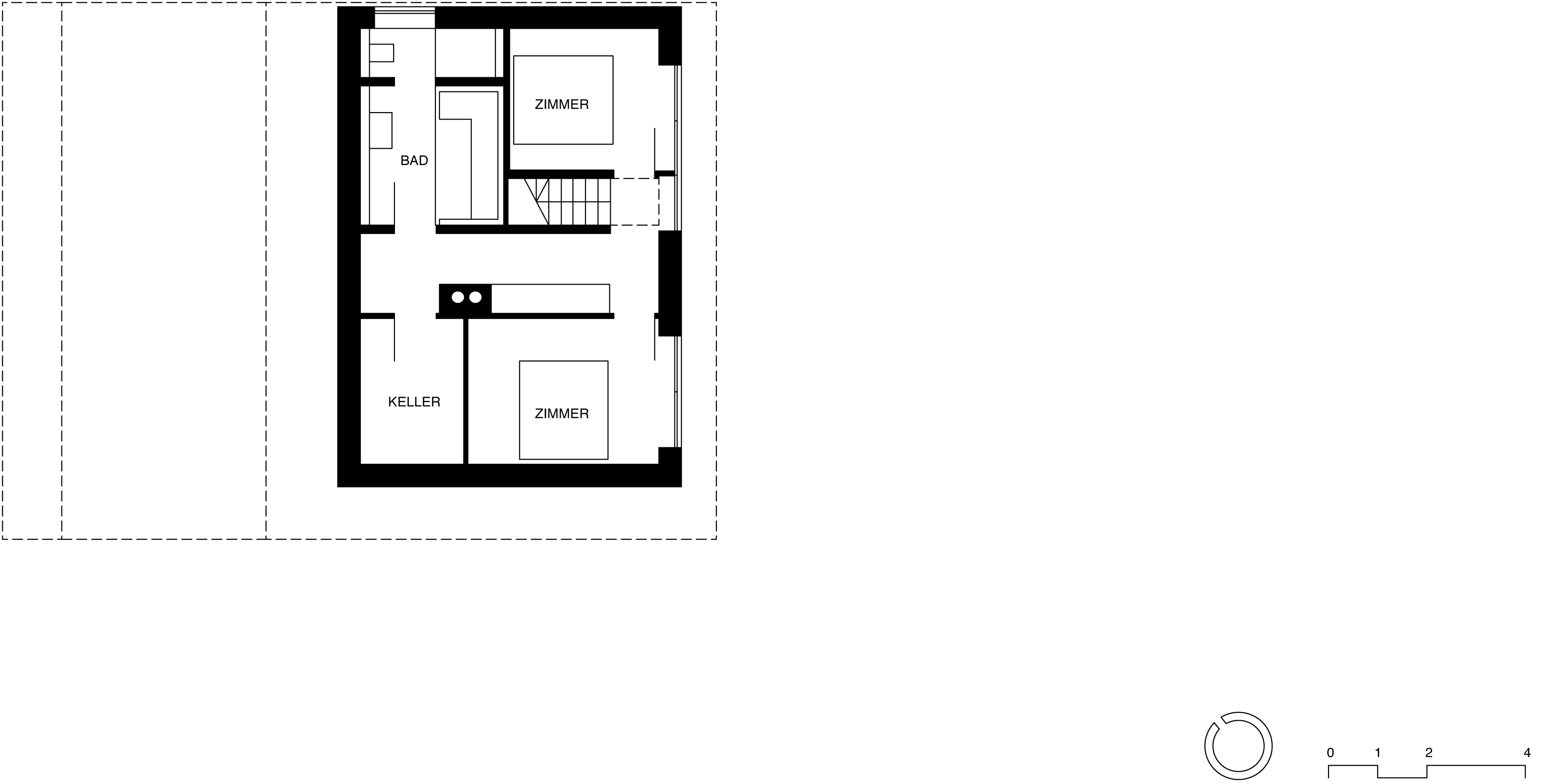
Das Erdgeschoss, in welchem sich neben einem Schlafzimmer der Wohn- und Essbereich befinden, ist über eine Galerie mit der Leseempore unter dem Dach verbunden. Die Treppe nach oben liegt auskragend an der Seite des Baukörpers und dient somit zugleich als Überdachung für die darunter befindliche Außentreppenanlage. Über die mittig angelegte, schmale Erschließung gelangt man in das eingerückte, privatere Sockelgeschoss zu weiteren Zimmern, dem Bad und einer Sauna. Großzügige Fensteröffnungen an der Hangseite der Fassade gewährleisten einen herrlichen Ausblick auf die Berge. Das im Untergeschoss zweigeteilte Fensterband weist erneut auf die clever und präzise gesetzten Ausschnitte des gesamten Ferienhauses hin.
Der kerngedämmte Sichtbetonsockel im Gartengeschoss hebt sich sowohl in der Materialität als auch vom Volumen deutlich von der darauf sitzenden Holzfassade ab. Diese erhielt durch das Abflammen der Holzschalung vor der Montage zum einen ihr tiefschwarzes Erscheinungsbild und zum anderen einen natürlichen Schutz gegen Witterungseinflüsse. Durch clever gewählte Zäsuren wird das Haus auf das benötigte Volumen reduziert und behält dessen ungeachtet die klassische, äußere Form bei. Ein über die gesamte Breite herausgeschnittenes Stück teilt das Ursprungsvolumen in zwei unterschiedlich genutzte Baukörper. Der zwischen dem Wohnhaus und dem Lagerschuppen entstandene Raum fungiert als Hof und familiärer Treffpunkt. Durch die prägnant ausgeklappte Schräge der Rückwand, entsteht hier bei dem Wohngebäude zum einen ein geschützter Eingangsbereich und zum anderen eine optimierte Licht- und Raumsituation im Inneren.
Das Erdgeschoss, in welchem sich neben einem Schlafzimmer der Wohn- und Essbereich befinden, ist über eine Galerie mit der Leseempore unter dem Dach verbunden. Die Treppe nach oben liegt auskragend an der Seite des Baukörpers und dient somit zugleich als Überdachung für die darunter befindliche Außentreppenanlage. Über die mittig angelegte, schmale Erschließung gelangt man in das eingerückte, privatere Sockelgeschoss zu weiteren Zimmern, dem Bad und einer Sauna. Großzügige Fensteröffnungen an der Hangseite der Fassade gewährleisten einen herrlichen Ausblick auf die Berge. Das im Untergeschoss zweigeteilte Fensterband weist erneut auf die clever und präzise gesetzten Ausschnitte des gesamten Ferienhauses hin.
Weitere Informationen:
Fotografin Außenaufnahmen: Brigida González
Fotografin Innenaufnahmen: Rena Lorenz
Fotografin Außenaufnahmen: Brigida González
Fotografin Innenaufnahmen: Rena Lorenz






















