Gegen den Leerstand
Coworking-Büro von Kurosawa Kawara-Ten
Beim Umbau haben die Architekten das Holztragwerk des Hauses freigelegt. © Masato Chiba
Auch in Japan wurde während der Covid-19-Pandemie in vielen Betrieben das Homeoffice eingeführt – ein radikaler Wechsel angesichts der bis dato herrschenden Präsenzkultur im Land. In der Erwartung, dass viele Bewohner Tokios die Metropole verlassen würden, rief die rund 60 km südöstlich gelegene Stadt Ichihara die Ichihara Life and Work Commission ins Leben. Die öffentlich-private Partnerschaft sollte potenziellen Stadtflüchtlingen Wohn- und Arbeitsraum zur Verfügung stellen.


Auch die Fassaden sind mit Holz verkleidet, das aus einem Wald ganz in der Nähe stammt. © Masato Chiba
Coworking-Büro für Stadtflüchtlinge
Im Auftrag der Life and Work Commission kümmert sich seither das Unternehmen Kaitakusha um die Immigrantinnen. Seine Arbeit hat es in einem einst leerstehenden Holzhaus unweit des Bahnhofs Yorokeikoku aufgenommen, das Kurosawa Kawara-Ten zu diesem Zweck umgebaut haben.
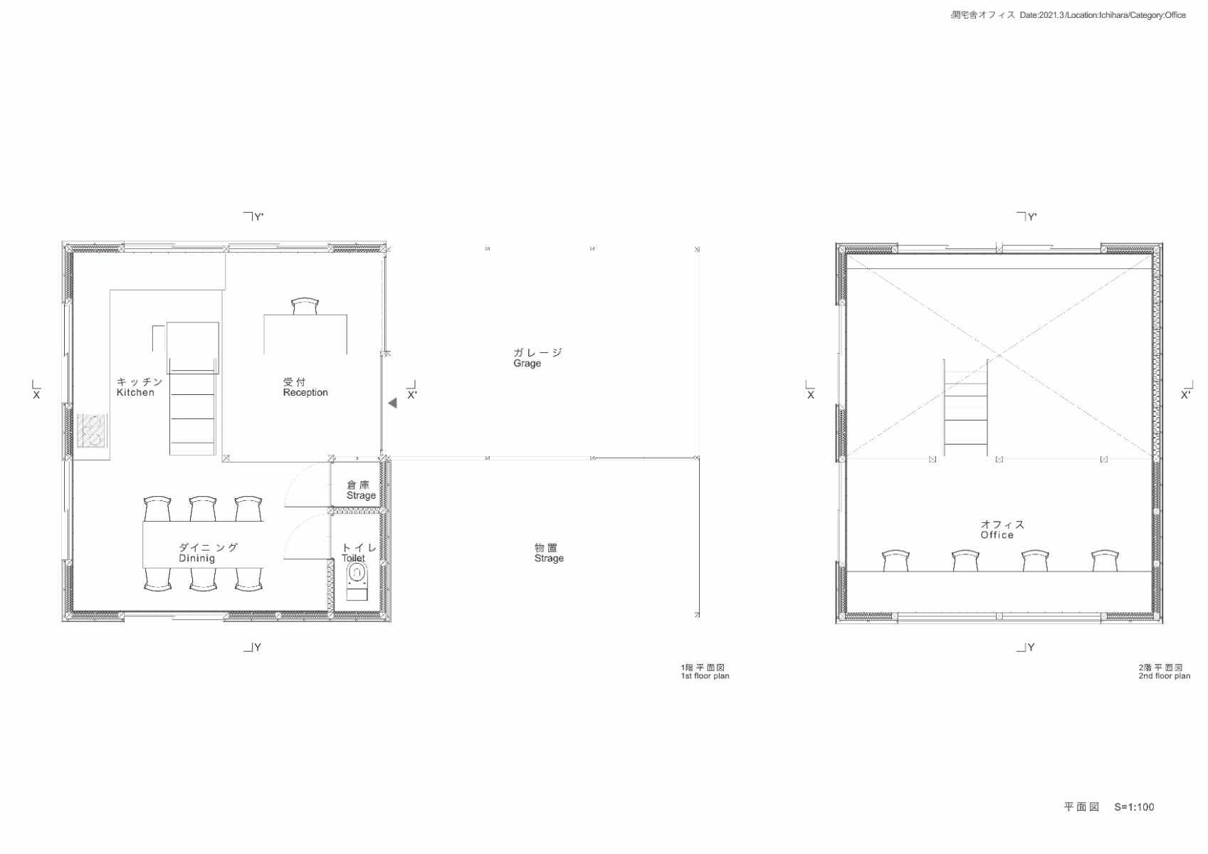
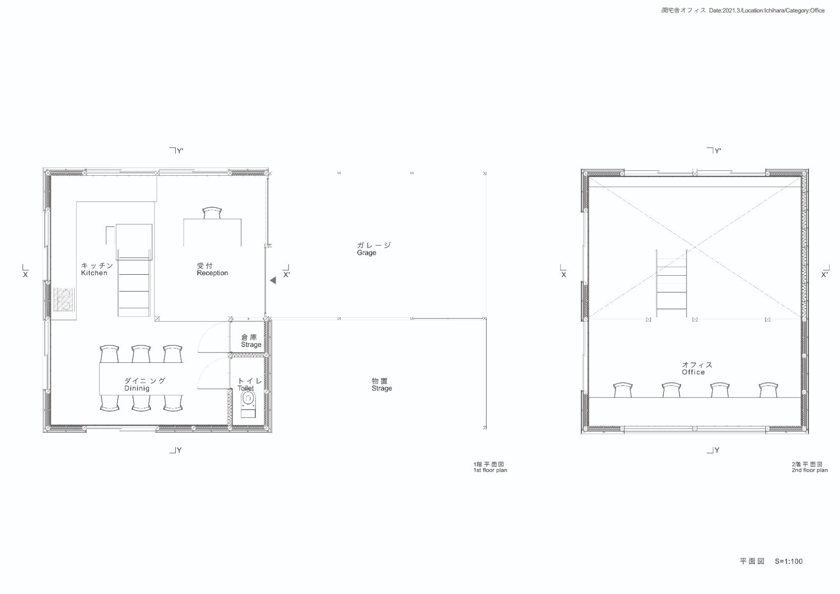
Vor dem Umbau teilten zahlreiche nichttragende Innenwände das Haus in kleine Räume auf, der großartige Dachstuhl war hinter einer Deckenverkleidung verborgen. Die Einbauten entfernten die Architekten größtenteils, die Fundamente mussten stellenweise verstärkt werden.


Ein großes Nordfenster in der Giebelfassade gibt den Blick über die umliegenden Felder frei. © Masato Chiba
Holzbau mit Split-Level-Grundriss
Im Zuge dessen ließen Kurosawa Kawara-Ten einen Teil des Innenraums tiefer abgraben, sodass nun ein Split-Level mit zwei Arbeitsebenen entsteht. Äußerlich haben sich Gebäudeform und -volumen nicht verändert. Im nördlichen Giebelfeld fügten die Architekten eine große, nach Norden ausgerichtete Fensteröffnung ein. Sie belichtet nun den Arbeitstisch auf der oberen Ebene.


In einem Teil des Innenraums ließen die Architekten den Fußboden knapp hüfthoch abgraben. So kann nun auf zwei Ebenen gearbeitet werden. © Masato Chiba
Innenausbau aus heimischen Wäldern
Den Erdaushub ließen die Architekten zu Lehmziegeln für den Empfangstresen weiterverarbeiten. Für die Innen- und Außenverkleidung der Holzkonstruktion verwendeten sie einen bunten Mix an Holzarten – Eiche, Bergkirsche und Magnolie – aus einem Wald ganz in der Nähe des Dorfs. Das Holzhaus-Büro steht nicht nur den Mitarbeiterinnen von Kaitakusha zur Verfügung, sondern auch Immigranten und Einheimischen, die laut Kurosawa Kawara-Ten häufig vorbeikommen.
Architektur: Kurosawa Kawara-Ten
Bauherr: Kaitakusha
Standort: 818-1, Asoubara, Ichihara, Chiba 290-0535 (JP)


















