// Check if the article Layout ?>
Dach-Detail: Moritzburg in Halle
Die Moritzburg in Halle ist eine der eindrucksvollsten spätmittelalterlichen Burganlagen Mitteldeutschlands. Errichtet als prachtvoller Sitz der Magdeburger Erzbischöfe, zerstört im Dreißigjährigen Krieg, hat sie über die Epochen hinweg unterschiedliche Nutzungen und Baustile erfahren. Seit 1904 ist das Städtische Museum für Kunst und Kunstgewerbe im Süd- und Ostflügel untergebracht und seit der Wende alleiniger Nutzer.
Zur Erweiterung der dringend benötigten Ausstellungsfläche wurde die Ruine im Nord- und Westteil der Anlage jetzt wieder überdacht und nutzbar gemacht. Über die historische Bausubstanz legt sich ein mit Aluminium gedeckter, plastisch geformter Dachkörper, der sich unregelmäßig mit Oberlichtern hebt und senkt und damit auf die vorhandene uneinheitliche Bebauung antwortet.
Eine umlaufende Fuge lässt das Dach über den alten Mauern schweben. Der neue Erschließungsturm anstelle der zerstörten Südwestbastion und der vor die Fassade gesetzte Windfang nehmen die Formensprache des Dachs auf. Sie sollen der Kunst Lyonel Feiningers und dem bewegten Lebensweg der Moritzburg Tribut zollen.
Die äußere Bekleidung des Dachaufbaus besteht aus 8 mm dicken kaltgewalzten Aluminiumplatten, bei deren Herstellung eine spezielle Aluminiumlegierung (AlMg4,5Mn) eingesetzt wurde, die sonst im Schiffsbau verwendet wird. Das Material ist auch ohne Oberflächenbeschichtung extrem beständig gegen Korrosion. Die Oberfläche der Platten ist mit grobem Korn (K 40) geschliffen um ihr einen gleichmäßigen, samtigen Charakter ohne allzuviel Reflexion zu verleihen.
Aus statischen Gründen wurde die Dachbekleidung aus Aluminium in 8 mm Materialstärke ausgeführt - die teilweise sehr flachen Dachflächen sind dadurch für Revisionszwecke betretbar. Zugleich bieten die Aluminiumplatten in dieser Dicke einen sehr guten Schutz gegen Blitzeinschläge, die bei Platten unter 7 mm zu Löcher in die Dachbekleidung schlagen könnten.
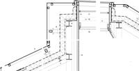
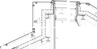
Die Stahlkonstruktion des Dachaufbaus unterlag differenzierten Brandschutzanforderungen. im Bereich der Ausstellungsbox war laut Bauordnung die Feuerwiderstandsklasse F 90 gefordert. Um dies zu erreichen, sind die Stahlprofile der Konstruktion durch Brandschutzbekleidungen der Feuerwiderstandsklasse F 90 geschützt. Dort, wo das Stahltragwerk lediglich die Dachkonstruktion trägt, konnte die geforderte Brandschutzklasse F 30 durch eine entsprechende Brandschutzbeschichtung der Stahlprofile erfüllt werden.
Die Aluminiumplatten der Dachbekleidung sind mit minimalen Fugen von ca. 5 mm auf die Unterkonstruktion aus Stahlrohrprofilen montiert. Jede Platte besitzt nur einen einzigen Befestigungs-Fixpunkt, alle anderen Befestigungspunkte sind mit zum Fixpunkt ausgerichteten Langlöchern versehen. Durch Hinterlegung der Plattenfugen mit Dichtgummistreifen ist die Dachfläche weitgehend Regendicht. Die eigentliche Dichtebene stellt jedoch die darunterliegende EPDM Dichtungsbahn dar.
Bauherr: Stiftung Moritzburg Kunstmuseum des Landes Sachsen Anhalt, Halle
Architekten: Nieto Sobejano Arquitectos, Madrid
Tragwerksplaner: GSE, Ingenieur-Gesellschaft mbH Saar, Enseleit + Partner, Berlin
Standort: Friedemann Bach Platz 5, 06108 Halle (Saale)
Fotos: Ludwig Rauch, Berlin
Modellfotos: Nieto Sobejano Arquitectos
Architekten: Nieto Sobejano Arquitectos, Madrid
Tragwerksplaner: GSE, Ingenieur-Gesellschaft mbH Saar, Enseleit + Partner, Berlin
Standort: Friedemann Bach Platz 5, 06108 Halle (Saale)
Fotos: Ludwig Rauch, Berlin
Modellfotos: Nieto Sobejano Arquitectos
Museumsprogramm unter: www.stiftung-moritzburg.de
