// Check if the article Layout ?>
Dachlandschaften: Einfamilienhaus von Sigurd Larsen in Kopenhagen
Foto: Tia Borgsmidt
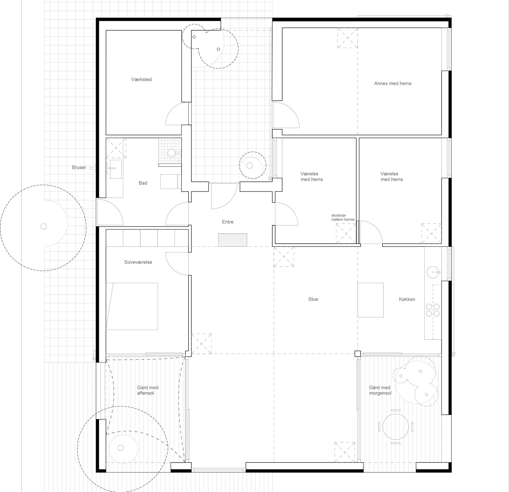
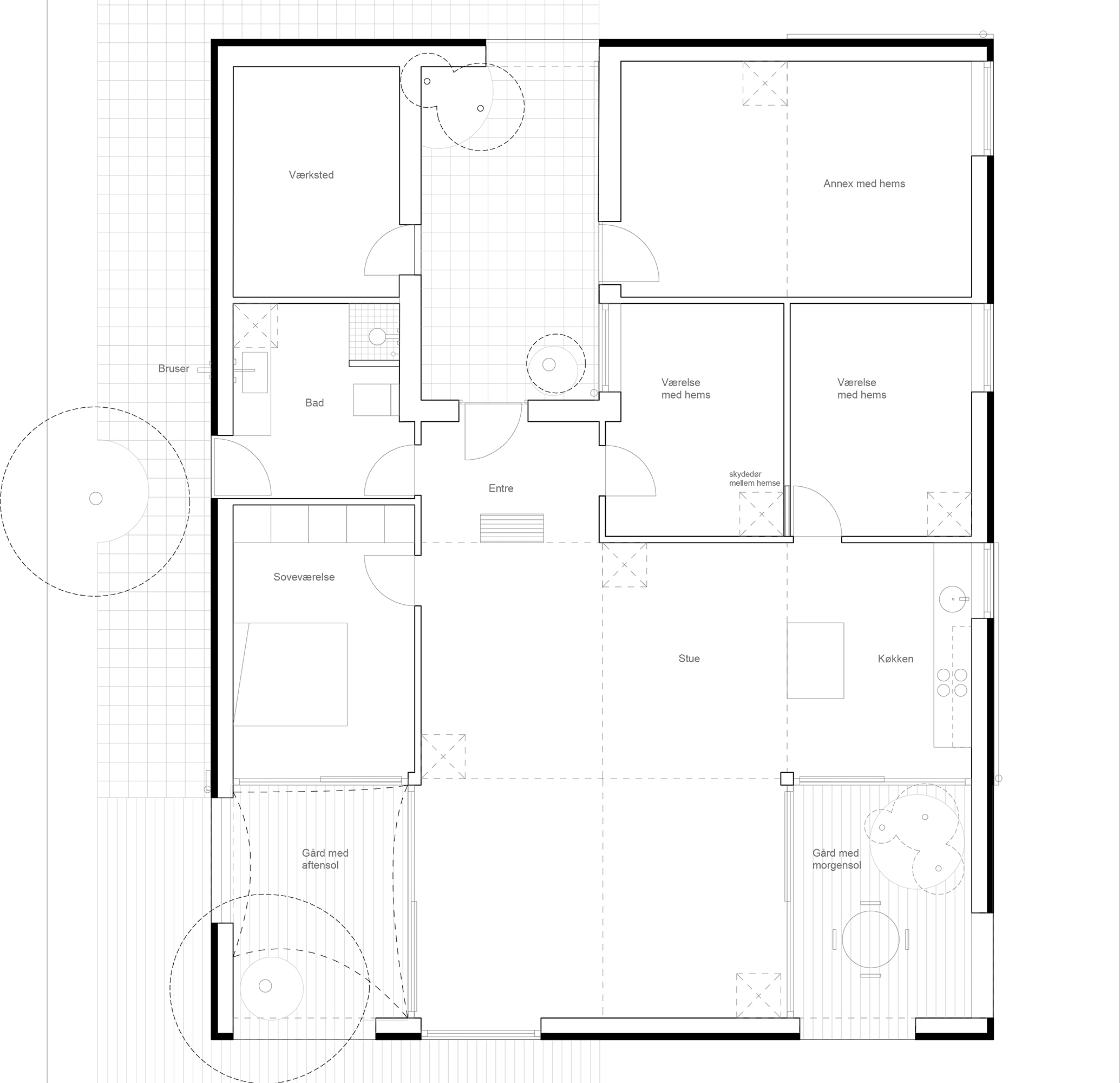
Eine Besonderheit des eingeschossigen Einfamilienhauses von Sigurd Larsen am Stadtrand von Kopenhagen ist die aufregende Dachlandschaft, die sich über das Hausvolumen setzt. Der einfache Kubus mit einem offenen Grundriss orientiert sich hauptsächlich nach innen; das Sonnenlicht wird gefiltert ins Haus hineingeleitet und sorgt für eine differenzierte Raumerfahrung. Die komplexe Dachgeometrie ermöglicht gezielte Lichtakzente in ausgewählten Raumbereichen; drei ebenerdige Terrassenräume bilden zudem eine Zwischenzone zwischen innen und außen.
Einer der Innenhöfe fungiert als Hauseingang und führt ins geräumige Wohnzimmer mit der höchsten Deckenhöhe. Das Elternzimmer, zum Südwesten hin ausgerichtet, ist an einen weiteren Wohnhof angeschlossen; der Wohnküchenbereich zum Südosten hin profitiert dagegen von der Morgensonne. Das Haus, das für die Eltern mit zwei Kindern entwickelt wurde, sollte auf Wunsch der Bauherren flexibel sein, um langfristig, nachdem die Kinder das Haus verlassen haben, benutzbar zu bleiben. Deswegen ist der Kinderbereich separiert angeordnet und kann später als eine eigenständige Hauseinheit mit einem eigenen Eingang genutzt werden.












