Kunstkraftwerkwunder
Das Bergson in München von Stenger2 Architekten
Kunstkraftwerk Bergson: Stenger2 Architekten haben ein ehemaliges Heizkraftwerk in München Aubing umgebaut und erweitert. © Laura Thiesbrummel
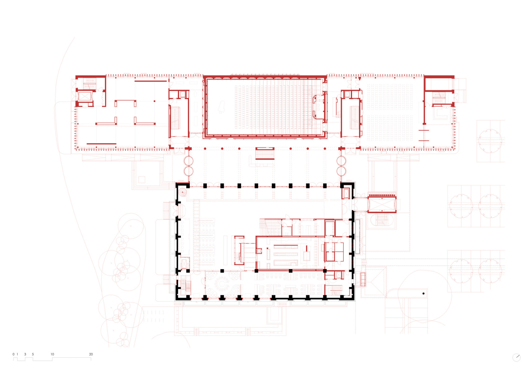
Stenger2 Architekten haben ein ehemaliges Heizkraftwerk in München Aubing umgebaut und signifikant erweitert. Entstanden ist ein erstaunliches Kultur- und Kunstareal mit Konzertsaal. Auf rund 20 000 m² Fläche sind moderne Kunst, Musik, Gastronomie und Events vereint und seit kurzem für die Öffentlichkeit zugänglich. Bauherren des rein privatwirtschaftlich finanzierten Projekts sind die Allguth-Unternehmer Christian und Michael Amberger.


Nach Nordwesten haben die Architekten die Fassade des Bestands aufgebrochen. Über einen gemeinsamen Empfangsbereich schließt der Neubau an. © Laura Thiesbrummel
Ehemals Lost Place
Das Bergson ist schlicht nach der angrenzenden Straße benannt. Ein unbekannter Architekt hatte den gewaltigen Bestandskubus in den 1920er-Jahren geplant, zunächst wohl nur für die Schublade. 1940 startete der Bau doch noch, wurde aber 1942 kriegsbedingt wieder eingestellt. Ab 1955 wurde er provisorisch fertiggestellt und erst durch die Deutsche Bahn als Heizkraftwerk, später durch die Münchner Subkultur sowie Fledermäuse zwischengenutzt. Übrig blieb eine ikonische Ruine, die die Allguth-Brüder 2005 erwarben, und die zwei Jahre später unter Denkmalschutz gestellt wurde. 2015 begannen Stenger2 Architekten mit der Planung des Bergson. Nach dem Rückbau der Hochöfen und der Einrichtung eines Biotops für die Fledermäuse ab 2019 dauerten die Sanierung und Erweiterung des Bestands von 2021 an rund drei Jahre.


Bestandskubus vor dem Umbau, oben links im Bild sind die ehemaligen Kohlesilos zu sehen © Sascha Kletzsch
Industriecharme bleibt
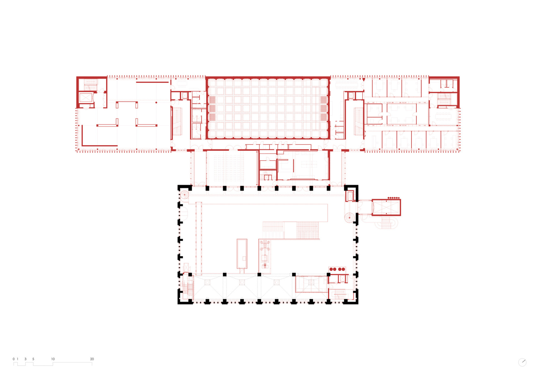
Für Markus Stenger von Stenger2 Architekten gehörte der Erhalt des ursprünglichen Zentralraums als Foyer und dessen aktive Bespielung zu den Leitideen des Entwurfs. Überall im Bergson sind Altes und Neues miteinander verzahnt. Die industrielle Vornutzung ist zumindest in Teilen ablesbar. Dazu passt auch der neue Kran auf der Zwischenebene, der für Wartungs- und Reinigungsarbeiten genutzt wird. Nach Nordwesten haben die Architekten die Fassade des Bestands aufgebrochen. Über einen gemeinsamen Empfangsbereich schließt hier der langgestreckte Neubau an.


Der Kran auf der Zwischenebene des Atriums wird für Wartungs- und Reinigungsarbeiten genutzt, der gläserne Aufzug hinten links führt auch zur Galerie über den Silos. © Laura Thiesbrummel
25 Meter hohes Atrium
Von den rund 14 750 m² Bruttogrundfläche des Bergson nimmt allein das Atrium im Bestandsbau knapp 400 m² ein. Mit einer Deckenhöhe von 25 m lässt es sich vielseitig bespielen. Dazu kommen Eventflächen und Räume für Firmen- und private Feiern, vielfältige Innen- und Außengastronomie, Bars, Biergarten und ein Live-Club. Auf vier Geschossen des Neubaus mit rund 2000 m² Fläche zeigt die neue Dependance der Berliner Galerie König zeitgenössische Kunst. Ein weiteres Highlight ist der Konzertsaal, der am 9. Oktober 2024 eingeweiht wurde.


Von den rund 14 750 m² Bruttogrundfläche des Bergson nimmt allein das Atrium im Bestandsbau knapp 400 m² ein. © Laura Thiesbrummel
Galerie über den Silos
Erhalten geblieben sind die Hülle aus Vollziegeln, die Fenstereinfassungen und Stufensockel oder das Traufgesims aus Nagelfluh. Über den ehemaligen Kohlesilos in Sichtbeton hat ein weiterer Teil der Galerie König mit Wechselausstellungen feine Räume gefunden. Wem die besitzbaren Stufen zu den Zwischengeschossen im Atrium oder zum Galerieraum unter dem Dach zu viel sind, der nimmt den gläsernen Aufzug mit Foyerblick.


Hightech-Akustik: Mit dem Soundsystem Vivace lässt sich der Klang des neuen Konzertsaals an jede Nutzung anpassen. © Laura Thiesbrummel
Konzertsaal mit Hightech-Akustik
Mit 478 Plätzen, einem Hightech-Akustiksystem und rund 70 Raummikrofonen erweist sich (auch) der Konzertsaal als Chamäleon. Sein Klang lässt sich auf Knopfdruck flexibel an die Nutzung anpassen, von Jazz über Pop, von Kammerorchester bis Oper. Nicht nur für Roman Sladek, künstlerischer Leiter des Bergson und Gründer der Big Band Jazzrausch, auch für München ist der Saal eine kleine Sensation.
Architektur und Brandschutz: Stenger2 Architekten und Partner, München
Bauherr: Allguth, München
Betreiberin: Bergson GmbH, München
Standort: München Aubing (DE)
Statik: Ingenieurbüro Aster
Lichtplanung: Bartenbach
Bauakustik, Bauphysik, Raumakustik: Müller-BBM Building Solutions
Innenarchitektur: ArnolD/Werner
Landschaftsarchitektur: Ohnes & Schwahn
Innenausbau: Lindner Group


















