Der Anti-Elfenbeinturm: Architekturhochschule in Aarhus von Adept
Foto: Rasmus Hjortshøj
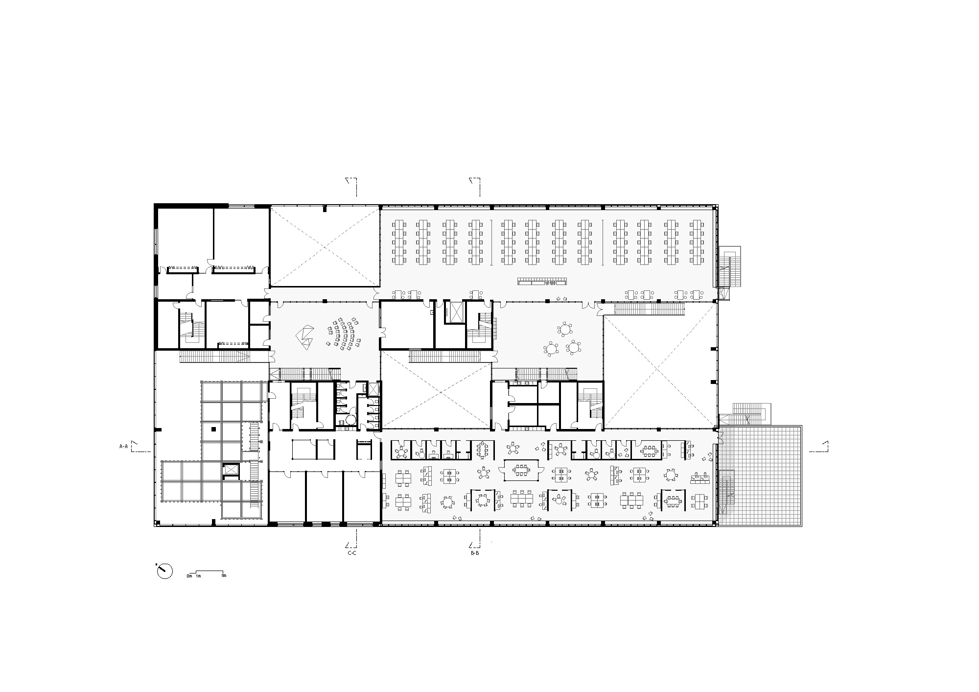
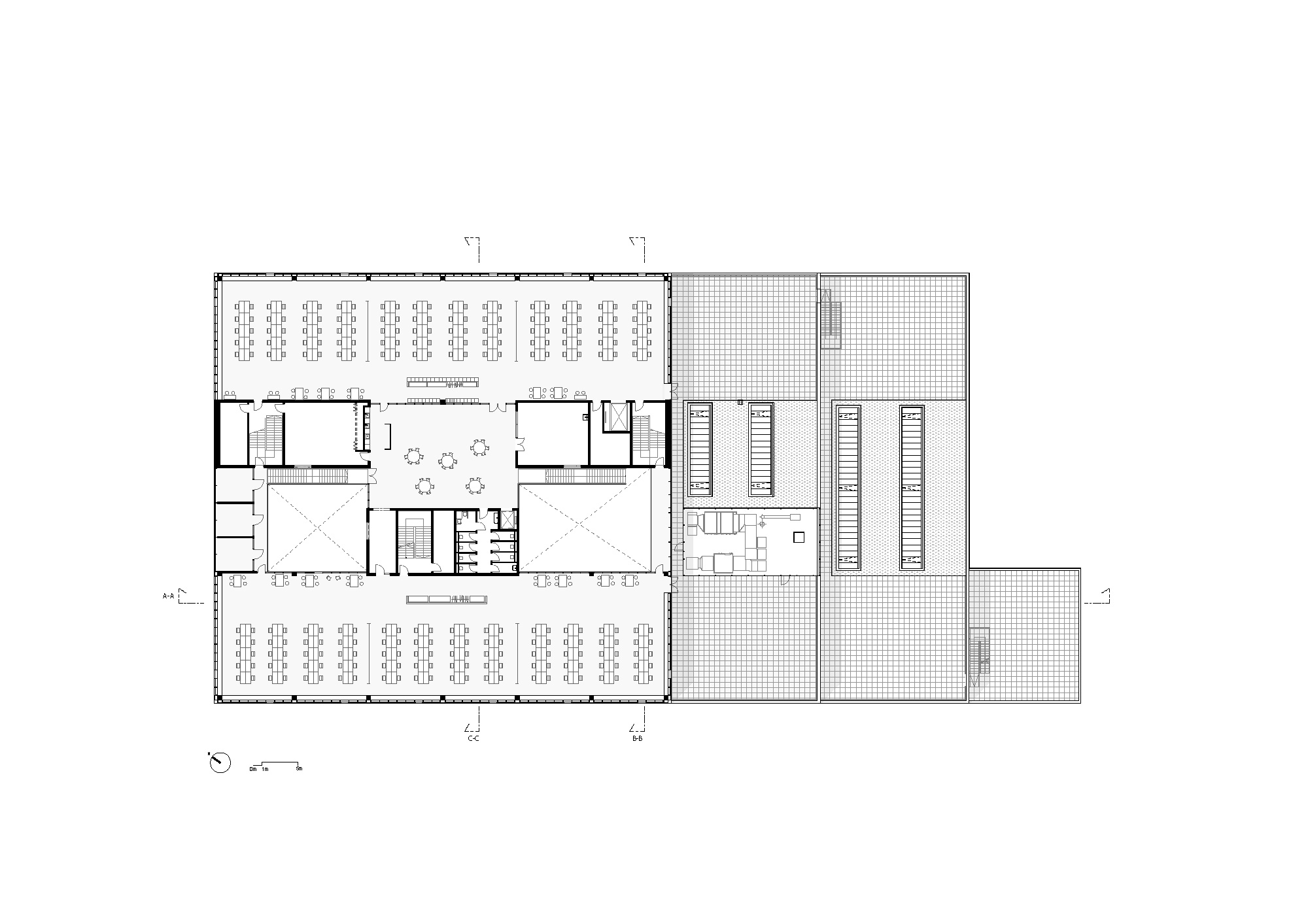
Architektur zu entwerfen, ist manchmal Fließbandarbeit. Wer daran je seine Zweifel hatte, wird in der neuen Architekturhochschule im dänischen Aarhus schnell eines Besseren belehrt. Industriehallenatmosphäre durchweht den Neubau des Architekturbüros Adept mit seinem offen liegenden, weit gespannten Stahlbetonskelett, Glaswände lassen Querblicke zwischen den Räumen zu und viel Licht in die Innenräume. Fast wirkt das Gebäude auf einem Güterbahnhofsareal westlich der Innenstadt wie ein adaptierter Industriebau, doch es ist tatsächlich die erste neu errichtete Architekturhochschule in der Geschichte des Landes. Die örtliche Architekturfakultät entstand 1965 zunächst in einem alten Kaufmannshaus weiter im Nordosten der Stadt und breitete sich in der Folgezeit auf insgesamt zehn Standorte in Aarhus aus.
Die Hochschule will mit dem Neubau nicht nur Synergien im Inneren schaffen, sondern auch die Öffentlichkeit wesentlich stärker an der Architekturausbildung teilhaben lassen. Fertiggestellt wurde das Gebäude zwei Monate früher als eigentlich geplant – nicht zuletzt dank eines Prozesses, den die staatliche Liegenschaftsverwaltung „New Partnering“ getauft hat und der bei diesem Projekt seine Pilotphase erlebte. Dabei wird vieles auf den Kopf gestellt, was traditionelle Ausschreibungsverfahren streitanfällig und teuer macht: Die Bauunternehmen werden nicht nach dem Billigstanbieter-Prinzip ausgewählt, sondern unter anderem nach der Qualifikation ihrer Mitarbeiter. Sie stoßen früher zum Planungsteam als sonst üblich, und die Bezahlung aller Beteiligten hängt weniger von der Bausumme als vielmehr von der Kosten- und Termintreue sowie einem mängelfreien Ergebnis ab.
Einen Blickfang in der Architekturfakultät hat auch das Büro Praksis Arkitekter aus Svendborg beigesteuert: Für die große Halle an der Nordwestecke des Gebäudes planten sie einen mehrgeschossigen Einbau aus Furnierschichtholz, der die Fakultätsbibliothek samt ihren Lese- und Arbeitsplätzen aufnimmt. Die Bücherregale haben bereits einen Nutzungszyklus hinter sich: Sie stammen aus dem Archiv des Architekten Hack Kampmann, der im Raum Aarhus zahlreiche Projekte entworfen hat.
Weitere Informationen
Weitere Planungsbeteiligte: Steensen Varming, Lendager Arktekter, Etos Ingeniører
Kunst am Bau: Lea Porsager
Bauunternehmen: A. Enggaard A/S



































