Der blaue Wal: Schulbibliothek mit Theater bei Shanghai
Foto: Jonathan Leijonhufvud
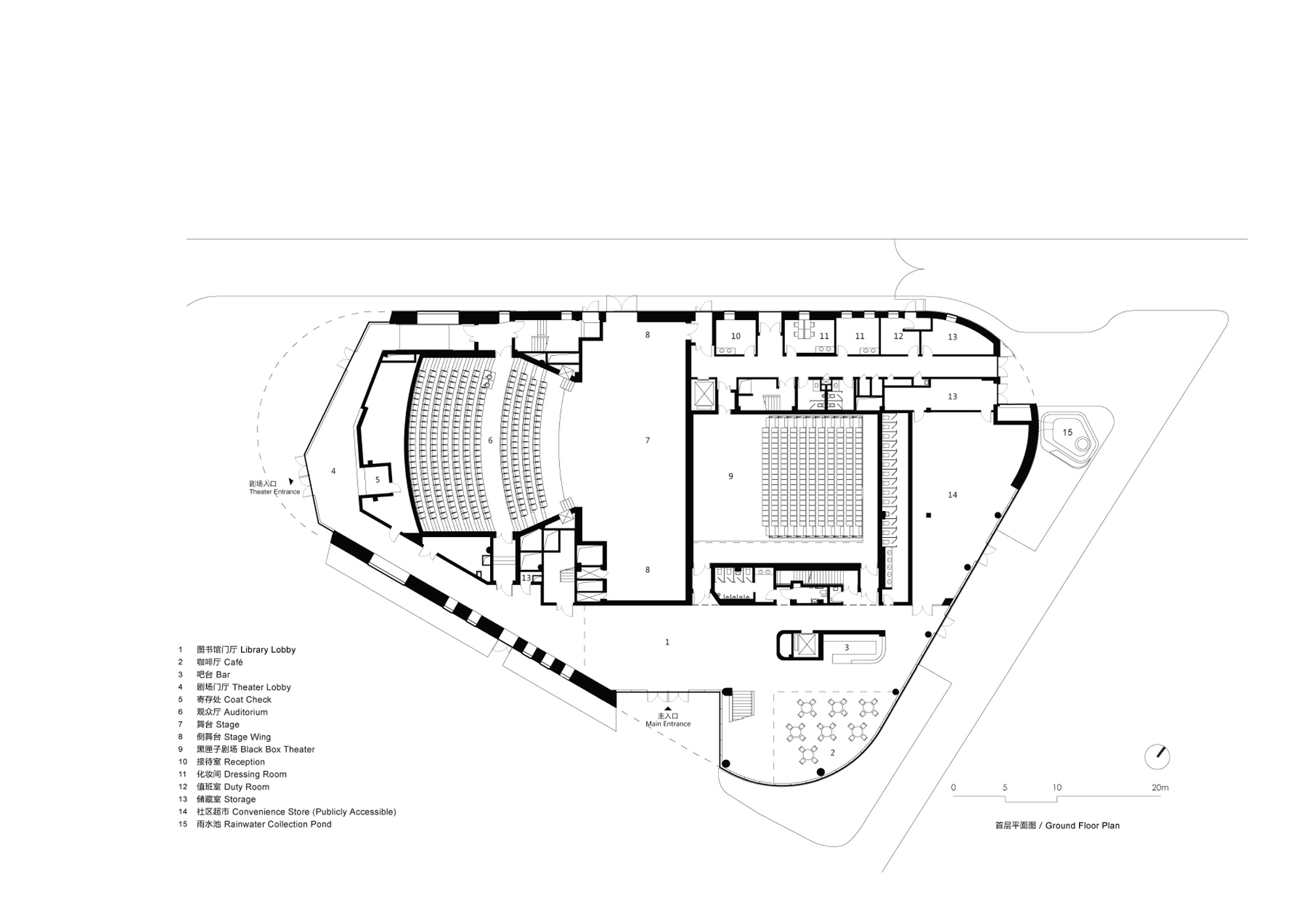
Keinen riesigen Schulkomplex, sondern aufgelockerte Gebäudegruppen im Grünen – so lautete das Leitbild von Open Architecture aus Beijing für den neuen Campus der Qinghu Pinghe International School. Etwa 2000 Schüler zwischen 3 und 18 Jahren werden hier mehrsprachig erzogen. Nun haben die Architekten auch das kulturelle Herzstück des Campus auf Areal 60 km westlich des Stadtzentrums von Shanghai fertiggestellt. Das „Bibliotheater“ vereint unter seinem ultramarinblauen, von zahlreichen Lichtkuppeln durchbrochenen Dach zwei Theatersäle sowie die Schulbibliothek. Letztere befindet sich, reich mit Tageslicht versorgt, auf der oberen Ebene und gliedert sich in mehrere, terrassenförmig ansteigende Bereiche für die unterschiedlichen Altersgruppen. Die beiden Theatersäle liegen einander gegenüber im Erdgeschoss. Auf dem Dach des kleineren der beiden legten die Architekten eine Dachterrasse für die Schüler an. Der Haupteingang führt unter dem weit emporragenden, ebenfalls ganz in Blau gehaltenen Bug des Gebäudes ins Innere. An einzelnen Raumdecken, in Fensterlaibungen und in den Polsterbezügen der Theatersessel „sickert“ die Fassadenfarbe stellenweise auch in die Innenräume durch. Ansonsten dominieren hier helles Holz und weißer Gipskarton.
Die Gesamtform des Gebäudes, die wahlweise an einen Walfisch oder einen Schiffsrumpf erinnert, ist möglicherweise von den zahlreichen Kanälen und Seen der Landschaft ringsum inspiriert. Vor allem im Lesesaal zeigt der Neubau aber auch gewisse Anklänge an die Universitätsbibliothek von Mecanoo in Delft. Dazu zählen die hufeisenförmige, den Raum einfassende Regalwand und der große zentrale Okulus in der Raummitte, der Tageslicht hereinbringt.
So wichtig es für den Schulbetrieb ist, liegt das Bibilotheater doch eher am Rand des Campus. Die Architekten hoffen daher, dass es sich auch außerhalb der Schulstunden zu einem kulturellen Anziehungspunkt für die Bewohner der benachbarten Viertel entwickeln wird.
Weitere Informationen:
Partnerarchitekten vor Ort: Shanghai Yuangou Architects and Consultants
TGA-, Fassaden- und Tragwerksplanung: CABR Technology
Pinghe Bibliotheater from OPEN Architecture on Vimeo.



















