Die Fassade als Hauptdarsteller: David Brownlow Theatre in Newbury
Foto: Nick Dearden
Theater ist Illusionskunst– und so tritt die Konstruktion im Theaterbau üblicherweise in den Hintergrund. In klassischen Bauwerken des Typus verschwindet sie hinter Holz- und Stuckverkleidungen, in zeitgenössischen oft hinter einem schwarzen Farbanstrich. Das Scheinwerferlicht richtet sich auf die Bühne, nicht auf den Bau selbst.
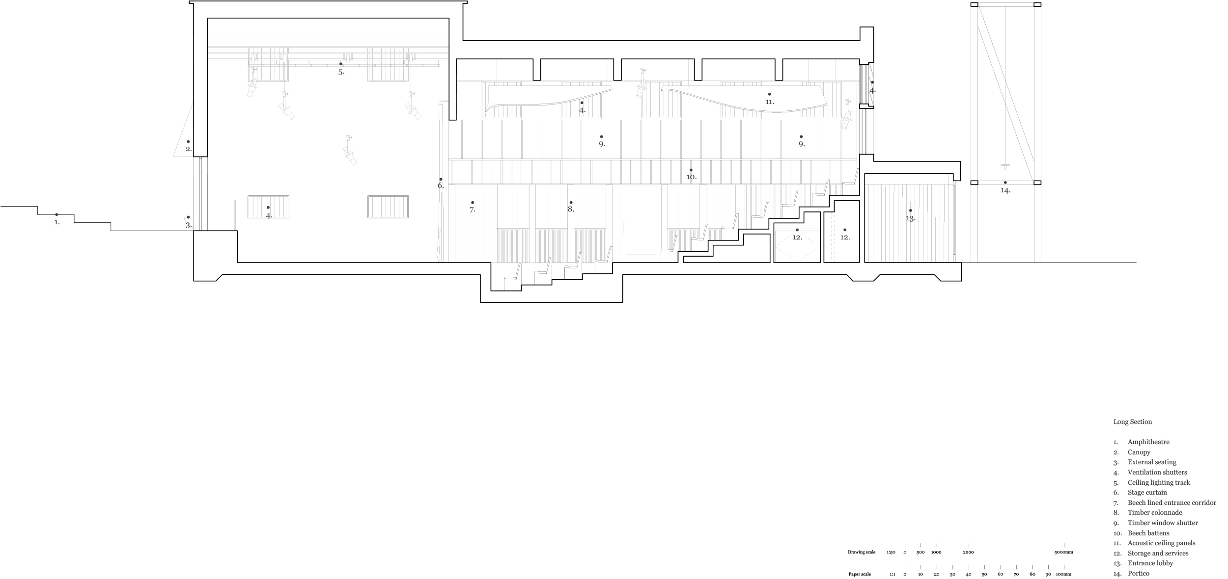
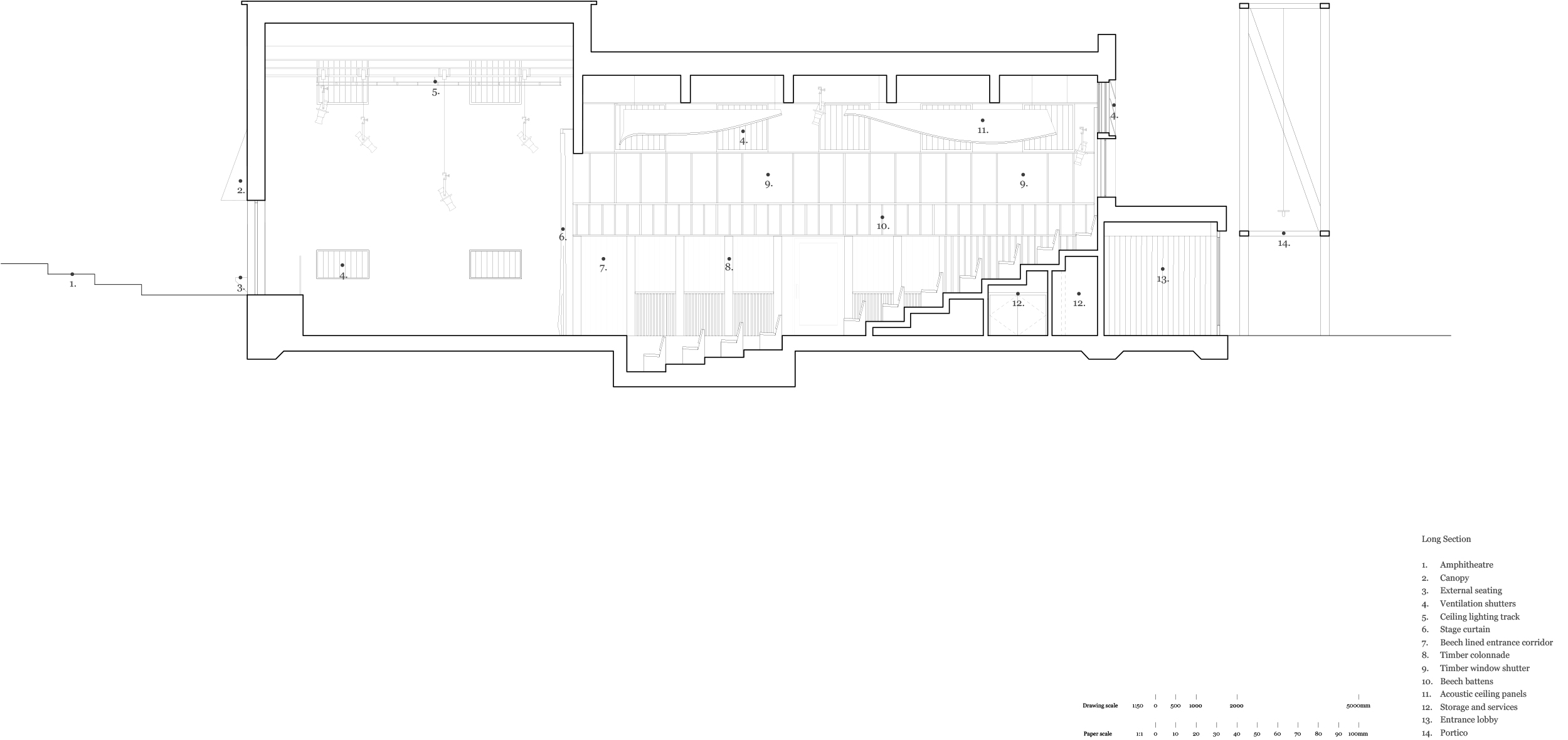
Eine andere Strategie verfolgten Jonathan Tuckey und sein Büro für das Schultheater, das sie für die Horris Hill School im südenglischen Newbury entworfen haben. Etwa 130 Schüler – alles Jungen – zwischen 4 und 13 Jahren besuchen die Privatschule, die einen 34 Hektar großen Schulcampus ihr Eigen nennt. Das David Brownlow Theatre – so benannt nach seinem Mäzen, einem Unternehmer und ehemaligen Vizepräsidenten der britischen Tories – steht direkt an der Zufahrt zum Campus und ergänzt die dortigen Ziegelbauten. An sie lehnt sich das Theater farblich, aber nicht in Form und Konstruktion an. Mit seinem flachen Giebeldach und der reich gegliederten Fassadenverkleidung aus zementgebundenen Spanplatten erinnert es eher an einen landwirtschaftlichen Nutzbau. Eine überhohe Holzpergola inszeniert den Eingang auf der Nordseite und dient zugleich als Traggerüst für die Werbebanner, mit denen Vorführungen angekündigt werden. Der Saal im Inneren des Neubaus hat Platz für 160 Zuschauer und auf der Gebäuderückseite im Süden legten die Architekten eine Art Freilufttheater mit Außenbühne an.
Das Tragwerk des Neubaus besteht im Wesentlichen aus Brettsperrholz. Verglichen mit einem konventionellen Mauerwerksbau fällt die CO2-Bilanz der Konstruktion so um 40 Tonnen günstiger aus als bei einem Mauerwerksbau, rechnen die Architekten vor. Die Holzwerkstoffplatten für die Fassade wurden bereits vorab in der Werkstatt auf Maß zugeschnitten und dann wie die Fronten einer Schrankwand am Rohbau montiert. Innen bleibt das Holztragwerk weitgehend sichtbar, seine Oberfläche wird jedoch durch aufgesetzte Buchenholzleisten in unterschiedlichen Abständen rhythmisiert. Graue Akustikpaneele in einigen Wandgefachen dämpfen den Schall im Auditorium. Nach oben begrenzt eine abgehängte, gewölbte Akustikdecke den Saal. Ihre tiefblaue Farbe soll nach dem Willen der Architekten an den Nachthimmel erinnern. Ein Fußbodenbelag aus den gleichen Holzwerkstoffplatten wie an der Fassade, hier jedoch in Schwarz, komplettiert die Materialpalette im Innenraum.
Weitere Informationen:
TGA-Planung: Skelly and Couch Ltd
Theaterplanung: Charcoalblue
Bauunternehmen: Vale Southern Construction































