Die Häuser des Gouverneurs: Wohnanlage in Göteborg
Foto: Åke Eson Lindman
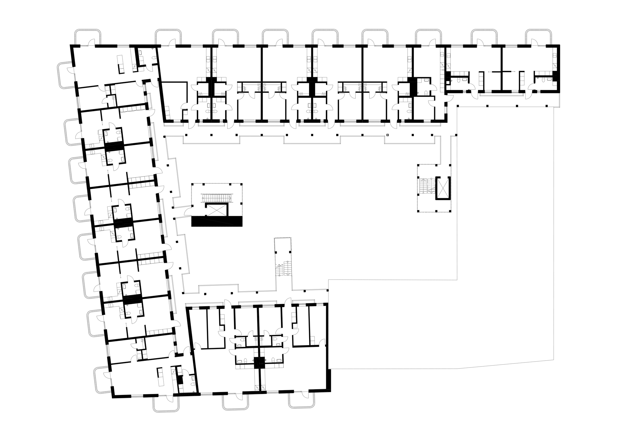
Mit der Wohnanlage Qvillestaden haben Bornstein Lyckefors einen genuin Göteborger Bautypus neu interpretiert. Die sogenannten Landshövdingehus (wörtlich: Landeshauptmanns- oder Gouverneurshäuser), die das alte Hafenarbeiterviertel an der Herkulesgatan prägen, bilden eine drei- bis vierstöckige Blockrandbebauung mit massiven Erdgeschossen und Obergeschossen in Holzbauweise. Ursprünglich stammt der Gebäudetyp vom Anfang des 20. Jahrhunderts, die Holzverschalung der Fassaden ist an vielen der Häuser inzwischen Zinkblech in unterschiedlichen Farbtönen gewichen.
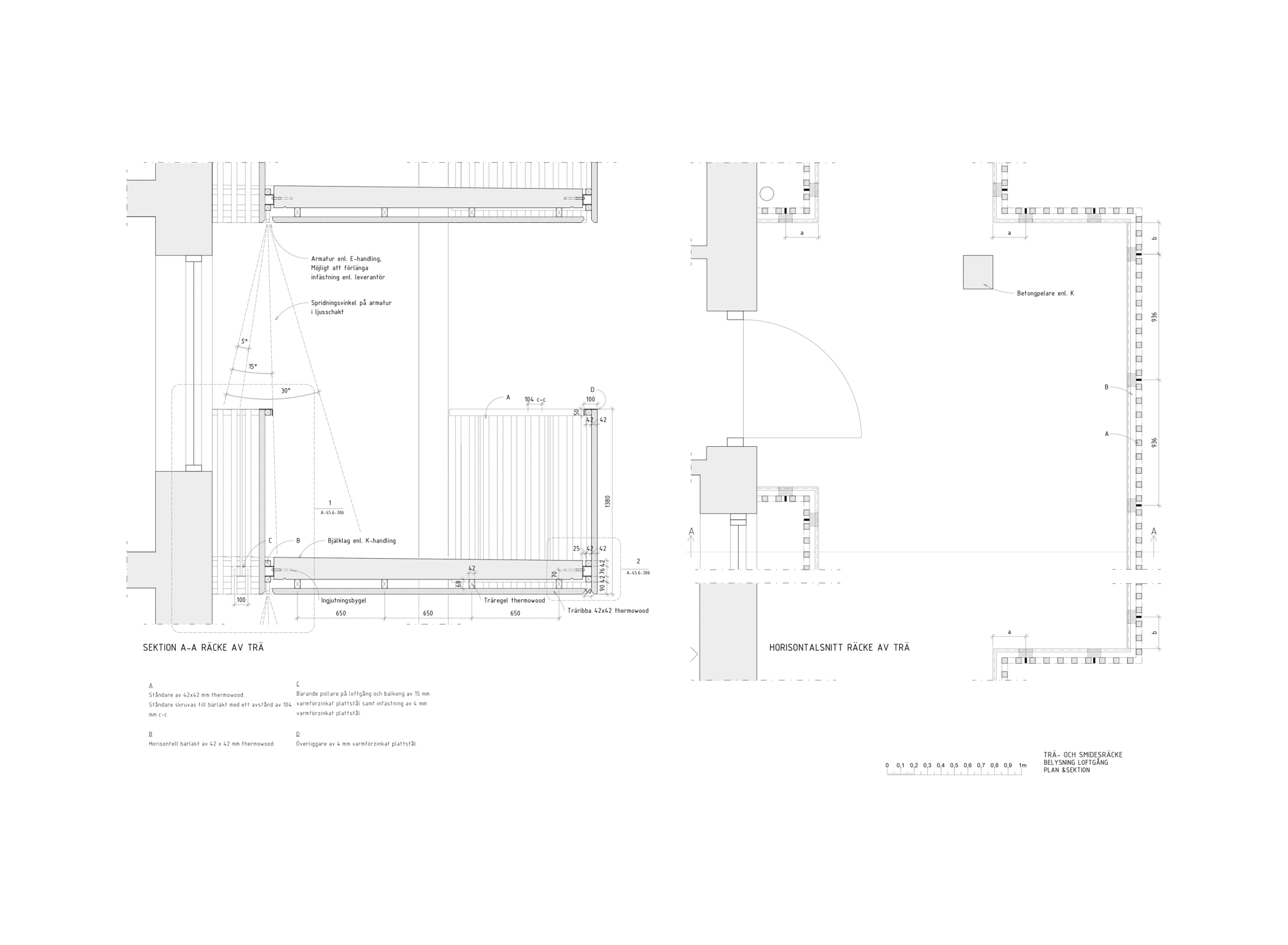
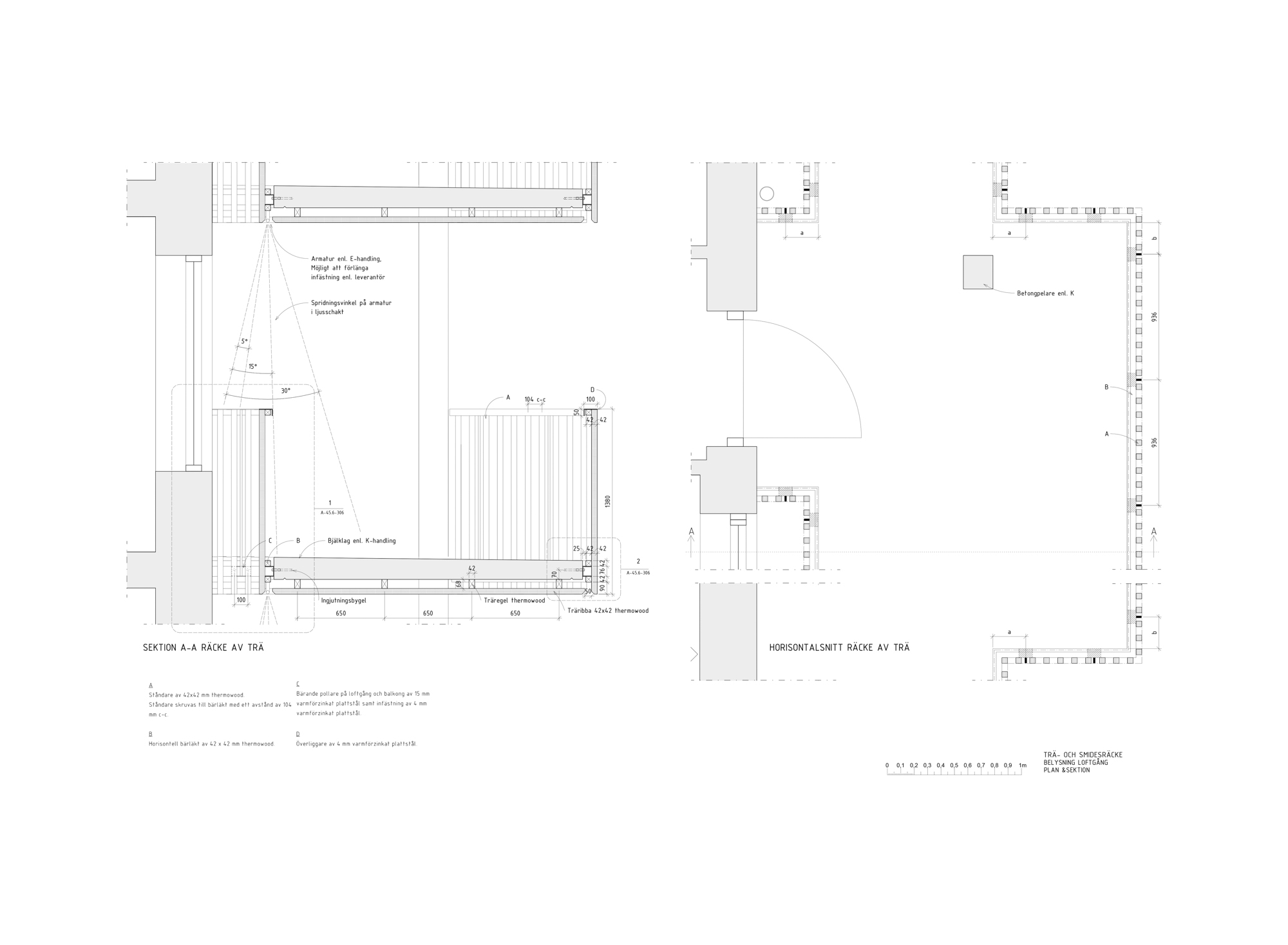
Qvillestaden ist zwei Geschosse höher als die historischen Nachbarn, folgt deren Beispiel sonst aber in vielen Details: Das Erdgeschoss besteht aufgrund der Nähe zum Hafen aus wasserdichtem Beton mit Klinkervormauerung, die regelmäßig gegliederten Obergeschosse aus einer Holzständerkonstruktion mit Zinkblechverkleidung in Dunkelrot, Anthrazit und Schieferfarbton. Die Wohnungen öffnen sich mit Balkonen zur Straße, deren Detailgestaltung ebenfalls von Hausabschnitt zu Hausabschnitt subtil variiert. Insgesamt umfasst die Wohnanlage 92 Wohnungen von 1,5 bis 4 Zimmern Größe, darunter einige mehrgeschossige Maisonettes. Ganz anders dagegen der Innenhof, der ein Geschoss über dem Straßenniveau liegt, damit darunter eine ebenerdige Parkgarage sowie Lager- und Technikräume Platz haben. Hier sieht man ringsum vor allem Holz. Die Fassaden, außen liegenden Erschließungstreppen und die Brüstungen der breiten Laubengänge sind mit thermisch behandelten Kiefernholzlatten verkleidet. Zahlreiche Vor- und Rücksprünge geben den Fassaden ein deutlich bewegteres Bild als den strengen Straßenansichten.
Weitere Informationen:
Landschaftsarchitektur: Sydväst



















