Digitale Traditionspflege: Weingut in Tain-l’Hermitage
Foto: Dan Glasser
Die 6000-Einwohner-Gemeinde Tain-l’Hermitage 80 Kilometer südlich von Lyon hat eine jahrhundertealte Weinbautradition, der es auch den Namenszusatz „l’Hermitage“ verdankt. Im Auftrag des örtlichen Winzers Delas Frères hat der in Schweden gebürtige, mittlerweile in Paris arbeitende Architekt Carl Fredrik Svenstedt jetzt ein heruntergekommenes Landgut mitten im Ortszentrum saniert und um zwei Neubauten erweitert.
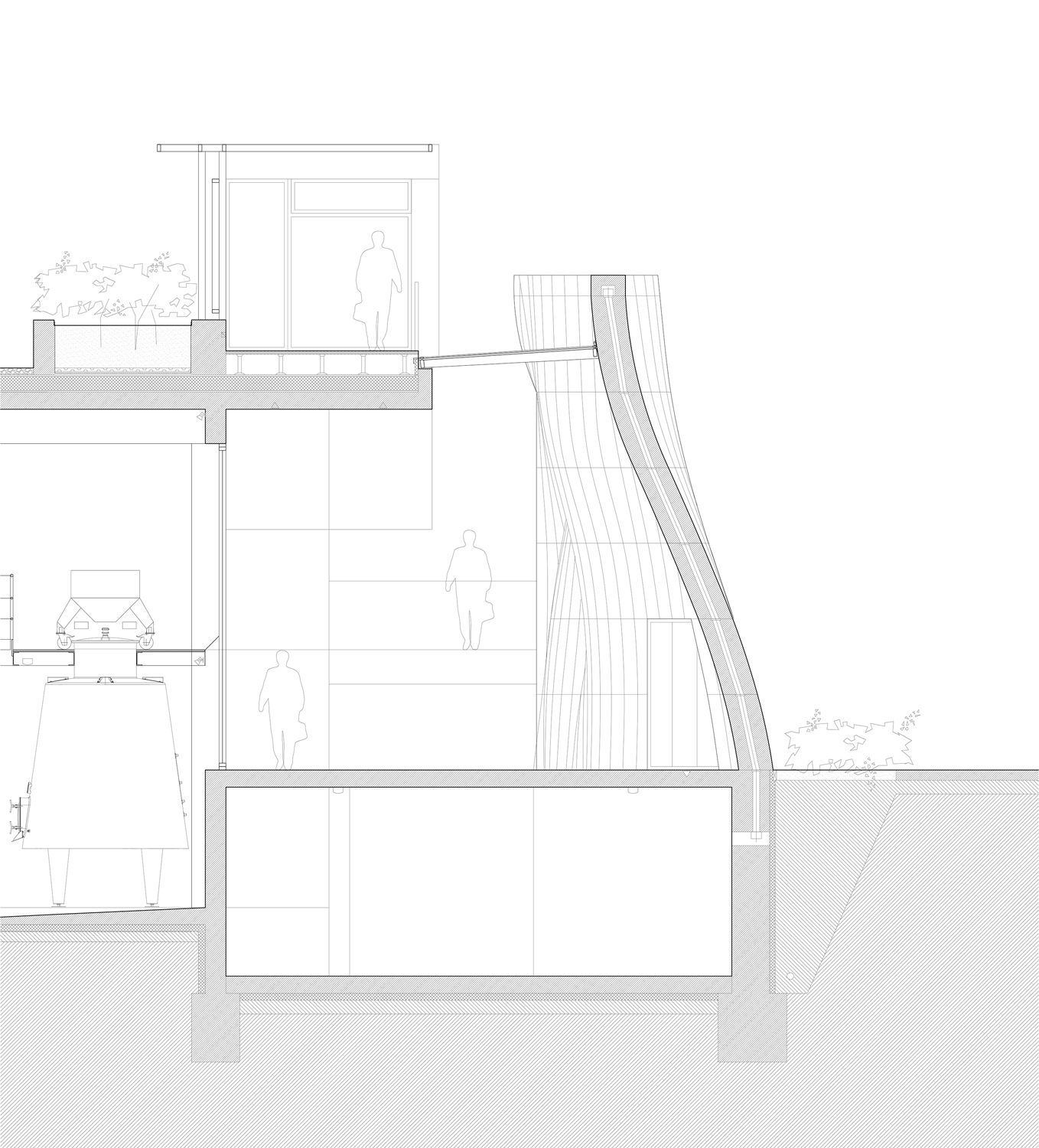
Der Altbau dient fortan als Gästehaus mit Restaurant und Probierstube. An der Straße flankiert ihn ein eingeschossiger Weinladen mit Eingangsfront aus Naturstein. Aus dem gleichen Material ließ Svenstedt auch das eigentliche Schaustück des Ensembles herstellen – die bis zu acht Meter hohe, geschlossene Fassade des Tank- und Faßlagers im rückwärtigen Teil des Grundstücks. Wie ein Bühnenvorhang onduliert die tragende Wand entlang der 80 m Gebäudelänge und lässt vergessen, dass sie aus 55 cm dicken und 2 m hohen Blöcken gefügt ist. Auf der Innenseite der Wand verbinden Rampen die Ebenen des Gebäudes miteinander und mit der Dachterrasse, ein langgestrecktes Oberlicht taucht den Naturstein in dramatisches Streiflicht.
Hergestellt ist die bis zu 8 m hohe Fassade aus Estaillade-Kalkstein, der wenige Kilometer flussabwärts gebrochen wurde. Verarbeitet hat diesen ein kleiner Handwerksbetrieb aus der Nähe mit digitalen Fräswerkzeugen. Die Blöcke sind mit eingelegten Spannkabeln im Fundament verankert; weitere Edelstahlkabel verbinden sie von außen unsichtbar in der Horizontalen. Nach Schätzung des Architekten hätte eine Betonwand mit ähnlicher – und für die Weinlagerung wichtiger - thermischer Speicherfähigkeit verglichen mit der Kalksteinwand ein Vielfaches an grauer Energie erfordert.
Weitere Informationen:
Landschaftsarchitekten: Christophe Ponceau, Melanie Drevet
TGA-Planung: MAYA
Planung Natursteinwand: Atelier Graindorge, Stono





























