Digitaler Expressionismus: Bricks Berlin von Graft
Foto: Bttr GmbH
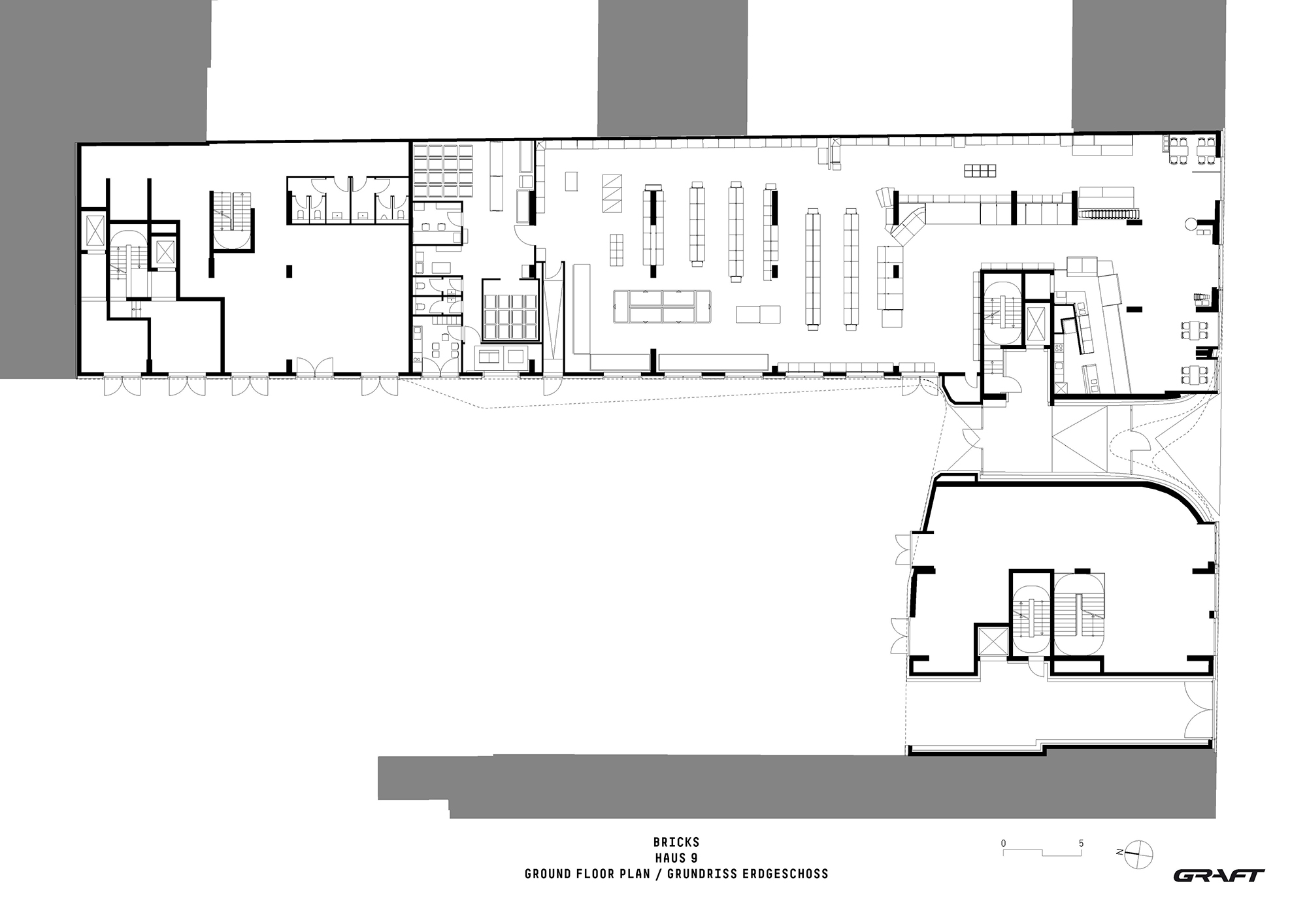
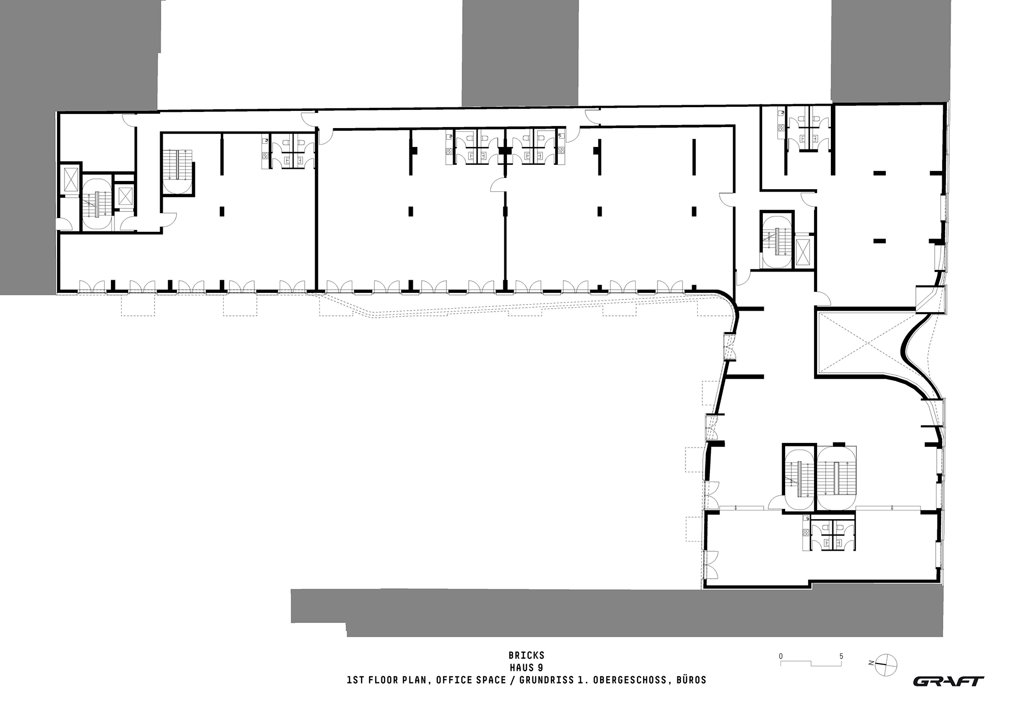
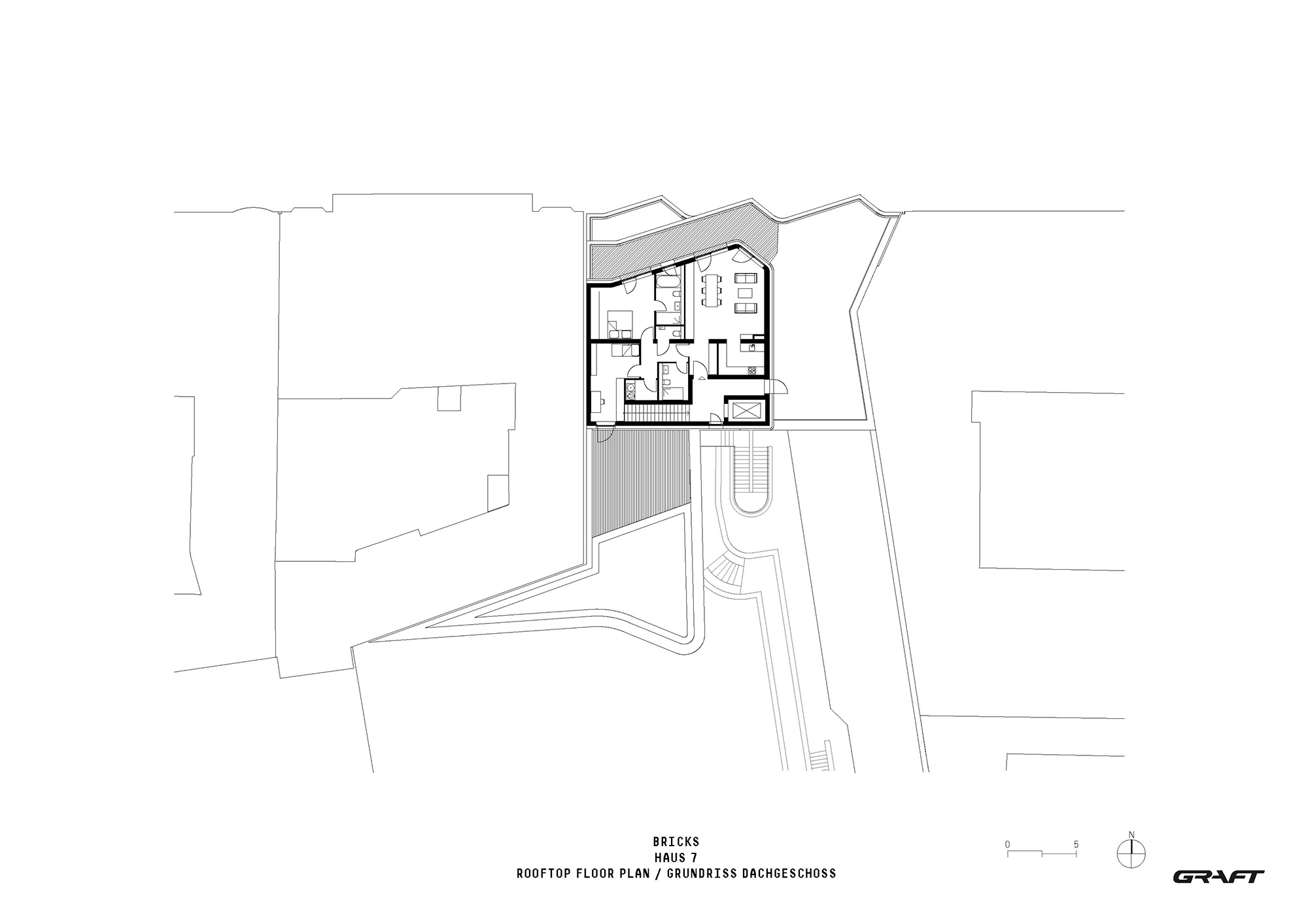
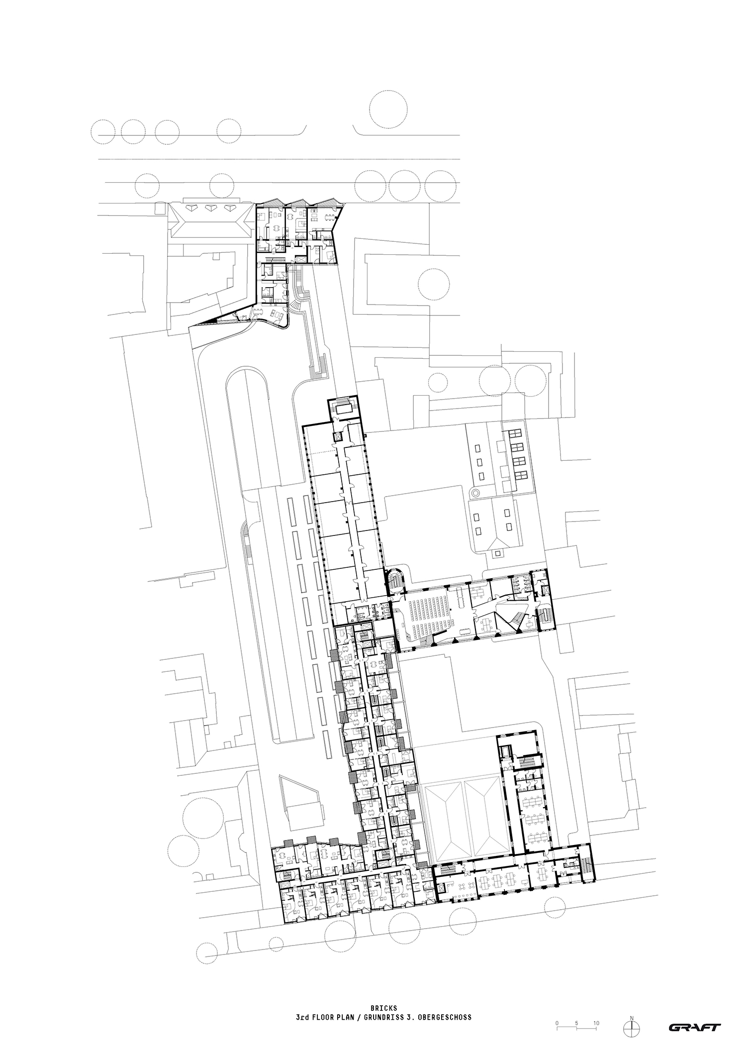
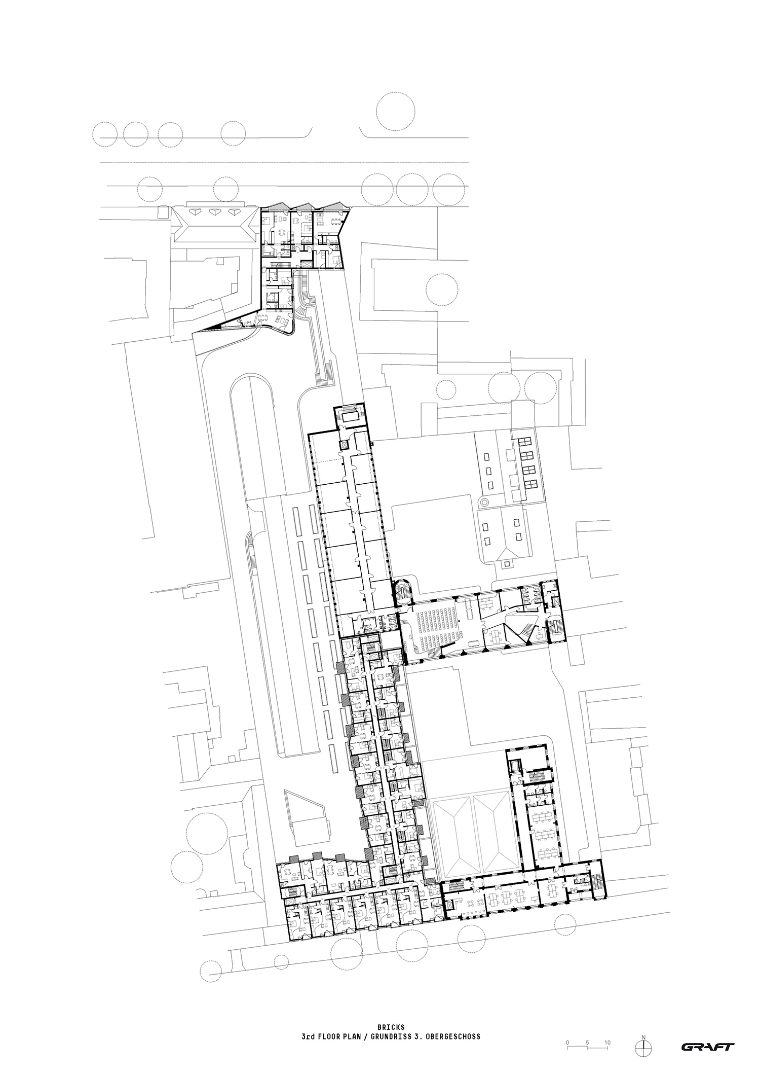
12000 Quadratmeter Grundfläche, die sich über zwei Postleitzahlenbezirke erstrecken – der von Graft geplante Gebäudekomplex „Bricks Berlin“ gehört zu den größten Bauvorhaben, die in den letzten Jahren im Berliner Bezirk Schöneberg realisiert wurden. 2014 hatte der Immobilienentwickler Trockland das Areal des ehemaligen Schöneberger Postamts mit seinen zwischen 1901 und 1932 entstandenen Gebäuden erworben. Seither hat Graft die historischen Ziegelbauten für die Nutzung als Büro- und Hochschulstandort revitalisiert. Zuletzt sind auch zwei Neubauten hinzugekommen, die gleichsam als Torhäuser in den Blockinnenraum fungieren. Der größere, L-förmige an der Hauptstraße 27-29 enthält einen Biosupermarkt und Büroflächen im Erdgeschoss und 1. Obergeschoss sowie 107 Mietwohnungen zwischen 33 und 152 m2 Größe auf den darüber liegenden Ebenen. Große, von markanten goldgelben Blechverwahrungen gerahmte Quadratfenster stülpen sich aus der Ziegelfassade vor, die sich rund um den Toreingang höhlenartig zurückwölbt. Parametrik trifft Maurerhandwerk – so ließe sich die Architektur diese Kopfbaus auf den Punkt bringen.
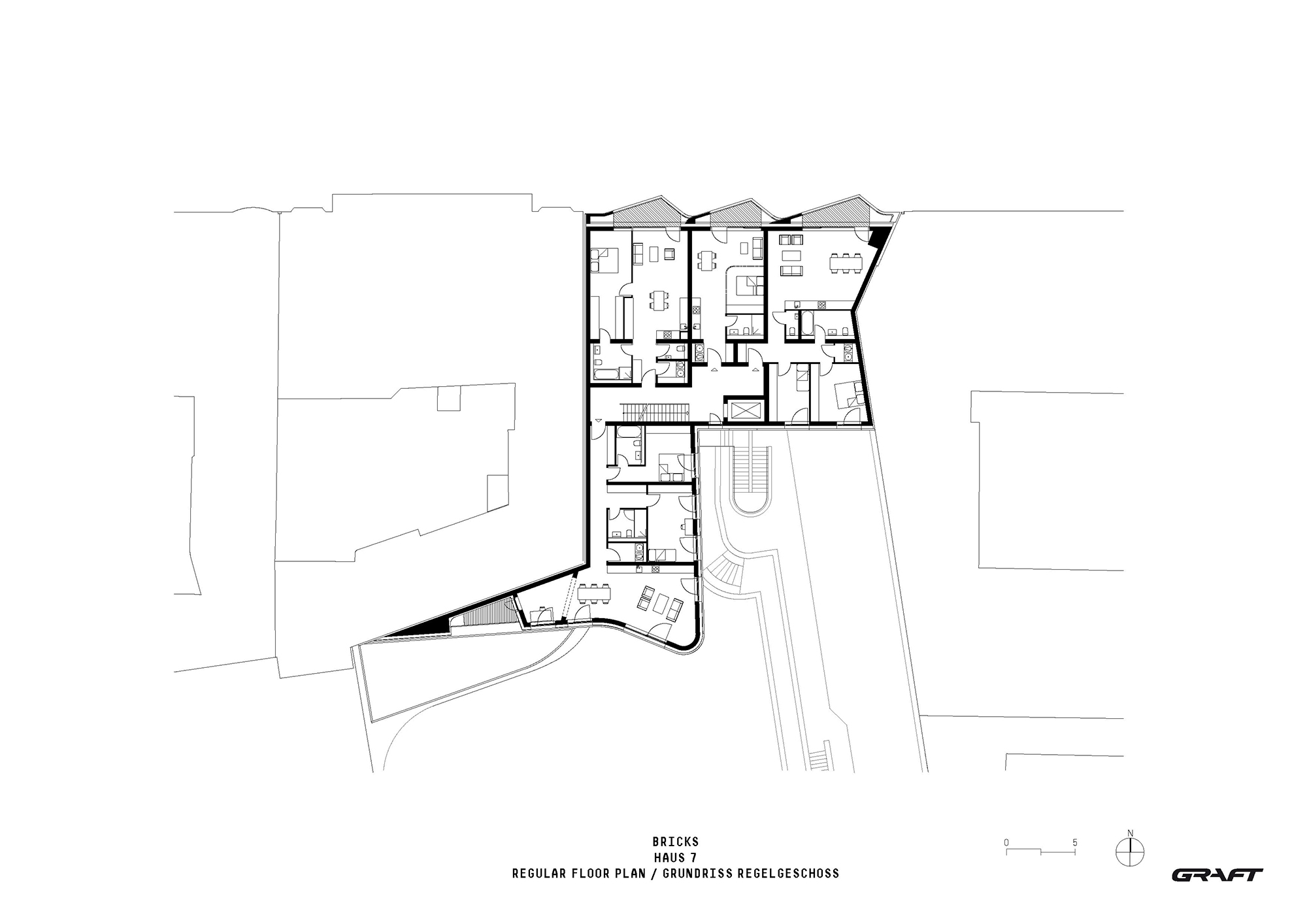
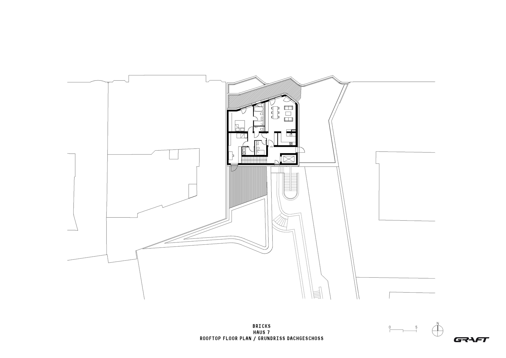
Das gegenüber liegende, kleinere der beiden Torhäuser zeigt mit seinen wellenförmigen Fassaden und den bandartigen, aus Ziegeln gemauerten Loggienbrüstungen noch weitaus deutlichere Anklänge an die Entstehungszeit des Postgeländes. Diese Anleihe machten die Architekten aus gutem Grund, um das alte, erhalten gebliebene Pförtnerhäuschen in der Tordurchfahrt gestalterisch schlüssig in den Neubau integrieren zu können. Auf die Obergeschosse, die größtenteils auf Stahlbetonstützen über dem Bestand aufgeständert sind, verteilen sich bei diesem Gebäude insgesamt 20 Wohnungen.
Weitere Informationen:
Landschaftsarchitektur: Planungsbüro Haan
Projektmanagement und Objektüberwachung: IKR Kuschel
TGA-Planung: Deutsche Energie-Consult
Bauphysik: Müller-BBM
BRICKS Berlin Schoeneberg from GRAFT on Vimeo.


























