// Check if the article Layout ?>
Doppelte Wirkung: Kita und Krippe in Vétroz
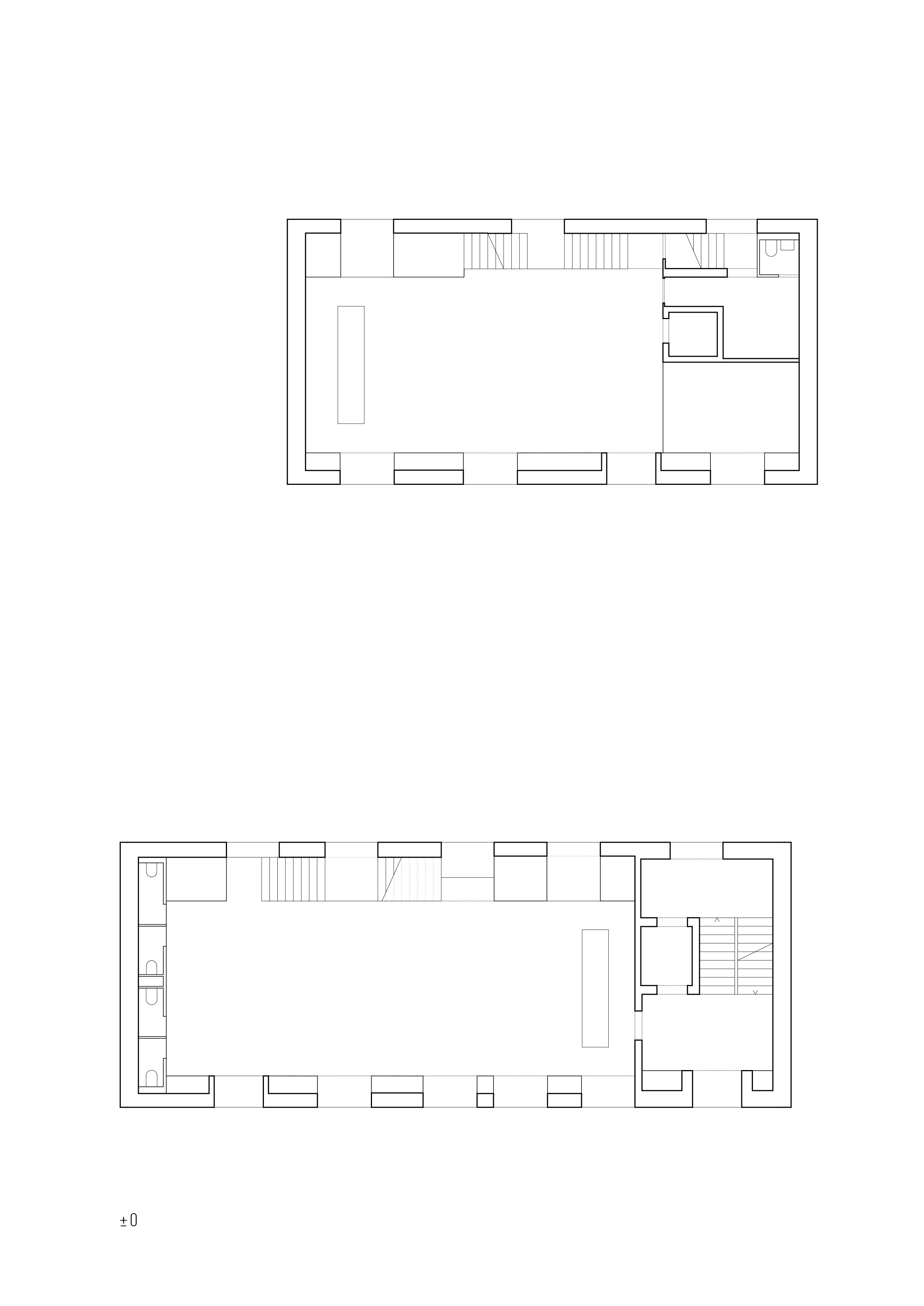
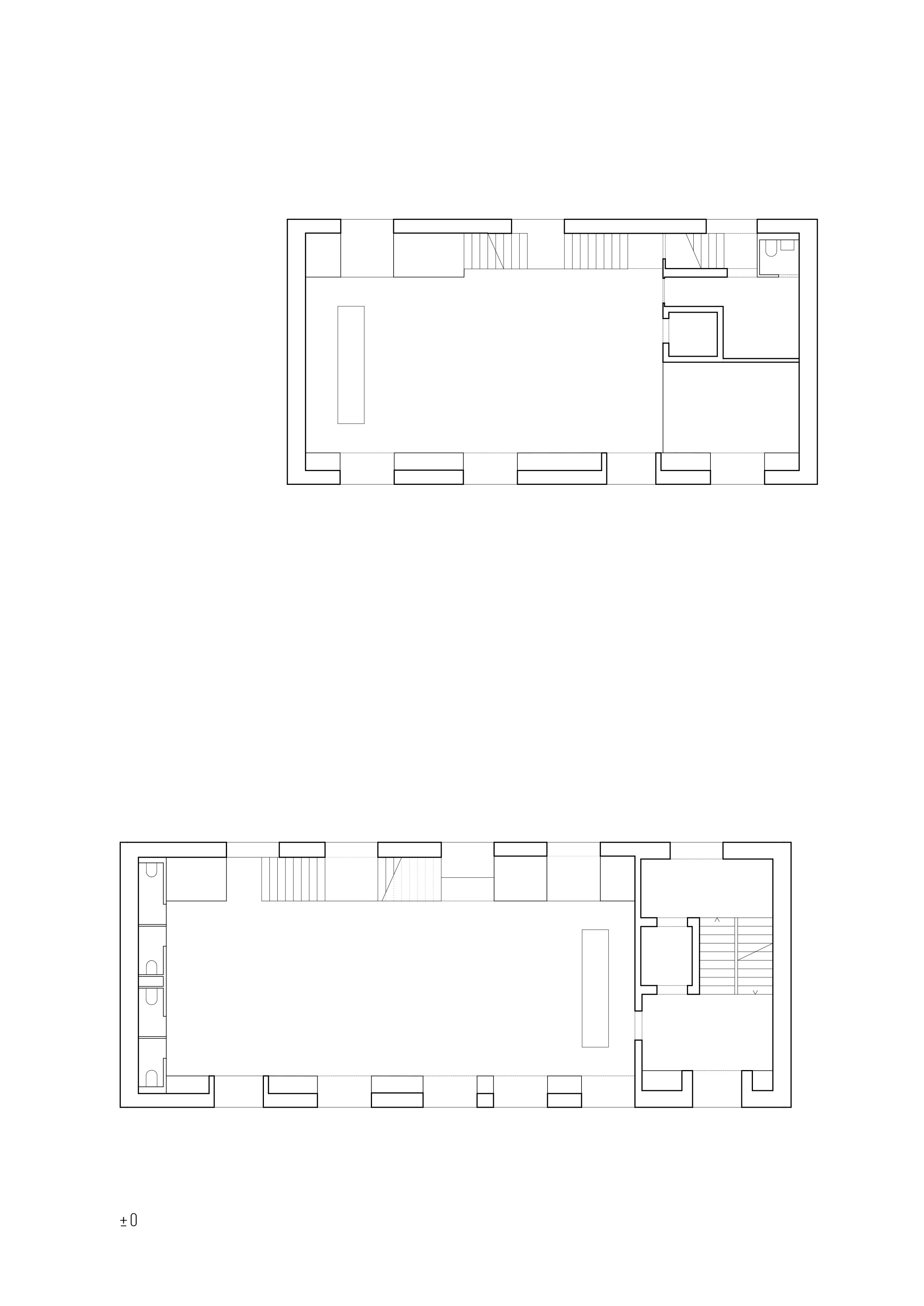
Anstatt die architektonische Erscheinung seiner Nachbarn nachzuahmen, nimmt der oberirdisch zweigeteilte Bau zwar diskret die Kubatur der Umgebungsbauten auf, begegnet diesen mit seiner leuchtenden und reflektierenden Fassade aber auf seine ganz eigene Art und Weise. Als räumlicher Spiegel scheint er sich selbst zu tarnen und die Atmosphäre des Ortes widerzuspiegeln. Die beiden Gebäudevolumen sind dabei unterirdisch und unsichtbar durch eine beheizte Kellerkonstruktion miteinander verbunden und werden über eine Haupterschließungsrampe, die entlang der Grundstücksgrenze verläuft, von der »Rue du College« aus erschlossen. Während der Körper im Süden eine Kita und einen Neugeborenen-Saal beherbergt, beinhaltet das Gebäude im Norden eine Krippe für Kinder bis zum dritten Lebensjahr.
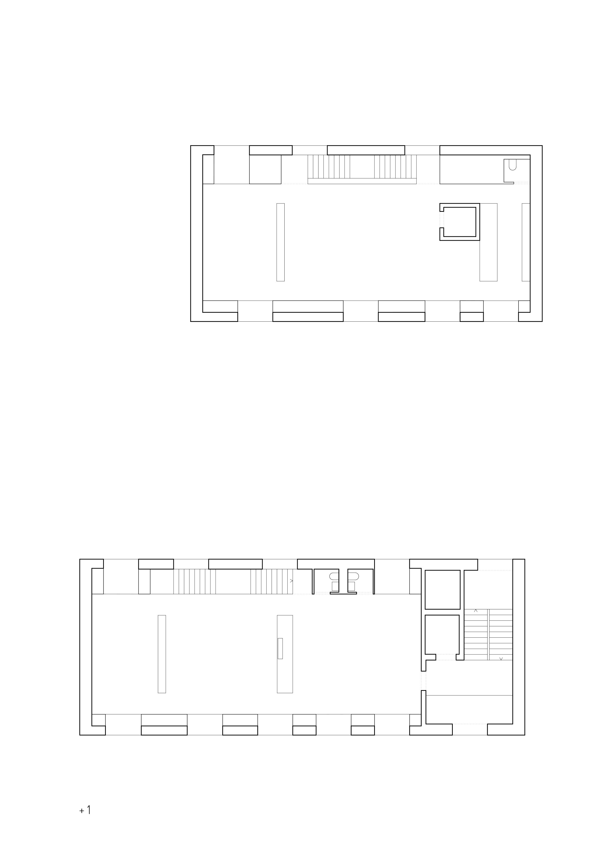
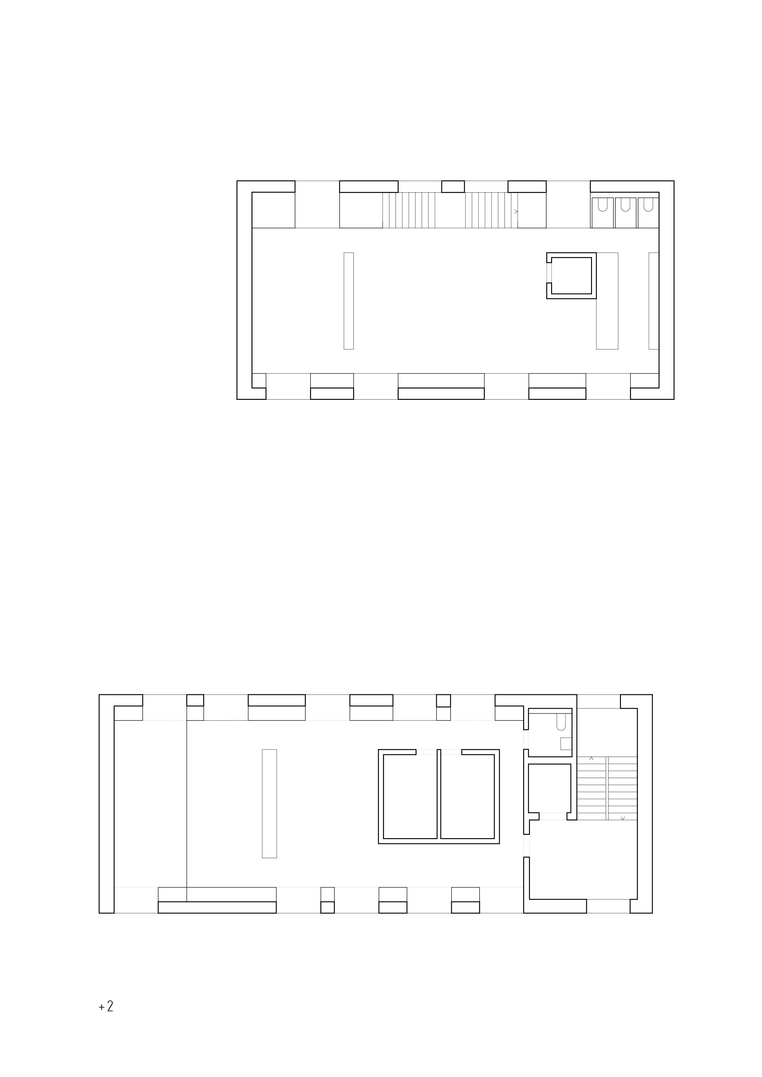
Jedes der beiden Gebäude teilt sich in drei Geschosse. Dabei befinden sich Speisesäle und Kochbereiche mit direktem Bezug zum Außenraum im Erdgeschoss. Im Obergeschoss befinden sich Spiel-, Bewegungs- und Leseräume. Alle Innenräume sind frei von jeglicher Tragstruktur und flexibel bespielbar. Stauflächen in den Fassaden verstärken das Konzept und sorgen für eine freie Spielfläche ohne störende Elemente und mit besserer Belichtung. Die spielerische Setzung der Fenster auf unterschiedlichsten Raumhöhen erlaubt eine kreative Nutzung und Aneignung des Raumes: Selbst die Fassade lässt sich von den Kindern »bewohnen«.
Neben der Staffelung des Geländes und der Gebäude im Schnitt, scheint sich auch die Privatsphäre und Nutzung der unterschiedlichen Höfe zu staffeln. Mit einem öffentlichen Hof im Norden, der ebenso als Vorhof fungiert, einem halböffentlichen Hof zwischen den Gebäudekubaturen für die Kinder der Krippe und einem weiteren Hof im Süden für die Kitagäste enstehen trotz minimalem Eingriff divergente Raumsituationen und Nutzungsszenarien. Ebenso ist ein Parkplatz zum Absetzen der Kinder im Osten von der »Rue de Moulin« aus geplant. Die spiegelnde Fassade erinnert mit ihrer Farbgebung und dem warmen Licht an Sonnenauf und -untergänge inmitten einer idyllischen Landschaft. Sie wirkt unaufdringlich und dezent trotz ihrer reflektierenden Eigenschaften und ihres markanten Ausdrucks.
Jedes der beiden Gebäude teilt sich in drei Geschosse. Dabei befinden sich Speisesäle und Kochbereiche mit direktem Bezug zum Außenraum im Erdgeschoss. Im Obergeschoss befinden sich Spiel-, Bewegungs- und Leseräume. Alle Innenräume sind frei von jeglicher Tragstruktur und flexibel bespielbar. Stauflächen in den Fassaden verstärken das Konzept und sorgen für eine freie Spielfläche ohne störende Elemente und mit besserer Belichtung. Die spielerische Setzung der Fenster auf unterschiedlichsten Raumhöhen erlaubt eine kreative Nutzung und Aneignung des Raumes: Selbst die Fassade lässt sich von den Kindern »bewohnen«.
Neben der Staffelung des Geländes und der Gebäude im Schnitt, scheint sich auch die Privatsphäre und Nutzung der unterschiedlichen Höfe zu staffeln. Mit einem öffentlichen Hof im Norden, der ebenso als Vorhof fungiert, einem halböffentlichen Hof zwischen den Gebäudekubaturen für die Kinder der Krippe und einem weiteren Hof im Süden für die Kitagäste enstehen trotz minimalem Eingriff divergente Raumsituationen und Nutzungsszenarien. Ebenso ist ein Parkplatz zum Absetzen der Kinder im Osten von der »Rue de Moulin« aus geplant. Die spiegelnde Fassade erinnert mit ihrer Farbgebung und dem warmen Licht an Sonnenauf und -untergänge inmitten einer idyllischen Landschaft. Sie wirkt unaufdringlich und dezent trotz ihrer reflektierenden Eigenschaften und ihres markanten Ausdrucks.
weitere Informationen:
Programm: Säuglingssaal für 10 Kinder, Kindergarten für 30 Kinder, Kindertagesstätte für 60 Schüler
Ausführung: atelier d’architecture joseph cordonier, lens
Bauingenieur: editech sa, sion
hlks Ingenieur: gd climat, sion
Elektroingenieur: pierre-étienne roux, bureau d’études électriques sa, sion
Fotos: Thomas Jantscher
Programm: Säuglingssaal für 10 Kinder, Kindergarten für 30 Kinder, Kindertagesstätte für 60 Schüler
Ausführung: atelier d’architecture joseph cordonier, lens
Bauingenieur: editech sa, sion
hlks Ingenieur: gd climat, sion
Elektroingenieur: pierre-étienne roux, bureau d’études électriques sa, sion
Fotos: Thomas Jantscher




















