// Check if the article Layout ?>
Drei für Zwei: Büro- und Produktionsgebäude von BGP in Winterthur
Foto: Dominique Marc Wehrli, Winterthur
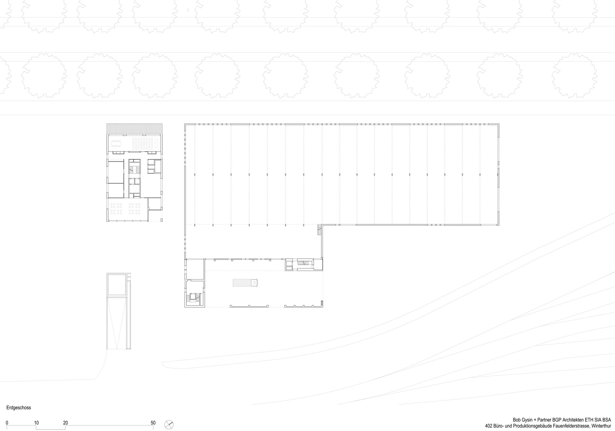
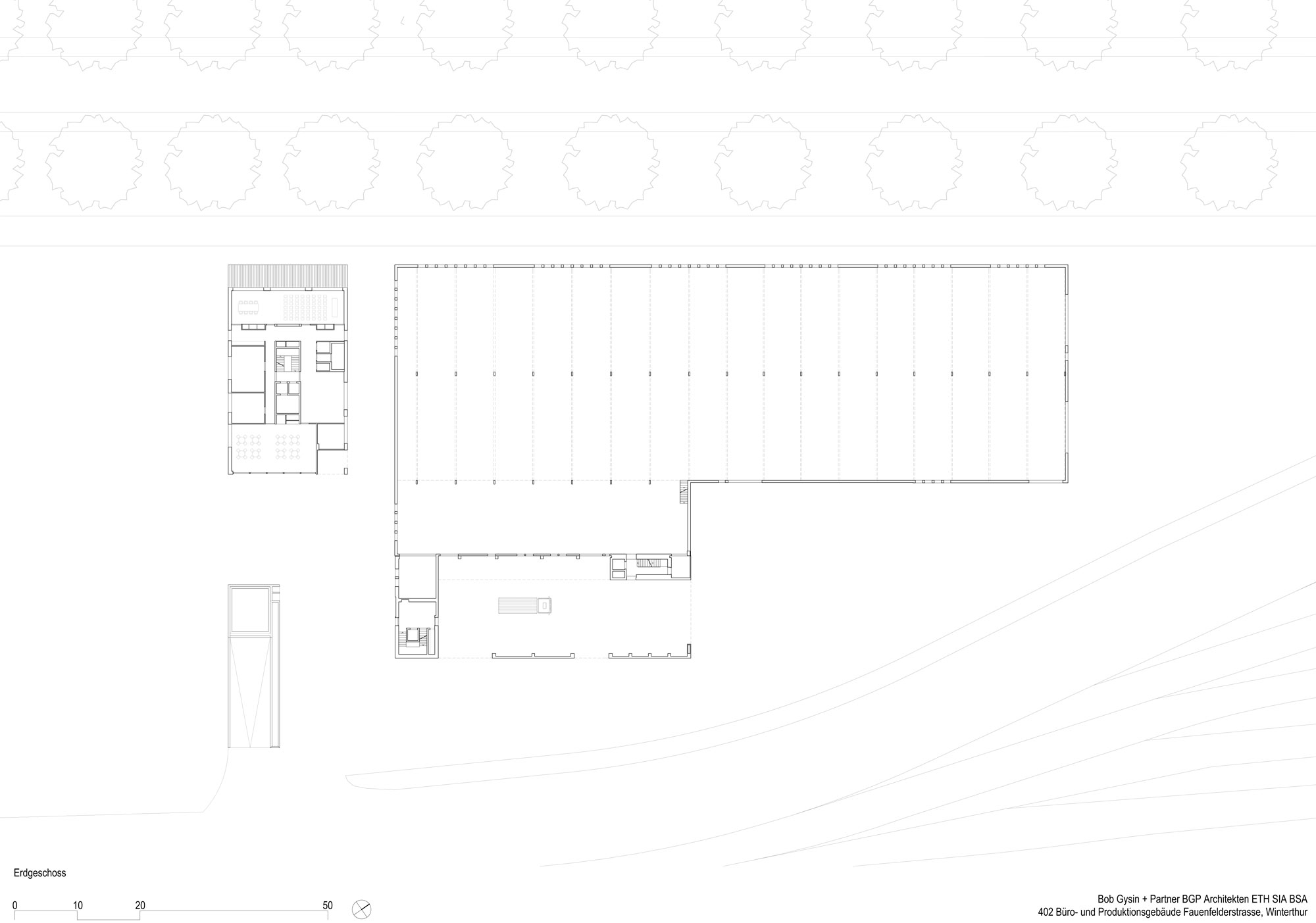
Am Ortseingang von Winterthur säumt eine Pappelallee das Grundstück des neuen Gebäudeensembles. Auf 12700 m² finden nun zwei Firmen in drei Gebäuden ein neues Zuhause. Das entlang der Straße orientierte 100 m lange Produktionsgebäude entstand für eine Baufirma. Dort wurden in der Zimmerei direkt nach Fertigstellung sowohl die Holzelemente und Raummodule für das eigene Bürogebäude gefertigt, als auch jene für den Geschäftssitz eines Ingenieur- und Planungsbüros für Haustechnik auf dem gleichen Gelände. Das von den Architekten eingesetzte BIM-Objekt lieferte die Daten für den Zuschnitt der Holzbauteile.
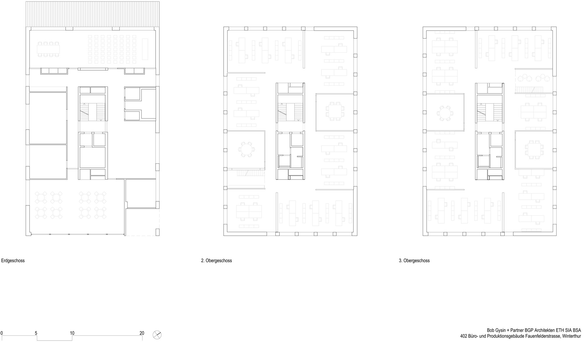
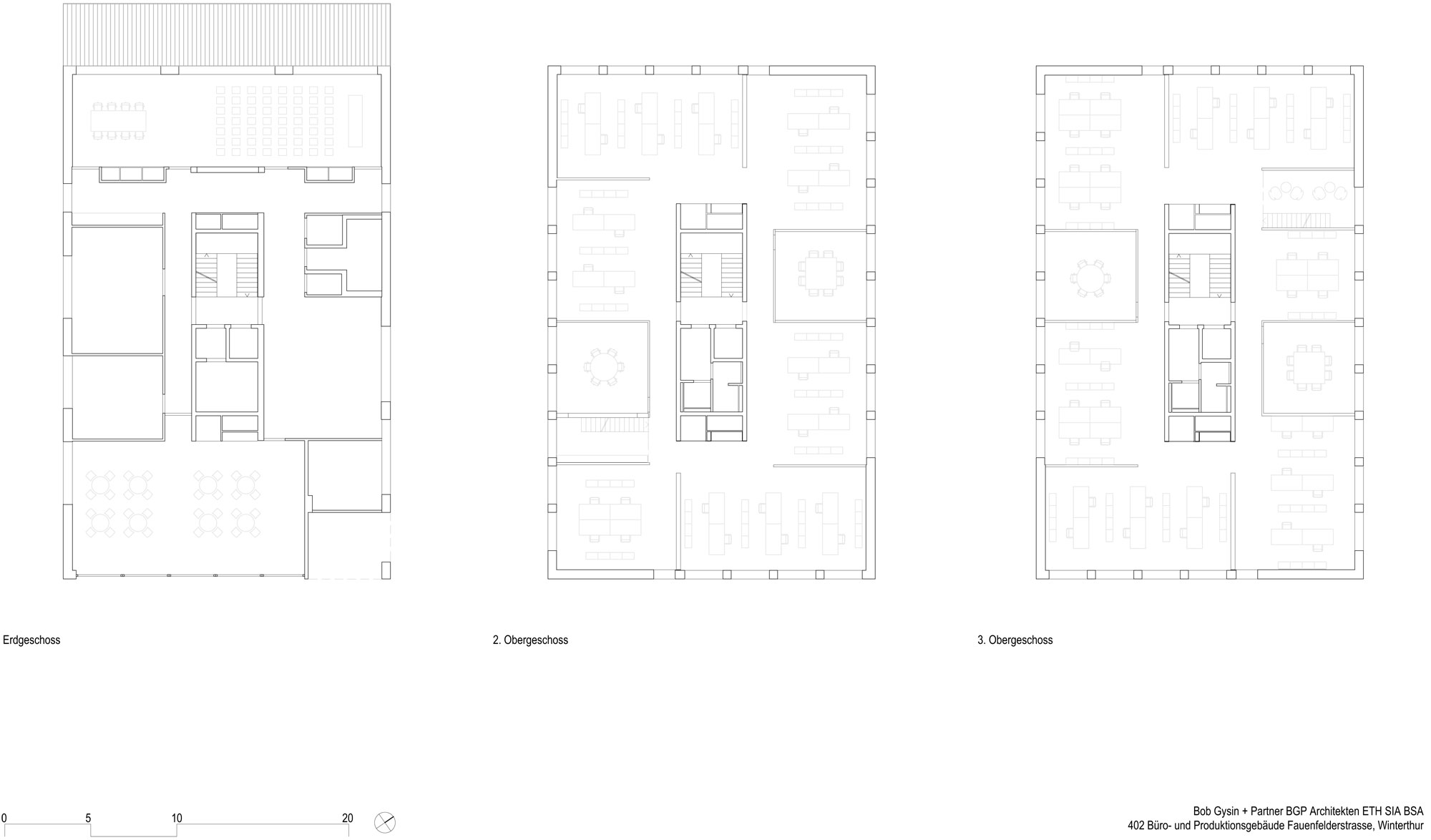
Durch ihre doppelte Höhe kontrastieren die beiden Verwaltungsgebäude mit der lang gestreckten Halle und fassen zwischen sich einen kleinen Platz. Trotz ihrer räumlichen Nähe und einer gemeinschaftlich genutzten Cafeteria und Aula ist der Betrieb für Haustechnik gestalterisch eigenständig. Die Fassaden weisen alle eine horizontale Gliederung durch schmale Fassadenbänder auf. Auch in der Vertikalen findet sich ein einheitliches Raster bei allen drei Gebäuden. Die vertikale Rhythmisierung der Produktionshalle erfolgt ganz subtil durch eine breitere Holzlamelle; am Bürogebäude springen die gliedernden Holzleisten einige Zentimeter vor. Anders beim Geschäftssitz, der mit Platten aus Glasfaserbeton verkleidet ist: Hier erzeugen die Fugen zwischen den einzelnen Platten das gerasterte Fassadenbild.
Auch konstruktiv wurde nicht etwa der Einfachheit halber einheitlich gebaut, sondern auf die jeweilige Nutzung reagiert. So ist der Geschäftssitz als Betonskelettbau ausgeführt, dessen drei Zonen sowohl konstruktiv als auch konzeptuell schlüssig sind. Der massive, aussteifende Kern nimmt die Erschließung auf. Darum herum ordnen sich konzentrische Zirkulationszonen mit Kaffeenischen an. An der Fassade liegen die offen zonierten Arbeitsbereiche. Die weißen Oberflächen erzeugen einen ruhigen Innenraum, ohne die Erkennbarkeit der verschiedenen Materialien zu verunklaren.
Zimmerei und Produktionshalle sind in einer Holz-Beton-Mischbauweise gebaut, die es erlaubte, dort auf Beton zurückzugreifen, wo er statische Vorteile bietet. Für das dazugehörige Bürogebäude kam Holz als Baustoff zum Einsatz. In Holzmodulbauweise konnte schnell und kostengünstig ein dauerhaft flexibles Haus entstehen, dessen Module die kleinste Büroeinheit bestimmen.
Für die Nachtauskühlung an warmen Tagen nutzt der Geschäftssitz den Kamineffekt. Über maschinell gesteuerte Lüftungsflügel in der Fassade und im Treppenraum kann die warme Luft nach oben abziehen und kühle Luft nachströmen. Durch das Zusammenspiel von Maßnahmen sowohl am Bau als auch durch zusätzliche Haustechnik kommt das Ensemble ohne fossile Energiequellen oder Erdwärme-, Fernwärme- oder Grundwassernutzung aus. Stattdessen werden die Umgebungswärme und die Holzabfälle genutzt und der Strom zum Heizen und Kühlen stammt von einer eigenen Fotovoltaikanlage. Das Herzstück des Geschäftssitzes bildet eine reversible Luft/Wasser-Wärmepumpe, die auch bei extremen Temperaturen für ein angenehmes Raumklima Sorge trägt.




















