Gemeinschaftlich wohnen
Dreifamilienhaus in der Schweiz
Wohnhaus im Schweizer Kanton Waadt, © Séverin Malaud
Ein Umbau im doppelten Sinne ist dieses Haus für drei Geschwister im Schweizer Kanton Waadt: Sie entkernten das Wohnhaus der Großeltern und ergänzten es durch einen U-förmigen Baukörper aus Holz und Beton.


Aus einem Einfamilienhaus wird ein Dreifamilienhaus. © Séverin Malaud
Bauen im Bestand
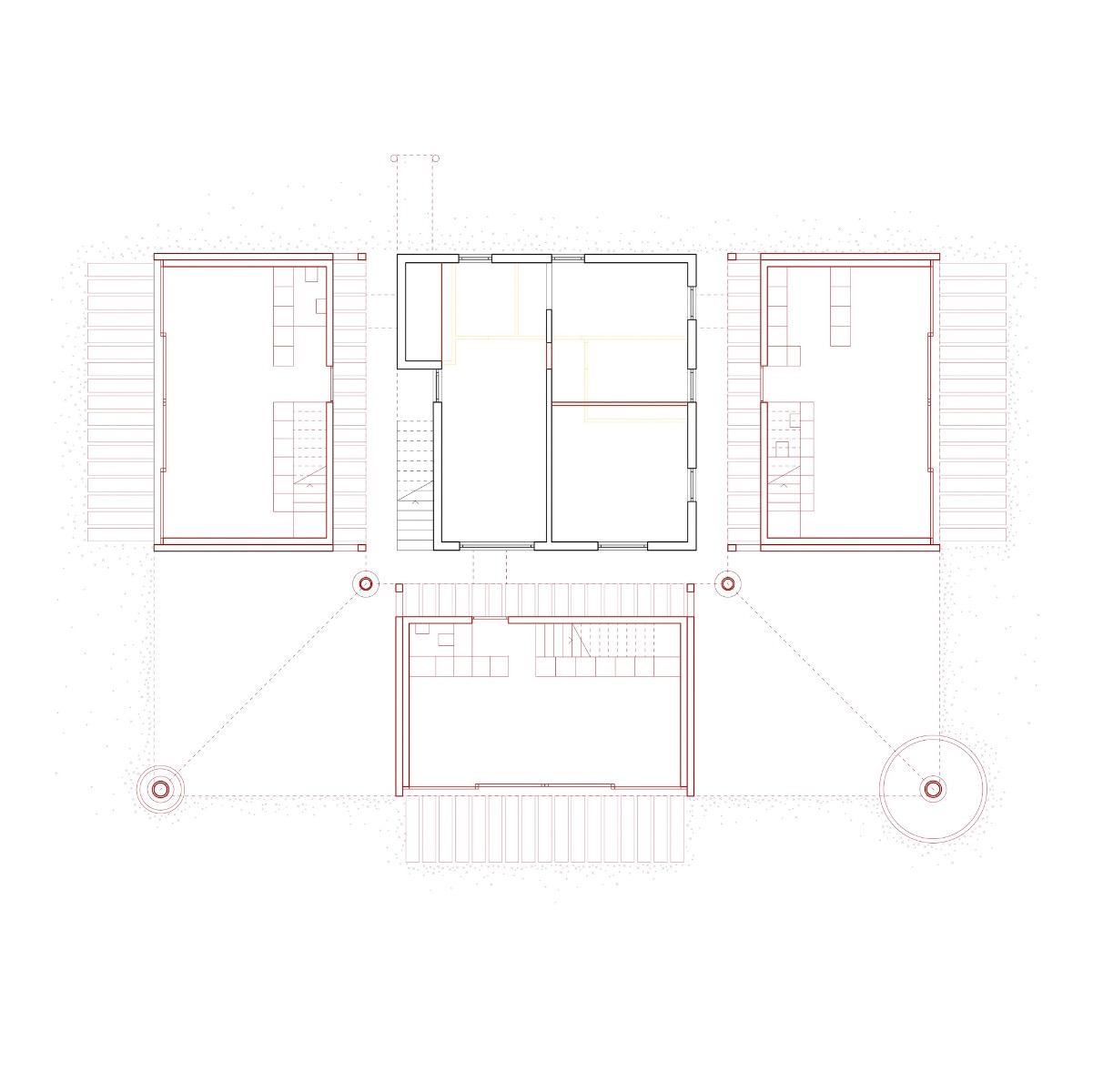
Das Bestandsgebäude aus den 1960er-Jahren steht am Ende einer Sackgasse in Hanglage leicht erhöht über dem Rhônetal. Seine untere Etage hatte ursprünglich die Funktion eines Kellers, die Wohn- und Schlafräume verteilten sich auf die obere Ebene. Nach dem Tod der Großeltern erbten drei Enkel gemeinsam das Grundstück und zeigten alle Interesse daran, hier zu wohnen. Eine komplizierte Ausgangslage, die die Architekten jedoch im engen Dialog mit den Bauherren lösen konnten.
Sanierung
Das Bestandsgebäude wurde weitgehend entkernt. Sein Obergeschoss bildet nun einen einzigen, großen Raum zum Spielen, Essen und für gemeinsame Feste. Das Dach wurde neu eingedeckt – auf der Nordseite mit transluzenten Polycarbonatpaneelen und auf der Südseite mit einer Photovoltaikanlage, die Strom für die gemeinsame Wärmepumpenheizung liefert. Auf der unteren Etage sind die Haustechnik und eine gemeinschaftliche Werkstatt untergebracht.


Zwei Gebäudeecken bleiben im Erdgeschoss leer und werden als überdachte Terrasse genutzt. © Séverin Malaud
Hybride Tragstruktur
Die Wohnräume der drei Familien verteilen sich auf einen U-förmigen Baukörper, der das Bestandsgebäude auf drei Seiten umschließt und mit diesem durch Brücken verbunden ist. Die Außentreppe im Zwischenraum zwischen Alt und Neu blieb erhalten; zusätzlich hat jede der drei Wohneinheiten nun ihre eigene Vertikalerschließung. Die Konstruktion des Erweiterungsbaus ist zweigeteilt, mit Sichtbetonwänden und -stützen im Erdgeschoss sowie einem Holztragwerk in der oberen Etage. Die Wohnräume auf der unteren Ebene öffnen sich mit großen Glasschiebeelementen zum Garten; rot-weiß gestreifte Markisen spenden ihnen Schatten.


Die Wohnräume der drei Familien verteilen sich auf einen U-förmigen Baukörper, der das Bestandsgebäude auf drei Seiten umschließt. © Séverin Malaud
Für Erweiterungen ist vorgesorgt
Die beiden Gebäudeecken bleiben im Erdgeschoss leer und werden als überdachte Terrasse genutzt. Markante Eckstützen aus ausbetonierten Kanalrohren tragen hier zusätzlich das Obergeschoss. Dessen Konstruktion basiert auf zwei u-förmig umlaufenden Holzträgern in Fassadenebene und zwei dazwischen angeordneten Diagonalträgern ebenfalls aus Holz. Der 116 cm hohe äußere Fassadenträger ist in der Fassadenansicht deutlich zu erkennen. Er bildet eine geschlossene Brüstung, oberhalb derer sich Fenster mit Klappläden, geschlossenen Fassadenflächen und Brise-Soleis – alle aus Lärchenholz – abwechseln. Die Diagonalträger an den Gebäudeecken markieren zugleich die Trennlinie zwischen den drei Wohneinheiten. Allerdings ist die Wandkonstruktion hier so konzipiert, dass sich immer noch Türöffnungen schaffen und so bei Bedarf Flächen zwischen den Wohnungen tauschen ließen.
Architektur: Madeleine architectes, Studio François Nantermod
Bauherr: privat
Standort: Villy (CH)
Tragwerksplanung: Ovale, Ingewood
Bauphysik: Perenzia

























