Dynamisches Raster: Schule von Xaveer De Geyter Architects
Foto: Maxime Delvaux
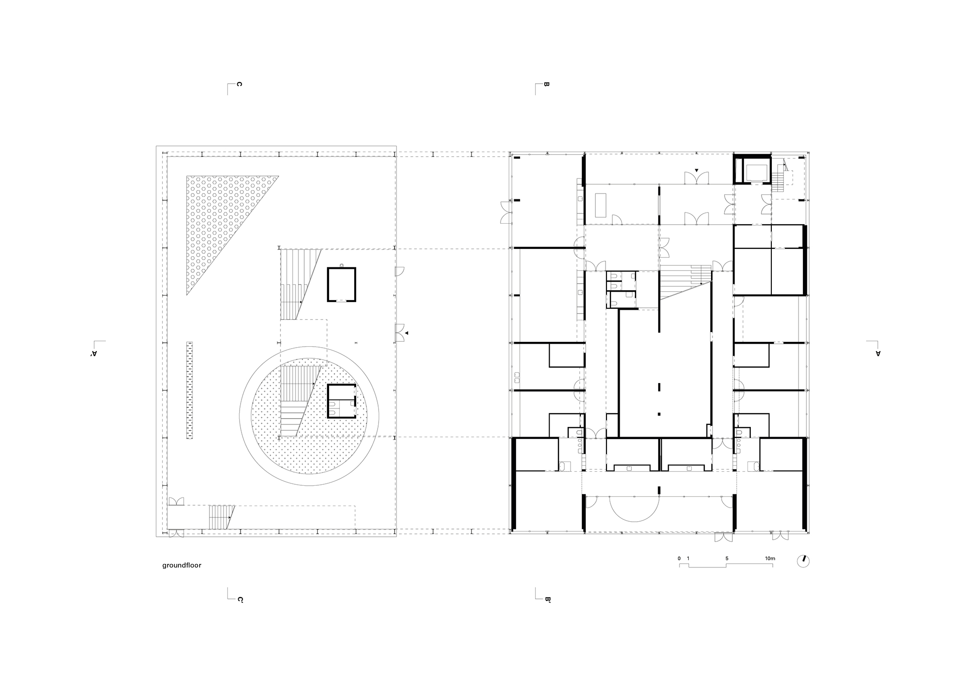
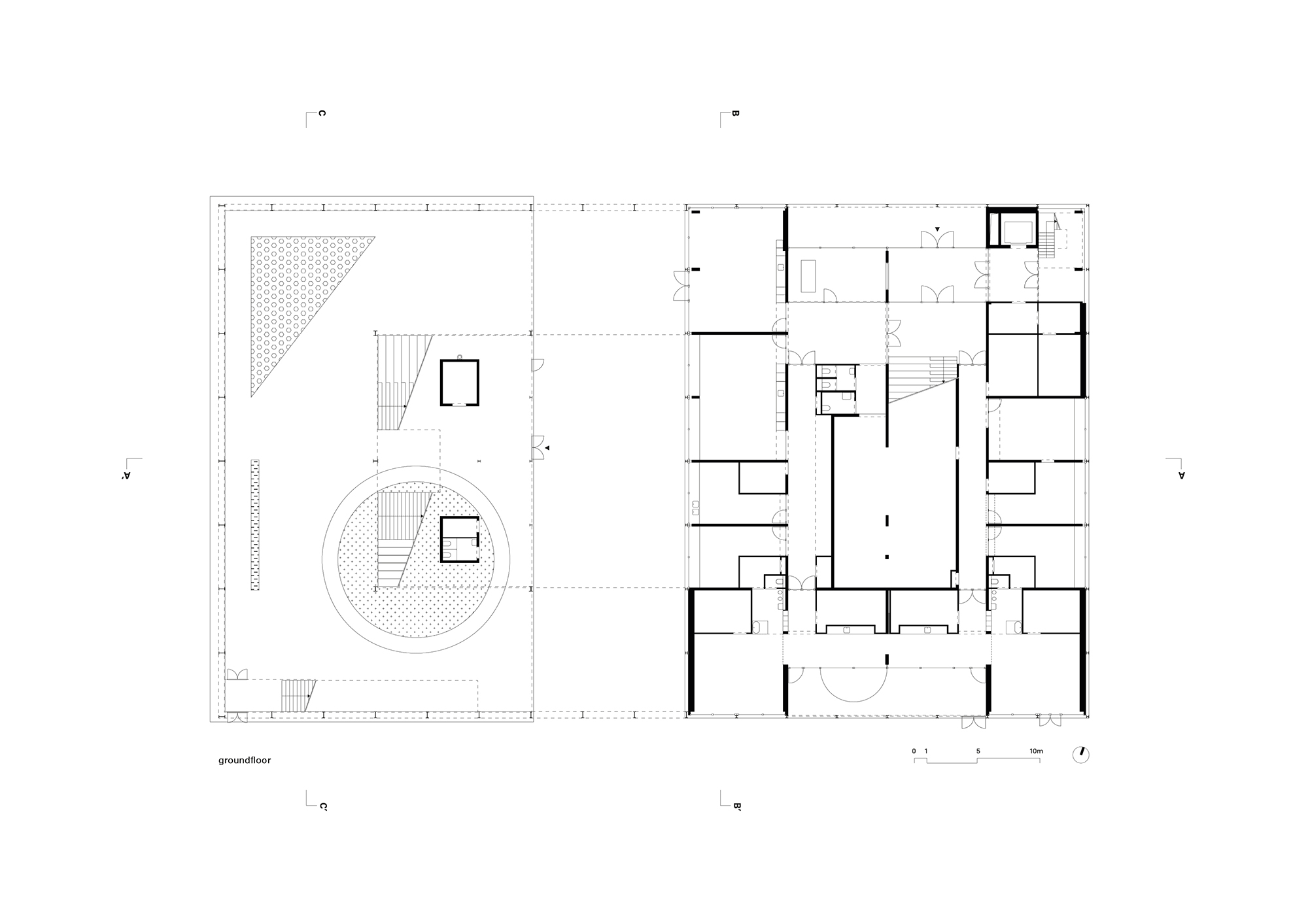
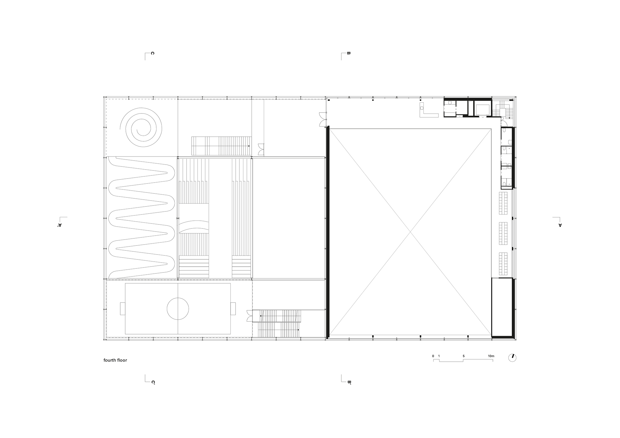
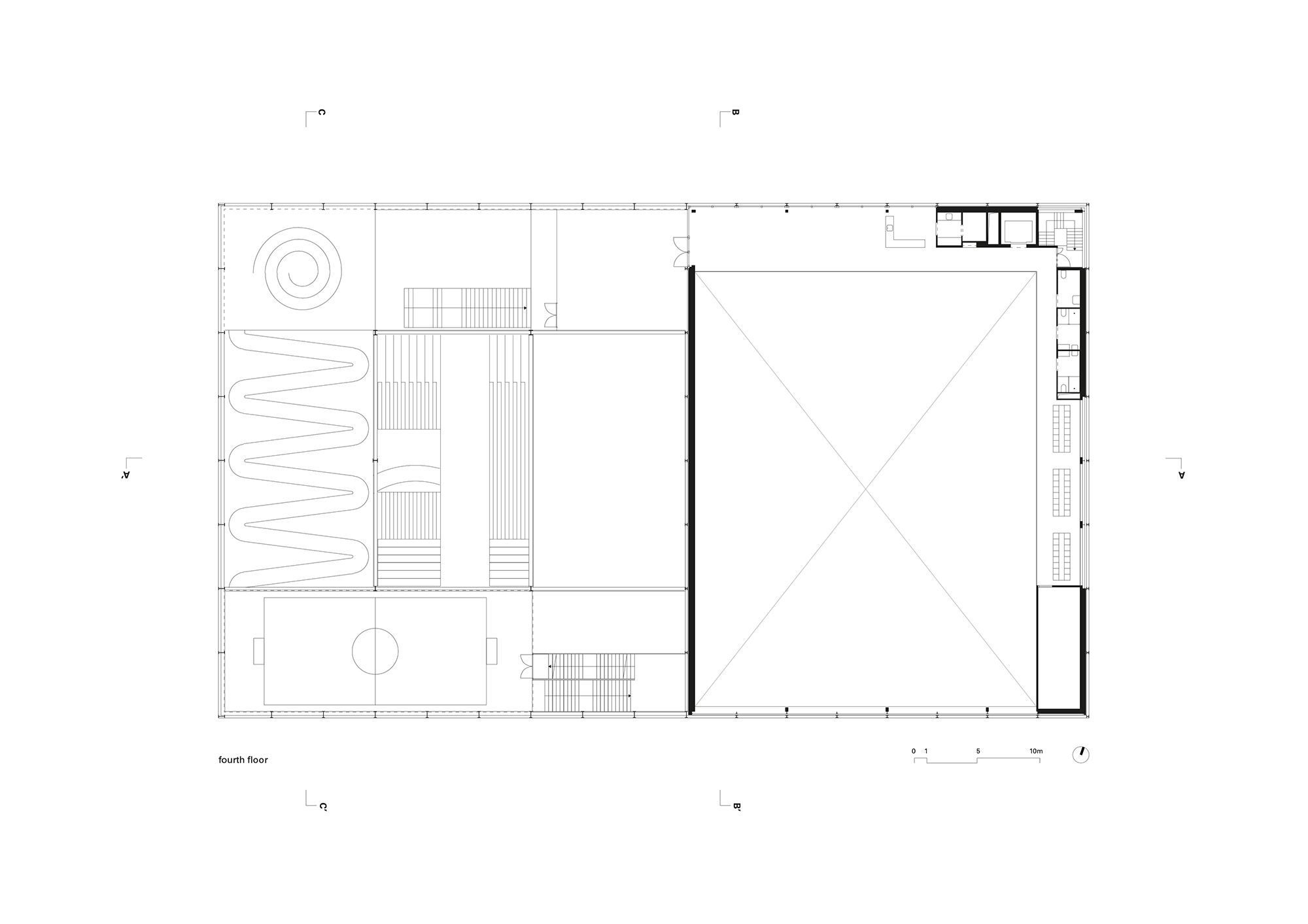
Der Neubau ist geprägt durch eine räumliche Rasterkonstruktion. Sie gibt dem Gebäude Struktur und verleiht ihm sein charakteristisches Erscheinungsbild . Anhand des Stahlskeletts teilen die Architekten den rechteckigen Grundriss in zwei gleich große Bereiche. Während der nach Osten gerichtete Gebäudetrakt die geschlossenen Räume enthält, wirkt die dem Wasser zugewandte Hälfte wie eine gigantische Pergola, die einen dynamischen Spielplatz beherbergt. Im offenen Teil legen sich leichte Maschendrahtgitter vor die Stahlrahmen. Sie sorgen für Sicherheit, lassen viel Luft und Licht in die Freibereiche und sollen in Zukunft als Rankhilfe für einen grünen Vorhang aus Kletterpflanzen dienen.
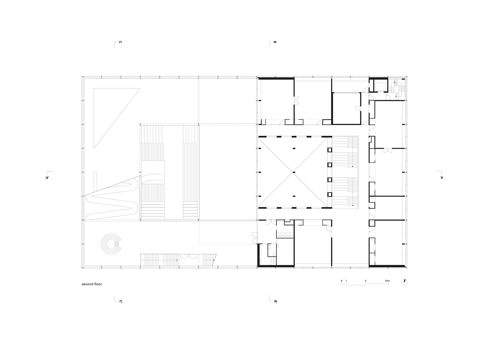
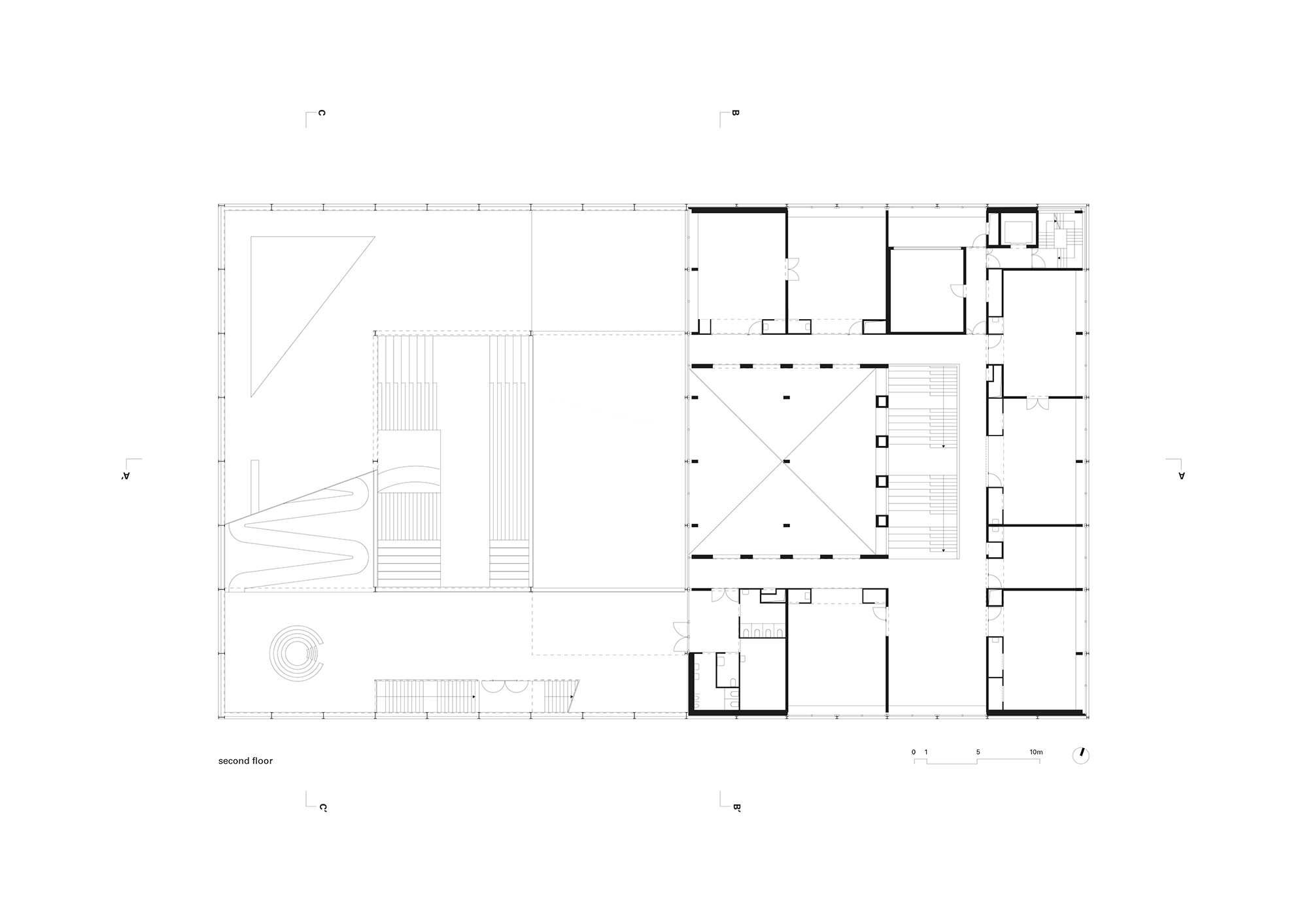
Durch die vertikale Stapelung im Außenraum kann die Fläche maximiert werden. Der Schulhof wird zum abwechslungsreichen Spielplatz, der sich über Rampen, Treppen und Wege nach oben entwickelt und mit seinen diversen Niveaus rund 3.050 m2 umfasst. Neben einem Basketballfeld gibt es für die Kinder mit Kletterwänden, Rutschen und einem kleinen Pool verschiedenste Möglichkeiten, sich mit Blick auf den Kanal auszutoben.
Im anderen Teil werden die einzelnen Rahmen der Stahlkonstruktion je nach Funktion mit transluzenten Paneelen oder Glasflächen verschlossen. Hier sind auf über 4.500 m2 Fläche und verteilt über fünf Stockwerke die verschiedenen Räume der Schule untergebracht. Den Anfang macht eine Kindertagesstätte im Erdgeschoss. Im Level darüber befinden sich ein Kindergarten sowie Räumlichkeiten für die Ganztagsbetreuung. Die Sporthalle erstreckt sich über die dritte und vierte Ebene. Eine Bar im fünften Stock komplettiert das Raumprogramm des Bildungsbaus und bietet Ausblick auf den unkonventionellen Spielplatz sowie auf das umgebende Stadtviertel am Wasser. Sämtliche Räume sind von Xaveer De Geyter Architects so gestaltet, dass sie auch für außerschulische Aktivitäten genutzt werden können. Dadurch wird Melopee nicht nur zu einem abwechslungsreichen Ort für Kinder, sondern auch zu einem sozialen Treffpunkt für die Nachbarschaft.
Weitere Informationen:
Tragwerksplanung: Ney & Partners
Mechanik: Studiebureau Boydens
Akustik: Daidalos Peutz





















