// Check if the article Layout ?>
Ein Hauch Ägypten mitten in Berlin: Wohnhaus Prenzlauer Berg
Foto: Simon Menges
Der Baukörper befindet sich im Innenhof eines Blocks am Prenzlauer Berg. Sein Grundriss ist nahezu quadratisch, bis zur Traufe auf 7,50 m Höhe scheint das Wohnhaus ganz normal. Von dort an laufen die Fassadenflächen in einem Winkel von 70 Grad bis zur abschließenden Dachterrasse auf 18 m schräg weiter, was an eine Pyramide erinnern lässt. Rückseitig, in südwestlicher Richtung, schließt der Bau an die Brandschutzwand eines Bestandsgebäudes an. Nach oben hin gibt es eine Schattenfuge, über die sich die Pyramide mit zunehmender Geschosszahl immer weiter von ihrem Nachbarn entfernt.
Diese besondere Kubatur stellt Denkmalschutzamt und Bauaufsicht gleichermaßen zufrieden. Zum einen integriert sich der Körper respektvoll in den unter Ensembleschutz stehenden Block, zum anderen werden über die schrägen Fassadenflächen die Abstände zum Bestand gewahrt.
20.000 Ziegel in sechs verschiedenen Farbtönen verleihen dem Wohnhaus einen lebendigen, frechen Charakter. Von gelblich über grau bis rosa nehmen sie die Optik der umliegenden Gebäude auf und vereinen sich zu einem stimmigen Gesamtbild. Sie verstärken den Eindruck einer Pyramide insofern, als sie den Bau, von sämtlichen vertikalen und geneigten Fassaden, über die Attika bis hin zur Dachterrasse in eine homogene Hülle verpacken. Die Fensteranordnung durchbricht die rigide Erscheinung. So referenzieren die Öffnungen zwar die umliegenden Gebäude, führen sie dann aber in ihrer eigenen Sprache fort. Breite Rahmen in glänzendem Aluminium schließen bündig mit der Außenhülle ab und bilden einen Kontrast zu den erdigen Tönen der Ziegel.
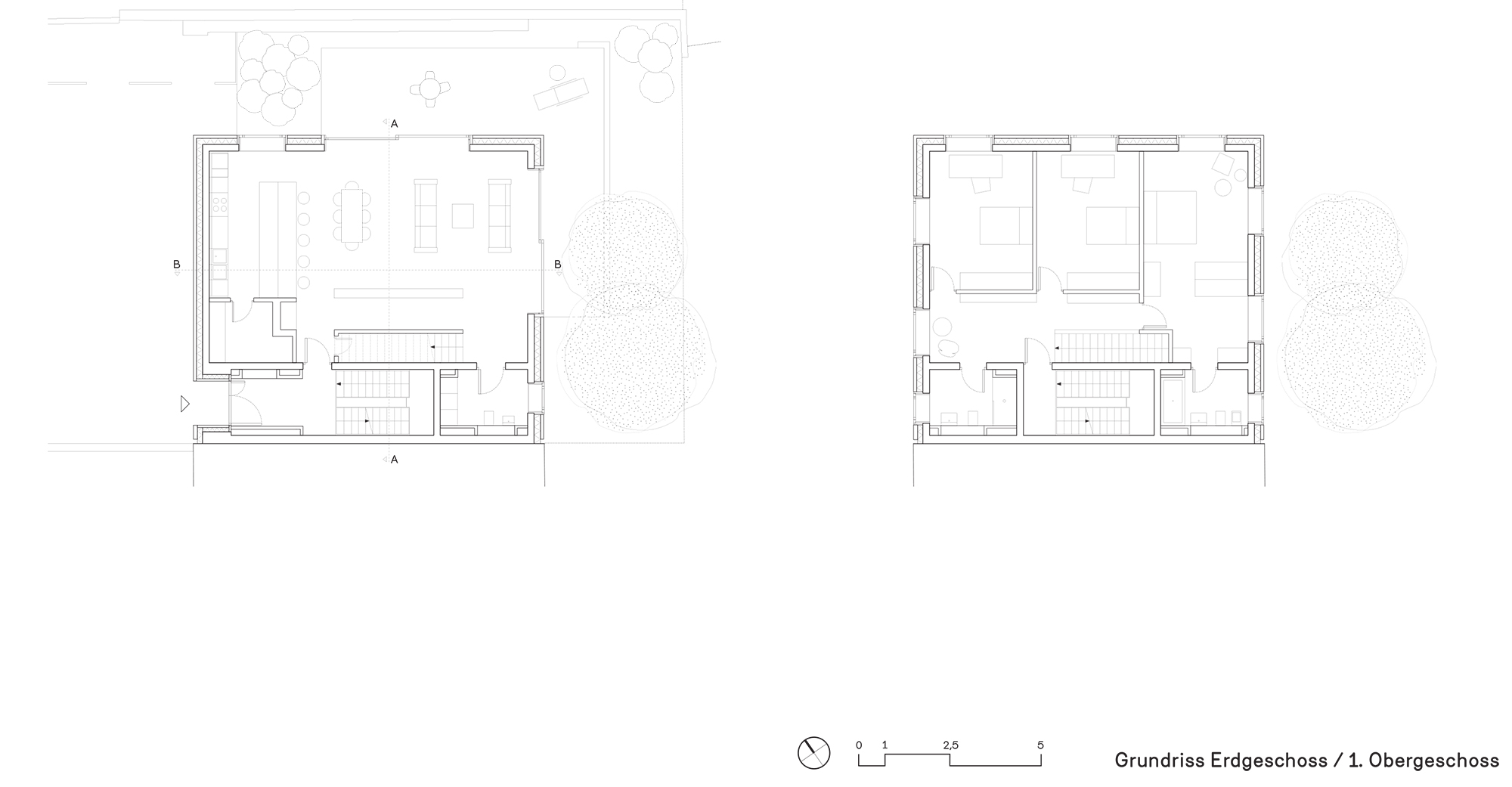
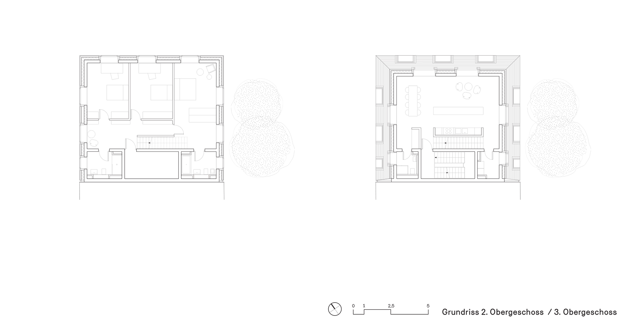
Im Inneren ergänzen sich rohe Sichtbetondecken kombiniert mit Böden und tiefen Fensterlaibungen aus Holz und hellen Wänden zu einem angenehm wohnlichen Ambiente. Die fünfgeschossige Pyramide umfasst zwei Wohneinheiten. Mit 250 und 200 Quadratmetern sind die beiden Maisonetten relativ großzügig. Ihr Eingang liegt an der Nordwestfassade. Von dort gelangt man über ein gemeinsames Treppenhaus in beide Einheiten. Erschließung und infrastrukturelle Räume schließen direkt an die Brandschutzwand an. Die größere der Wohnungen umfasst das Erdgeschoss mit einem Wohn-, Ess- und Kochbereich und den ersten Stock mit drei Schlafzimmern. Zweites bis viertes Geschoss gehören zur Dachmaisonette. Diese gliedert sich zuunterst in eine Etage mit drei abgetrennten Räumen, zwei Wohnlevels und abschließend einer Dachterrasse oben auf. Innerhalb der Wohnungen gibt es jeweils private Treppen, die die Stockwerke verbinden.
Weitere Informationen:
Team: Andreas Lang (Projektleitung), Antje Steckhan, Martina Bauer, Marian Beschoner



















