// Check if the article Layout ?>
Ein Haus für die Bürger von blocher partners
Foto: Christian Richters für Blocher Blocher Partners
Als blocher partners 2013 den Realisierungswettbewerb für den Neubau des Rathauses gewannen, standen sie gleich vor mehreren Herausforderungen. Die Gemeinde Bissendorf verfügte nur über ein sehr begrenztes Budget und trotzdem schafft es der Neubau nun, den Stadtplatz zu fassen, zwischen der neugotischen Kirche und den umliegenden Gebäuden zu vermitteln und mit dem Bürgergarten einen grünen Anzugspunkt im Stadtzentrum zu schaffen.
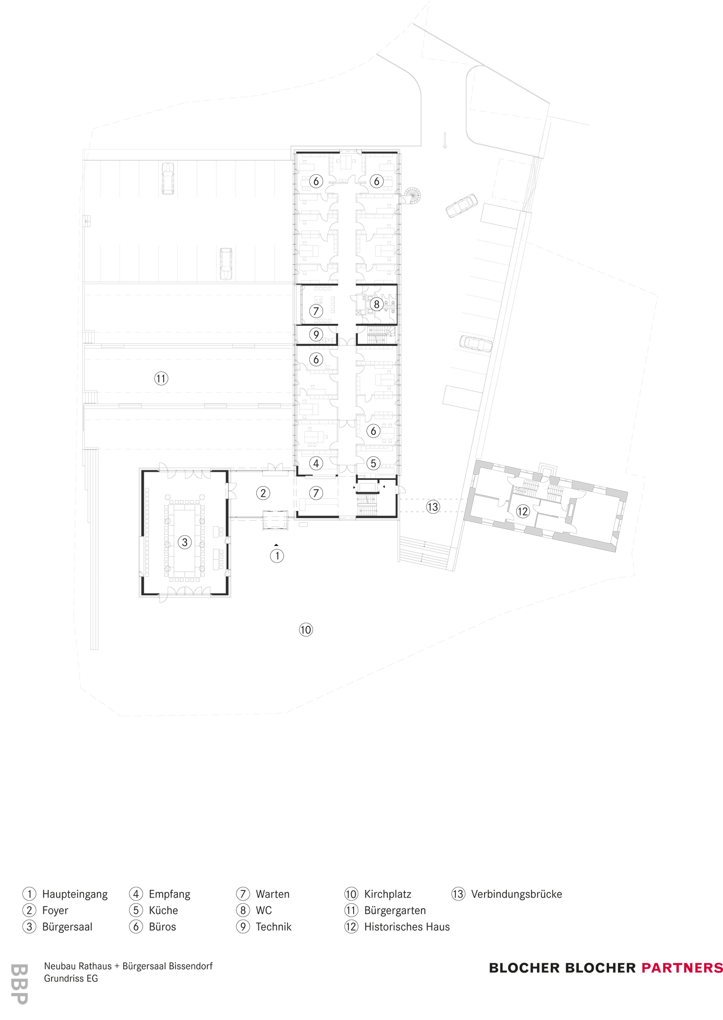
Zum Kirchplatz hin zeigt das Rathaus zwei Giebelseiten. Die spitzere, höhere gehört dem Bürgersaal, während die flachere das Ende des Büroriegels ist. Der Bürgersaal dockt mit einem gläsernen Durchgang an diesen Riegel an. Die Fassaden sind in hellem Klinker ausgeführt. Leicht unterschiedlich getönte Ziegel wirken dabei wie eine Hommage an das Mauerwerk der Kirche, nur in feinerer Körnung. Genauso verhält es sich mit dem vertikal gefalzten Zinkblech, welches die Dächer des Rathauses und auch die Kirchtürme deckt. Nur durch die noch fehlende Patina und die eingelassene Regenrinne grenzt sich das Neue vom Alten ab.
Im Inneren sind beide Gebäudeteile sehr einfach aufgebaut. Ein langer Flur versorgt im Riegel als Zweispänner die Büros für 45 Mitarbeiter. Der kühle Eindruck des Sichtbetons wird an mehreren Stellen geschickt gebrochen. Die eingeschnittenen Fensteröffnungen sind mit Holz ausgekleidet, wodurch sie eine sanftere Konnotation erhalten. Einzelne Elemente wie der Aufzugschacht setzen farbige Akzente und brechen dadurch mit der Strenge des Baus. Die gleichen Materialien finden sich auch im Bürgersaal wieder, der für Ratssitzungen und Veranstaltungen genutzt wird. Der stützenfreie Raum mit offenem Dachstuhl misst an der höchsten Stelle 12 Meter und öffnet sich durch große Glasflächen zu allen vier Seiten. Für Überraschungen sorgen dort Details, wie das in den Sichtbeton eingelassene Stadtwappen.
Weitere Informationen:
Projektleiter: Wolgang Mayer
Projektteam: Vanessa Bollmann, Valentin Ott, Anne Smerat Wettbewerb: 1. Preis 2013 Baubeginn: 06.2014 Fertigstellung: 07.2015 Grundstücksgröße: 5200 m² BGF: 2408 m² Auszeichnungen: Niedersächsischer Staatspreis für Architektur 2016 »Bauen für die Öffentlichlkeit« (eine von zwei Nominierungen), Iconic Award 2016 (Auszeichnung in der Kategorie »Best of best«), »Winner« beim German Design Award 2017
Projektteam: Vanessa Bollmann, Valentin Ott, Anne Smerat Wettbewerb: 1. Preis 2013 Baubeginn: 06.2014 Fertigstellung: 07.2015 Grundstücksgröße: 5200 m² BGF: 2408 m² Auszeichnungen: Niedersächsischer Staatspreis für Architektur 2016 »Bauen für die Öffentlichlkeit« (eine von zwei Nominierungen), Iconic Award 2016 (Auszeichnung in der Kategorie »Best of best«), »Winner« beim German Design Award 2017











