Ein Haus wird zur Stadt: Laborgebäude von C.F. Møller
Foto: Mark Hadden
Jedes Jahr verleiht das Karolinska-Institut in Stockholm den Nobelpreis für Medizin und Physiologie. Dass für die eigenen Forschungseinrichtungen hohe Ansprüche gelten, versteht sich also von selbst. Dem traditionsreichen, dänischen Büro C.F. Møller, mit Dependancen in Dänemark, England, Schweden, Norwegen und Deutschland ist es gelungen, diesen Ansprüchen gerecht zu werden: Sie stellten das Gebäude sogar früher als geplant fertig und blieben unter dem veranschlagten Budget. Schließlich wurde das Biomedicum zum schwedischen „Gebäude des Jahres 2019“ gekürt.
Changierend präsentiert sich die Glasfassade des Quaders mit zurückspringendem Dachgeschoss. Die einzelnen Fassadenpaneele aus grünlichem Glas liegen wie Schuppen angewinkelt nebeneinander. Je nach Perspektive spiegelt die zweischalige Fassade die Umgebung oder wird transluzent.
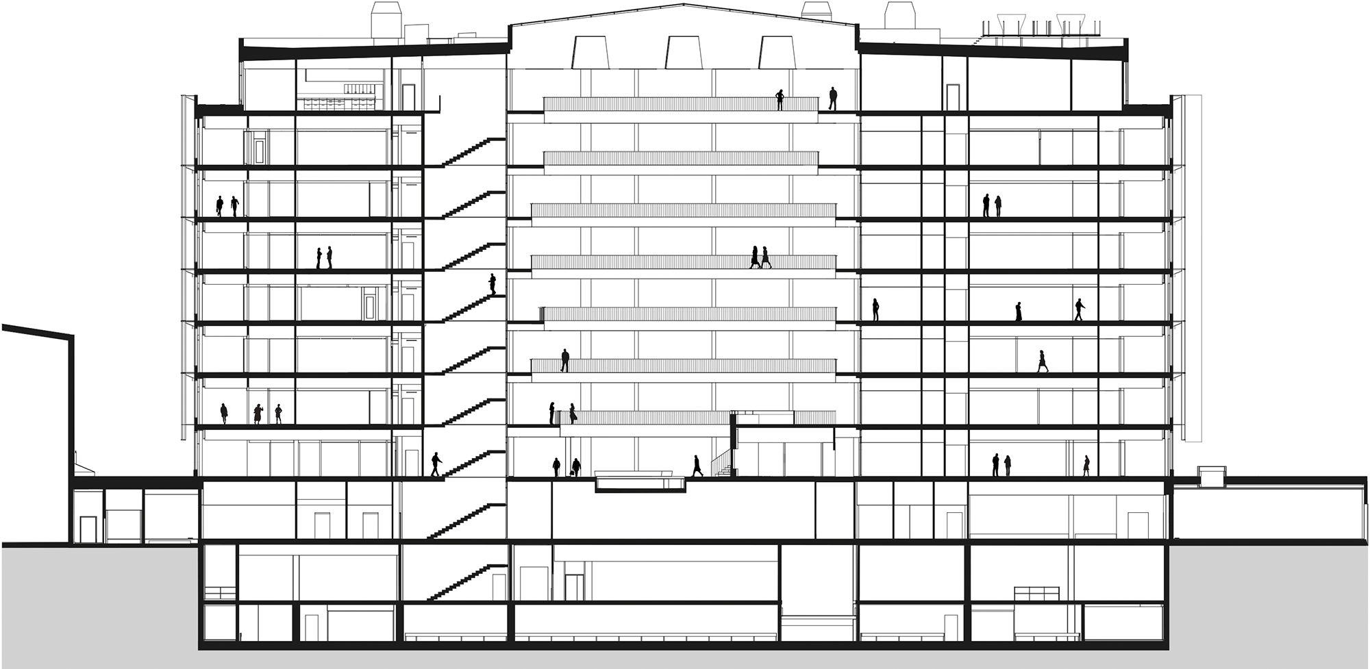
Die Idee hinter dem achtgeschossigen Atrium im Zentrum des Gebäudes ist, die Grünflächen des Campus im Inneren fortzusetzen. So soll das Biomedicum einmal zum Bindeglied zwischen der Stadt und der neuen Uniklinik werden. Um das Atrium herum stehen vier separate Gebäudetrakte mit eigenen Erschließungskernen an den Ecken. Jeweils ein Treppenhaus ist als Blickfang zum Atrium hin platziert. Eine geschossübergreifende, hinterleuchtete Wand mit mundgeblasenen, marmorierten Glasplatten schafft einen Anreiz, auf den Aufzug zu verzichten.
Immer wieder greifen die offenen Umgänge in das Atrium und bilden Balkone aus, auf denen sich kleine Gruppen niederlassen können. Diese Maßnahme gibt zufälligen Begegnungen einen Raum zum Innehalten. Solche an einem Ort konzentrierten aber flexiblen Arbeitsräume dienen als „Katalysator für die nahtlose Zusammenarbeit der unterschiedlichen Forschungs- und Lehrumfelder“, so die Architekten. Wie auch in ihrem Multifunktionsgebäude in Ikast schaffen C.F. Møller im Biomedicum ein stadtähnliches Umfeld. Ein Café sowie öffentliche Ausstellungsräume im Erdgeschoss sind explizit als Einladung zu verstehen.





























