Ein Traum für Kinder und Karnickel: Kita von Gerhard Feuerstein
Foto: Luis Tamaya
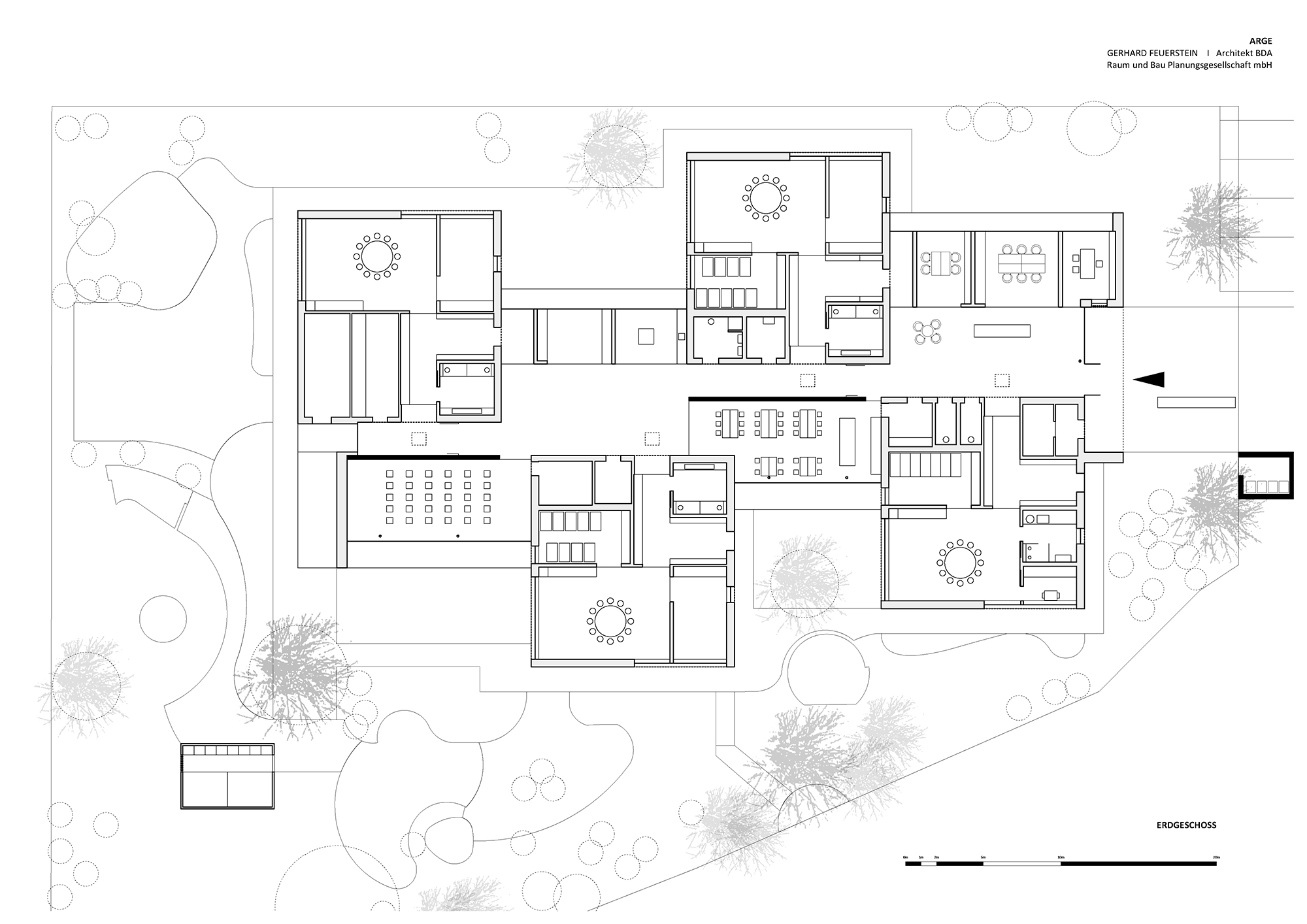
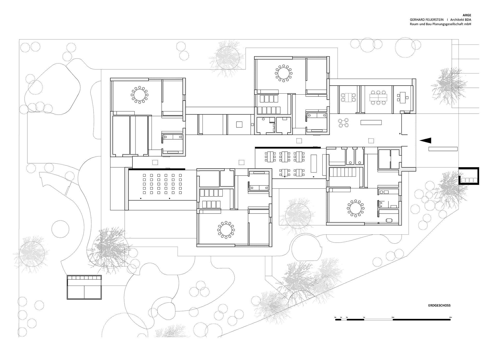
Angrenzend an die Grundschule und die Sporthalle fügt sich die Kita am Südrand von Primisweiler in die Bebauungsstruktur ein. Der eingeschossige Neubau ist komplett als Holzkonstruktion umgesetzt. Er gliedert sich in vier Baukörper mit Satteldächern, die von einem flachen Volumen zusammengefasst werden. Letzteres beinhaltet als zentraler Marktplatz die gemeinschaftlichen Bereiche der Kindertagesstätte. Empfang, Mehrzweck-, Personal- und sogenannte Forscherräume, Küche und Essbereich bilden den kommunikativen Mittelpunkt. Die vier Gruppenhäuser sind jeweils als in sich geschlossene Einheiten organisiert. Sie sind mit Garderoben und Sanitäranlagen ausgestattet und verfügen alle über einen direkten Zugang zu einem eigenen Innenhof sowie zum Außenbereich.
Ebenso wie die Fassaden sind auch die Oberflächen im Inneren der Kita großteils in heller Weißtanne ausgeführt. Das Holz sorgt für eine natürliche Atmosphäre. In raumhohen Einbauschränken können Spielsachen und andere Dinge verstaut werden. Sie machen Lagerräume überflüssig und schonen damit das Budget. Während pflegeleichte Böden den Anforderungen der jungen Nutzer gerecht werden, bieten großflächige Verglasungen einen herrlichen Ausblick nach draußen, bis hin zu den Bergen. Grauer Sichtbeton und Textilien komplettieren die schlichte und robuste Materialpalette.
Neben der ökologischen, technikarmen Bauweise wurde bei der Planung der Kita vor allem auf Energieeffizienz und den Einsatz von regionalen, natürlichen Rohstoffen geachtet. Fernwärme, Hackschnitzelheizung, dezentrale Lüftungsanlagen in den Gruppenhäusern und Photovoltaik unterstützen den Lowtech-Ansatz des Ensembles. Die eingeschossige Konstruktion ist besonders wartungsarm und ermöglicht einen optimierten Grundriss mit wenig Erschließungsflächen. Außerdem wird so der Bezug nach draußen und zum Garten verstärkt. Neben den üblichen Spielflächen und -installationen wird auf der Freifläche ein Tierhaus mit Hasen und Hühnern zum Highlight.
Weitere Informationen:
Mitarbeiter: Verena Schmid, Andreas Mayr, Hannes Graser
Innenarchitektur: Raum und Bau Planungsgesellschaft
Landschaftsarchitektur: Martin Kappler mit Karin Dettmar
Statik: merz kley partners
Nutzfläche: 1.155 m2















