Eingebettet: Kinderkrippe von Bob Gysin Partner
Foto: Dominique Marc Wehrli
Die Kita besteht seit 2004 in dem „Wagi-Dörfli“ und war einer der ersten integrativen Kindergärten in der Schweiz. Auch die neue „Waldkrippe“ ist in die soziale Gesamtanlage eingebettet und steht für Kinder mit und ohne Beeinträchtigung im Alter von drei Monaten bis zum Kindergarteneintritt zur Verfügung. In der Nähe des holzwirtschaftlichen Bereichs, im Süden des Wagerenhof-Areals angesiedelt, sollte der Neubau ein Ensemble mit den Bestandsbäumen bilden. Die Stiftung wünschte einen Holzbau mit ökologisch-nachhaltigem Fokus.
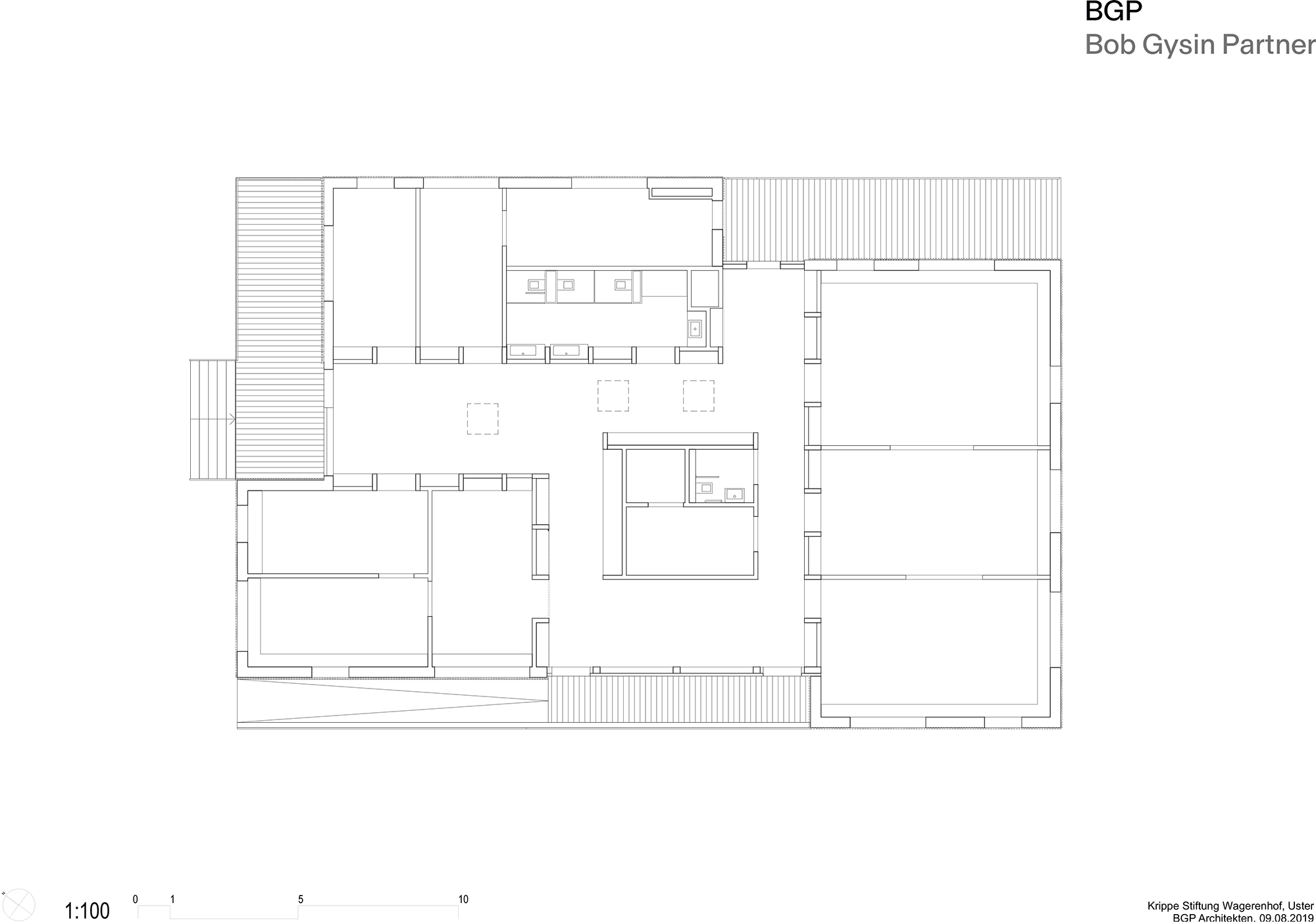
Mit ihrem Entwurf eines eingeschossigen Flachbaus mit Holzlamellenfassade gewannen die Architekten Bob Gysin Partner 2017 den Wettbewerb. Der Körper des minimalinvasiven Holzelementbaus basiert auf selbsttragenden Boxen. Vorfabrizierte Boden- und Wandelemente ermöglichten eine schnelle Bauzeit und hohe Kosteneffizienz. Die Bodenelemente liegen direkt auf einer Stahlträgerunterkonstruktion, die auf Schraubfundamenten sitzt. Die tiefen Lamellen in der Fassade sollen ein Spannungsfeld zwischen offen und geschlossen sowie zwischen Innen- und Außenraum bilden. Rampen sorgen für einen barrierefreien Zugang; eine Terrasse verbindet die Krippe mit dem sogenannten Feengarten und einem Spielplatz.
Das Gebäude haben die Architekten wie ein eigenes kleines Dorf organisiert. Räume ähnlicher Nutzung sind zusammengefasst und bilden eigenständige Volumen. Es gibt einen Spielbereich, einen Schlafbereich und eine Büroabteilung. Die Spielräume können je nach Bedarf voneinander abgetrennt oder zusammengeschaltet werden. Zwischen den Volumen befindet sich eine multifunktionale, gemeinschaftlich genutzte Fläche mit Koch- und Essbereich, einer Malstation und der Garderobe. Hier kann auch gespielt werden und es bieten sich vielfältige Rundläufe an. Mit Fichte ausgekleidete Oberlichter lassen viel Tageslicht ins Innere. Die Wände sind mit feinmaserigem Fichtenholz und formaldehydfreien OSB-Platten verkleidet, die teils rot oder gelb eingefärbt sind. Die Farbsetzung ist verschiedenen Nutzungen zugeordnet und schafft Orientierung. Die Innenfassaden bilden Fenster- und Sitznischen aus, die von den Kindern entdeckt und genutzt werden können.
Weitere Informationen:
Generalplanung: Bob Gysin Partner BGP Architekten
Generalunternehmung: Gross Generalunternehmung
Bauingenieur: Linsi + Deubelbeiss, Pfäffikon ZH
Landschaftsarchitektur: Hager Partner
Bauphysik: Steigmeier Akustik + Bauphysik
Gebäudetechnik: T&P Troxler&Partner AG
Elektroplanung: Maneth Stiefel
Fotograf: Dominique Marc Wehrli














