// Check if the article Layout ?>
Eklektizistische Collage: Wohnhaus King Bill in Fitzroy
Foto: Derek Swalwell
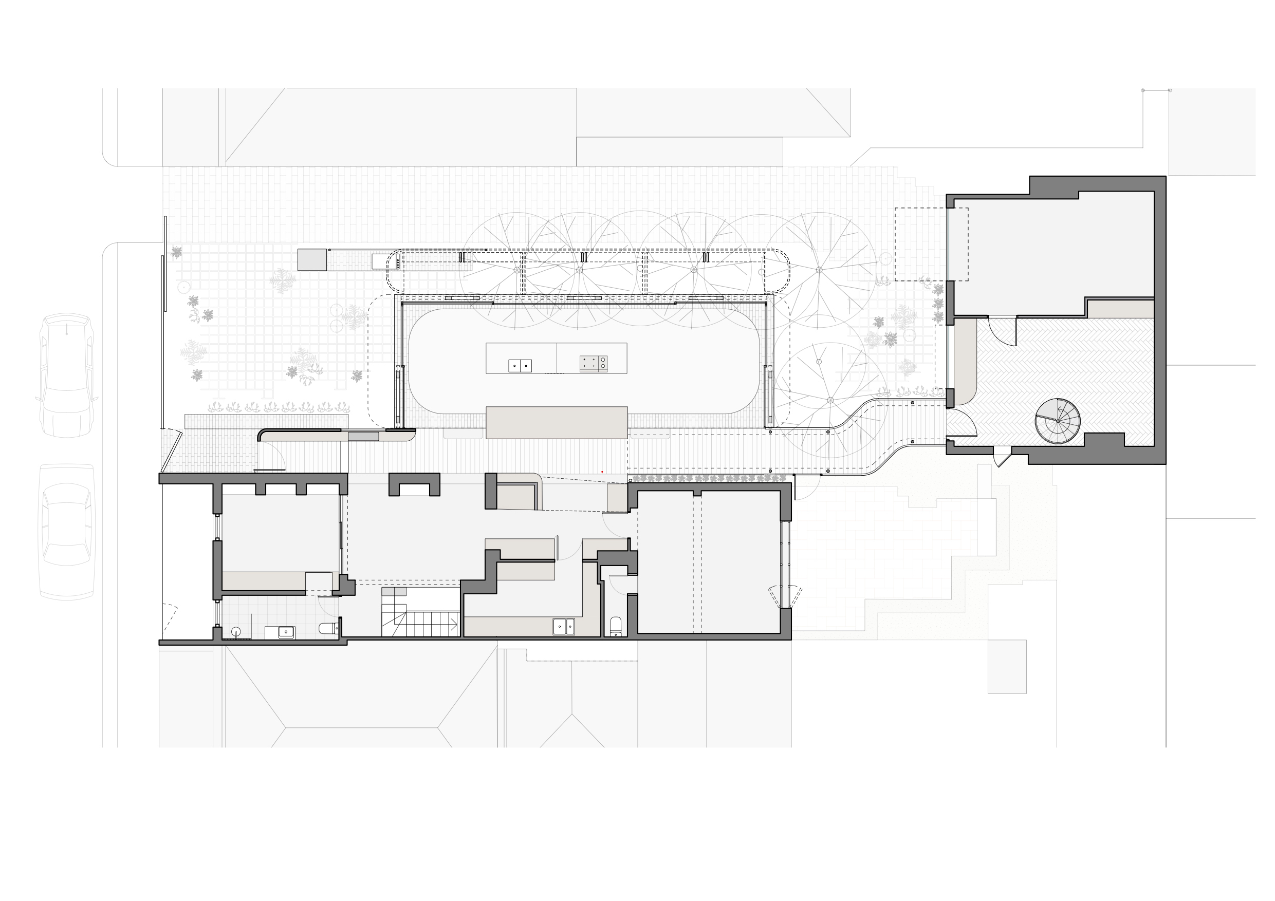
Das Wohnhaus in der King Bill-Straße ist das Ergebnis der Renovierung und Erweiterung eines zweistöckigen Reihenhauses, das um 1850, unter Einbeziehung eines angrenzenden Gartens, erbaut wurde. Der Altbau und der östlich davon gelegene Garten waren ursprünglich zwei getrennte Grundstücke, die mit der von Austin Maynard Architects geschaffenen Hauslandschaft zusammengefasst wurden.
Eine vierköpfige Familie beauftragte Austin Maynard mit dem Entwurf für ein Wohnhaus »für immer und ewig«. Sie wünschten sich mehr Wohnraum, aber auch einen großzügigen Garten. Bei der Planung ließen sich die Architekten von der wunderbar eklektischen Umgebung im Fitzroy, einem Vorort von Melbourne, inspirieren: von den Backsteinbauten und Ferienhäusern in direkter Nachbarschaft zu einfachen Nachkriegsbauten, Lagerhallen, Fabrikbauten und Blechhütten.
Das Haus King Bill ist eine Hommage an diese einzigartige Vielfalt, dennoch wirkt das Haus weder nostalgisch noch als ein ironischer Kommentar. Austin Maynard bezeichnen ihren Bau als einen »Liebesbrief an Fitzroy«. Das bauliche Chaos wird mit dem Neubau in eine seine gebaute Geschichte – eine spannende Anordnung aus Texturen, Materialien und Formen überführt.















