// Check if the article Layout ?>
Endlich vereint: Kunstfakultät von Snøhetta
Foto: Trond Isaksen, Statsbygg
Auf 14800 m² wurden die Räume für die Kunstfakultät der Universität Bergen (KMD) zusammengeführt. Da sich Snøhetta ebenfalls als interdisziplinäres Büro sieht, ist es nur logisch, dass genau sie diesen Auftrag erhalten haben. Neben Museumsbauten wie dem SFMOMA oder dem Kulturpalast in Dharan finden sich auch Ladendesign, Landschaftsplanung und Entwürfe für Banknoten in ihrem Portfolio. So brachten sie wohl ein besonderes Verständnis für die fakultätsübergreifende Arbeit auf, die in diesem Gebäude ein Heim finden soll.
Schutz vor Regen, Wind und See
Die Fassade des kompakten Baukörpers mit leicht abgeschrägter Dachfläche ist ein Puzzle aus 900 verschiedenen Aluminiumpaneelen. Sie bilden ein Relief, das von einzelnen, teilweise auskragenden Fenstern durchbrochen wird. Das rohe Aluminium ist salzwasserbeständig und hält auch dem rauen, regnerischen Klima an der Westküste Norwegens stand. Über die Jahre wird die Hülle verwittern, oxidieren und eine größere Vielfalt an Farben und Texturen aufweisen. Über das schräge Dach wird außerdem überschüssiges Regenwasser in einen Tank geleitet und von dort in ein Becken auf dem Vorplatz geleitet, um Druck und Überflutung zu vermeiden.
Die Fassade des kompakten Baukörpers mit leicht abgeschrägter Dachfläche ist ein Puzzle aus 900 verschiedenen Aluminiumpaneelen. Sie bilden ein Relief, das von einzelnen, teilweise auskragenden Fenstern durchbrochen wird. Das rohe Aluminium ist salzwasserbeständig und hält auch dem rauen, regnerischen Klima an der Westküste Norwegens stand. Über die Jahre wird die Hülle verwittern, oxidieren und eine größere Vielfalt an Farben und Texturen aufweisen. Über das schräge Dach wird außerdem überschüssiges Regenwasser in einen Tank geleitet und von dort in ein Becken auf dem Vorplatz geleitet, um Druck und Überflutung zu vermeiden.
Besucher willkommen
Durch den Neubau auf dem Gelände einer Kranfabrik wird die Universität mit der Stadt Bergen verkuppelt. Der Haupteingang liegt am Kunstallmenningen, einem öffentlichen Platz. Im Gebäude kreuzen sich die beiden Achsen, die öffentliche und jene für Studenten und Mitarbeiter. Ihre Schnittstelle ist die 1300 m² große Halle im Zentrum des Gebäudes. So wird sie zum Ort der Begegnung, an dem Veranstaltungen und Ausstellungen stattfinden können. Gleichzeitig ist sie mit einem originalen Brückenkran mit Laufkatze aus dem Vorgängerbau bestückt und damit ideal auch für großformatige oder besonders schwere studentische Arbeiten.
Durch den Neubau auf dem Gelände einer Kranfabrik wird die Universität mit der Stadt Bergen verkuppelt. Der Haupteingang liegt am Kunstallmenningen, einem öffentlichen Platz. Im Gebäude kreuzen sich die beiden Achsen, die öffentliche und jene für Studenten und Mitarbeiter. Ihre Schnittstelle ist die 1300 m² große Halle im Zentrum des Gebäudes. So wird sie zum Ort der Begegnung, an dem Veranstaltungen und Ausstellungen stattfinden können. Gleichzeitig ist sie mit einem originalen Brückenkran mit Laufkatze aus dem Vorgängerbau bestückt und damit ideal auch für großformatige oder besonders schwere studentische Arbeiten.
Robuste Oberflächen
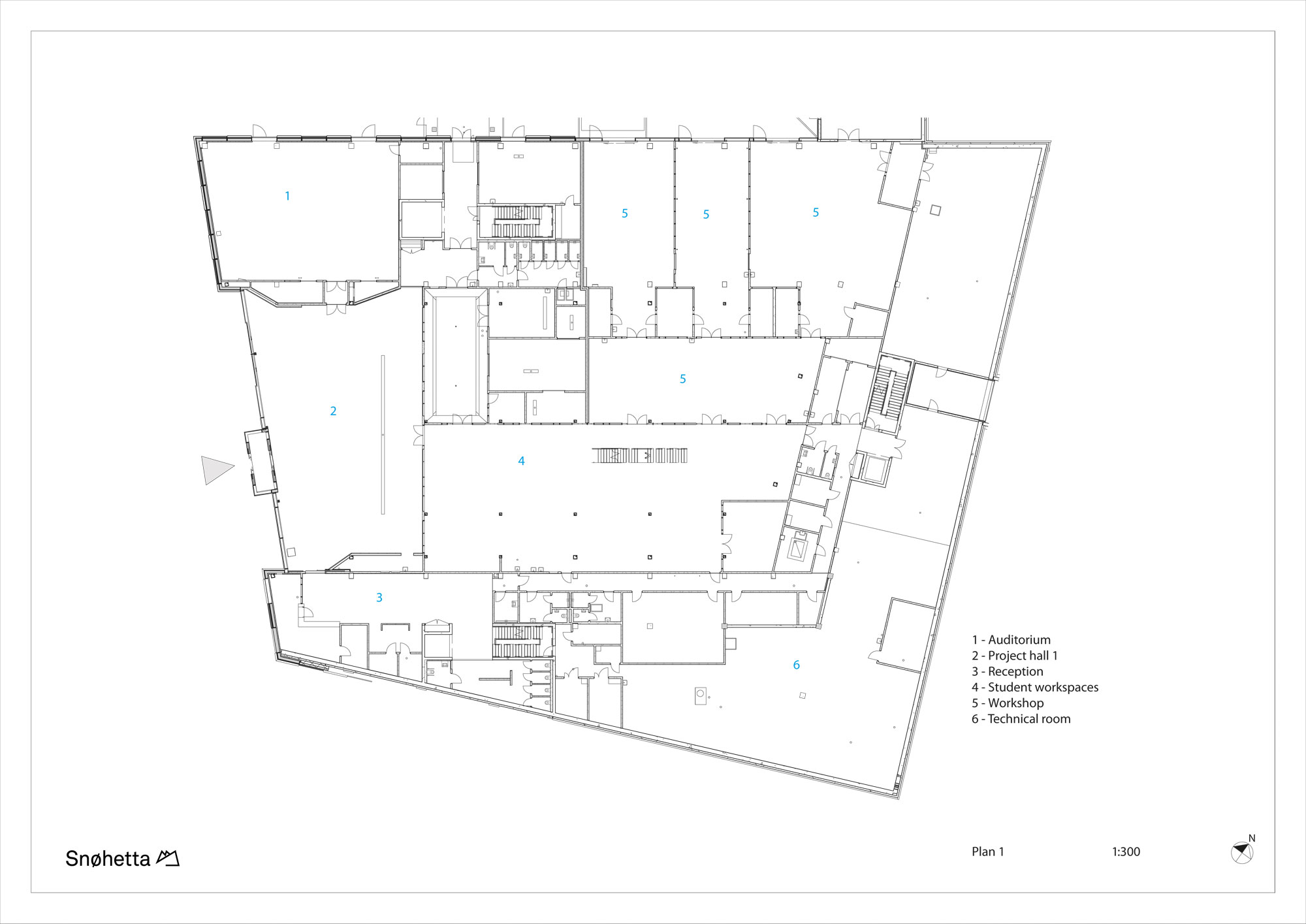
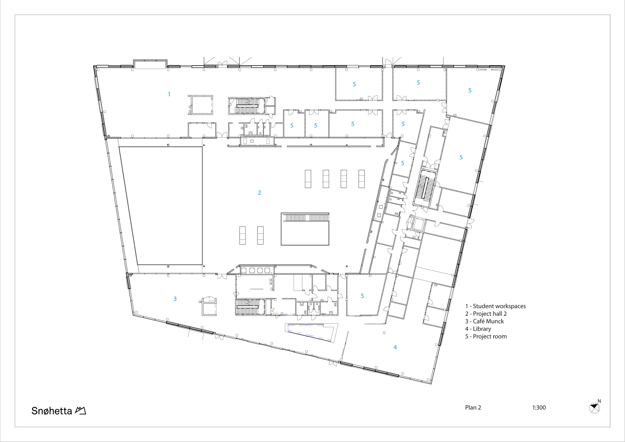
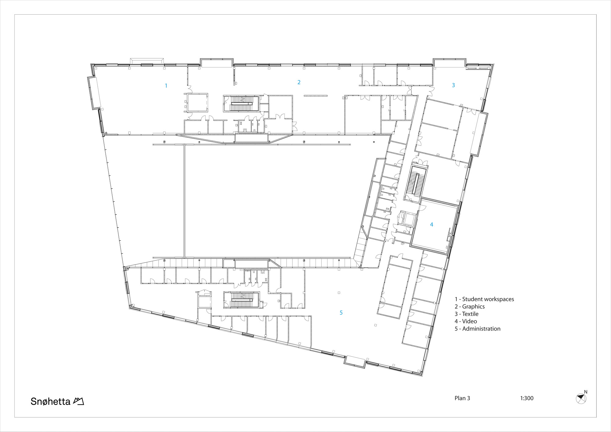
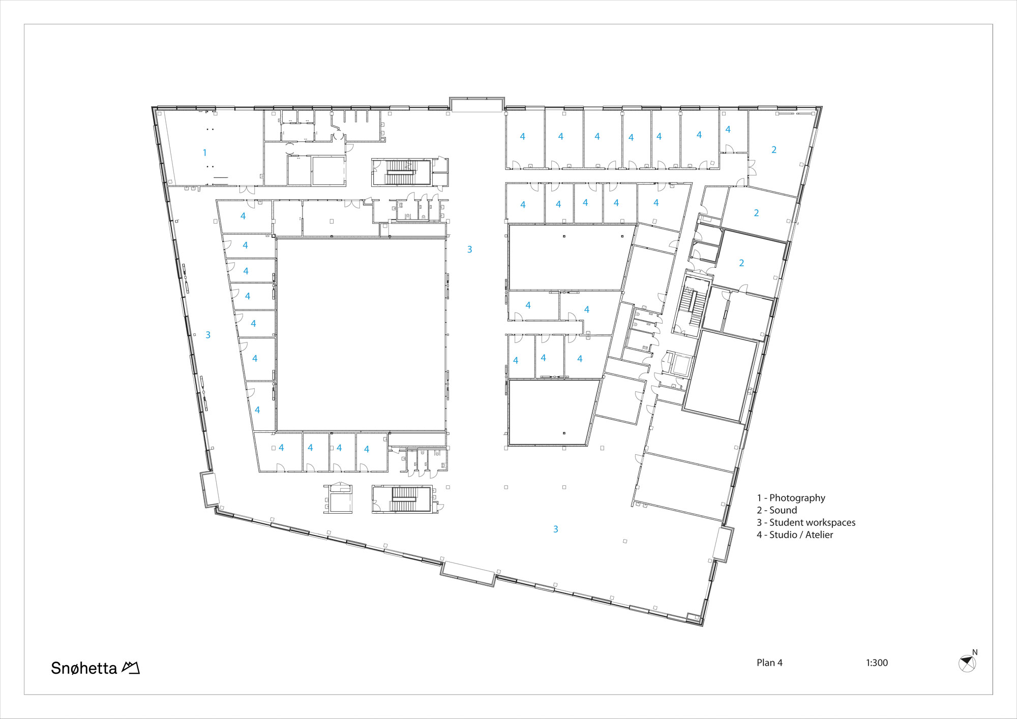
Der Neubau bietet Platz für 350 Studenten und die Verwaltung der Fachbereiche Bildende Kunst, Musik und Design. Im zweiten Obergeschoss lädt ein Café mit Terrasse zur Pause ein; die Bibliothek sowie eine Materialbibliothek sind für die Öffentlichkeit zugänglich. Eine Etage höher liegen die Büros der Verwaltung sowie die ersten Ateliers. Im vierten Obergeschoss folgen die meisten Werkstätten und weitere Arbeitsräume. Pinienholzpflaster, Vinyl und Ortbeton wurden als besonders robuste Bodenbeläge ausgewählt, damit das Gebäude noch viele Generationen an aktiven Kunststudenten trägt.
Der Neubau bietet Platz für 350 Studenten und die Verwaltung der Fachbereiche Bildende Kunst, Musik und Design. Im zweiten Obergeschoss lädt ein Café mit Terrasse zur Pause ein; die Bibliothek sowie eine Materialbibliothek sind für die Öffentlichkeit zugänglich. Eine Etage höher liegen die Büros der Verwaltung sowie die ersten Ateliers. Im vierten Obergeschoss folgen die meisten Werkstätten und weitere Arbeitsräume. Pinienholzpflaster, Vinyl und Ortbeton wurden als besonders robuste Bodenbeläge ausgewählt, damit das Gebäude noch viele Generationen an aktiven Kunststudenten trägt.























