// Check if the article Layout ?>
Endlich wieder Licht im Viertel: Lumière Kino in Maastricht
Foto: Marcel van der Burg
Aus allen Öffnungen strömt Licht in die noch triste Nachbarschaft. Doch der Charme des Lumière Kinos hat sich bereits rumgesprochen; das Restaurant und auch die Bar sind stets gut besucht. Zwischen gigantischen Rohren und altem Mauerwerk lassen sich entspannt Gespräche über die Filme führen, die im hinteren Teil des Gebäudekomplexes vorgeführt werden.
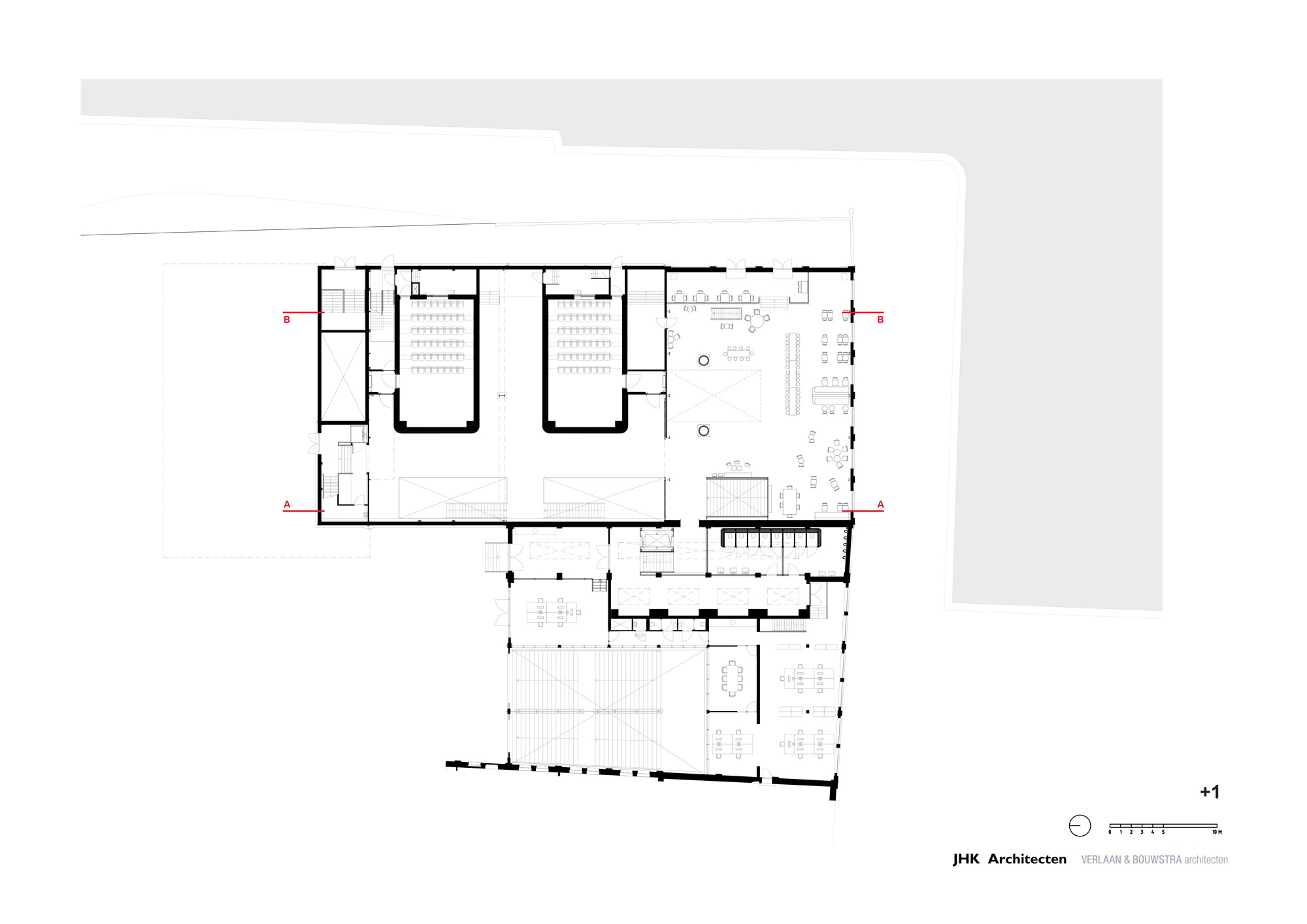
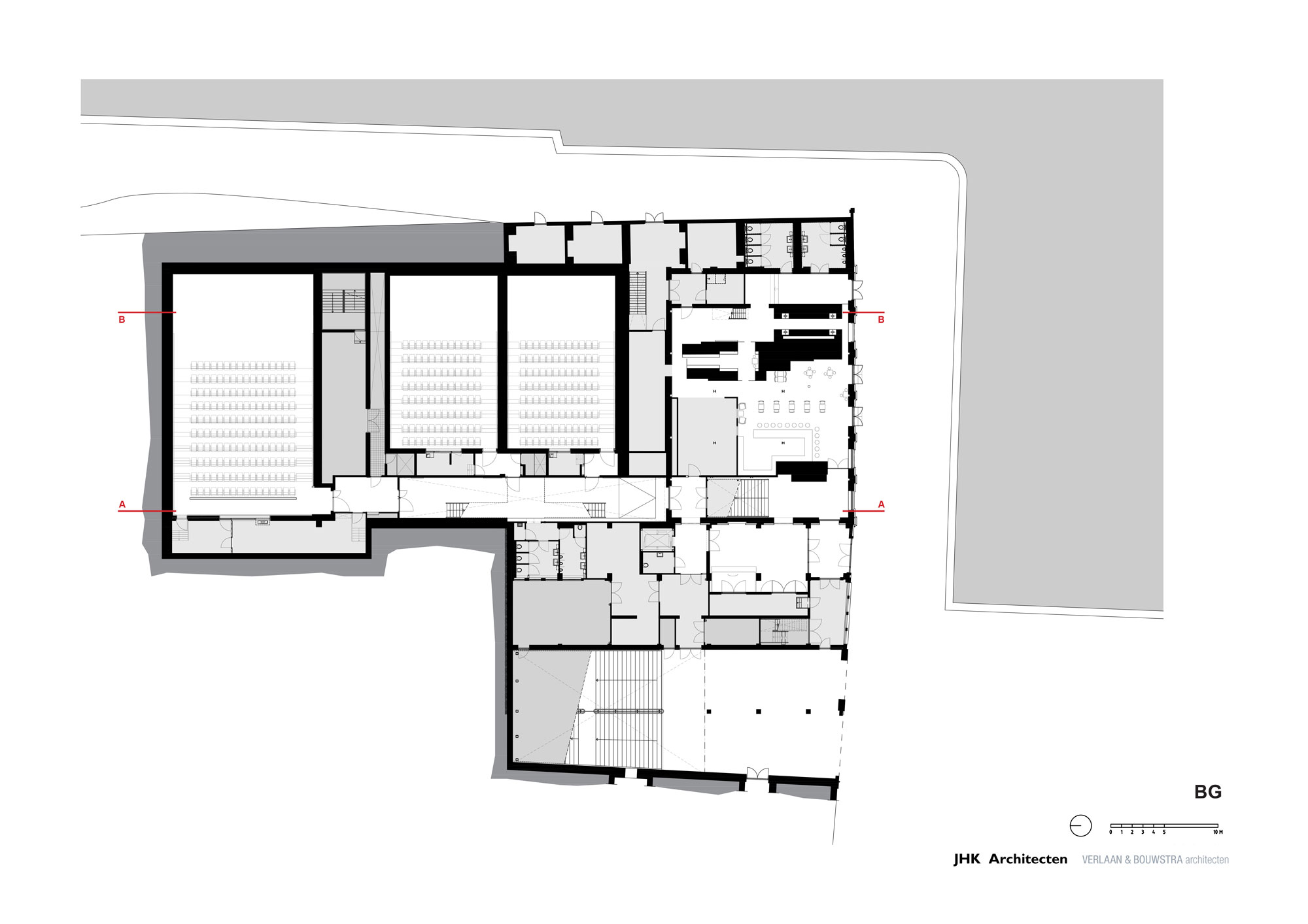
Das Kohlekraftwerk bestand zuletzt aus vier Gebäudeteilen. In der Ecke des Hafenbeckens lag ein Maschinenraum, der nun zum Restaurant umgewandelt wurde. Direkt dahinter befinden sich zwei Kesselräume, in denen nun sechs Kinosäle eingerichtet wurden. Außerdem verfügte das Kraftwerk über eine Tischlerwerkstatt, die den Maschinenraum mit den umliegenden Bauten verband. Zwischen Maschinenraum und Werkstatt blieb allerdings eine Lücke, die im Laufe der Zeit geschlossen wurde, ohne die ehemaligen Außenwände der Häuser zu verändern. In genau dieser Lücke befindet sich heute der Eingang und die besonderen Oberflächen der Wände wurden bewusst erhalten, um die vielfältige Umbaugeschichte zu erzählen.
Insgesamt 500 Zuschauer kann das Kino beherbergen. Mit besonderer Rücksicht wurde die Steigung der Sitzreihen gehandhabt. Die Säle sind zur Hälfte in den Keller eingelassenen, was reichlich Raum in der Höhe bot. Die Reihen steigen nun parabelförmig an, wodurch ein guter Blick von allen Plätzen und ein gemeinschaftliches Kinoerlebnis garantiert sind. Die Akustikpaneele an den Wänden greifen diese Form ebenfalls auf.
Bei der Instandsetzung des Kraftwerkkomplexes mussten die Architekten auf die sehr unterschiedliche Verfassung der Gebäudeteile reagieren. Die ehemalige Werkstatt zum Beispiel war einer der ersten Bauten, die in der Hennebique-Methode ausgeführt wurden. Balken, Stützen und Böden wurden in Einem gegossen, wodurch eine besonders schlanke Konstruktion möglich wurde. Um den Raum zu sichern, musste die Konstruktion verstärkt werden; dafür sind im Obergeschoss jetzt große Teile des Tragwerkes wieder erlebbar. Jeder Raum überrascht mit neuen Details, verziertem Mauerwerk oder hohen Oberlichtern, sodass in diesem Kino sogar der Gang zur Toilette zum Erlebnis wird.



















