Vernetzendes Untergeschoss
Erweitertes Sportzentrum Kerenzerberg von Burkard Meyer Architekten
Der neue Unterkunftstrakt des Sportzentrums Kerenzerberg, © Roger Frei, Zürich
Das Sportzentrum Kerenzerberg besteht seit 1971 als zweitgrößtes Sportzentrum der Schweiz. Infolge der ersten Altersspuren schrieb der Kanton Zürich 2015 einen Architekturwettbewerb aus. Neben der Sanierung sah der Wettbewerb auch die Erweiterung der Anlage um zusätzliche Hallenfläche, Theorieräume sowie eine höhere Bettenkapazität vor. Als Sieger ging der Entwurf „Silhouette“ von Burkard Meyer Architekten hervor – die Anlage wurde in den letzten Jahren sukzessive erweitert.


Blick in die neue Dreifachsporthalle des Sportzentrums, © Roger Frei, Zürich
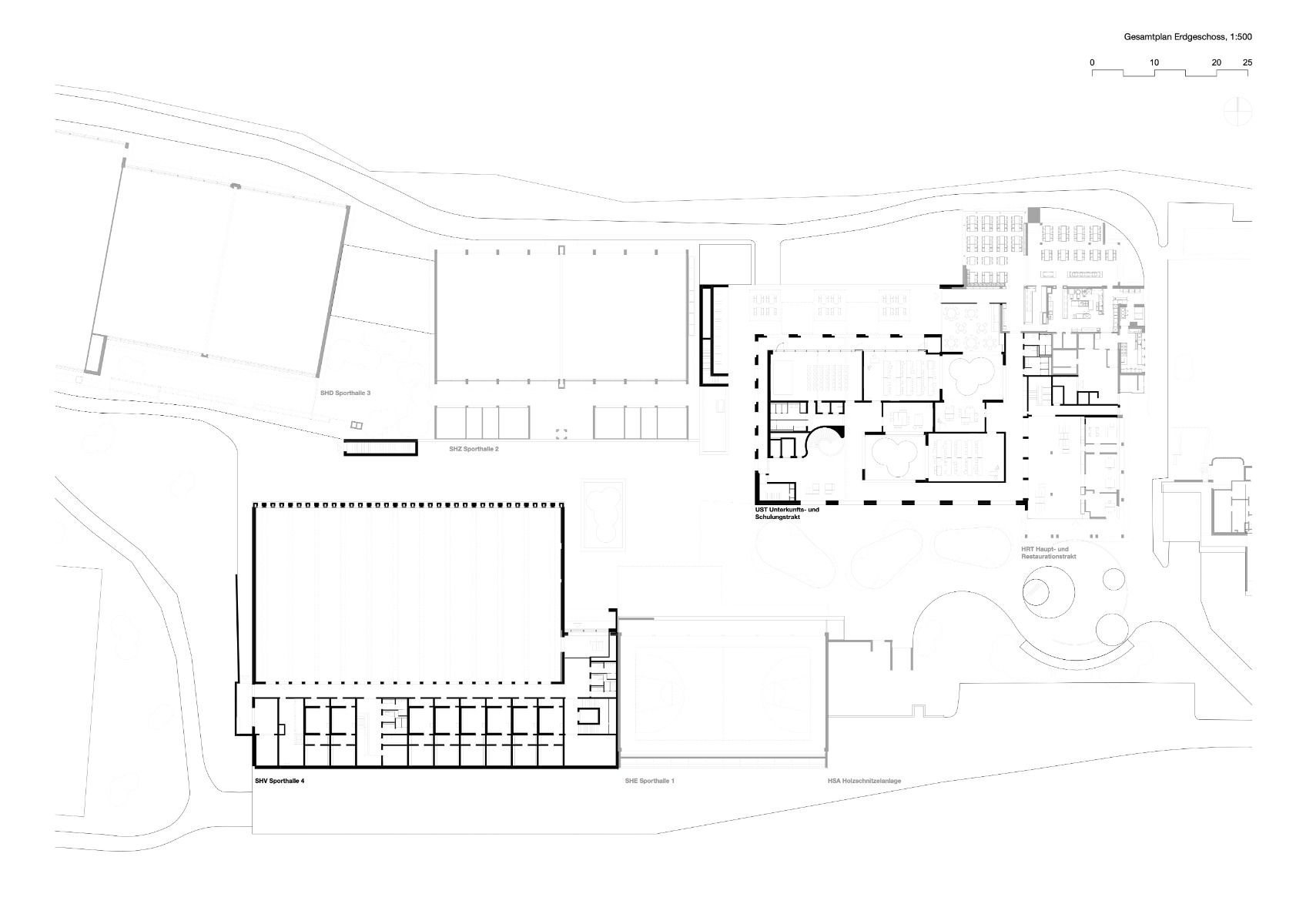
Gebäudeensemble
Der Entwurf konnte als Ensemble aus Dreifachsporthalle und Unterkunftstrakt überzeugen. Hangseitig angeordnet ergänzt die Dreifachhalle als vierte und größte Halle das Angebot des Zentrums. Zwischen den in die Topografie eingebetteten Sporthallen bildet der Unterkunftstrakt eine neue funktionale und räumliche Mitte. Außen entsteht zusätzlicher Raum für Aktivitäten und weitere Sportanlagen.
Verbindendes Untergeschoss
Im Untergeschoss des Unterkunftsgebäudes bilden neue Gemeinschafts- und Theorieräume eine Raumstruktur, die Bestand und Neubauten zu einer Einheit verbinden. Hier entsteht eine Unterwelt, die neben der räumlichen Vernetzung vielmehr zum Aufenthalt und Austausch der Sportler dient. Zwischen den Sporthallen angeordnete Tiefhöfe und ein langes Oberlicht entlang einer Turnhalle versorgen das Untergeschoss mit ausreichend Tageslicht.


Eine geschwungene Treppe verbindet das Erdgeschoss mit dem Untergeschoss des neuen Unterkunftstraktes. © Roger Frei, Zürich
Unterkunftstrakt
Der neungeschossige Unterkunftstrakt bildet einen Kontrast zu den flachen Baukörpern. Im Erd- und Untergeschoss befinden sich der Empfangsbereich und die Aufenthaltsräume, in den sieben Obergeschossen sind die Zimmer für die Sportler untergebracht. Während die gegossene Betonhülle des Neubaus in seiner Materialität auf den umliegenden Bestand verweist, verleiht die sandgestrahlte Oberfläche dem Bau eine moderne Optik.


Treppenhaus der neuen Dreifachsporthalle, © Roger Frei, Zürich


Ein im Werk vorgefertigtes Raummodul des neuen Unterkunftstraktes wird an die Baustelle geliefert. © Roger Frei, Zürich
Vorgefertigte Zimmer
Die bereits im Werk vollständig ausgebauten Zimmer aus mit CLT-Brettsperrholz verleimten Massivholztafeln beschleunigten den Bauprozess massiv. Das Innere der aufeinandergestapelten Raummodule bildet in hölzerner Optik einen Kontrast zur Fassade. Die mit Dreischichtplatten ausgebauten 77 Einheiten, unterteilt in fünf verschiedene Zimmertypen, fassen insgesamt mehr als 170 Betten.


Die neue Dreifachsporthalle des Zentrums, © Roger Frei, Zürich
Auszeichnungen
Das Ensemble überzeugt als Kombination aus Beton und Massivholzbau auch ökologisch: So erfüllt die äußere, sich selbst tragende Sichtbetonfassade die Minergie-P Anforderungen. Die 130 000 m² große Anlage überzeugte auch beim Wettbewerb „Best Architects 2023“: Laut Jury erfüllt der Entwurf die räumlichen und funktionalen Ansprüche an die Anlage langfristig.
Architektur: Burkard Meyer Architekten BSA
Bauherr: Sportamt Kanton Zürich, Hochbauamt Kanton Zürich
Standort: Panoramastraße 8, Filzbach (CH)
Landschaftsarchitektur: Vogt Landschaftsarchitekten
Tragwerksplaner: Synaxis
Bauunternehmen: Güttinger Baumanagement




















