Lernort im Alukleid
Erweiterung der Pädagogischen Hochschule Tirol
© Zooey Braun
Lorem Ipsum: Zwischenüberschrift
ARSP Architekten erweitern die Pädagogische Hochschule Tirol (PHT) in Innsbruck, revitalisieren die bestehenden Trakte und fassen den Bildungscampus mit einer neuen Aluminiumhülle einheitlich zusammen. Die einzelnen Abteilungen des Tiroler Aus-, Fort- und Weiterbildungszentrums für Lehrkräfte der Elementar-, Primar- und Sekundarstufe waren bis dato über die ganze Stadt verteilt. Im Zuge des Umbaus vereint man sie nun an einem Standort.


© Zooey Braun
Lorem Ipsum: Zwischenüberschrift
Das Planerteam aus Dornbirn konnte sich mit seinem Entwurf zur Vergrößerung und Sanierung der Hochschule 2012 im EU-weiten Wettbewerb durchsetzen. Es orientiert sich an den Qualitäten der vorhandenen Substanz, interpretiert diese auf moderne Weise und denkt sie zeitgemäß weiter. Zwei der Bauten aus den 1970er-Jahren bleiben erhalten. Sie werden bis auf ihre Grundstruktur rückgebaut und um zwei Neubauten ergänzt.
Lorem Ipsum: Zwischenüberschrift
Alle vier Volumen sitzen auf einer rundum verglasten Sockelzone auf, umfassen jeweils vier Stockwerke und verfügen über einen zentralen Patio. Die Fassaden der Baukörper sind geprägt durch gekantete, feinperforierte Paneele aus Aluminiumblech. Sie legen sich als leichte Hülle vor Bestand und Neubauten und verleihen dem Ensemble in Kombination mit dunkel gerahmten Bandfenstern ein homogenes Aussehen.


© Zooey Braun
Lorem Ipsum: Zwischenüberschrift
Ein gemeinsam mit dem Büro Uebele entwickeltes Wortpalindrom legt sich um den unteren Teil der Ansichten und symbolisiert den Bildungscharakter des Gebäudes. Auch das Leitsystem des PHT-Geländes stammt von dem Grafikstudio aus Stuttgart.


© Zooey Braun
Lorem Ipsum: Zwischenüberschrift
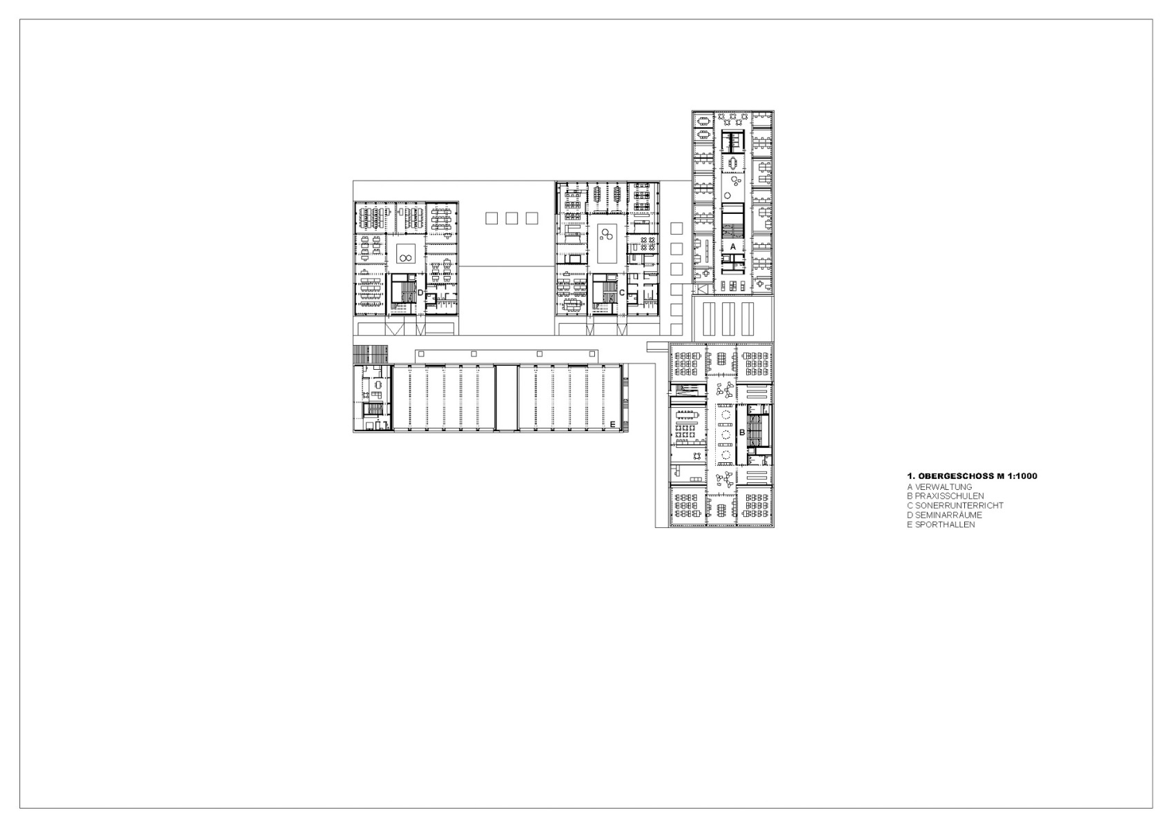
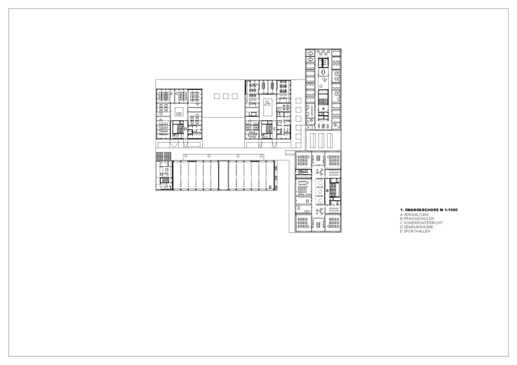
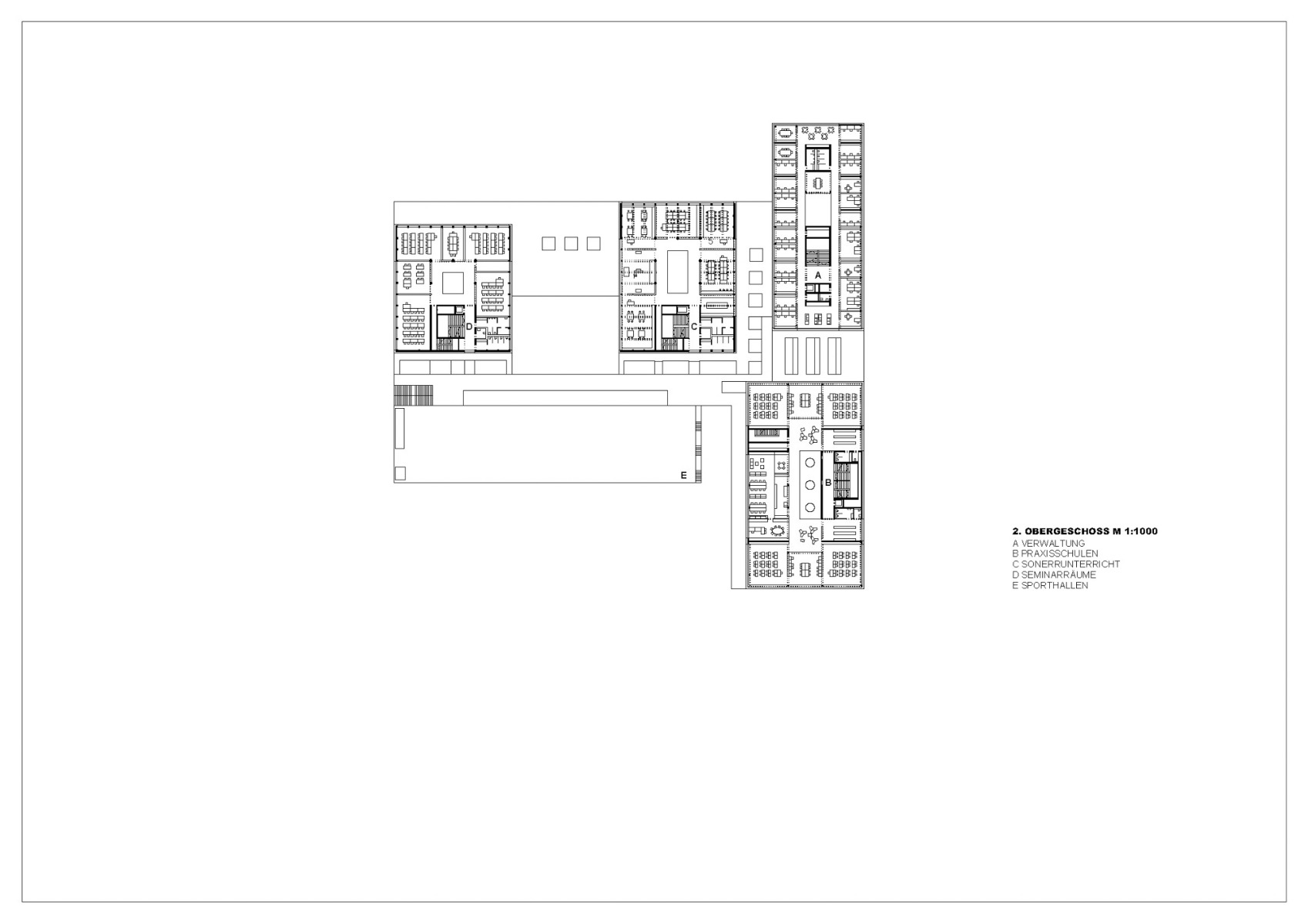
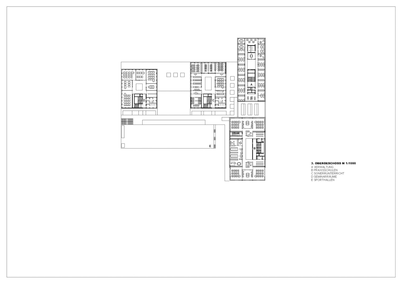
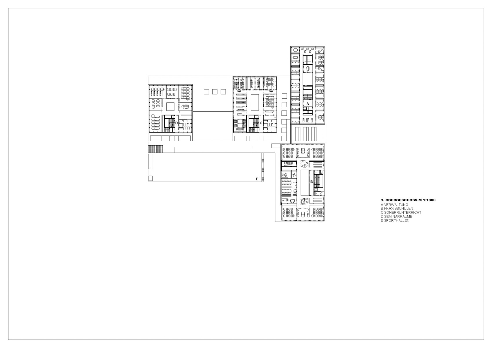
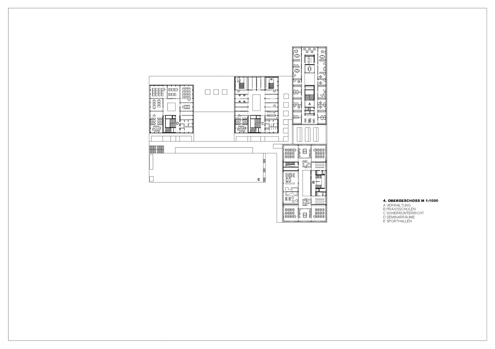
Im Inneren organisieren die Architekten die Funktionen auf 24 000 m2 Nutzfläche anhand des konstruktiven Stahlbetonskeletts völlig neu. Während im Erdgeschoss die gemeinschaftlichen Bereiche mit Aula, Mensa, Bibliothek und Hörsälen untergebracht sind, haben die darüberliegenden Volumen mit Verwaltung, Praxisschule, Sonderunterricht und Seminarräumen je eine spezifische Nutzung. Das begehbar ausgeführte Dach des Eingangsniveaus sorgt für kurze Wege zwischen den einzelnen Trakten und bietet Aufenthaltsbereiche im Freien. Ein Park in südlicher Richtung sowie die sanierten Nebengebäude mit Sporthallen und Schwimmbad komplettieren den neuen Hochschulcampus in Innsbruck.
Architektur: ARSP Architekten
Bauherr: BIG – Bundesimmobiliengesellschaft
Standort: Innsbruck (AT)
Tragwerksplanung: gbd group, zsz Ingenieure (Bestand)
Freiraumplanung: Silands Gresz + Kaiser Landschaftsarchitekten
Bauphysik, Bauakustik: BDT - Bau Dämm Technik
HKLS-Planung: IB Peis & Partner
Elektroplanung: TB Hanel
Signaletik: büro uebele visuelle kommunikation
Grundstücksgröße: 16 352 m²
Bruttogeschossfläche: 29 068 m²
Nutzfläche: 24 288 m²






















