Tradition und Moderne
Erweiterung eines Teehauses in der Auvergne
Sanierung eines ehemaligen Teehauses in Frankreich, © Récita
Der kleine Thermal- und Luftkurort La Bourboule liegt 50 km südwestlich von Clermont-Ferrand. Im 12 ha großen Parc Fenestre sanieren und erweitern Récita Architecture ein ehemaliges Teehaus. Das Gebäude beherbergt nun ein Restaurant und eine Kindertagesstätte.


Das sanierte Gebäude beherbergt ein Restaurant und eine Kindertagesstätte. © Récita
Parc Fenestre
Der Park wurde 1874 als Englischer Garten angelegt. Er enthält eine bemerkenswerte Pflanzenvielfalt, darunter auch einige Riesenmammutbäume. Im Gesamtkonzept des Englischen Gartens wurde das bestehende Gebäude als einfaches Steinhaus mit Schieferdach gestaltet und beherbergte ehemals ein Teehaus für die Parkbesucher.
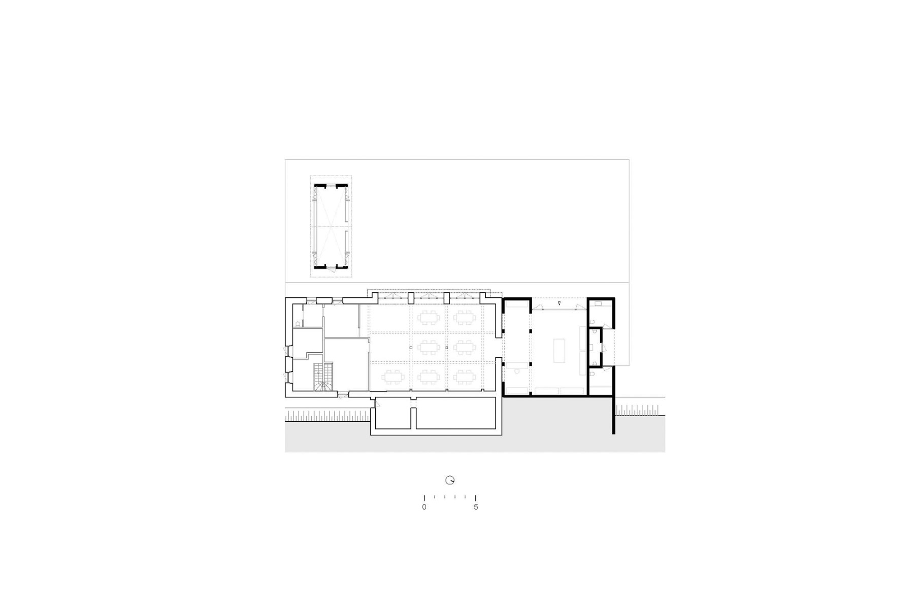
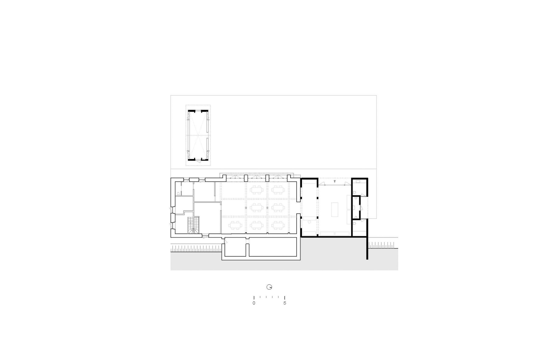
Bestand und Neubau
Nach der Sanierung findet sich im Obergeschoss des zweistöckigen Gebäudes nun eine Kindertagesstätte, die vom Gemeindeweg auf der Rückseite aus ebenerdig zugänglich ist. Das Restaurant auf der unteren Ebene bleibt weiterhin für den Tourismus erhalten.


Eine Sommertheke dient der Versorgung für Veranstaltungen im Park. © Récita
Der Erweiterungsbau schafft zusätzliche Flächen für die Kindertagesstätte: einen Empfangsbereich sowie einen Bewegungsraum. Das Erdgeschoss umfasst neue Sanitäranlagen, einen Heizraum sowie eine Sommertheke für die Aktivitäten des Parks. Durch einen Höhenversprung ist der Unterschied zwischen Bestand und Neubau klar von außen ablesbar.


Ein Höhenversprung verdeutlicht den Unterschied zwischen Bestand und Neubau. ©
Récita


© Récita
Materialien des Neubaus
Der neue Gebäudeteil ist aus farbigem Beton konzipiert, der in Schichten gegossen wurde und so die Rauheit des Bestandsbaus auf moderne Weise interpretiert. Die raue Textur der Außenhaut wird im Inneren durch helle Oberflächen und Holz abgelöst, wodurch eine einladende Atmosphäre erzeugt wird. Die massiven Holzrahmen erzeugen dabei die Anmut einer Scheune.


Massive Holzrahmen erzeugen die Anmut einer Scheune. © Récita


Helle Oberflächen und Holz charakterisieren den Innenraum. © Récita
Dach
Die Dachdeckung des Neubaus ist – angelehnt an den Bestand – ebenfalls aus Schiefer und verleiht dem Ensemble einen einheitlichen Charakter.
Architektur: Récita architecture
Bauherr: Gemeinde La Bourboule
Standort: Avenue Agis Ledru, 63150 La Bourboule (FR)

















