Es werde Licht: Einfamilienhaus mit intelligenter Fassade von Layan
Foto: Peter Bennetts
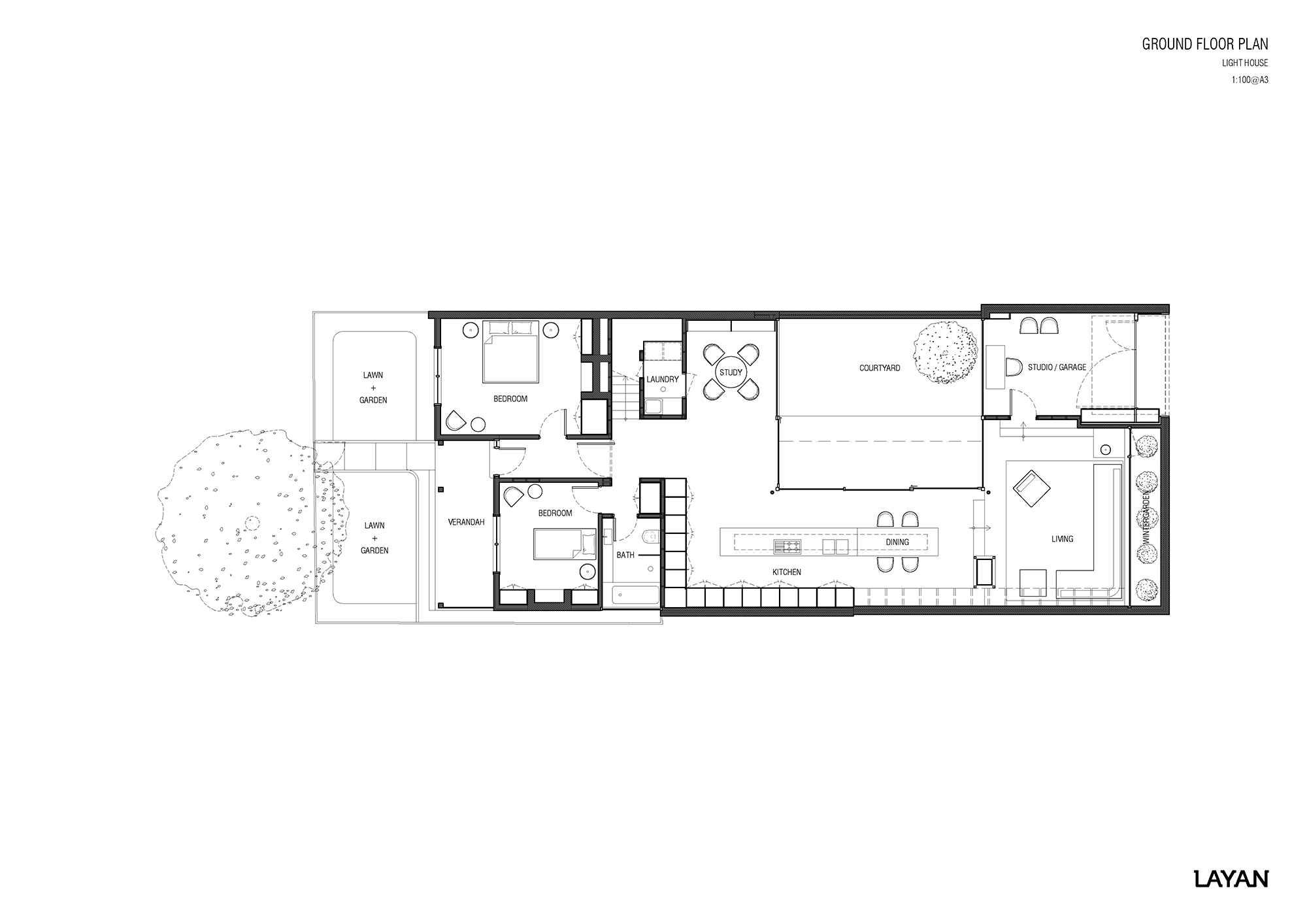
Im Zuge der Renovierung erweitern die Architekten das flache Gebäude um einen zweistöckigen Anbau, der zukünftig genügend Wohnraum für die ganze Familie schafft. Nach den Vorgaben der Denkmalschutzbehörde bleibt der straßenseitige Bestand und dessen Fassade unverändert. Mit Rücksicht auf die Nachbarn entsteht der neue Trakt im hinteren Teil des rechteckigen Grundstücks.
Das Erdgeschoss umfasst ein Arbeitszimmer, anschließend einen offen gestalteten Wohn-Essbereich mit Küche und schließlich den Anbau mit Treppe, Bad und zwei Schlafzimmern. Im neuen Obergeschoss befindet sich der Masterbedroom mit angrenzender Ankleide und eigenem Badezimmer. Sämtliche Räume im Erdgeschoss ordnen sich rund um einen zentralen, von raumhohen Verglasungen eingefassten Innenhof. Er bringt nicht nur viel Licht und Luft ins Innere, sondern dient auch als geschützter Entspannungsort. In den unteren Bereichen bestimmen gedeckte, warme Farben und Materialien das Bild. Sowohl die Wände als auch den Patio kleiden cremefarbene Travertinziegel. Amerikanisches Eichenholz und Terrazzoböden sorgen für eine zeitlose Eleganz.
Das namensgebende Highlight des „Light House“ bildet die intelligente Fassade, die das obere Stockwerk umhüllt. Sie wurde vom Bauherrn und Geschäftsführer von The Flaming Beacon selbst akribisch geplant und besteht aus 907 Polyethylen-Scheiben. Die dekorativen Kunststoffelemente sind in zwei Schichten auf einer Unterkonstruktion aus Edelstahlrohren montiert und schützen vor Sonne und ungewollten Einblicken. Sie lenken das Licht und werfen abwechslungsreiche Schatten in den Raum. Jede der Scheiben ist außerdem mit einer intelligenten LED versehen: In ihrer Gesamtheit verwandeln sie die Fassade bei Dämmerung in ein diffuses Leuchtmittel. Zusätzlich unterstützen sie den ausgeglichenen Melatonin-Haushalt der Bewohner, welcher sich maßgeblich auf die Schlafqualität auswirkt.
Weitere Informationen:
Baukosten: 590.000 €




















