// Check if the article Layout ?>
Es werde Licht: Sanierung eines Bürogebäudes von Atelier Zündel Cristea
Foto: Sergio Grazia
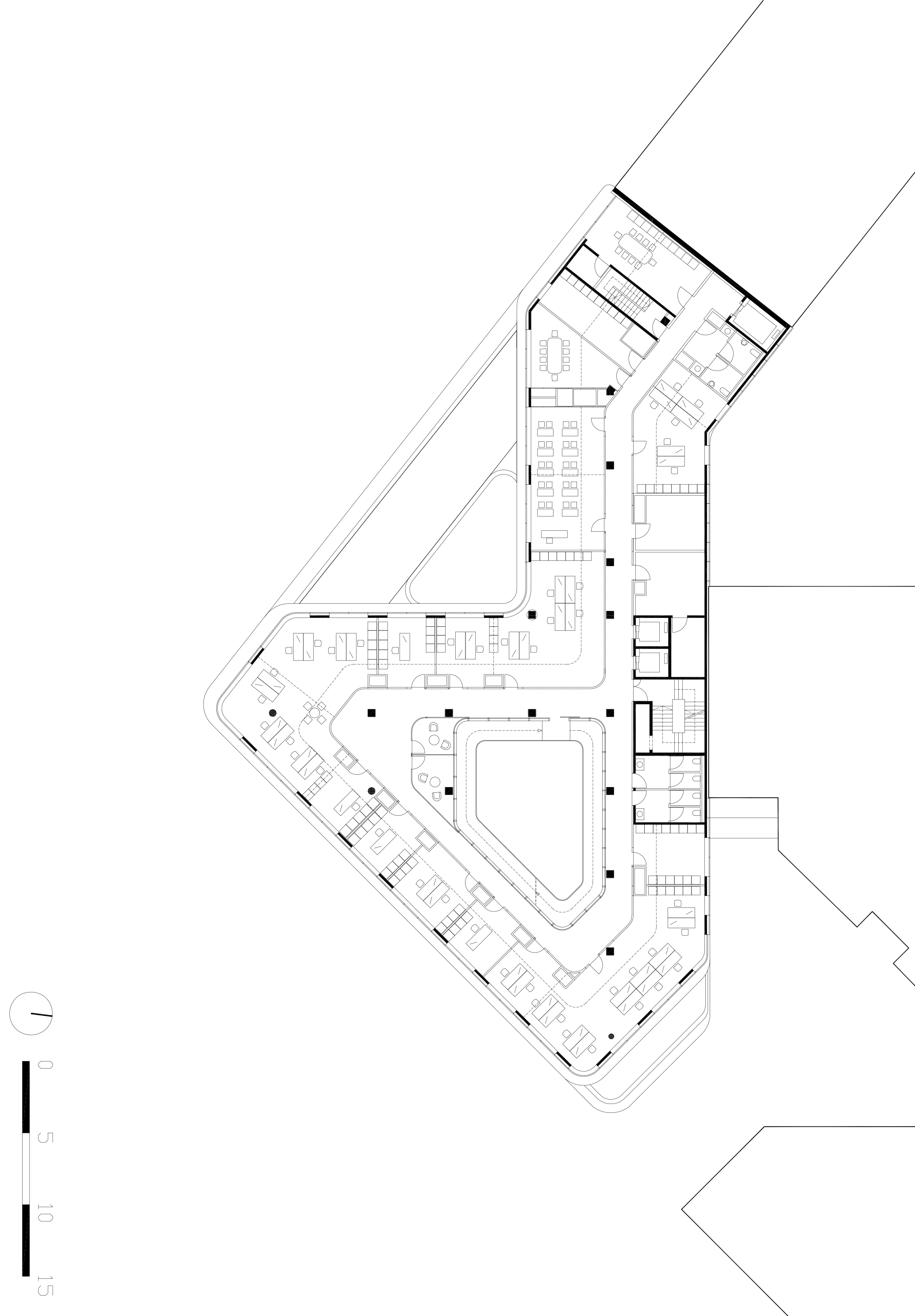
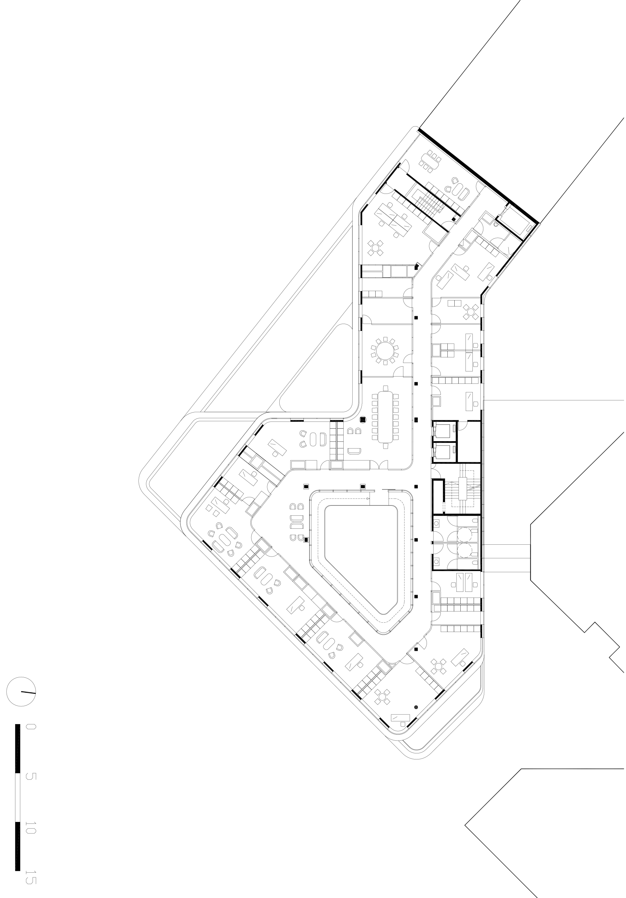
Entlang der Seine, nicht weit von Paris entfernt, gestalteten AZC den neuen Firmensitz von Pacemar SAS, einer Holding des Unternehmens. Die 4.300 Quadratmeter große Skelettstruktur aus Stahlbeton bestand aus Unter-, Erd- und vier weiteren Obergeschossen. In puncto Helligkeit, Raumstruktur und Akustik entsprach das Gebäude nicht mehr den aktuellen Anforderungen. Die architektonischen Interventionen bestanden insbesondere darin, die Geschosse neu zu organisieren und fließende, effiziente Räumlichkeiten mit natürlicher Belichtung zu kreieren. Das großzügige Atrium, ausgeschnitten aus dem übergewichtigen und schlecht beleuchteten »Innenleben« des Altbestands, lässt nun natürliche Beleuchtung bis in die Eingangshalle fließen. Eine monumentale Rampe innerhalb des Patios verbindet das Erdgeschoss mit den oberen Geschossen und lädt zum Hinaufschlendern ein. Wo es vorher dunkel und uneinsichtig war, entsteht nun ein visuelles Wechselspiel zwischen den einzelnen Büroetagen und eine angenehme Transparenz, die Privatsphären respektiert. Die Reorganisation der internen Wegeführung führt zu einer besseren Sichtbarkeit unter besseren Lichtverhältnissen, was primär die Erschließung und so den Austausch zwischen Nutzern und Gebäude fördern soll.
Eine für die Büronutzung optimierte Fassade erfüllt die Aufgabe von Transparenz und guter Aussicht auf die angrenzende Seine. Sie soll identitätsstiftend wirken und dabei den maritimen Hintergrund der Firmengeschichte reflektieren. Die gläserne Doppelfassade ist natürlich belüftet und sichert die thermische und akustische Isolierung des Gebäudes, die vor allem an der lauten Quai Gallieni notwendig ist. Kleine, justierbare Lamellen im Zwischenraum der Fassade dienen als Blendschutz für die Angestellten, während das reflektierende Licht auf der Gebäudehülle je nach Blickrichtung mit dem Himmel zu verschwimmen scheint.
Weitere Informationen:
Architektenteam: Grégoire Zündel, Irina Cristea Concours – Mario Russo; Studies - Elena Melzoba; Construction - Jeremias Lorch, Laurie Tiradas
weitere Partner: Batiserf, Louis Choulet, Bureau Michel Forgue, VS-A, ARTELIA
Baukosten: 12,5 M€
Fotograf: Sergio Grazia
Architektenteam: Grégoire Zündel, Irina Cristea Concours – Mario Russo; Studies - Elena Melzoba; Construction - Jeremias Lorch, Laurie Tiradas
weitere Partner: Batiserf, Louis Choulet, Bureau Michel Forgue, VS-A, ARTELIA
Baukosten: 12,5 M€
Fotograf: Sergio Grazia
























