// Check if the article Layout ?>
Experimentier- und innovationsfreudig: Dôme in Caen
Foto: Filip Dujardin
Der neue Dôme, das so genannte »Haus der Forschung und Imagination«, ist Teil des Sanierungsplans und das erste fertiggestellte Gebäude in diesem Kontext. Bruther architectes, haben mit einer einfachen Architektursprache ein gemischt genutztes Gebäude geschaffen, das allen Bewohnern der Stadt offensteht.
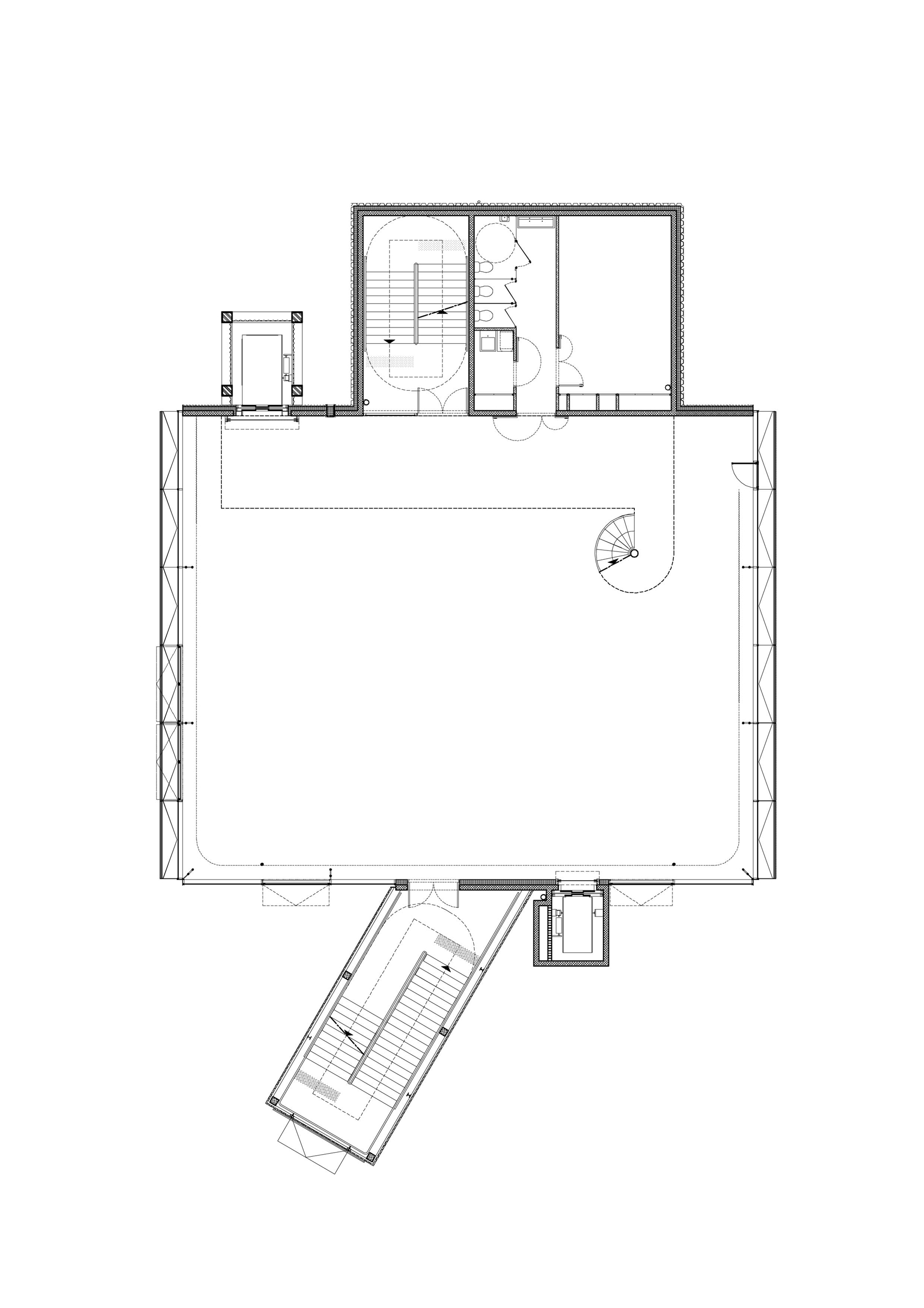
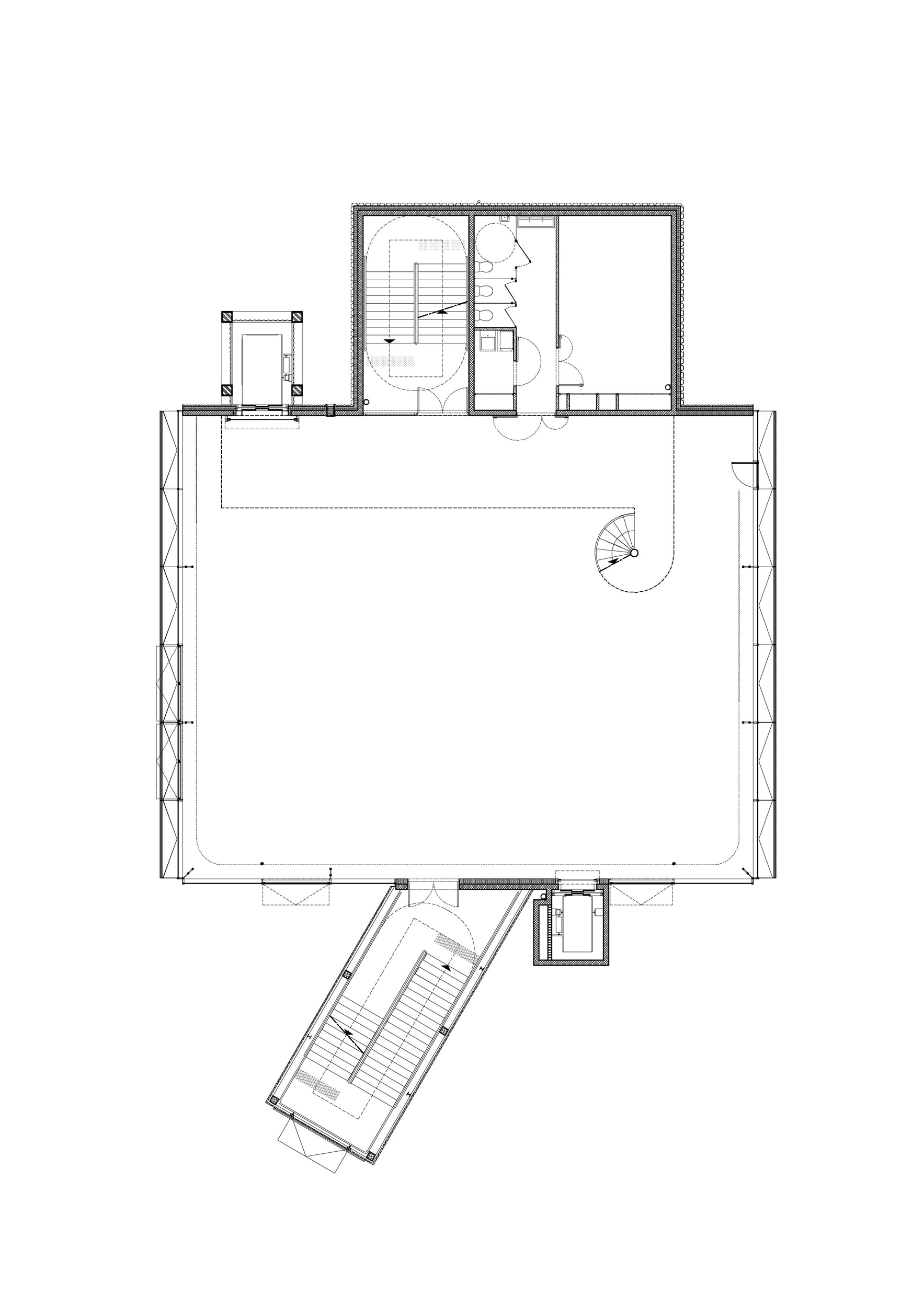
Um an die industrielle Vergangenheit des Standortes zu erinnern, haben die Architekten Stahl, Kunststoff und Beton verwendet und die technischen Anlagen freiliegen lassen. Die vier tragenden Säulen und Nebenräume wie Toiletten und Lagerräume wurden nach außen verlegt. So hebt der gesamte Bau vom Boden ab und schafft einen durchgehenden öffentlichen Raum darunter. Die Fassaden können aus Glas sein, da sie keine tragende Funktion haben. Der Grundriss ist auf allen Ebenen offen, variabel und barrierefrei. Alle Geschosse haben zudem doppelte Deckenhöhe und Zwischengeschosse, die nicht von der Struktur abhängen und beweglich sind. Als Mischnutzung können alle Ebenen als Ausstellungsflächen, Werkstätten oder Büros verwendet werden.
Die Terrasse auf dem obersten Geschoss bietet einen Panoramablick über die Stadt, hier befindet sich auch der namensgebende »Dôme«. Dieser Raum ist wie der übrige Teil des Komplexes für gemischte Nutzungen vorgesehen und kann u.a. für Veranstaltungen genutzt werden. Die markante Form verleiht dem Gebäude eine starke Identität. Seine Kompaktheit, Vertikalität und Transparenz machen es zu einem Leuchtturm und Wahrzeichen der Stadt.
Mit seinem modernen und innovativen Image verleiht der Block der Halbinsel wahrscheinlich eine neue Dimension. Doch wird dies ausreichen, um Menschen in eine Gegend zu locken, die aktuell eher einem verwaisten Parkplatz als dem neuen Stadtzentrum ähnelt?
Um an die industrielle Vergangenheit des Standortes zu erinnern, haben die Architekten Stahl, Kunststoff und Beton verwendet und die technischen Anlagen freiliegen lassen. Die vier tragenden Säulen und Nebenräume wie Toiletten und Lagerräume wurden nach außen verlegt. So hebt der gesamte Bau vom Boden ab und schafft einen durchgehenden öffentlichen Raum darunter. Die Fassaden können aus Glas sein, da sie keine tragende Funktion haben. Der Grundriss ist auf allen Ebenen offen, variabel und barrierefrei. Alle Geschosse haben zudem doppelte Deckenhöhe und Zwischengeschosse, die nicht von der Struktur abhängen und beweglich sind. Als Mischnutzung können alle Ebenen als Ausstellungsflächen, Werkstätten oder Büros verwendet werden.
Die Terrasse auf dem obersten Geschoss bietet einen Panoramablick über die Stadt, hier befindet sich auch der namensgebende »Dôme«. Dieser Raum ist wie der übrige Teil des Komplexes für gemischte Nutzungen vorgesehen und kann u.a. für Veranstaltungen genutzt werden. Die markante Form verleiht dem Gebäude eine starke Identität. Seine Kompaktheit, Vertikalität und Transparenz machen es zu einem Leuchtturm und Wahrzeichen der Stadt.
Mit seinem modernen und innovativen Image verleiht der Block der Halbinsel wahrscheinlich eine neue Dimension. Doch wird dies ausreichen, um Menschen in eine Gegend zu locken, die aktuell eher einem verwaisten Parkplatz als dem neuen Stadtzentrum ähnelt?
Weitere Informationen:
Fotografen: Filip Dujardin, Julien Hourcade, Maxime Delvaux
Fotografen: Filip Dujardin, Julien Hourcade, Maxime Delvaux





















