// Check if the article Layout ?>
Facettenreiches Dreigespann: EDF Campus südlich von Paris
Foto: Jérémy Bernier, ecdm
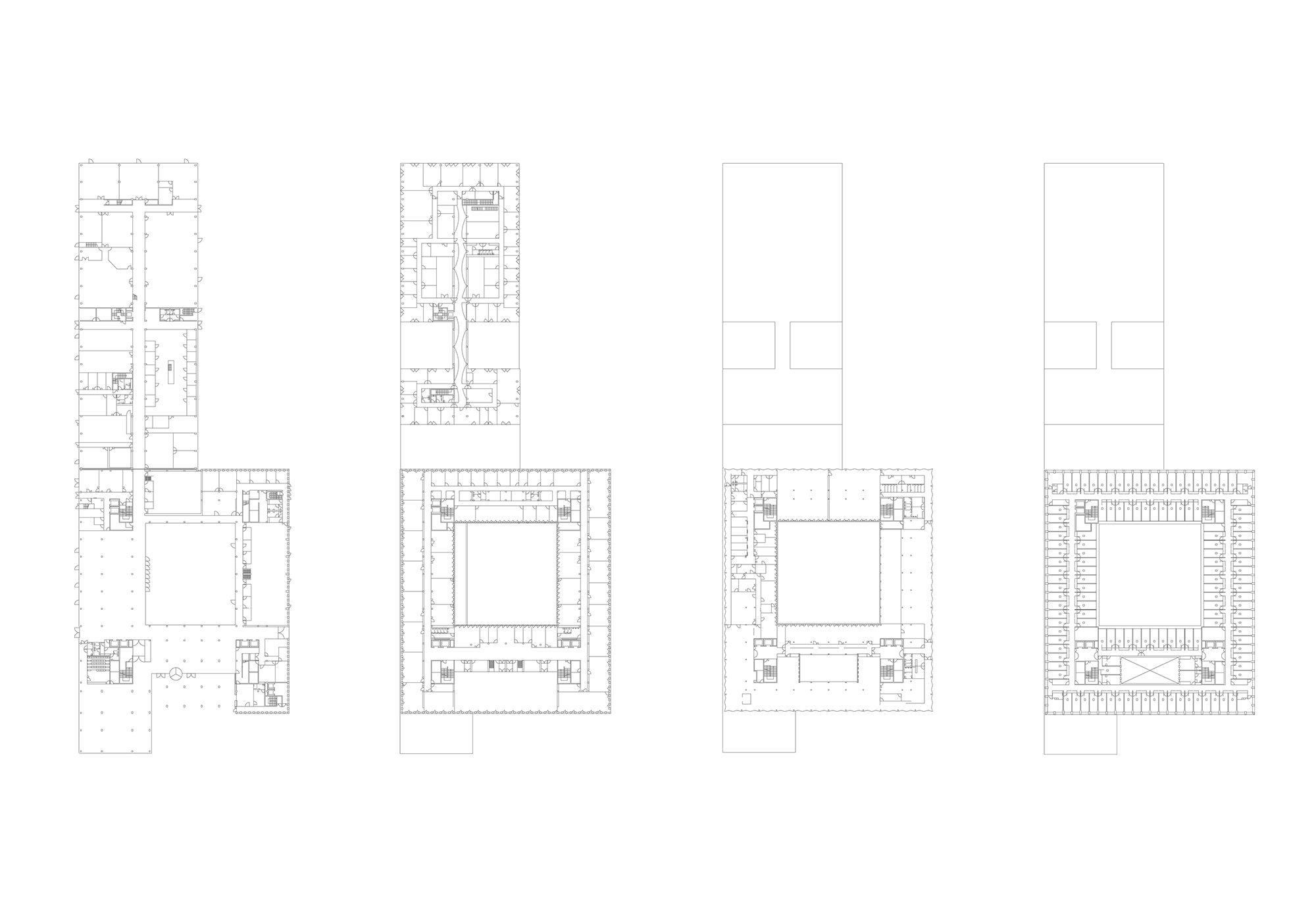
Der Forschungscampus setzt sich aus einem großen Volumen und kleineren Nebentrakten zusammen, in denen Forschung, Arbeit und Erholung nebeneinander stattfinden. Dabei entwickelt sich der annähernd quadratische Hauptkörper über fünf Level in die Höhe und überblickt das gesamte Areal. Ein zentraler Innenhof ist begrünt und wird zum ruhigen Erholungsort. Den Haupteingang begrenzt einer der Anbauten zur linken Seite. Durch einen leichten Rücksprung in diesem Bereich ergibt sich außerdem eine dem Vorplatz zugewandte, geschützte Situation zum Ankommen und Austauschen. An der Rückseite des Hauptgebäudes schließt ein zweistöckiger, rechteckiger Baukörper an.
Programmatische Gliederung
Die programmatische Gliederung der Firmenzentrale wird gleichzeitig zu ihrem Alleinstellungsmerkmal. Wo sich vergleichbare Projekte auf horizontaler Ebene entwickeln, entscheiden sich die Architekten von ecdm für eine vertikale Organisation. Angefangen bei den öffentlichen Bereichen in den unteren Niveaus, über Restaurant und Erholung im Zwischenstockwerk bis hin zu den privaten Räumen in den abschließenden Geschossen stapeln sich die verschiedenen Funktionen übereinander. Der kleine Anbau vorne beherbergt den Showroom, im rückseitigen Nebentrakt finden Trainingsflächen für die Angestellten ihren Platz. Die Fassaden transportieren die konzeptionelle Dreiteilung nach außen. Sie gliedern sich in zwei massive Betonelemente unten und oben, unterbrochen von einer vergleichsweise zarten Zwischenzone. Der dunkle Sockelbereich umfasst das erhöhte Eingangsniveau, sowie die zwei darüber liegenden Geschosse. Brauner Ductal Beton, der auf dem Forschungsareal entwickelt wurde, formt eine Art Gerüst für die raumhohen Verglasungen. Er bildet ein Raster, das sich, ausgehend von den Stockwerken und einem horizontalen Achsmaß von 1.35 Metern, fortführt. Die enorm schmal eingefassten Fensterflächen scheinen, innenseitig positioniert, nahezu zu verschwinden. Im Patio zeigt sich ein anderes Bild: vollflächige Verglasungen im unteren Bereich, ergänzt mit knalligem Rot nach oben hin. Die beiden Nebentrakte grenzen sich auch optisch ab. Ihre silbrig glänzende Hülle aus rostfreien Stahlpaneelen reflektiert die Umgebung je nach Blickwinkel. Vielfältig gestaltete Innenräume
Auch im Inneren gibt es in gestalterischer Hinsicht viel zu entdecken. Eine breite Palette an Farben und Formen schafft vielfältige Räume. Lichtdurchflutete Seminar- und Sitzungssäle werden durch vereinzelte Stützen zoniert. Die Gänge im Trainingstrakt wirken durch halbkreisförmige Aussparungen luftig und hell, während ein rotes Treppenhaus von Kopf bis Fuß in Rot nach Aufmerksamkeit lechzt. Im Eingangsbereich gibt es ein unkonventionelles Beleuchtungskonzept mit auffälligen, organisch geschwungenen Lampen, die einen Großteil der Deckenfläche einnehmen.
Die programmatische Gliederung der Firmenzentrale wird gleichzeitig zu ihrem Alleinstellungsmerkmal. Wo sich vergleichbare Projekte auf horizontaler Ebene entwickeln, entscheiden sich die Architekten von ecdm für eine vertikale Organisation. Angefangen bei den öffentlichen Bereichen in den unteren Niveaus, über Restaurant und Erholung im Zwischenstockwerk bis hin zu den privaten Räumen in den abschließenden Geschossen stapeln sich die verschiedenen Funktionen übereinander. Der kleine Anbau vorne beherbergt den Showroom, im rückseitigen Nebentrakt finden Trainingsflächen für die Angestellten ihren Platz. Die Fassaden transportieren die konzeptionelle Dreiteilung nach außen. Sie gliedern sich in zwei massive Betonelemente unten und oben, unterbrochen von einer vergleichsweise zarten Zwischenzone. Der dunkle Sockelbereich umfasst das erhöhte Eingangsniveau, sowie die zwei darüber liegenden Geschosse. Brauner Ductal Beton, der auf dem Forschungsareal entwickelt wurde, formt eine Art Gerüst für die raumhohen Verglasungen. Er bildet ein Raster, das sich, ausgehend von den Stockwerken und einem horizontalen Achsmaß von 1.35 Metern, fortführt. Die enorm schmal eingefassten Fensterflächen scheinen, innenseitig positioniert, nahezu zu verschwinden. Im Patio zeigt sich ein anderes Bild: vollflächige Verglasungen im unteren Bereich, ergänzt mit knalligem Rot nach oben hin. Die beiden Nebentrakte grenzen sich auch optisch ab. Ihre silbrig glänzende Hülle aus rostfreien Stahlpaneelen reflektiert die Umgebung je nach Blickwinkel. Vielfältig gestaltete Innenräume
Auch im Inneren gibt es in gestalterischer Hinsicht viel zu entdecken. Eine breite Palette an Farben und Formen schafft vielfältige Räume. Lichtdurchflutete Seminar- und Sitzungssäle werden durch vereinzelte Stützen zoniert. Die Gänge im Trainingstrakt wirken durch halbkreisförmige Aussparungen luftig und hell, während ein rotes Treppenhaus von Kopf bis Fuß in Rot nach Aufmerksamkeit lechzt. Im Eingangsbereich gibt es ein unkonventionelles Beleuchtungskonzept mit auffälligen, organisch geschwungenen Lampen, die einen Großteil der Deckenfläche einnehmen.























