// Check if the article Layout ?>
Faltiger Backstein: Nordeste Office von Mínimo Común Arquitectura
Foto: Federico Cairoli
Mínimo Común Arquitectura hat das Nordeste Office, ein Co-Working Space in Mariano Roque Alonso, Paraguay, in Oberflächen eingehüllt, die im Design stetig variieren und damit ein Spiel von Licht und Schatten auf der Fassade kreieren. In ihren eigenen Worten, so die Architekten, trotze das experimentale Mauerwerk der Schwerkraft.
Der 180-m2-Bau befindet sich ein wenig zurückgesetzt auf einem länglichen Grundstück. Die Bäume, die hier vorher standen, wurden größtenteils in das entstandene Gebäude aufgenommen. Der Eingang ist durch die Verlängerung der Wand von der Straße abgeschirmt, gleichzeitig erlauben Durchbrüche erste Blicke ins Innere.
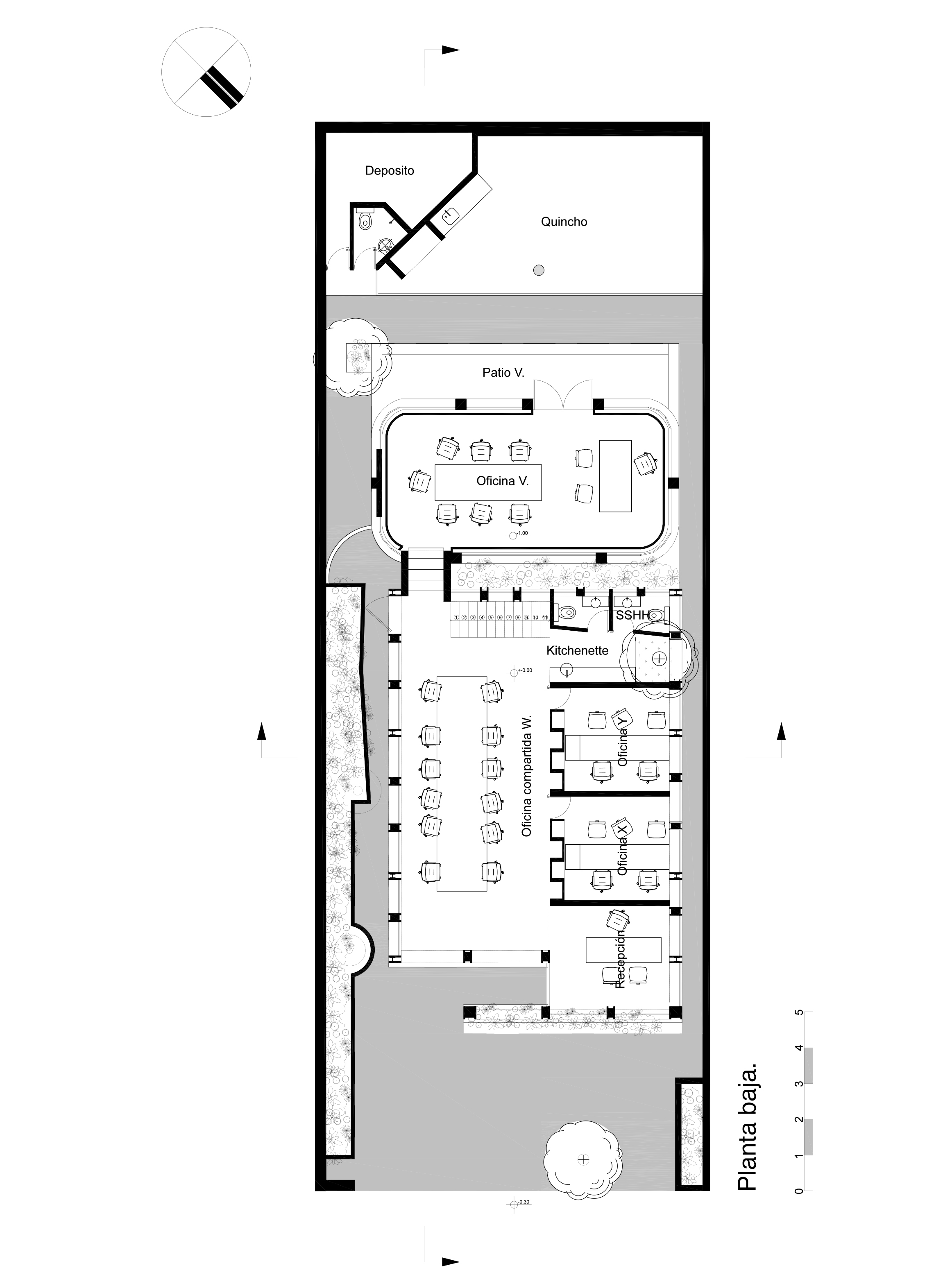
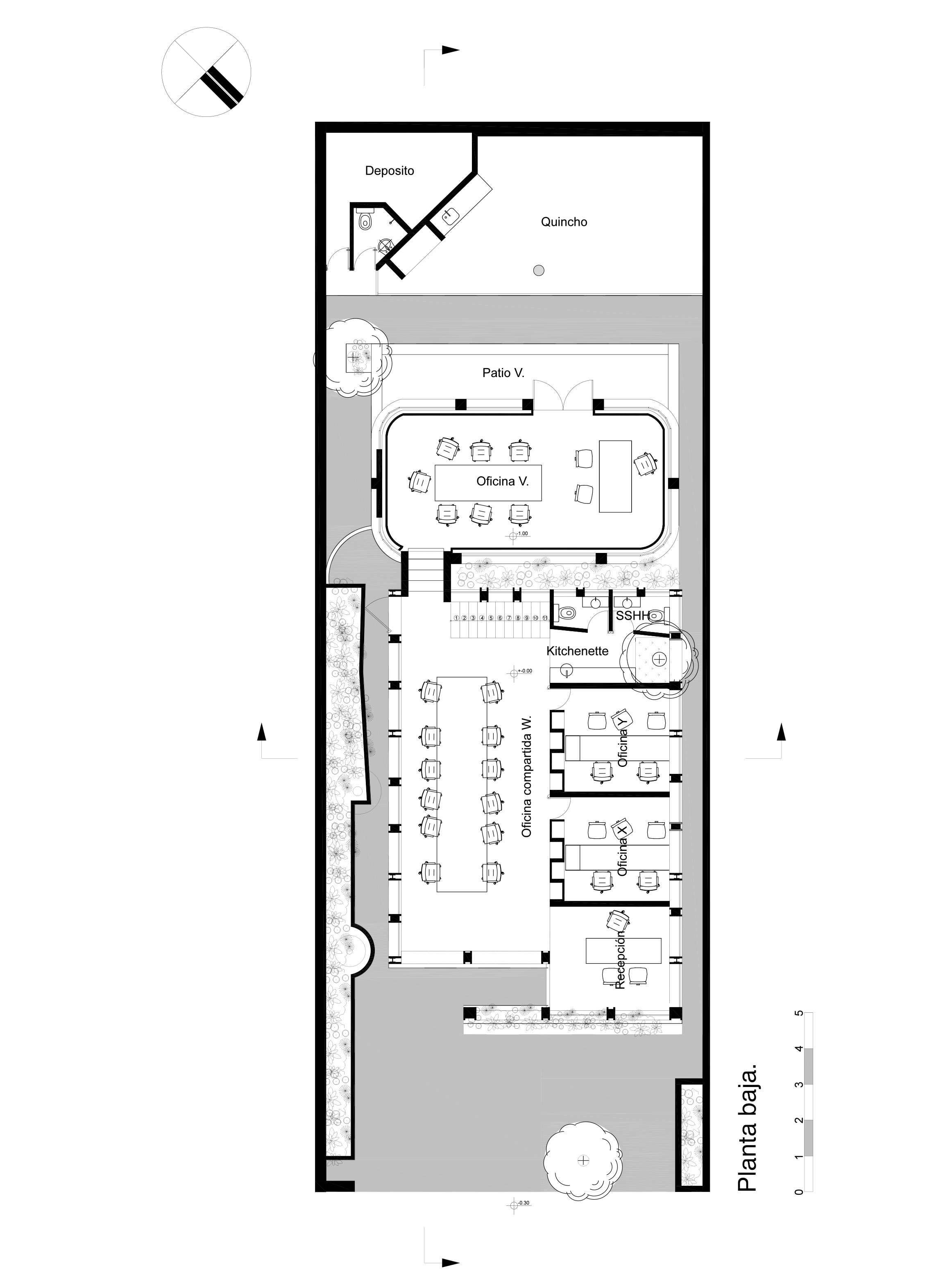
Die Aufteilung im Inneren erfolgt über verschiedene Ebenen und Höhen: Der Co-Working Space findet sich an der niedrigeren Stelle des Schrägdaches, während ein Agrarunternehmen im doppelgeschossigen Bereich angesiedelt ist. Ein zweiter Bau, ein Pavillon im hinteren Bereich, ist wiederrum um einen Meter abgesenkt, so dass das Dach ein Zwischengeschoss bildet, welches von außen, aber auch vom ersten Geschoss des Hauptgebäudes erreicht werden kann.
Weitere Informationen:
Mínimo Común Arquitectura: Solanito Benitez - Sergei Jermolieff - Veronica Villate
Collaborators: Osvaldo Aguilera Juan Salvaré Martin Lotero



























