Einfach besonders Wohnen
Familienhaus in Eindhoven von Eek en Dekkers
© thomasmayerarchive
Lorem Ipsum: Zwischenüberschrift
Die niederländischen Architekten Eek en Dekkers entwerfen mit dem Haus R ein Familiendomizil in Eindhoven, welches auf Wunsch des Bauherrn zwei Dinge kombiniert: Einfachheit und hohe Wohnqualität. Für das am Waldrand gelegene Haus entwickelt das Planerteam einen rechteckigen Baukörper. Die archetypische Form mit Satteldach soll an eine einfache Scheune erinnern. Eine profilierte, eloxierte Aluminiumfassade in Wellblechoptik komplettiert den landwirtschaftlichen Charakter des Hauses.


© thomasmayerarchive
Fließende Flächen
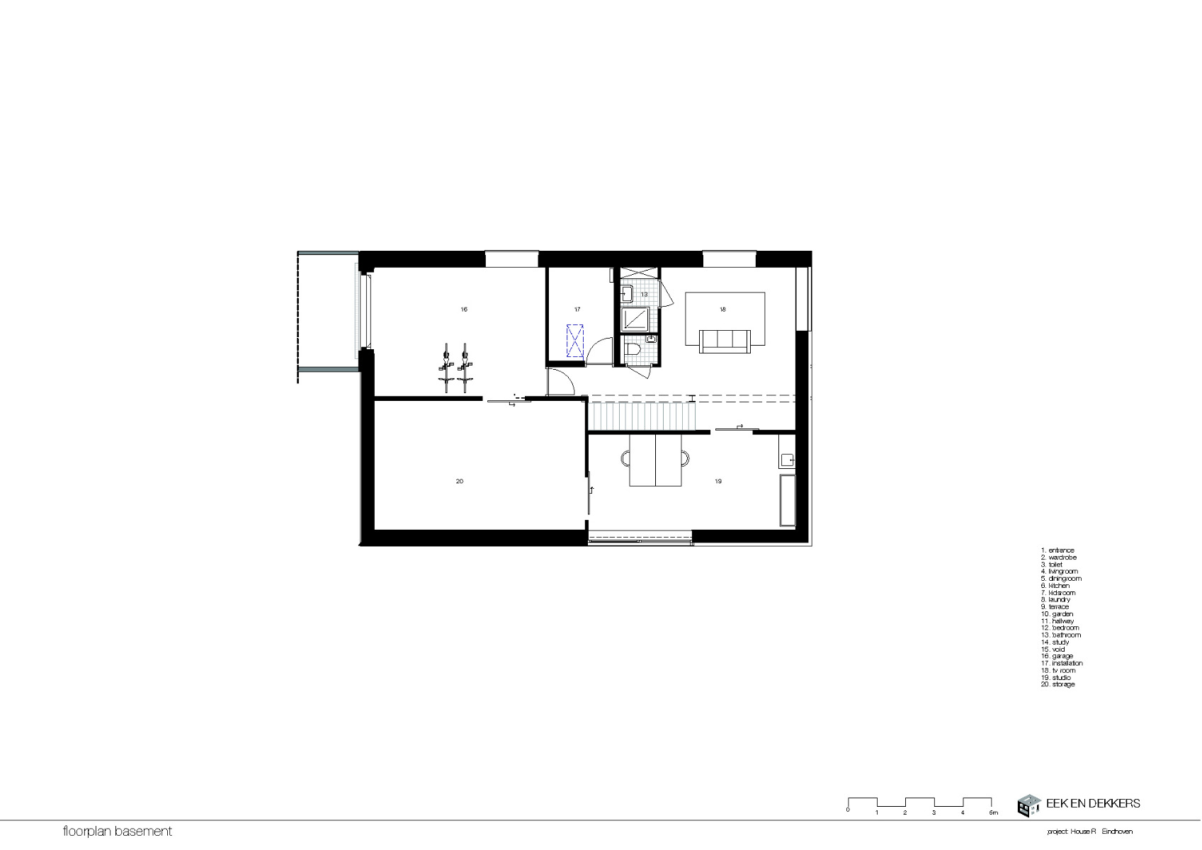
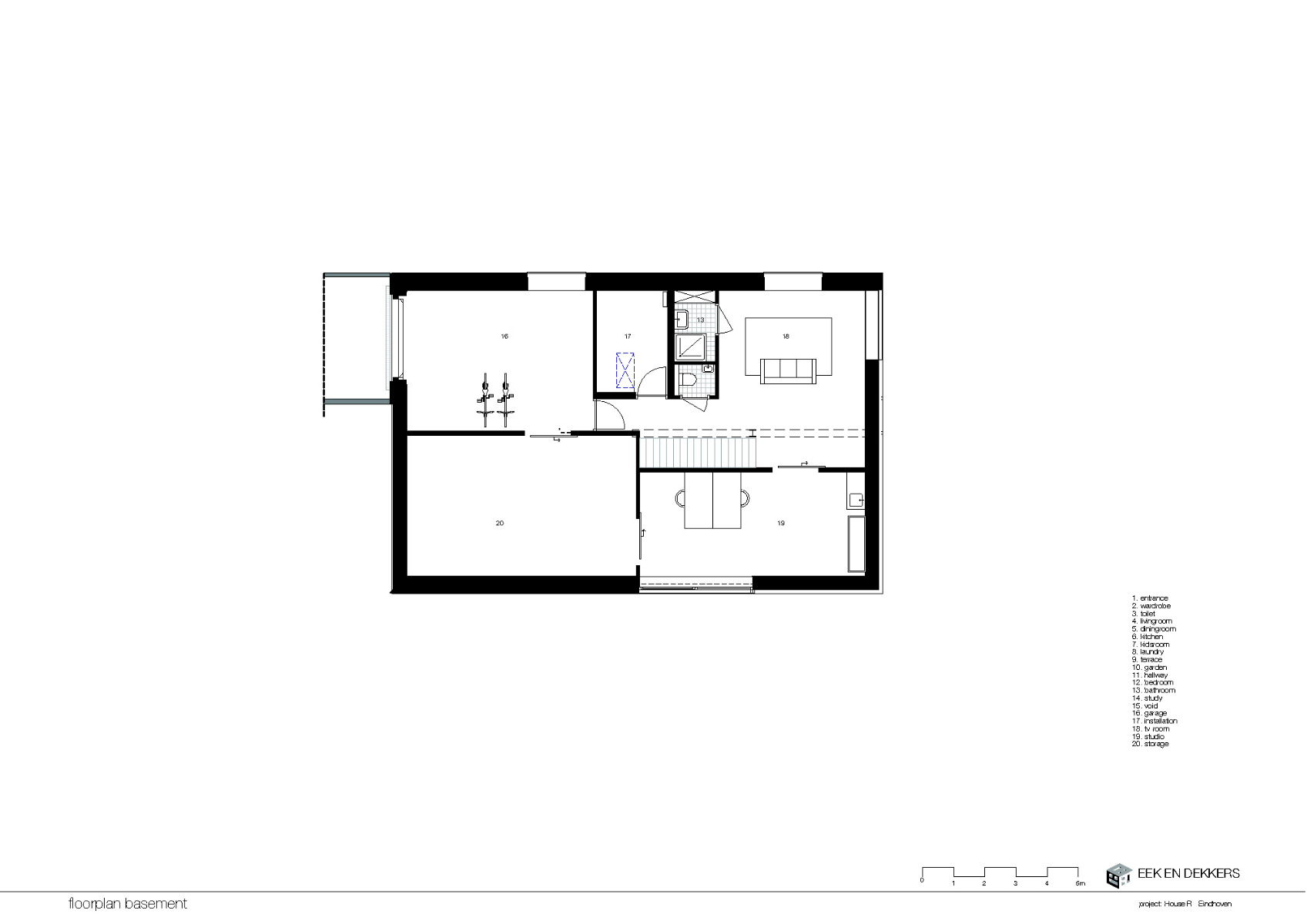
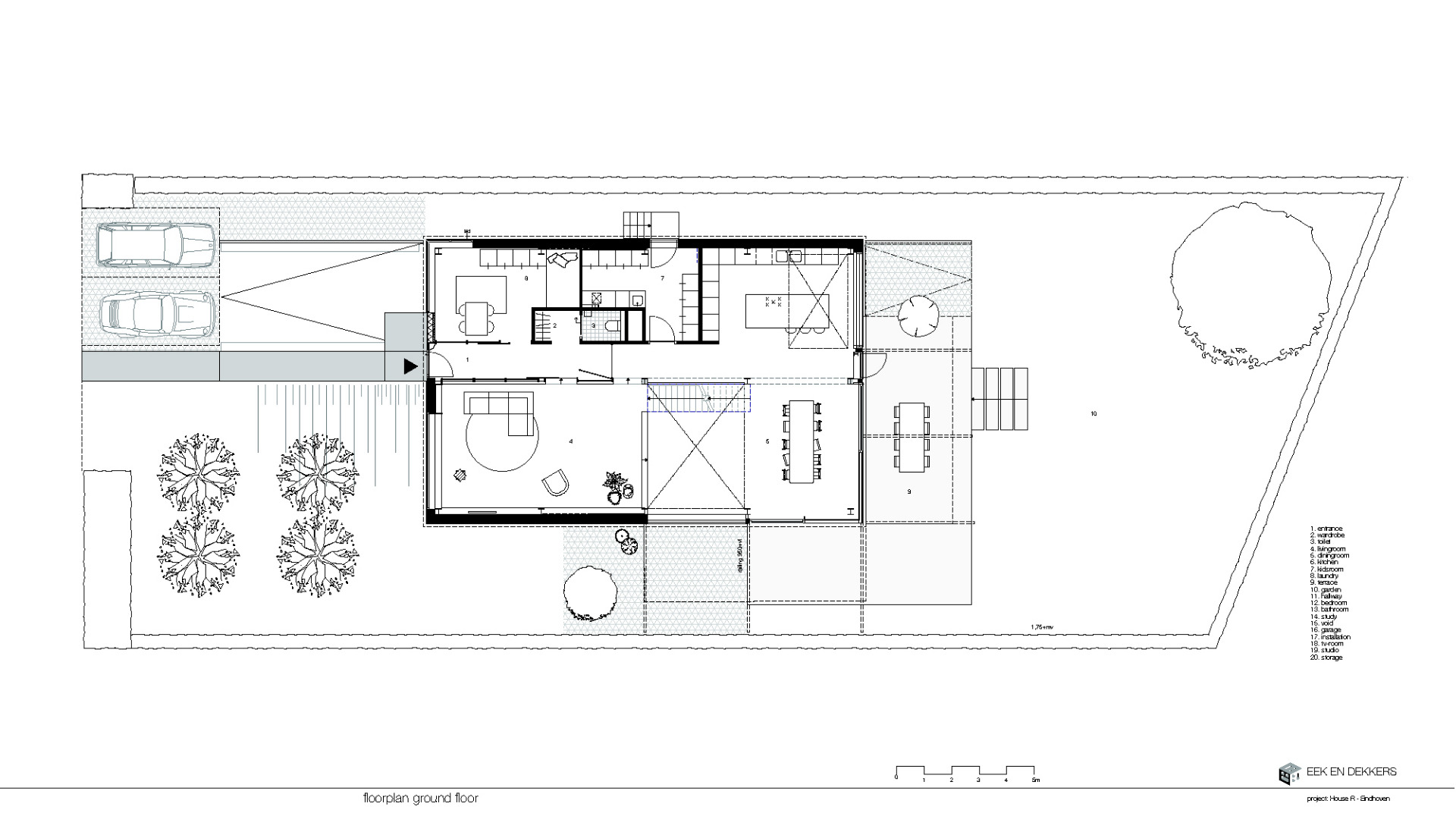
Das Eingangsniveau des Hauses wird um 80 cm angehoben. Die Wohnräume erhalten dadurch eine bessere Sicht sowie mehr Licht und Privatsphäre. Gleichzeitig entsteht im darunterliegenden Gartengeschoss eine zusätzliche Fläche, die fließend ins Freie überzugehen scheint.
Lorem Ipsum: Zwischenüberschrift
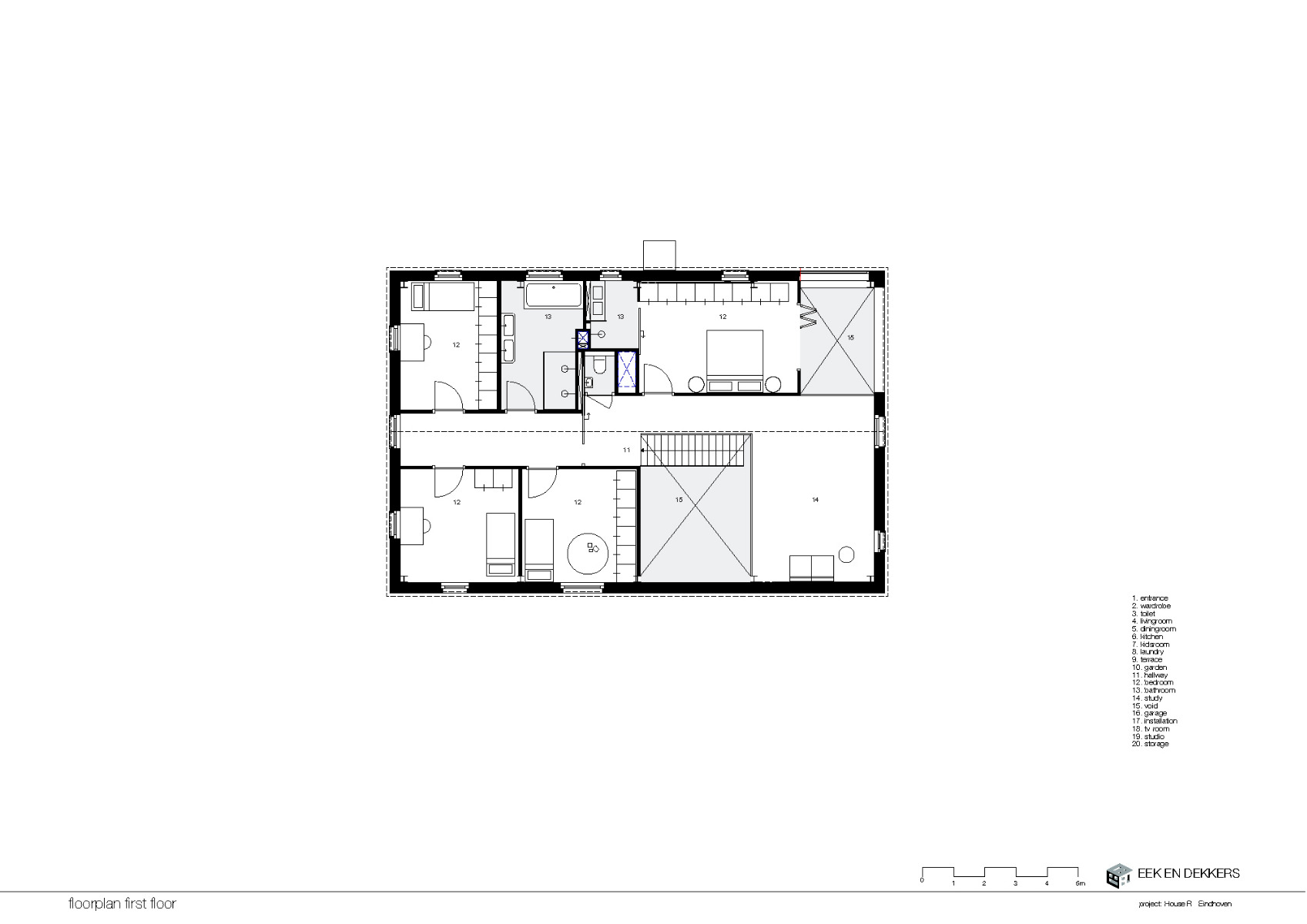
Während die Verglasungen in den unteren beiden Stockwerken raumhoch und nahezu rahmenlos ausgeführt sind, gibt es in der Etage unter dem Dach lediglich kleine, tief in den Wänden sitzende Fenster. Diese bieten den Bewohnern eine gewisse Intimität und kommen ohne Sonnenschutz aus.


© thomasmayerarchive
Kosteneffiziente Materialien
Die Konstruktion beruht auf kosteneffizienten, langlebigen Materialien. Mithilfe von raffinierten Details, bunten Farbakzenten und Holzelementen ergänzen die Architekten die pragmatische Bauweise und sorgen so für die nötige Wohnlichkeit. Ein smartes Klimasystem rundet das Projekt ab: Fernwärme und -kälte garantieren ganzjährig eine angenehme Raumtemperatur. Außerdem decken Solarkollektoren auf dem Dach den Energiebedarf des Hauses zur Gänze ab.


© thomasmayerarchive
Flexible Räume
Im Inneren besteht das Einfamilienhaus aus einem einzigen, zusammenhängenden Volumen, das von den rohen Stahlträgern zoniert wird und sich bis unters Dach erstreckt. Sämtliche Funktionen wie Schlafen, Arbeiten und Spielen sind wie Boxen in den Raum eingesetzt und lassen sich bei Bedarf abgrenzen. Eine offene Stahltreppe verbindet die einzelnen Geschosse und ermöglicht – zusammen mit zwei großen Lufträumen – vielfältige Blickbezüge quer durch das Haus R.
Architektur: Eek en Deekers
Bauherr: Privat
Standort: Eindhoven (NL)
Tragwerksplanung: Archimedes
TGA-Planung: Duurzame Installaties
Bauunternehmen: Soetens Bouwbedrijf
Innenarchitektur: Studio of Things x studio Jeroen Wand















