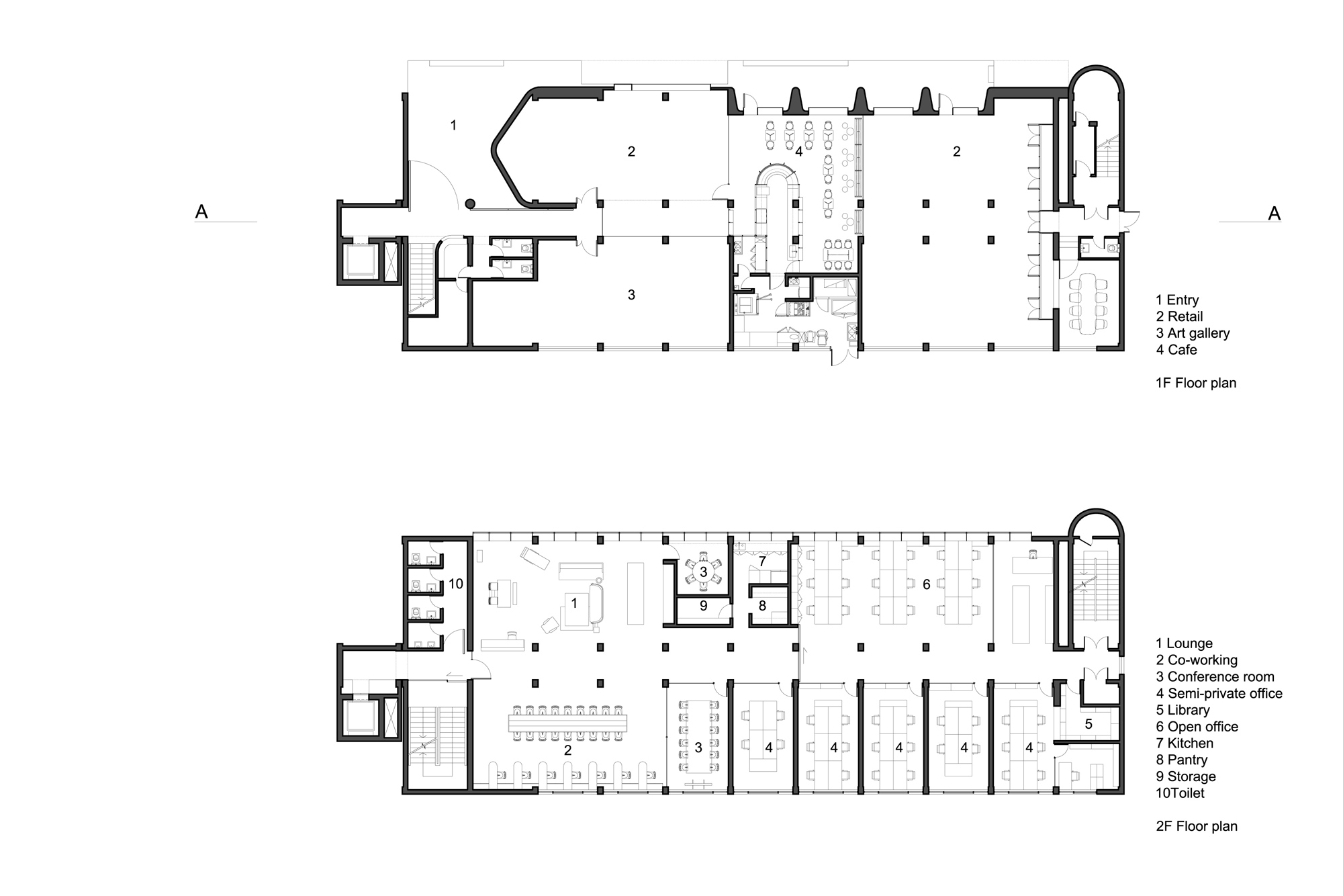
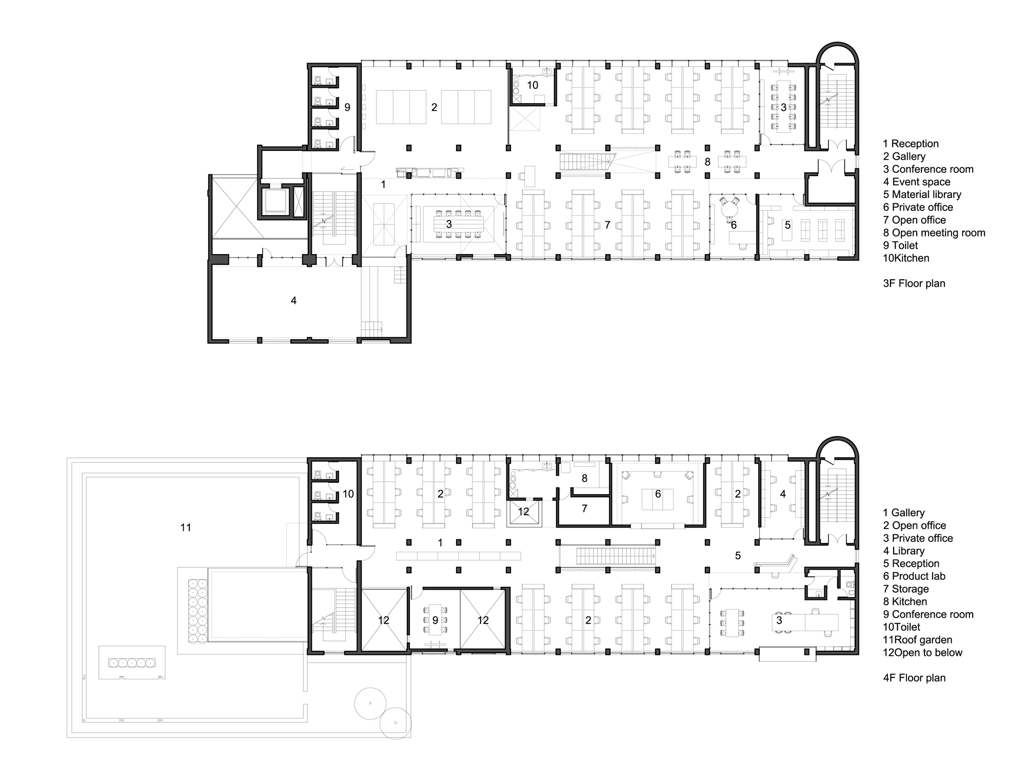
Familientreffen: Büroumbau von Neri & Hu in Shanghai
„Hässlich“ ist in der Welt der Architektur ein relativer Begriff. Doch nur Wenige hätten dem heruntergekommenen Betonbau im Shanghaier Jing’an-Bezirk, der zuvor Büros und Schlafsäle eines örtlichen Fernmeldeunternehmens beherbergte, vor einigen Jahren noch irgendwelche Reize abgewonnen. Schon gar nicht hätten sie vorausgesehen, dass er heute zur Heimat von Neri & Hu, einem der führenden Architektur- und Innenarchitekturbüros in China, und weiterer designaffiner Unternehmen geworden ist. Neri & Hu selbst arbeiten im zweiten und dritten Obergeschoss, die erste Etage beherbergt die 2004 ebenfalls von Lyndon Neri und Rossana Hu gegründete Firma Design Republic, ein Handelsunternehmen für Designobjekte und -möbel. Im Erdgeschoss haben sich Läden, ein Restaurant und eine Kunstgalerie eingemietet. Außerdem sind im ersten Obergeschoss ein öffentlicher Coworking Space und auf der Mezzaninebene darüber ein 90 m2 großer Mehrzweckraum entstanden.
Die Architekten haben die großen Fensteröffnungen überwiegend mit Glasbausteinen geschlossen. Nur in ihrem unteren Teil ziehen sich leicht auskragende Fensterbänder über Öffnungen und Fassadenstützen gleichermaßen. Die Wandflächen dazwischen wurden grau verputzt. Im Erdgeschoss umhüllen grün glasierte Fliesen die in Le-Corbusier-Manier geschwungenen Außenwände und die Trennwände zwischen den einstigen Ladebuchten der Anlieferung. Das Betonskelett im Inneren ließen Neri & Hu größtenteils offenlegen und ergänzten es durch leichte Trennwände aus Schwarzstahl und Glas. Die beiden bestehenden Treppenhäuser bilden nach wie vor die Haupterschließung. Lediglich an einigen wenigen Stellen stutzten die Architekten die Geschossdecken zurück, um mehr vertikale Durchlässigkeit zu schaffen – so zum Beispiel zwischen dem 2. und 3. Obergeschoss, wo nun eine neue zentrale Innentreppe die Büroebenen von Neri & Hu miteinander verbindet.


















