// Check if the article Layout ?>
Fassade mit Mehrwert: Firmengebäude von Barkow Leibinger
Foto: David Franck
Nördlich und südlich von Verkehrsachsen eingefasst, befindet sich der rechteckige Bauplatz inmitten des Warschauer Gewerbegebiets. Das zweigeschossige Gebäude steht an dessen Nordrand und hat einen quadratischen Grundriss. Einziger Einschnitt in die an sich triviale Kubatur bildet ein 16 auf 16 Meter großer Dachgarten im Obergeschoss. Er schließt an den Foyerbereich in der Südostecke an.
Der gesamte Bau ist in ein metallisch schimmerndes Kleid gehüllt. Jeweils parallele Außenseiten folgen dem gleichen Designkonzept und reagieren damit auf die Anforderungen, die ihnen die Umgebung stellt. Somit sind die Ost- und Westansicht in schlichtem Aluminium-Trapezblech ausgeführt. Das eigentliche Highlight aber stellen die Fassaden in nördlicher und südlicher Richtung dar. Diese setzen sich aus lasergeschnittenen Edelstahlblech-Lamellen zusammen und schaffen einen Bezug zum technologischen Innenleben der Firma. Variierende Breiten führen zu einem grafisch, fließenden Gesamteindruck. Wie ein gradueller Verlauf legen sich die massiven Elemente auf die Außenhülle. Mal schützen sie die Räumlichkeiten vor direkter Sonneneinstrahlung und ungewollten Einblicken, mal öffnen sie sich weiter, um Ausblicke in die Landschaft zu ermöglichen. Nachts führen die Lamellen zu unterschiedlicher Diffusion der Innenraumbeleuchtung nach draußen.
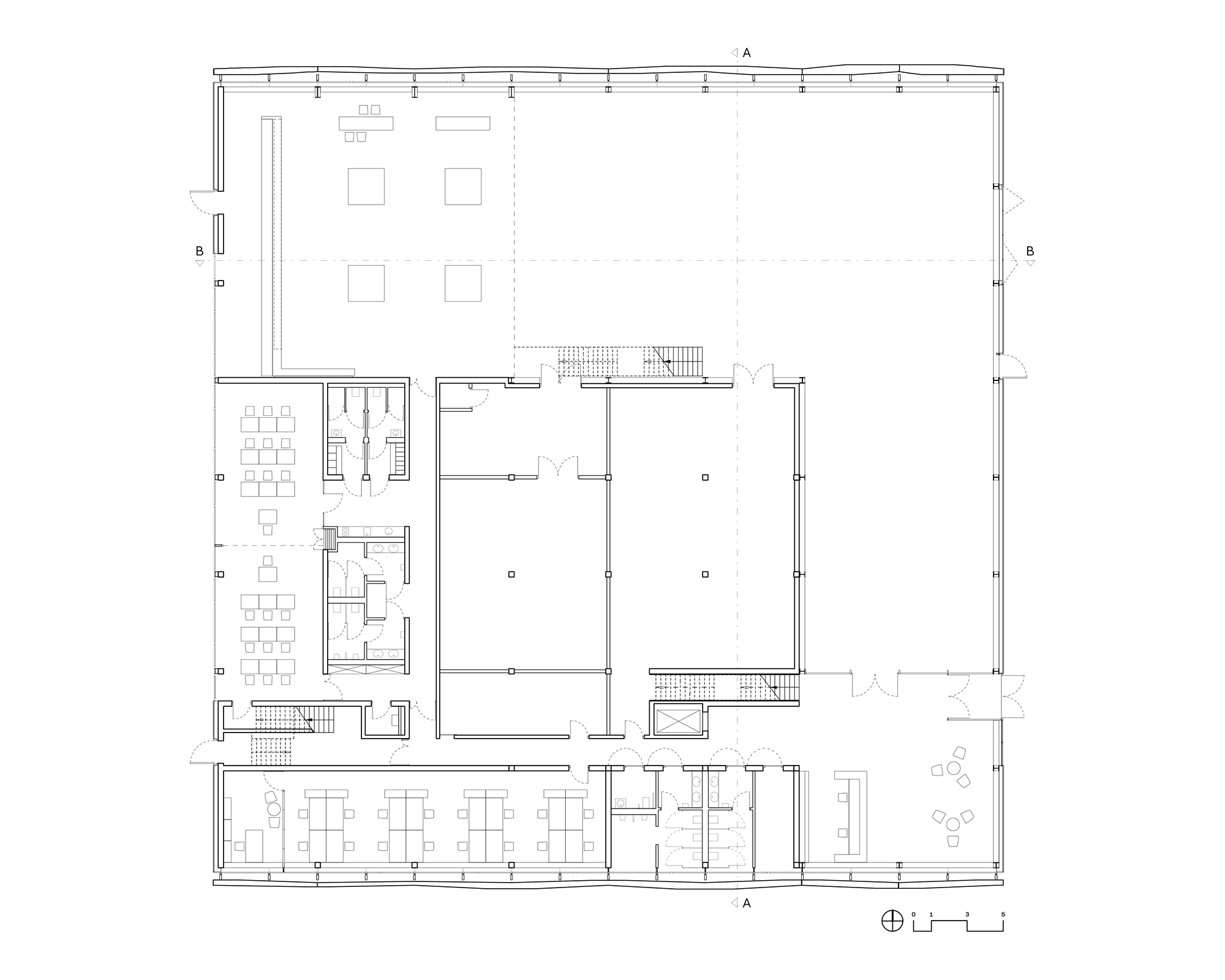
Ostseitig erfolgt die Erschließung des Gebäudes. Dort gelangt man an der südöstlichen Ecke in ein quadratisches Foyer, das über beide Geschosse geht. Das gesamte Raumprogramm orientiert sich an einer Diagonale, die vom Eingang zur Ecke gegenüber reicht. Diese markante Achse teilt den Bau Richtung Norden in großzügige repräsentative Bereiche und in eine kleinteiligere Struktur gen Süden. Alles ist zudem rund um einen dezentralen Quader angeordnet, der im unteren Bereich die Technik- und Lagerflächen und im oberen Stock den Dachgarten umfasst.
Im Erdgeschoss liegt das Herzstück des Vertriebs- und Servicezentrums: der Showroom. Hier werden die Maschinen präsentiert. Die Zweigeschossigkeit des Raums sorgt für ein luftiges Ambiente. Desweiteren gibt es Ausstellungsflächen, sowie Büros und Schulungsbereiche.
Das Obergeschoss bietet neben dem geschützten Dachgarten, von dem aus man in den Showroom einsehen kann, Platz für die Geschäftsleitung, Besprechungszimmer, weitere Büros und eine Cafeteria.














