// Check if the article Layout ?>
Fassaden-Detail: Wohnhaus in Neu-Ulm
Architekten: Architekturbüro Wallner, München Christof Wallner
Fassade in Fertigteilbauweise
Stahlbeton-Sandwichkonstruktion
Alle Außenwände sind 100% vorgefertigt, immer bestehend aus
Tragwand 160 mm
Dämmung 140 mm
Sichtbetonhaut 80 mm mit
Weißzement und roten Sanden.
Sämtliche Sondergeometrien wurden bei der Fertigteilplanung und der Positionierung der Fugen so entwickelt, dass das Sandwich-Bausystem (Tragwand, Dämmung, Außenschale) an keiner Stelle konzeptionell verändert werden musste. Eine gesonderte Montage von Tragwand und Außenhaut war nirgends erforderlich.
Fassade in Fertigteilbauweise
Stahlbeton-Sandwichkonstruktion
Alle Außenwände sind 100% vorgefertigt, immer bestehend aus
Tragwand 160 mm
Dämmung 140 mm
Sichtbetonhaut 80 mm mit
Weißzement und roten Sanden.
Sämtliche Sondergeometrien wurden bei der Fertigteilplanung und der Positionierung der Fugen so entwickelt, dass das Sandwich-Bausystem (Tragwand, Dämmung, Außenschale) an keiner Stelle konzeptionell verändert werden musste. Eine gesonderte Montage von Tragwand und Außenhaut war nirgends erforderlich.
1 Stahlprofil verklebt L
100/100/5 mm
2 Stahlbeton-Sandwich-Fertig-
teil: Sichtbeton mit Weiß-
zement und roten Sanden
80 mm, Hartschaumdäm-
mung 140 mm,
Stahlbeton 160 mm
3 Aluminiumblech fugenlos ver-
schweißt, farbbeschichtet
3 mm, Unterkonstruktion Stahl
verzinkt, thermisch getrennte
Befestigung
4 Holz-Aluminium-Fenster
(U = 1,0 W/m2K)
5 Glasbrüstung VSG 12 mm,
Handlauf Aluminiumrohr
¡ 40/30 mm
6 Belag Tränenblech Aluminium
beschichtet 3 mm
7 Parkett 10 mm
8 Deckenverkleidung Tatajuba-
holz 135/25 mm Kantholz
40/50 mm, Folie diffusions-
offen Mineralfaser 120 mm,
Dampfsperre 4 mm
100/100/5 mm
2 Stahlbeton-Sandwich-Fertig-
teil: Sichtbeton mit Weiß-
zement und roten Sanden
80 mm, Hartschaumdäm-
mung 140 mm,
Stahlbeton 160 mm
3 Aluminiumblech fugenlos ver-
schweißt, farbbeschichtet
3 mm, Unterkonstruktion Stahl
verzinkt, thermisch getrennte
Befestigung
4 Holz-Aluminium-Fenster
(U = 1,0 W/m2K)
5 Glasbrüstung VSG 12 mm,
Handlauf Aluminiumrohr
¡ 40/30 mm
6 Belag Tränenblech Aluminium
beschichtet 3 mm
7 Parkett 10 mm
8 Deckenverkleidung Tatajuba-
holz 135/25 mm Kantholz
40/50 mm, Folie diffusions-
offen Mineralfaser 120 mm,
Dampfsperre 4 mm
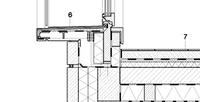
Der Detailschnitt zeigt die sorgfältige Planung der Montagephasen bei der Ausbildung der Fensterlaibungen. Die Verkleidung der vorstehenden Fensterlaibungen aus 3 mm dickem Aluminiumblech ist nach außen fugenlos verschweißt, farbig beschichtet und mit einer Antidröhneinlage versehen.
Die verzinkte Stahl-Unterkonstruktion ist mit einem thermisch trennenden Zwischenprofil aus Kunststoff an der Tragschale der Stahlbeton-Sandwich-Fertigteile befestigt.
Die verzinkte Stahl-Unterkonstruktion ist mit einem thermisch trennenden Zwischenprofil aus Kunststoff an der Tragschale der Stahlbeton-Sandwich-Fertigteile befestigt.
1 Laibungsfutter Fichte weiß gestrichen
2 Stahlbeton-Sandwich-Fertigteil: Sichtbeton mit Weiß-
zement und roten Sanden 80 mm,
Hartschaumdämmung 140 mm, Stahlbeton 160 mm
3 Aluminiumblech fugenlos verschweißt
farbbeschichtet 3 mm, Unterkonstruktion Stahl
verzinkt, thermisch getrennte Befestigung
4 Holz-Aluminium-Fenster (U = 1,0 W/m2K)
5 Glasbrüstung VSG 12 mm
6 Befestigung Stahlprofil L verzinkt 140/70 mm
2 Stahlbeton-Sandwich-Fertigteil: Sichtbeton mit Weiß-
zement und roten Sanden 80 mm,
Hartschaumdämmung 140 mm, Stahlbeton 160 mm
3 Aluminiumblech fugenlos verschweißt
farbbeschichtet 3 mm, Unterkonstruktion Stahl
verzinkt, thermisch getrennte Befestigung
4 Holz-Aluminium-Fenster (U = 1,0 W/m2K)
5 Glasbrüstung VSG 12 mm
6 Befestigung Stahlprofil L verzinkt 140/70 mm
