Erweiterungs- und Eingangsbauwerk
Faust-Gymnasium in Staufen von Dasch Zürn + Partner
Mit seinen großen Glasflächen und den umlaufenden Fluchtbalkonen bildet der Anbau einen deutlichen Kontrast zum benachbarten Bestandsgebäude. © ArchitekturImBild/Bernhard Tränkle
Rund 900 Schülerinnen und Schüler besuchen das Faust-Gymnasium in Staufen bei Freiburg – vergleichsweise viele für einen Ort mit gerade 8500 Einwohnern. Die Lage am Ortsrand, direkt neben dem Nahverkehrsbahnhof Staufen-Süd, begünstigt das Einpendeln der Schülerinnen und Schüler von auswärts.


Der neue Haupteingang des Faust-Gymnasiums liegt direkt an der Zufahrt mit Bushaltestelle. © ArchitekturImBild/Bernhard Tränkle
Der Anbau von Dasch Zürn + Partner und Kube Gißler Architekten an der Nordwestseite des Gymnasiums sollte mehrere Herausforderungen auf einmal lösen: neue Unterrichtsräume samt Mensa bereitstellen und zu einer klaren Adressbildung der Schule beitragen. Hier liegt künftig der neue Haupteingang, direkt an der Zufahrt samt Bushaltestelle, die im Zuge der Bauarbeiten ebenfalls neu angelegt wurde. Überdies trennt der Anbau nun stärker denn je den Schulhof im Süden von der nördlich angrenzenden Ausfallstraße.
Außen viel Glas, innen Sichtbeton
Mit der transparenten Gebäudehülle setzten die Architekten einen bewussten Kontrapunkt zum massiven Bestandsgebäude mit seinen Fertigteilbrüstungen aus Beton. Im Inneren dominieren dagegen auch im Neubau Sichtbetonoberflächen. Hinzu kommen ein grauer Steinboden im Erdgeschoss sowie helle Holzeinbauten und gelochte Akustikdecken. Einzelne dunkelrot gestrichene Wände setzen im Treppenhaus und den Sitznischen im Flur gezielte Farbakzente.


Grauer Sichtbeton, dunkelrote Wandscheiben und Holzeinbauten bilden den Farbdreiklang in den Innenräumen. © Henrik Schipper Photography
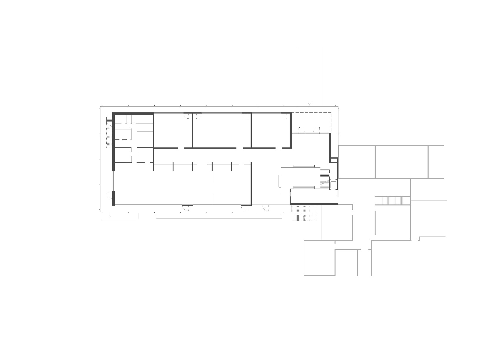
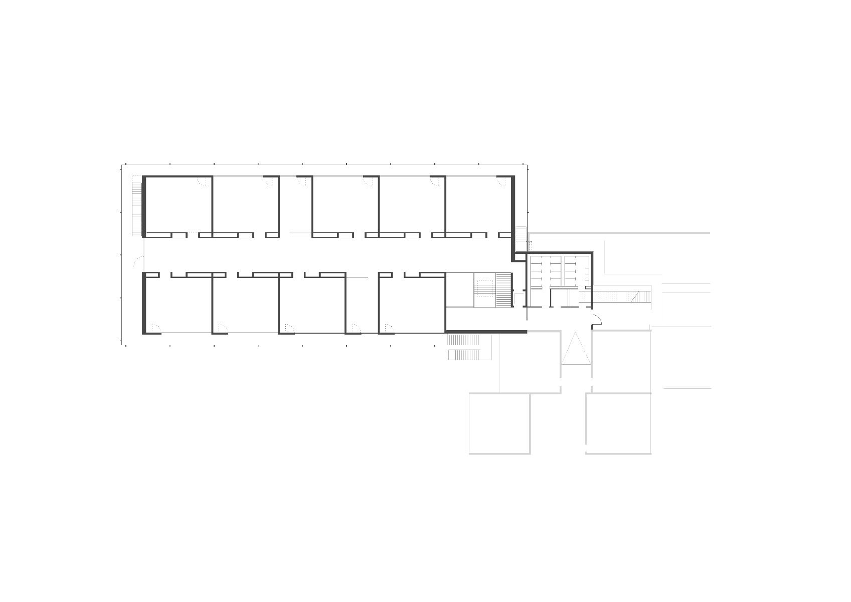
Zwölf Klassenzimmer und eine Mensa
Der zweigeschossige, teilunterkellerte Anbau ist sowohl gegenüber dem dreigeschossigen Bestandsgebäude als auch gegenüber dem Schulhof höhenversetzt und wird durch Rampen erschlossen. Im Inneren verbindet ein Aufzug Alt und Neu auf barrierefreiem Wege. Im Gebäude gibt es nun zwölf zusätzliche Klassenräume, drei davon im Erdgeschoss und neun im Obergeschoss des Erweiterungsbaus. Alle sind als Multifunktionsräume konzipiert und lassen sich bedarfsweise auch als Ruhe- und Bewegungsräume nutzen. Das gilt erst recht für die Mensa auf der Hofseite im Erdgeschoss.


Sitznischen beleben die breiten Erschließungsflure. Ansonsten sind die Trennwände zu den Klassenzimmern komplett mit Holz verkleidet. © Henrik Schipper Photography
Multifunktionale Flure dank Fluchtbalkonen
Die umlaufenden Fluchtbalkone lockern nicht nur das äußere Erscheinungsbild auf. Sie haben durch ihre Verschattungswirkung auch Vorteile für das Raumklima. Sogar die Nutzung der Innenräume wird durch sie begünstigt: „Im Innenbereich überzeugen die großzügigen, mit Holzelementen ausgestatteten Flurbereiche mit erweiterten Lernzonen und Gemeinschaftsflächen“, befand etwa die Jury des Hugo Häring-Preises, die dem Erweiterungsbau 2023 eine Auszeichnung verlieh. Möglich waren diese Multifunktions-Flure – ein expliziter Wunsch des Bauherrn – nur, weil alle Klassenzimmer über die Balkone direkt entfluchtet werden.
Architektur: Dasch Zürn + Partner in Arbeitsgemeinschaft mit Kube Gißler Architekten
Bauherr: Landkreis Breisgau-Hochschwarzwald
Standort: Grunerner Straße 13, 79219 Staufen (DE)
Tragwerksplanung: GÖPPERT BAUINGENIEURE
Bauphysik, Akustik: GN Bauphysik
HLS-Planung: Lenz Ingenieurbüro VDI
Elektroplanung: Planungsbüro für Elektrotechnik Gmbh Alexander Müller
Landschaftsarchitektur: Faktorgrün






















