Baumhaus aus der Fabrik
Ferienhaus in Estland von Arsenit
Schlafen zwischen Bäumen: Auf minimaler Fläche bietet Piil Übernachtungs- und Arbeitsplätze für zwei Personen. © Yifan Liu
Piiluma heißt auf estnisch Ausguck. Die Kurzform Piil war daher ein passender Name für das Mini-Fertighaus für zwei Personen, das Arseni Timofejev gemeinsam mit einem Metallbaubetrieb für die Wälder seiner Heimat entwickelt hat.


Die Fassaden sind mit quadratischen Kiefernholzlatten verkleidet. Die Treppe verläuft teils innerhalb und teils außerhalb des Gebäudes. © Yifan Liu
Ein Entwurf (nicht nur) für den nächsten Lockdown
Das Projekt ist ebenso ein Resultat der Corona-Pandemie wie Timofejevs Büro Arsenit: Eigentlich arbeitet der Architekt für Coffey Architects in Großbritannien, doch zum Zeitpunkt des ersten Lockdowns 2020 war er gerade in Estland – und beschloss, dort auch eigene Projekte zu realisieren.
Anpassbare Gebäudehöhe
Das erste der Minihäuser wurde 2023 an einem Waldrand am Fluss Jägala östlich der Landeshauptstadt Tallinn fertiggestellt. Im Grunde ist Piil jedoch flexibel genug für fast jeden Standort – durch Drehung zur schönsten Aussicht und durch Variation der Gebäudehöhe. Beim Erstling beträgt sie 8,75 m, knapp unter der für den Standort maximal zulässigen Neun-Meter-Marke.


Ein großes Panoramafenster gewährt Ausblicke Richtung Fluss. Darunter ist ein Netz als Zwischendecke gespannt. © Yifan Liu
Vorgefertigte Stahlkonstruktion
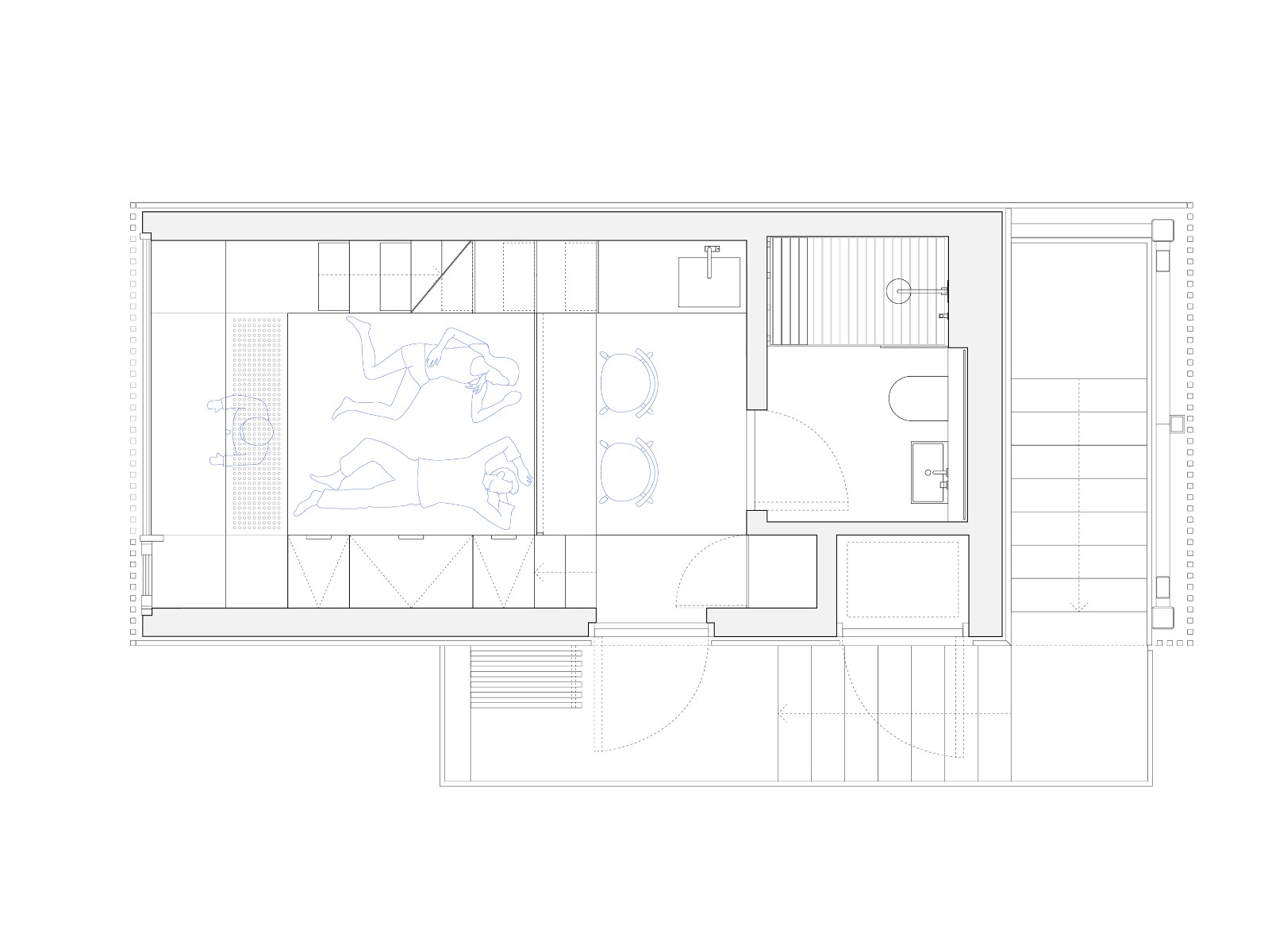
Die Gebäudeform ist ebenso einfach wie einprägsam: Ein Bein mit Stauraum, Haustechnik und Treppe sowie ein auskragendes Wohnmodul, das zugleich die Terrasse vor Regen schützt. Beide wurden vom Bauherrn Levstal als Fachwerkkonstruktion aus Stahl vorgefertigt und mit einer thermisch modifizierten Kiefernholzverkleidung versehen. Die Anordnung der quadratischen Holzlatten – am Fuß senkrecht, an der Auskragung horizontal – betont das einprägsame Gesamtvolumen. Erst auf den zweiten Blick lässt sich in der Holzverkleidung die unauffällige Eingangstür erkennen, die in den Treppenraum führt.


Die Innenausstattung besteht aus hell lasiertem Eichenholz. Das seitliche Regal dient zugleich als Treppe zur Mezzaninebene. © Yifan Liu
Minimale Fläche, maximaler Nutzen
Auf 19 m² Nettogrundfläche vereint Piil ein Kingsize-Bett, eine Küchenzeile, reichlich versteckten Stauraum, ein von oben belichtetes Bad mit Dusche und gleich zwei Arbeitstische in sich. Für die Heimarbeit während der nächsten Pandemie ist man im Haus also gerüstet. Die Innenausstattung besteht fast komplett aus weiß lasierter Eiche. Ein Highlight ist die über Eck verlaufende Dach- und Fassadenverglasung am Ende der Auskragung. Ein darunter gespannter Netzzwischenboden bietet zusätzlichen Raum zum Faulenzen und zur Naturbeobachtung. Hinauf gelangt man über ein Regal an der Längswand, das zugleich als Treppe funktioniert.


Im hinteren Bereich des Hauses ist das Bad untergebracht. © Yifan Liu


Ein Fenster in der Dachschräge bringt Licht herein. © Yifan Liu
Energieeffiziente Haustechnik
Laut Arseni Timofejev wurde eigens ein 3D-Scan des Waldes angefertigt, um Piil möglichst (ast-)verlustfrei zwischen die Baumkronen einzupassen. Strom- und Wasseranschluss braucht das Haus selbstverständlich, was die Standortwahl etwas einschränkt. Für einen effizienten Gebäudebetrieb ist aber gesorgt – mit Dreifachverglasung, Wärmepumpenheizung sowie kontrollierter Be- und Entlüftung mit Wärmerückgewinnung.
Architektur: Arsenit
Bauherr, Bauunternehmen: Levstal Group
Standort: Jõeranna tee, Ruu, 74223 (EE)
Tragwerksplanung: AVC Projekt
TGA-Planung: AS Infragate Eesti; ICEkonsult OÜ; Pat-Pat Projekt OÜ
Innenausbau: ITB Interior



















