Nachhaltige Auszeit
Ferienhaus von Oax Arquitectos in Mexiko
© Paco Álvarez, The Raws
Lorem Ipsum: Zwischenüberschrift
Oax Arquitectos entwerfen vor der imposanten Kulisse des mexikanischen Nationalparks Cumbres de Majalca ein Ferienhaus. In Beton gefertigt, überzeugt die Casa Majalca mit ihrem nachhaltigen Konzept. Der Park befindet sich im Zentrum Chihuahuas, dem größten Bundesstaat Mexikos. Er ist bekannt für seine durch Erosion geformten Felsformationen, die zwischen den Bäumen in die Höhe ragen.


© Paco Álvarez, The Raws
Lorem Ipsum: Zwischenüberschrift
Das Refugium entsteht auf einem langgezogenen Grundstück ohne Anschluss an das öffentliche Wasser- und Stromnetz oder die Kanalisation. Inspiriert von der Naturlandschaft entwickelt das Planerteam einen monolithischen, erdfarbenen Baukörper, der an das örtliche Klima angepasst ist. Die von lokalen Arbeitern ausgeführten Sichtbetonwände sollen ihm eine unregelmäßige, rustikale Optik verleihen.
Lorem Ipsum: Zwischenüberschrift
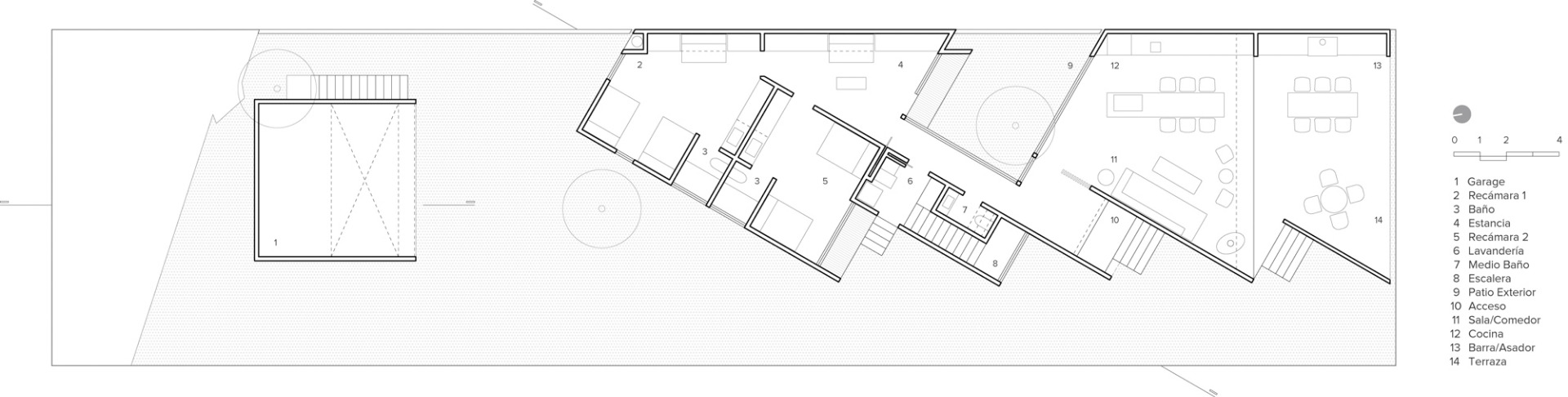
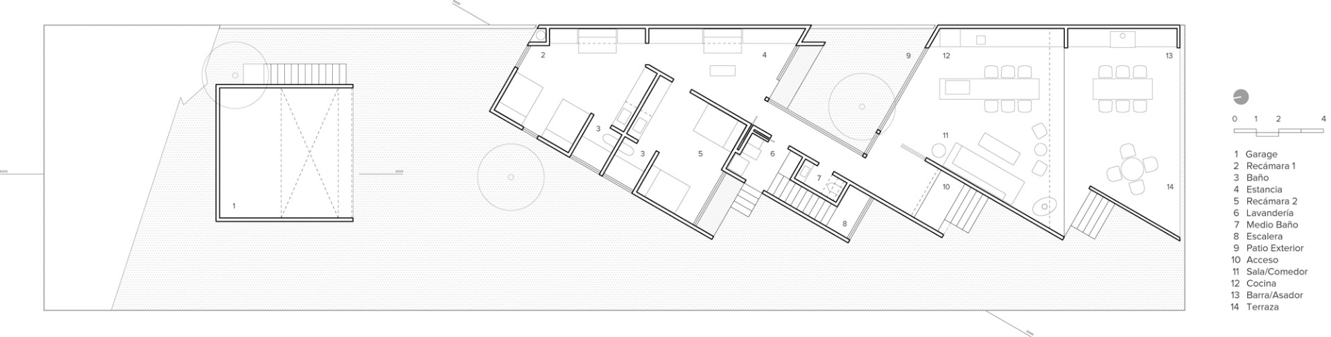
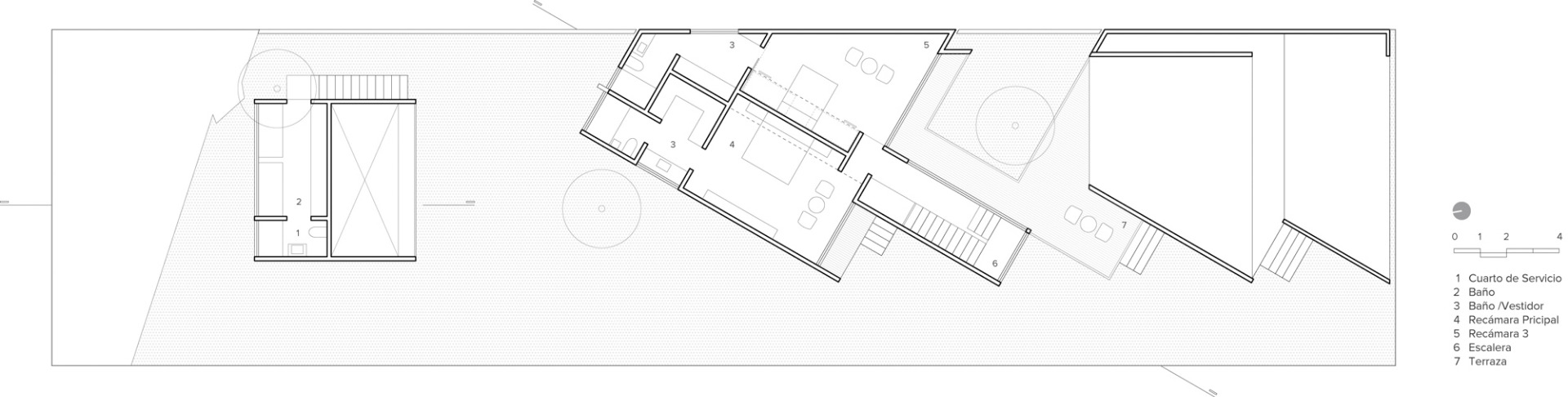
Ausrichtung und Anordnung der Räume sind an die Jahreszeiten angepasst und sorgen in Kombination mit der thermalen Masse und natürlicher Querlüftung für ein angenehmes Raumklima. Solarpaneele decken den Energiebedarf des Hauses. Quellwasser sichert die Wasserversorgung und komplettiert das autarke Haus.


© Paco Álvarez, The Raws
Lorem Ipsum: Zwischenüberschrift
Während die Ostansicht geradlinig und geschlossen erscheint, öffnet sich die Casa Majalca entlang der Westseite im Zickzack. Die einzelnen Volumina fügen sich schottenartig und in der Höhe gestaffelt aneinander. In südlicher Richtung gibt es hier mehrere Terrassen, Loggien und Eingänge. Dahinter lassen großflächige Verglasungen Licht bis tief in die Räume.


© Paco Álvarez, The Raws
Lorem Ipsum: Zwischenüberschrift
Im Inneren sind die Abschnitte abwechselnd ein- oder zweigeschossig ausgeführt und ergeben vielfältige Nutzungsmöglichkeiten. Auf rund 300 m2 verteilen sich mehrere private Schlafbereiche mit Bad und Platz für je eine ganze Familie. Sie bieten in dem Ferienhaus die nötige Privatsphäre und werden von offenen Gemeinschaftsflächen sowie einem von oben belichteten Patio zusammengefasst. Dieser umschließt einen bestehenden Baum und bringt auch entlang der östlichen, hermetischen Außenwand ausreichend Tageslicht nach drinnen. Im Obergeschoss legt sich eine Dachterrasse rund um den Innenhof und gibt den Blick nach unten in die Casa Majalca und in den Nationalpark frei.
Architektur: Oax Arquitectos
Bauherr: Privat
Standort: Parque Nacional Majalca, Chihuahua (MX)
Tragwerksplanung: Manuel Jezzini
Designteam: José García Toledo, Fernanda Roiz Silva, Luis Carlos Rodríguez González
Energieeffizienz: Carlos Estrada Zubía
Interior: Aileen García
Nutzungsfläche: 300 m²




















