Komposition aus Ziegel und Sichtbeton
Feuerwache in Nordhausen von Dasch Zürn + Partner
Bandfenster und Sichtbetonelemente gliedern die Klinkerfassade des Neubaus. Hinter dem ziehharmonikaartigen Fensterband befinden sich Schulungsräume. © Henrik Schipper Photography
Feuerwachen sind eine nüchtern-funktionale Angelegenheit. Man benötigt Einstellhallen, Aufenthaltsräume, Umkleiden, Werkstätten und als vertikalen Akzent einen Schlauchturm – alles verbunden durch möglichst intuitiv nachvollziehbare kurze Wege. In Nordhausen am Harz ist es den Architekten Dasch Zürn + Partner gelungen, dieses Raumprogramm zu einem abwechslungsreich gegliederten Ganzen zusammenzufassen.


Zur Straße im Norden präsentiert sich der Neubau dezidiert urban. Davor liegen die Parkplätze für die Mitarbeitenden. © Henrik Schipper Photography
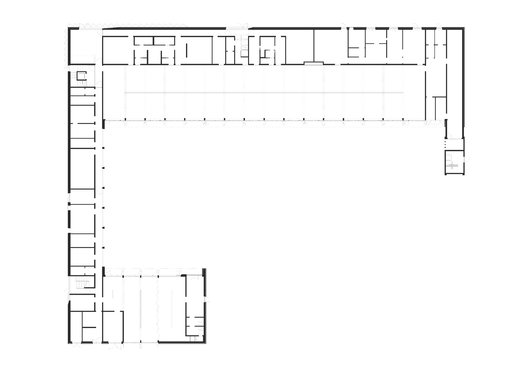
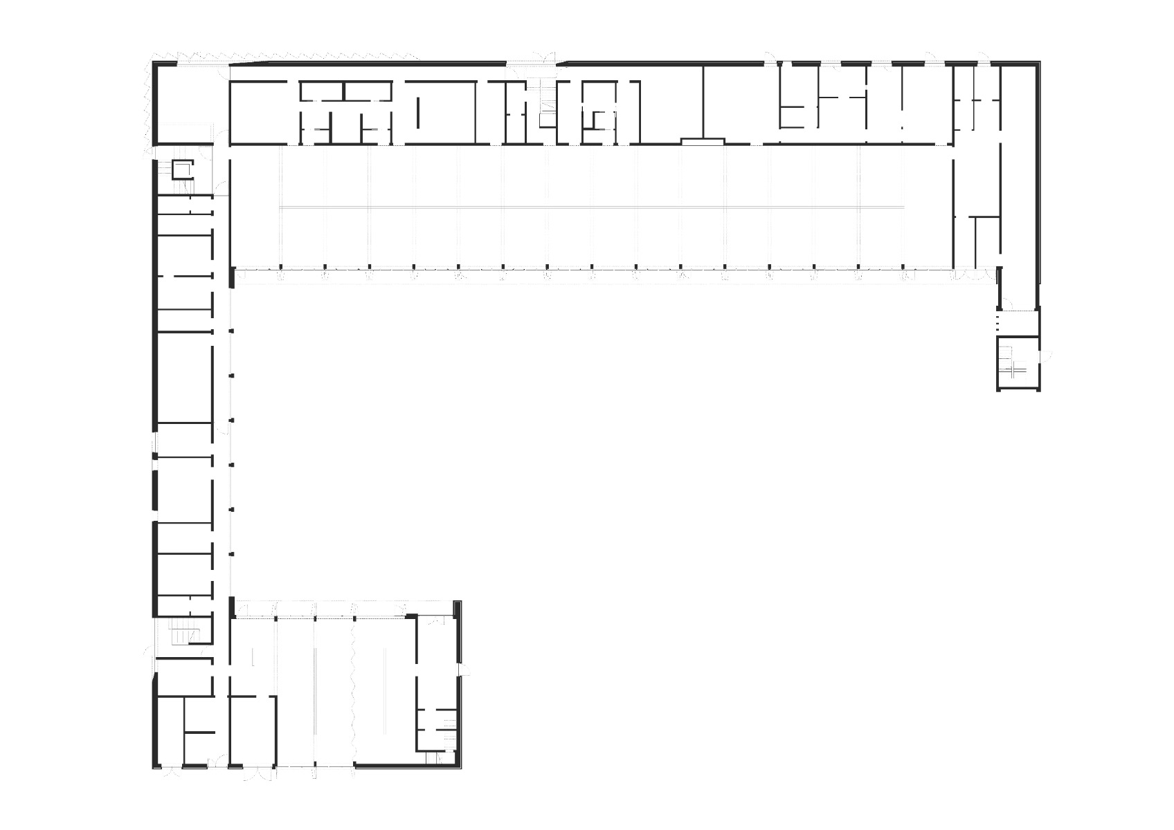
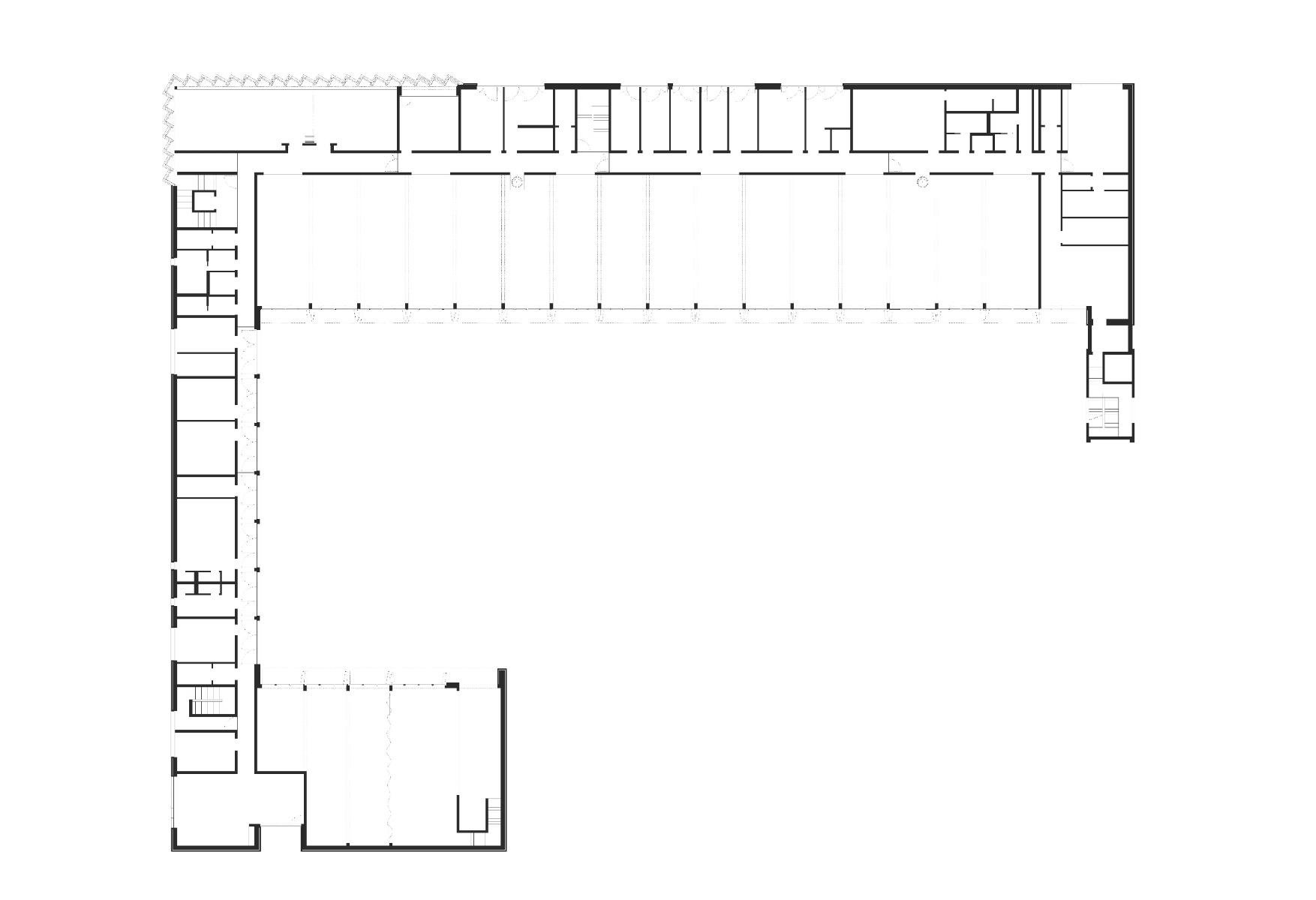
Der U-förmige, zwei- bis dreigeschossige Neubau steht im Südosten der Innenstadt am Fluss Zorge. Seine Größe resultiert daraus, dass hier nicht nur die Berufs-, sondern auch die Freiwillige Feuerwehr und die Jugendfeuerwehr neue Räume erhalten haben.
Abwechslungsreiches Klinkerkleid
An der vielbefahrenen Straße im Norden bildet der Neubau einen bis zu dreigeschossigen Rücken mit flachsgelber bis ockerfarbener Klinkerverkleidung. Flache Fensterbänder und vorgehängte Stahlbetonfertigteile auf Höhe der Geschossdecken betonen die Horizontale. Hinter der geschlossenen Erdgeschossfassade liegen die Umkleiden, darüber die Bereitschafts- und Ruheräume sowie der Speiseraum der Berufsfeuerwehr und ganz oben schließlich die Verwaltungsbüros. An der Gebäudeecke springt das ziehharmonikaartig gefaltete Bandfenster der Schulungsräume aus der Fassadenflucht hervor. Darunter, der Straßenkreuzung zugewandt, liegt der Haupteingang in die Feuerwache.


Viel Glas und Sichtbeton umgeben den Innenhof der Anlage. © Henrik Schipper Photography
Sichtbeton innen und außen
Ein ganz anderes Bild bietet sich Richtung Innenhof im Süden. Hier öffnet sich die Einstellhalle mit geschosshohen, verglasten Falt-Schiebetüren. Die geschlossenen Fassadenflächen bestehen aus Sichtbeton.


Irrtum unmöglich: Die Notruf-Telefonnummer 112 prangt weithin sichtbar am Schlauchturm. © Henrik Schipper Photography


Treppe im Schlauchturm, © Henrik Schipper Photography
Die gleiche Materialpalette setzt sich auch am Schlauchturm fort, der neben der Alarmausfahrt für die Feuerwehrfahrzeuge ganz im Osten platziert ist. Daran schließen sich ein Schlauchlager sowie eine Werkstatt für Schläuche und Schutzausrüstung an, die auch den Feuerwehren des umliegenden Landkreises zur Verfügung stehen.


Große Faltschiebetore aus Glas öffnen die Fahrzeughalle zum Innenhof. © Henrik Schipper Photography
Insgesamt 16 Fahrzeuge finden in der großen Einstellhalle Platz – einem Raum von großer Nüchternheit, gegliedert durch den regelmäßigen Rhythmus des Stahlbetontragwerks. Sprungschächte verbinden diese mit dem Flur der Berufsfeuerwehr im ersten Obergeschoss. An der Nordostecke des Gebäudes haben die Architekten die Leitstelle untergebracht – mit großen Verglasungen, die Ausblicke sowohl Richtung Straße als auch ins Innere der Halle erlauben.
Architektur: Dasch Zürn + Partner
Bauherr: Stadt Nordhausen
Standort: Zorgestraße 1, 99734 Nordhausen (DE)
Tragwerksplanung: tragwerkeplus
Landschaftsarchitektur: Reinboth Landschaftsarchitekten
HLS-Planung: IB Wagner
Elektroplanung: Kienle Beratende Ingenieure
Bauphysik, Raumakustik: Dr. Blechschmidt & Reinhold
Brandschutz: Ortsbild Architektur- & Ingenieurbüro

























