// Check if the article Layout ?>
Filigrane Hülle: Sport- und Veranstaltungszentrum in Saint-Louis
Foto: Guillaume Guerin
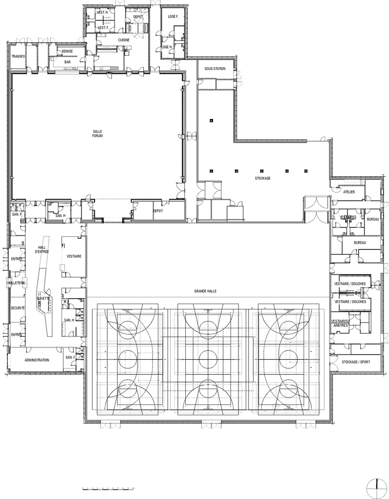
Das Sport- und Veranstaltungszentrum besteht aus 13 unterschiedlich großen Baukörpern: Die größte Halle ist für Sportveranstaltungen oder Wettbewerbe wie z.B. für Basketball, Handball, Badminton, Judo oder Gymnastik vorgesehen.
Der große Festsaal bietet Platz für max. 2400 Personen oder ca. 1000 Sitzplätze und kann für Konzerte und Shows genutzt werden. Geplant sind auch Ausstellungen und Messen, die dort stattfinden sollen. Je nach Platzbedarf sahen die Architekten für die Räumlichkeiten flexible Schiebetrennwände vor, wodurch die Größe der Veranstaltungsräume variiert werden kann. So kann z.B der Festsaal mit der Sporthalle verbunden werden, was besonders bei Messen oder Großveranstaltungen von Vorteil ist.
Die filigrane Gebäudehülle aus kupferfarbenem, perforiertem Streckmetall verbindet die einzelnen Baukörper miteinander. Durch das einheitlich verwendete Material, das sowohl an Fassade und Dach zum Einsatz kam, wirken die verschiedenen Baukörper wie aus einem Guss - ähnlich einem filigranen Metallnetz, das das Gebäude homogen umhüllt. Auch im Inneren kam Streckmetall zum Einsatz: Die Besucher des »Forum« werden durch die 14 m lange Bar, die ebenfalls mit dem Material verkleidet wurde, empfangen.
Weitere Projektinformationen:
Gesamtnutzfläche: 5713 m2
Statik: AIC
Akustik: JP Lamoureux
Brandschutz: CSD-Faces
Management und Koordination: C2Bi, Strasbourg
Techn. Controller: Qualiconsult, Strasbourg
Quelle: MANUELLE GAUTRAND ARCHITECTURE
Statik: AIC
Akustik: JP Lamoureux
Brandschutz: CSD-Faces
Management und Koordination: C2Bi, Strasbourg
Techn. Controller: Qualiconsult, Strasbourg
Quelle: MANUELLE GAUTRAND ARCHITECTURE
















