Umbau in Etappen
Firmensitz bei Padua von Tres Architettura + Ingegneria
Das Glasdach lässt viel Licht ins Obergeschoss mit den Büroräumen. Faltschiebewände erlauben eine flexible Unterteilung des Raums. © Aldo Amoretti
Seit Jahren schon wird der Hauptsitz des Maschinenherstellers Lamec im norditalienischen Cittadella umgebaut. Ein neuer Büroflügel samt Treppenturm in Stahlbauweise bildet nun den vorläufigen Abschluss.


Der neue Treppenturm bildet den Dreh- und Angelpunkt zwischen dem Bürotrakt und den drei südlich anschließenden Tonnendachhallen. © Aldo Amoretti
Sanierung des Lamec-Headquarters
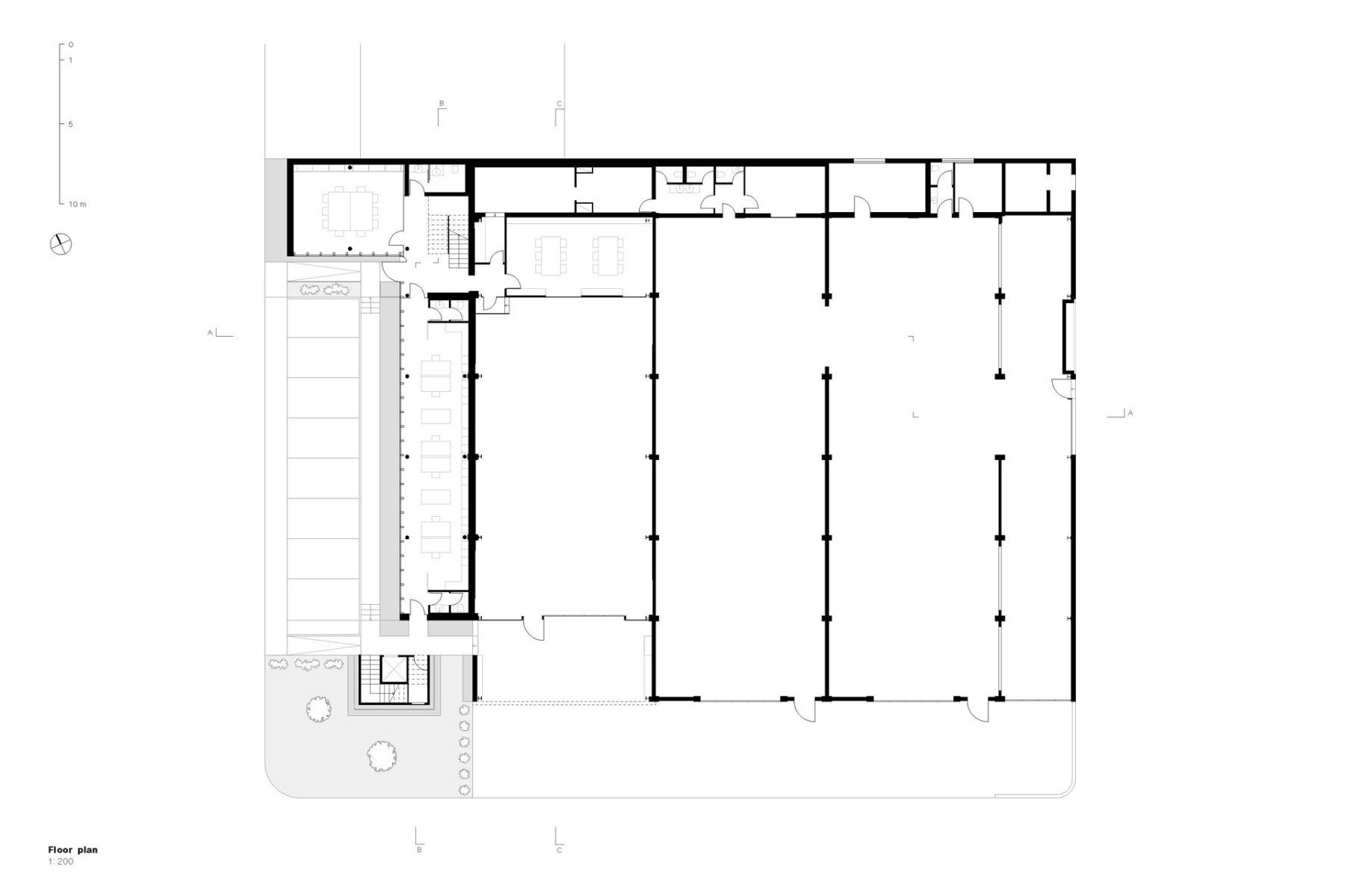
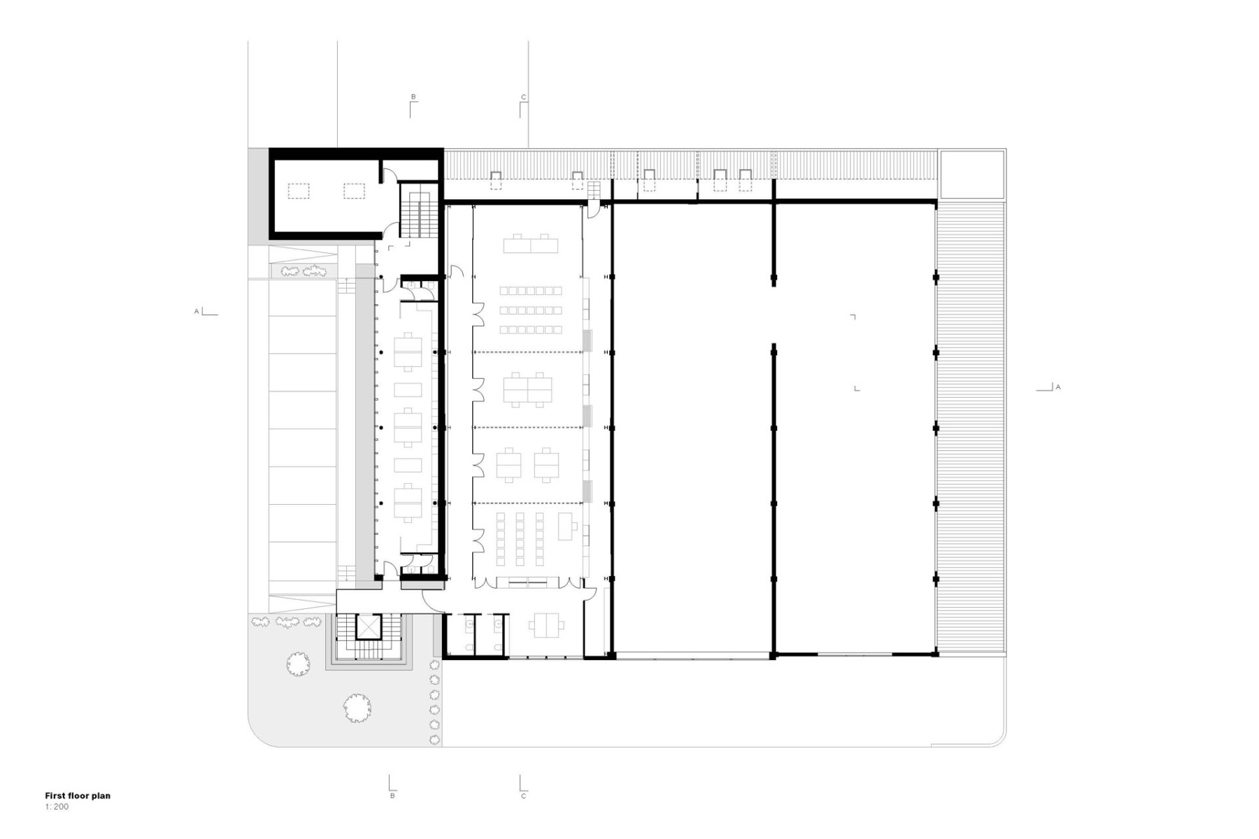
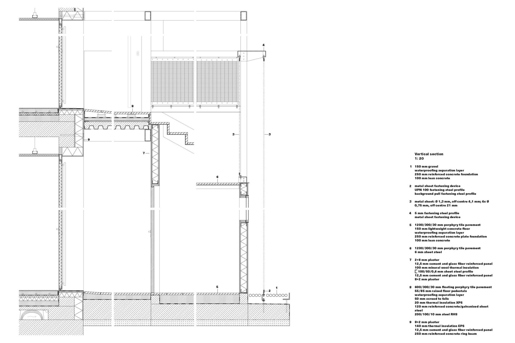
Drei tonnengewölbte Hallen und ein zweigeschossiger Büroflügel als nördlicher Abschluss – die Kubatur des Lamec-Headquarters ist nach der etappenweisen Sanierung die gleiche wie schon zu seiner Entstehungszeit in den 1960er-Jahren. Die Hülle und die Innenräume haben sich jedoch gründlich gewandelt. Komplett neu entstanden ist zuletzt die nördlichste der drei Hallen. Sie hat nun eine Stahl- statt der früheren Betonkonstruktion und ist zwei- statt eingeschossig. Das Obergeschoss lässt sich mit verschiebbaren Wandelementen flexibel untergliedern. Das Dach ist teils verglast und teils mit akustisch wirksamen, gelochten Aluminiumpaneelen verkleidet.
Ebenfalls 2022 fertiggestellt wurde der totemartige Treppenturm an der Nordwestecke des Gebäudekomplexes. Er erschließt die Büroetagen im Obergeschoss der beiden Nordflügel. Der Firmensitz steht in einem Wohngebiet im Norden der 20 000-Einwohner-Stadt. Lamec stellt überwiegend Maschinen zur Fertigung von Trockenfutter für Tiere her.


Richtung Vorplatz öffnet sich der Firmensitz mit einer zweigeschossigen Pfosten-Riegel-Fassade. © Aldo Amoretti
Materialdreiklang
Der nach Norden komplett verglaste Verwaltungstrakt datiert schon von 2016. Hier kündigt sich bereits die Materialpalette aus Glas, weiß lackiertem Metallblech und Sichtbeton an, die die Architekten seither bei allen Umbauvorhaben angewandt haben.


Glas, Sichtbeton und weiß lackierter Stahl – dieser Materialdreiklang prägte die Umbaumaßnahmen von Anfang an. © Aldo Amoretti


Die Südfassade der Hallen präsentiert sich weitgehend geschlossen. © Aldo Amoretti
Stahlstege führen vom neuen Treppenturm hinüber in das Obergeschoss der nördlichen Halle. In ihrem Erdgeschoss ist ein Hybrid aus Lager und Showroom mit direkter Verbindung in den Bürotrakt entstanden. Die Südfassade der Hallen präsentiert sich hingegen weitgehend geschlossen mit Sichtbetonwänden und lediglich einem schmalen Oberlichtstreifen unter dem Dachansatz.


Der Erschließungsflur im Obergeschoss ist auf drei Seiten verglast. So gelangt Tageslicht in die angrenzenden Büros und in den Showroom im Erdgeschoss. © Aldo Amoretti


Stahlkonstruktion der neuen Tonnendachhalle, © Aldo Amoretti
Büroräume unter Tonnendach
In der neuen Tonnendachhalle führt ein seitlicher Flur mit Glasboden zu den Büroräumen. Durch das Glas gelangt Tageslicht hinunter in den Showroom. Die Flurwand dient als Ausstellungsfläche und nimmt die technischen Installationen auf. Auf der anderen Seite trennen raumhohe Glasflächen den Flur von den Büros.
Architektur, Bauleitung, Tragwerksplanung: TRES architettura+ingegneria - Giorgio Simioni, Giulio Simioni
Mitarbeitende: Ambra Andreazza, Mattia Michieletto, Emanuele Melli, Davide Scapin
Bauherr: Lamec Italia
Standort: Via Isonzo, 6a, 35013 Cittadella (IT)
HLS-Planung: Emilio Pontarollo, Davide Toniolo, Riccardo Baggio
Elektroplanung: Gianni Piazza, Nicola Mironi
Abnahmeprüfer: Devid Ianniciello
Bauunternehmen: Euroscavi, Premetal
Fotograf: Aldo Amoretti





























