// Check if the article Layout ?>
Flexibel Wohnen: Ark Shelter
Foto: Thomas De Bruyne
Ohne Fernseher, mitten in der Natur und in gemütlicher Atmosphäre Abstand gewinnen zum Alltag und zu sich selbst finden. Das sind die Punkte die bei der Entwicklung des Projektes ARK an oberster Stelle standen.
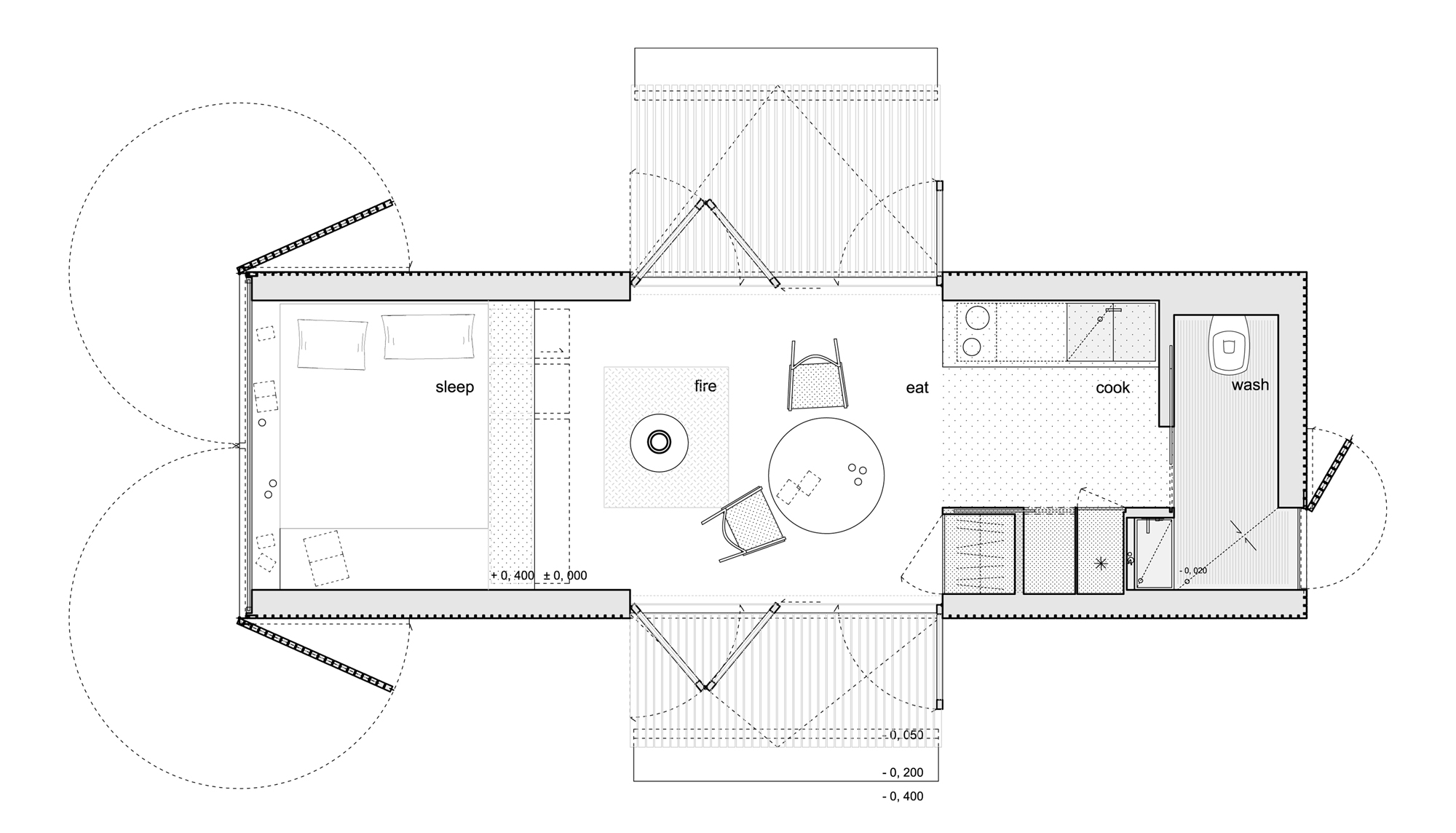
Das mobile Haus ist überall aufstellbar und verfügt über alles zum Wohnen Notwendige: Schlafplatz, Aufenthaltsbereich, Küche und Bad finden auf rund 28 m2 ihren entsprechenden Platz. Ein Schwedenofen ist ebenfalls integriert. Dank der beiden Terrassen ist der Wohnbereich so erweiterbar, dass man sich auch unter freiem Himmel aufhalten kann.
Helles Holz und gedeckte Farben dominieren das Innere, das komplett eingerichtet zum sofortigen Beziehen einlädt. Einzig die privaten Habseligkeiten müssen die Bewohner selbst mitbringen.
Die hölzernen, schwarz gefärbten Außenwände lassen sich aufklappen, sodass die Landschaft mit dem Gebäude verschmilzt und Innen und Außen eins werden. Die Möbel sind aus demselben Holz gestaltet wie die einzelnen Bauteile. Durch die Nutzung von Regenwasser und Windkraft funktioniert das Haus völlig autark.
Das mobile Haus ist überall aufstellbar und verfügt über alles zum Wohnen Notwendige: Schlafplatz, Aufenthaltsbereich, Küche und Bad finden auf rund 28 m2 ihren entsprechenden Platz. Ein Schwedenofen ist ebenfalls integriert. Dank der beiden Terrassen ist der Wohnbereich so erweiterbar, dass man sich auch unter freiem Himmel aufhalten kann.
Helles Holz und gedeckte Farben dominieren das Innere, das komplett eingerichtet zum sofortigen Beziehen einlädt. Einzig die privaten Habseligkeiten müssen die Bewohner selbst mitbringen.
Die hölzernen, schwarz gefärbten Außenwände lassen sich aufklappen, sodass die Landschaft mit dem Gebäude verschmilzt und Innen und Außen eins werden. Die Möbel sind aus demselben Holz gestaltet wie die einzelnen Bauteile. Durch die Nutzung von Regenwasser und Windkraft funktioniert das Haus völlig autark.





