Wein, Wirken und Wohnen
Flexibler Erweiterungsbau von Studio Jil Bentz
Domaine Claude Bentz in Luxemburg, © Studio Jil Bentz
Auf dem Grundstück eines Weinguts in Luxemburg realisiert Studio Jil Bentz einen hybriden Erweiterungsbau. Das zweigeschossige Gebäude zeichnet sich durch seine Linearität und die prägnante Dachform aus.


Der Neubau fügt sich zwischen das Bestandsgebäude und die Topografie. © Studio Jil Bentz
Bestand und Neubau
Der Neubau verbindet durch seine Länge von 72 m den bestehenden Haupteingang des Weinguts mit dem dahinterliegenden Landschaftsgarten und platziert sich neben dem Bestandsgebäude. Dieses weist eine diverse Dachform, bestehend aus einem Walm- und zwei Satteldächern auf. Durch seine Materialität, Form und die ebenfalls lebendige Dachlandschaft tritt der Neubau in einen Dialog mit dem Bestand. Wie eine Krone setzt sich das zackenförmige, metallische Dach auf den Betonsockel und wirkt identitätsstiftend für das Weingut.
Dynamische Raumfolge
Das fast gänzlich verglaste Erdgeschoss beherbergt die Verkostung und den Verkauf des Weines. Durch die um 45 Grad gedrehten Kuben entsteht, trotz der Linearität des Raumes, ein dynamischer Raumeindruck. Die diagonal angeordneten Betonwände ermöglichen neue Raumbeziehungen und lösen die statischen Anforderungen des Gebäudes.


Im Erdgeschoss liegt der Veranstaltungssaal. Hier finden die Weinverkostung und der Verkauf statt. © Studio Jil Bentz
Flexibles Stützenraster
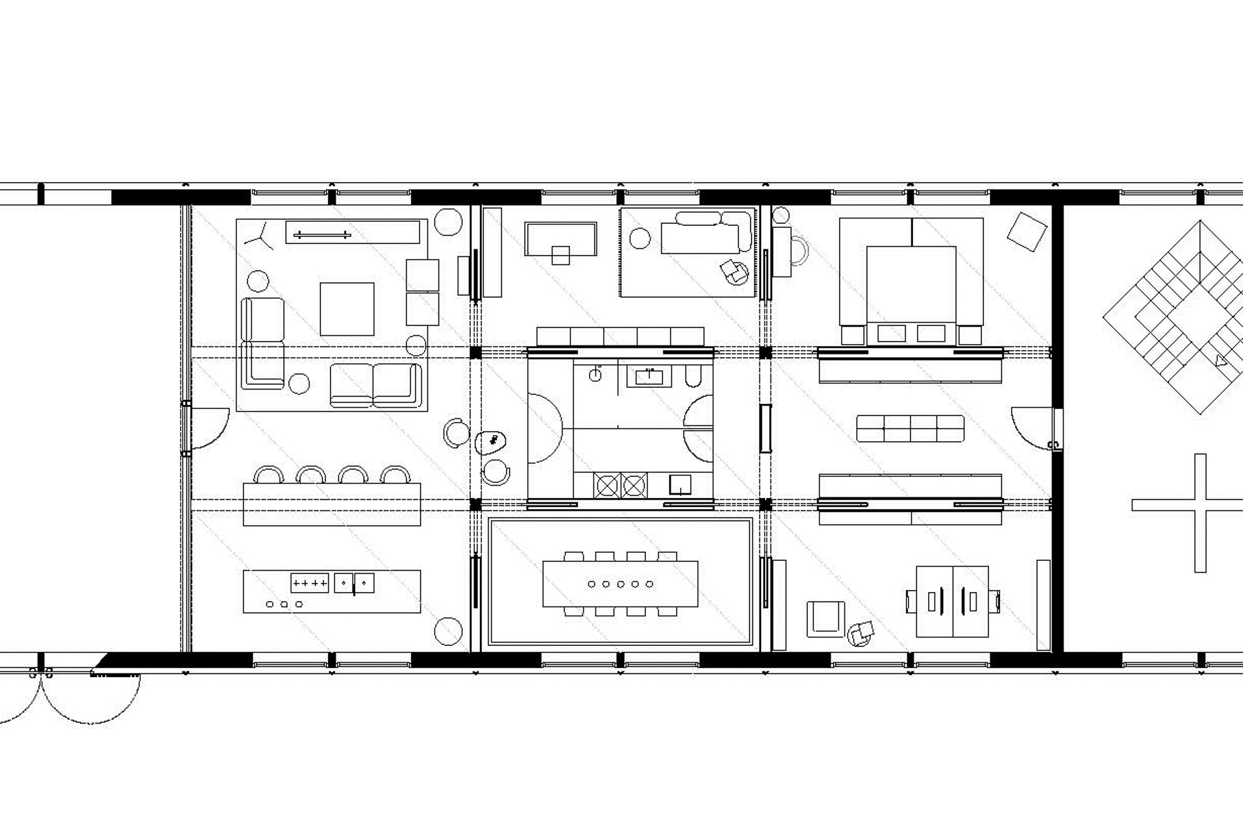
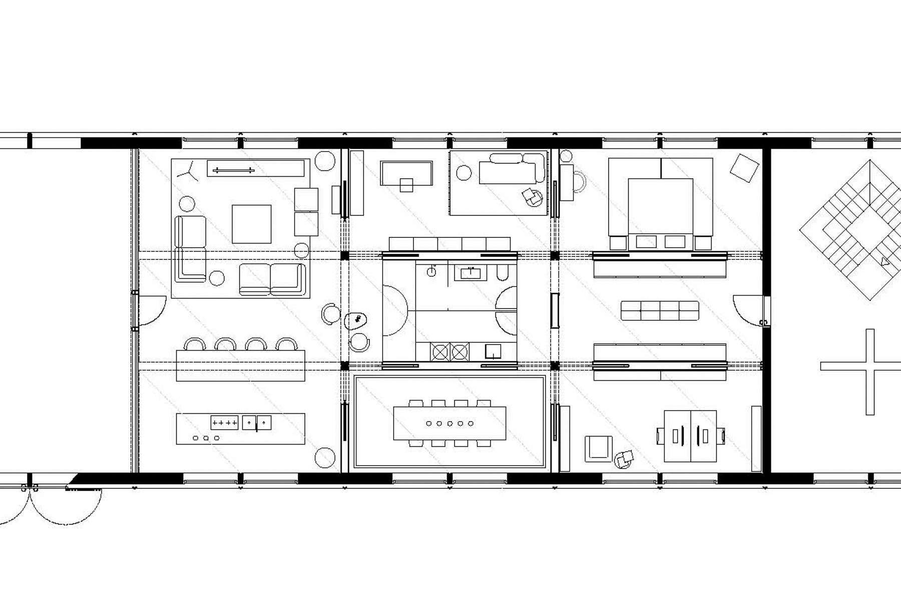
Im Obergeschoss finden sich ein Architekturbüro und eine Privatwohnung. Der Zugang erfolgt zum einen über eine innenliegende Treppe, zum anderen wird die abfallende Topografie genutzt und es entsteht ein ebenerdiger Zugang zur Privatwohnung. Die Holzkonstruktion des Obergeschosses beruht auf einem orthogonalen Raster, welches die zwei Einheiten in neun Rechtecke unterteilt. Dieses flexible Stützenraster ermöglicht es, den Raum frei zu bespielen.


Privatwohnung im Obergeschoss, © Studio Jil Bentz


Stützen ermöglichen eine flexible Raumaufteilung. © Studio Jil Bentz


Durch das Öffnen der Schiebtüren entsteht eine räumliche Enfilade. © Studio Jil Bentz
Das junge Büro zeigt mit seinem ersten realisierten Projekt, wie ein rücksichtsvoller Umgang mit dem Bestehenden und eine ausdrucksstarke geometrische Formensprache Hand in Hand gehen können.
Architektur: Studio Jil Bentz
Bauherr: Domaine Claude Bentz
Standort: Remich (LU)
Tragwerksplanung: AuCarré
Bauunternehmen: Kuhn





















