// Check if the article Layout ?>
Fliegendes Wechselspiel: Vogelwarte von :mlzd
Foto: Alexander Jaquemet
Seit Mai 2015 sind die Türen des Besucherzentrums der schweizerischen Vogelwarte für die Besucher geöffnet, um dort die einheimische Vogelwelt und die Arbeit der Vogelwarte kennenzulernen. Auf dem Areal der alten Vogelwarte entstand in knapp zweijähriger Bauzeit der Neubau samt Außengelände am Ufer des Sempachersees.
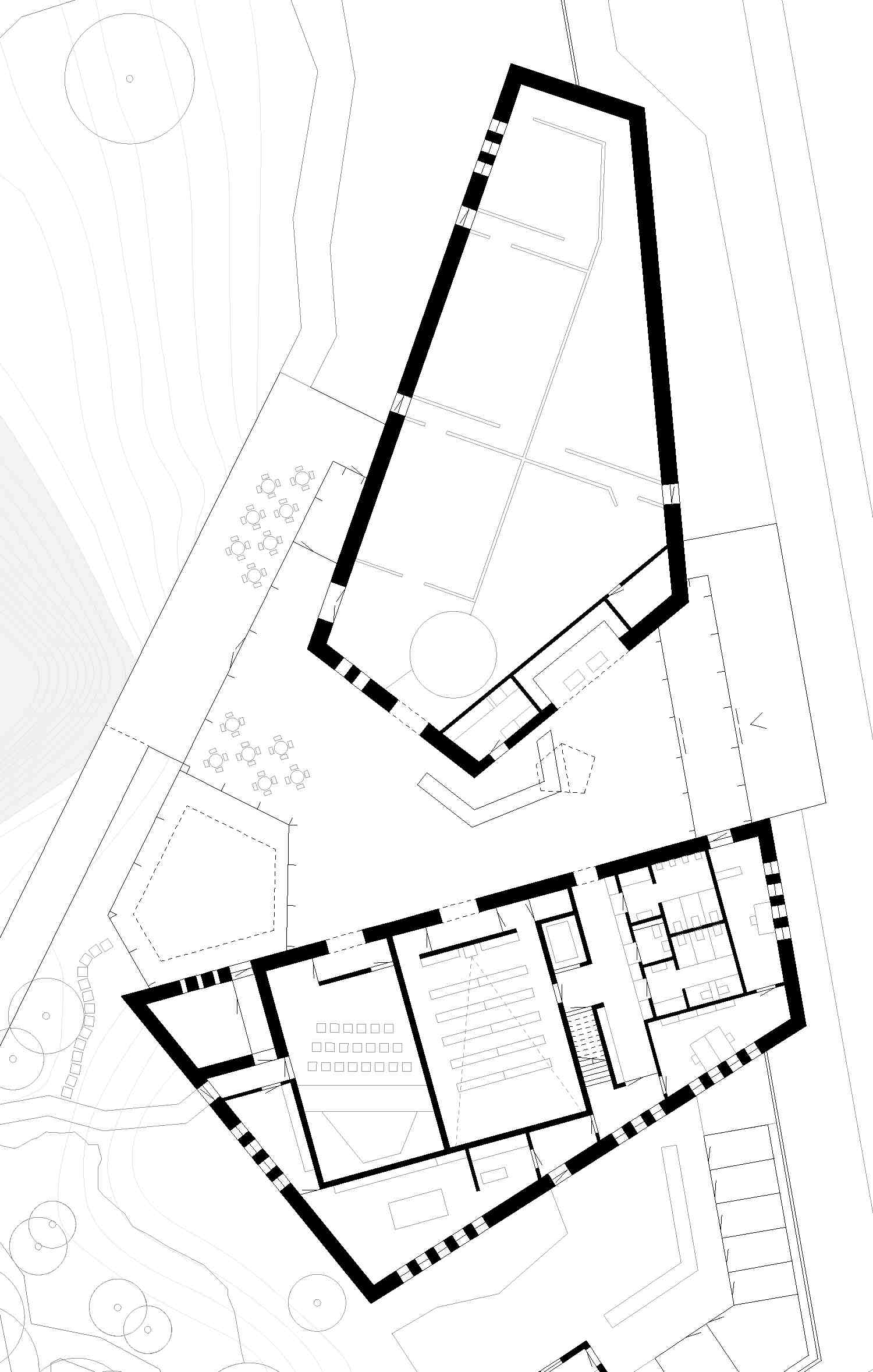
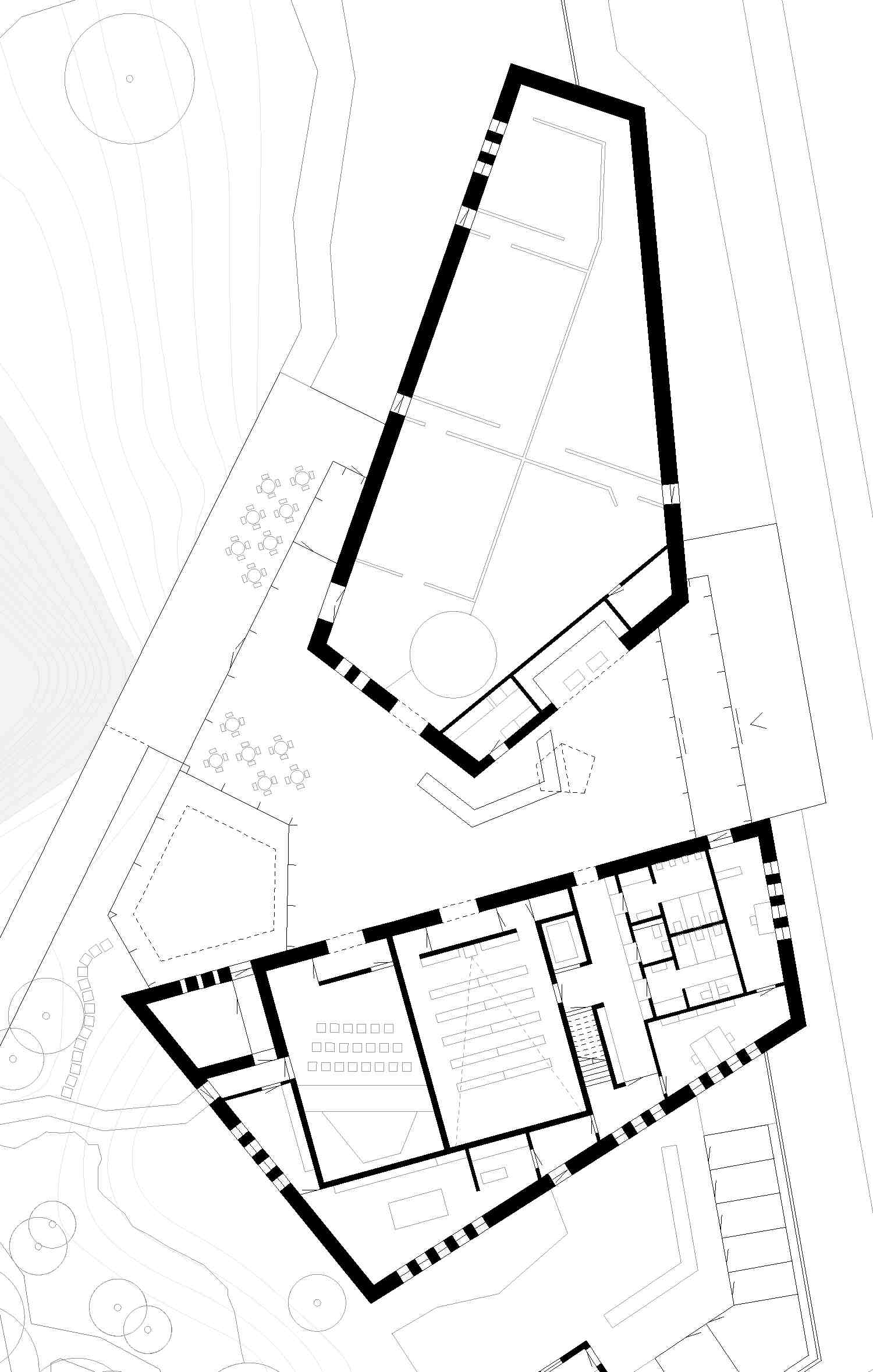
Der dreiteilige Gebäudekomplex besticht vor allem durch seine polygonale Kubatur und seine markante Fassadengestaltung. Holz und Lehm prägen das äußere Erscheinungsbild und bleiben auch im Inneren sichtbar. Das Wechselspiel der Materialien der Fassade lässt analog die Varianz in der Gebäudeorganisation erkennen: Die aus vorgefertigten Lehmelementen bestehenden Baukörper beherbergen die Ausstellungsräume und den dreigeschossigen Mehrzwecktrakt, in dem sowohl Teile der Ausstellung untergebracht sind, als auch ein Kursraum und eine Pflegestation für verletzte Vögel. Ergänzend fügt sich der hölzerne Eingangsbereich dazwischen, der von der Straße aus über ein verglastes Foyer erreicht wird. Die Besucher gelangen von hier aus sowohl zu den Ausstellungsräumen, als auch in die oberen Geschosse des Mehrzwecktraktes und in das Außengelände.
Der Weg in den Außenbereich führt vorbei an der kleinen Cafeteria des Entrées, von wo aus man eine freie Sicht auf die Uferparzelle und den Weiher genießt. Entlang einer Schauvoliere zieht sich das dynamische Wegenetz durch das Gelände. Zwei Beobachtungs- und Aussichtsplattformen stehen den Hobby-Kundschaftern zur Verfügung und machen es möglich die heimische Vogelwelt zu beobachten und zu belauschen. Die Renaturierung der Seeparzelle hat dazu beigetragen, dass die Natur mit ihren Wiesen und Wäldern in die Ausstellung integriert werden konnte und erlebt werden kann.
Zurück im Gebäudeinneren setzt sich das bunte Stimmengewirr fort. In der „Singfonie“ können die Besucher die Klang- und Kommunikationswelt der heimischen Vögel auf sich wirken lassen. Nebenan im hauseigenen Kinosaal wird ein Film des Schweizer Filmemachers Marc Tschudin gezeigt, der die Besucher visuell auf eine Reise durch die Schweizer Vogelwelt mitnimmt. Die interaktive Erlebnisausstellung in der Hauptausstellungshalle lässt den Besucher mehr und mehr in die Welt der gefiederten Tiere eintauchen.
Als erstes dreigeschossiges Lehmgebäude der Schweiz ist das Besuchszentrum ein bauökologisches Pionierprojekt. Durch die Verwendung von natürlichen Materialien, sowohl im Inneren des Gebäudes als auch an der Fassade und dank des geringen Energieverbrauchs wird der Minergie-P-eco-Standard erreicht.
Lehm und Holz charakterisieren das neue Besucherzentrum der schweizerischen Vogelwarte am Ufer des Sempachersees. Das von dem Bieler Architekturbüro :mlzd geplante Gebäude setzt ein Zeichen für ökologisches Bauen und nimmt den Besucher mit auf eine Reise durch die Natur und die heimische Vogelwelt der Schweiz.
Architekten: :mlzd, Biel, Schweiz
Ort: Luzernerstr. 6, 6204 Sempach, Schweiz
Architekten: :mlzd, Biel, Schweiz
Ort: Luzernerstr. 6, 6204 Sempach, Schweiz
Seit Mai 2015 sind die Türen des Besucherzentrums der schweizerischen Vogelwarte für die Besucher geöffnet, um dort die einheimische Vogelwelt und die Arbeit der Vogelwarte kennenzulernen. Auf dem Areal der alten Vogelwarte entstand in knapp zweijähriger Bauzeit der Neubau samt Außengelände am Ufer des Sempachersees.
Der dreiteilige Gebäudekomplex besticht vor allem durch seine polygonale Kubatur und seine markante Fassadengestaltung. Holz und Lehm prägen das äußere Erscheinungsbild und bleiben auch im Inneren sichtbar. Das Wechselspiel der Materialien der Fassade lässt analog die Varianz in der Gebäudeorganisation erkennen: Die aus vorgefertigten Lehmelementen bestehenden Baukörper beherbergen die Ausstellungsräume und den dreigeschossigen Mehrzwecktrakt, in dem sowohl Teile der Ausstellung untergebracht sind, als auch ein Kursraum und eine Pflegestation für verletzte Vögel. Ergänzend fügt sich der hölzerne Eingangsbereich dazwischen, der von der Straße aus über ein verglastes Foyer erreicht wird. Die Besucher gelangen von hier aus sowohl zu den Ausstellungsräumen, als auch in die oberen Geschosse des Mehrzwecktraktes und in das Außengelände.
Der Weg in den Außenbereich führt vorbei an der kleinen Cafeteria des Entrées, von wo aus man eine freie Sicht auf die Uferparzelle und den Weiher genießt. Entlang einer Schauvoliere zieht sich das dynamische Wegenetz durch das Gelände. Zwei Beobachtungs- und Aussichtsplattformen stehen den Hobby-Kundschaftern zur Verfügung und machen es möglich die heimische Vogelwelt zu beobachten und zu belauschen. Die Renaturierung der Seeparzelle hat dazu beigetragen, dass die Natur mit ihren Wiesen und Wäldern in die Ausstellung integriert werden konnte und erlebt werden kann.
Zurück im Gebäudeinneren setzt sich das bunte Stimmengewirr fort. In der „Singfonie“ können die Besucher die Klang- und Kommunikationswelt der heimischen Vögel auf sich wirken lassen. Nebenan im hauseigenen Kinosaal wird ein Film des Schweizer Filmemachers Marc Tschudin gezeigt, der die Besucher visuell auf eine Reise durch die Schweizer Vogelwelt mitnimmt. Die interaktive Erlebnisausstellung in der Hauptausstellungshalle lässt den Besucher mehr und mehr in die Welt der gefiederten Tiere eintauchen.
Als erstes dreigeschossiges Lehmgebäude der Schweiz ist das Besuchszentrum ein bauökologisches Pionierprojekt. Durch die Verwendung von natürlichen Materialien, sowohl im Inneren des Gebäudes als auch an der Fassade und dank des geringen Energieverbrauchs wird der Minergie-P-eco-Standard erreicht.
Weitere Informationen:
Geschossfläche: 2030 m²
Energiestandard: Minergie-P-eco
Kosten: 15 090 000 Mio. CHF
Architekten und Gesamtprojektleitung: :mlzd, Biel
Auftraggeber: Schweizerische Vogelwarte Sempach
Bauleitung/Baukostenmanagement: kunzarchitekten ag, Sursee
Bauingenieur Massivbau: WAM Planer und Ingenieure AG, Bern
Bauingenieur Holzbau: Pirmin Jung Ingenieure für Holzbau AG, Rain
Landschaftsarchitekt: Fontana Landschaftsarchitektur GmbH, Basel
Bauphysik: B + S AG, Bern
HLKS-Planer: Gruner Roschi AG, Köniz
Elektroplaner: Brunner Elektroplan AG, Luzern
Lehmbau: LEHM TON ERDE Baukunst GmbH, A-Schlins
Geschossfläche: 2030 m²
Energiestandard: Minergie-P-eco
Kosten: 15 090 000 Mio. CHF
Architekten und Gesamtprojektleitung: :mlzd, Biel
Auftraggeber: Schweizerische Vogelwarte Sempach
Bauleitung/Baukostenmanagement: kunzarchitekten ag, Sursee
Bauingenieur Massivbau: WAM Planer und Ingenieure AG, Bern
Bauingenieur Holzbau: Pirmin Jung Ingenieure für Holzbau AG, Rain
Landschaftsarchitekt: Fontana Landschaftsarchitektur GmbH, Basel
Bauphysik: B + S AG, Bern
HLKS-Planer: Gruner Roschi AG, Köniz
Elektroplaner: Brunner Elektroplan AG, Luzern
Lehmbau: LEHM TON ERDE Baukunst GmbH, A-Schlins
weitere Informationen:
Architekten und Gesamtprojektleitung: :mlzd, Biel
Auftraggeber: Schweizerische Vogelwarte Sempach
Bauleitung/Baukostenmanagement: kunzarchitekten ag, Sursee
Bauingenieur Massivbau: WAM Planer und Ingenieure AG, Bern
Bauingenieur Holzbau: Pirmin Jung Ingenieure für Holzbau AG, Rain
Landschaftsarchitekt: Fontana Landschaftsarchitektur GmbH, Basel
Bauphysik: B + S AG, Bern
HLKS-Planer: Gruner Roschi AG, Köniz
Elektroplaner: Brunner Elektroplan AG, Luzern
Lehmbau: LEHM TON ERDE Baukunst GmbH, A-Schlins
Auftraggeber: Schweizerische Vogelwarte Sempach
Bauleitung/Baukostenmanagement: kunzarchitekten ag, Sursee
Bauingenieur Massivbau: WAM Planer und Ingenieure AG, Bern
Bauingenieur Holzbau: Pirmin Jung Ingenieure für Holzbau AG, Rain
Landschaftsarchitekt: Fontana Landschaftsarchitektur GmbH, Basel
Bauphysik: B + S AG, Bern
HLKS-Planer: Gruner Roschi AG, Köniz
Elektroplaner: Brunner Elektroplan AG, Luzern
Lehmbau: LEHM TON ERDE Baukunst GmbH, A-Schlins














