Fokus nach oben: Kirche und Gemeindezentrum von Peter Krebs
Foto: Brigida González
Die Kirchengemeinden schrumpfen vielerorts. Doch in diesem Fall ist die Zusammenlegung zweier Gemeinden kein Grund zur Trauer, sondern sie bringt diesen Neubau einer Kirche mit Gemeindehaus mit sich. Der Architekt Peter Krebs entwickelte im Wettbewerb das Areal im Süden des belebten Walther-Rathenau-Platzes. Dazu gehörten sowohl das Kirchenensemble als auch die städtebauliche Idee für 21 Wohneinheiten. Letztere liegen wiederum südlich der Kirche und wurden im weiteren Verlauf von einem Bauträger umgesetzt.
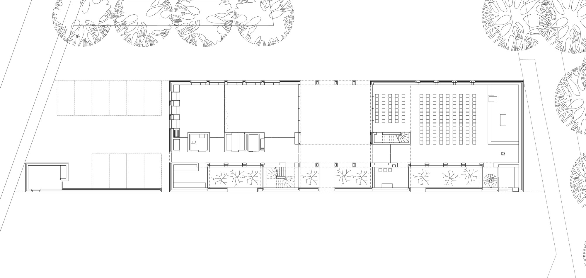
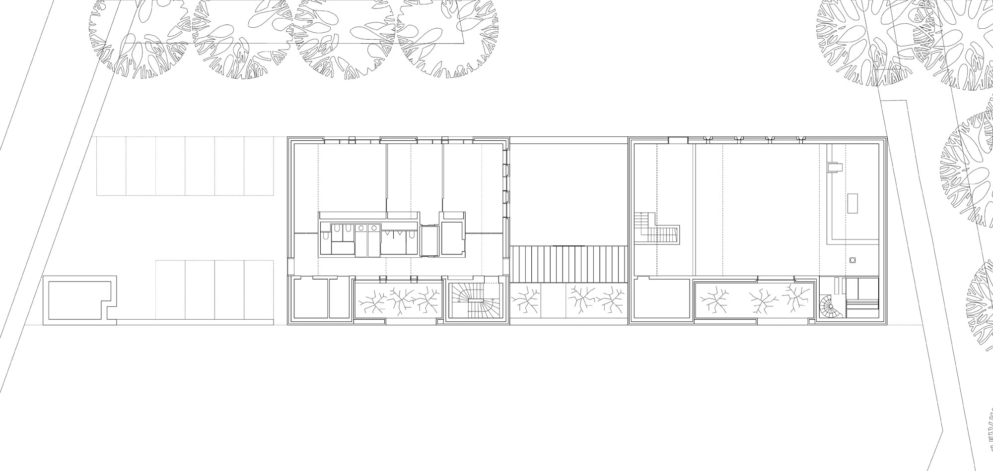
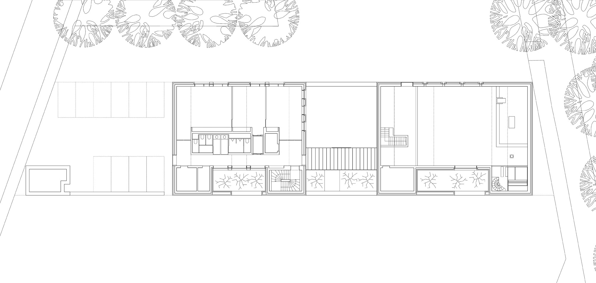
Auf dem Grundstückstreifen sind die beiden Gebäude aneinandergereiht, die Kirche im Osten und das Gemeindehaus im Westen. Dazwischen entsteht ein Hof, der zum Eintreten von Norden oder Süden einlädt und Ort für Gemeindefeste ist. Ein Gartenband mit Ahornbäumen verbindet die drei Bereiche und dient als Abstandhalter zur Wohnbebauung. Unter einem schwarzen Vordach lassen sich beide Häuser geschützt betreten.
Eine Folge von unterschiedlich geneigten Dachflächen gliedert die Raumhöhen und gibt dem Gebäude eine expressive Anmutung. Von außen wirkt das Ensemble vor allem wegen seiner im oberen Fassadenbereich liegenden Öffnungen relativ geschlossen. Der erhöhte Lichtraum über den Altar bildet den östlichen Anfangspunkt in der Raumabfolge. Es folgt der Kirchenraum, von dem aus es wiederum in den Hofbereich weitergeht. Im Westen schließt die Abfolge im Erdgeschoss mit den beiden zusammenschaltbaren Gemeindesälen. Die Außenwände sind in geschlämmtem Ziegelmauerwerk ausgeführt, wodurch sie »auf angemessene Weise mit den verputzten Bauten der Umgebung korrespondieren«, so Architekt Peter Krebs.
Auch innen bleibt der Architekt der hellen Farbpalette treu. Kirchenboden und Altarbereich sind in Kalkstein ausgeführt und die Prinzipalstücke bestehen aus Kalksteinblöcken, die auf gekalkten Eichenholzgittern gelagert sind. Die nördliche Wand ist mit einem gleichmäßigen Raster kleiner Farbfenster überzogen, deren Glas aus den alten Kirchengebäuden der zusammengelegten Gemeinden übernommen wurde.















