Tisch und Wolke
Forum Physik in Darmstadt von Prosa Architektur+Stadtplanung
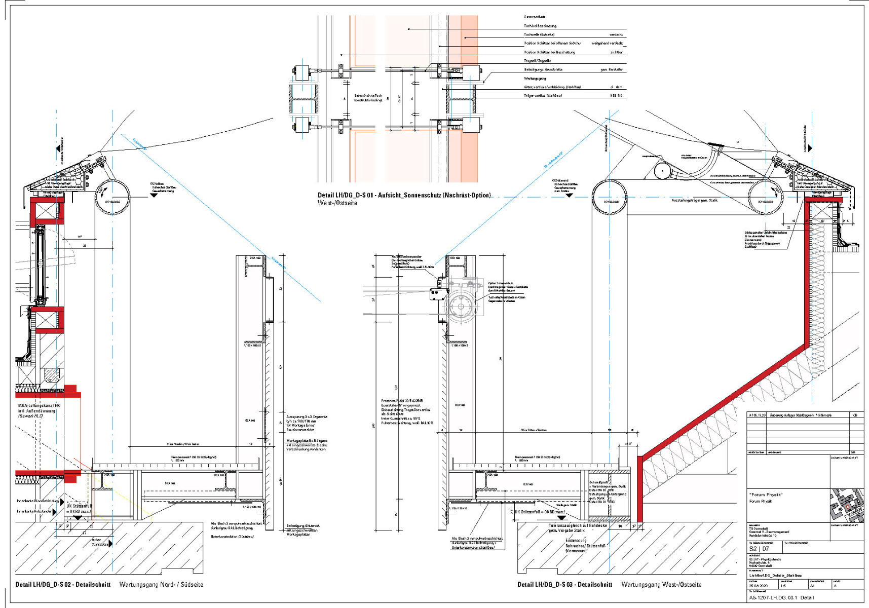
Rund 11 x 14,5 m misst die rechteckige Dachöffnung, die die neue Stahl- und Membrankonstruktion überspannt. © Rahel Welsen
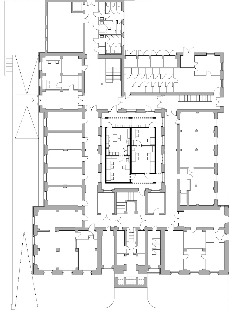
Das denkmalgeschützte Physik-Institutsgebäude S2|07 auf dem Campus Stadtmitte der TU Darmstadt entstand in den 1890er-Jahren nach Plänen von Erwin Marx. Im Zweiten Weltkrieg wurde der historistische Vierflügelbau mit Innenhof schwer beschädigt und bald nach Kriegsende um ein Geschoss erhöht wieder aufgebaut.


Im ersten Obergeschoss des Innenhofs ist eine Veranstaltungsfläche entstanden, darunter liegen Laborräume. © Rahel Welsen
Holzbau für Veranstaltungen und Forschung
Jetzt hat das Darmstädter Architektur- und Planungsbüro Prosa den Bau um flexible Veranstaltungsflächen und optische Laborräume erweitert, ohne dass dies dem Gebäude von außen anzusehen wäre. Als Raumreserve nutzten die Architekten den Innenhof, den sie mit einem leichten Foliendach überspannten und ihm im Erd- und ersten Obergeschoss einen tischartigen Holzeinbau einfügten.
Der Tisch ist eine in den Hof eingestellte selbsttragende Brettsperrholzkonstruktion, die auf der Oberseite als Forumsfläche, auf der Unterseite als Labor dient. Sie ist leicht vom Bestand abgerückt, sodass eine Fuge zu den Mauerwerkswänden entsteht. Kurze Stege führen aus den Fluren des Gebäudes auf die Forumsfläche.


Die Stahlkonstruktion steht auf den Außenwänden des 125 Jahre alten Gebäudes. Daher musste sie sehr leicht sein. © Rahel Welsen
Ultraleichtes Stahl-Membrandach
Eine extrem leichte Konstruktion aus pneumatischen Folienkissen und gebogenen Stahl-Rundrohrträgern überspannt den ehemaligen Innenhof. Um die Konstruktion in Horizontalrichtung auszusteifen, sind die Träger mit rund 11,60 m Spannweite leicht diagonal angeordnet. Nur durch das geringe Gewicht der Konstruktion war das fragile, denkmalgeschützte Bestandsgebäude in der Lage, das neue Dach zu tragen. Die Membranen lassen reichlich Tageslicht in das neue Physik-Forum. Ein von unten nicht sichtbares, feines Druckmuster auf den Folien gewährleistet den Sonnenschutz.


Die Beleuchtung des Holztischs ist von unten fast unsichtbar an Seilen aufgehängt. © Rahel Welsen


Auch die Bedruckung des Foliendachs, die vor Sonne schützen soll, ist von unten nicht zu sehen. © Rahel Welsen
Subtile Eingriffe in historisches Gebäude
In Abstimmung mit den Denkmalbehörden entwickelten die Architekten das Konzept stetig weiter. Auch an anderer Stelle fügen sich die neuen Elemente subtil in den Altbau ein. So lässt sich ein Präsentationsbildschirm aus der Brüstung ausfahren, und an den Arbeitsplätzen steht moderne Netzwerktechnik zur Verfügung. Ein Lichtkranz und Punktleuchten hängen an leichten Seilkonstruktionen über der Forumsfläche und beleuchten Veranstaltungen in den Abendstunden.
Architektur: prosa Architektur + Stadtplanung
Bauherr: Technische Universität Darmstadt, Dezernat V
Standort: Hochschulstraße 6, 64283 Darmstadt (DE)
Tragwerksplanung: Fast + Epp
Brandschutz: Ingenieurbüro Mundt
HLS-Planung: InPlan
Elektroplanung: Schneider
















